4.9
Рейтинг на основании 120 отзывов
Дмитров
Опорный проезд 28Б
(индустриальный парк Ниагара)
Бренд "Дмитров-Дело" c 2008 года на рынке строительства в Дмитрове
Звоните 9:00 до 18:00 8 (915) 055-33-61
Бренд "Дмитров-Дело" c 2008 года на рынке строительства в Дмитрове

Хайтек 155

Стоимость проекта от:
62 100 ₽
БЕСПЛАТНО! ПРИ ЗАКАЗЕ СТРОИТЕЛЬСТВА
Стоимость строительства от:
10 062 360 ₽
Артикул ART-18994
Дата 26.12.2025
Архитектурный стиль Хайтек
Количество надземных этажей 1
Круглогодичное проживание Да
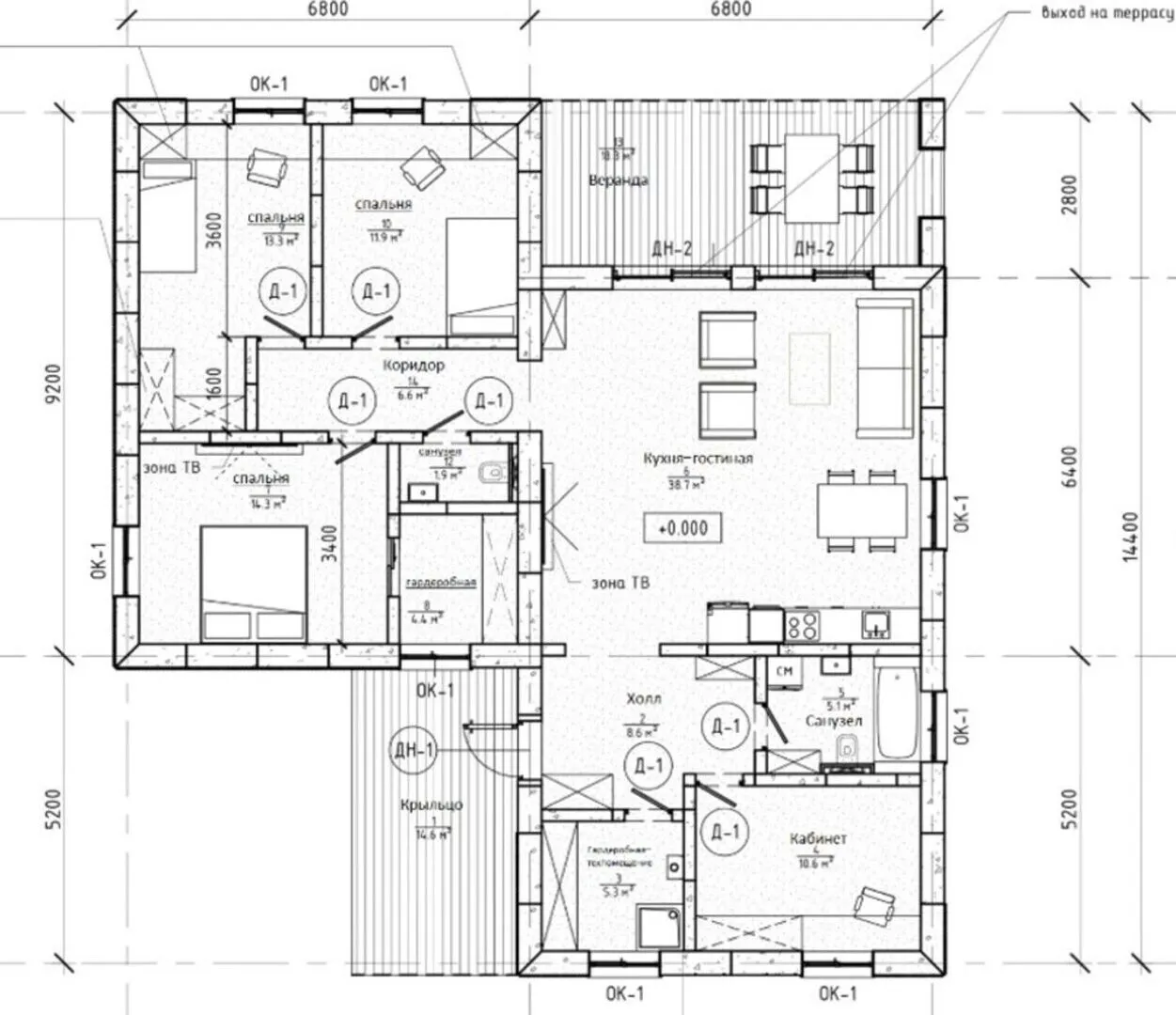
Площадь дома 138 м2
Санузлы 3
Спальни 4

Описание

**Добро пожаловать в новый эру комфортного быта – ваш будущий дом в стиле хай‑тек!** Эта однокомнатная, но невероятно просторная, пятидесят пятиметровая резиденция сочетает в себе ярко выраженный современный стиль с техническими новинками, которые делают жизнь легче и приятнее. Внутреннее пространство расцвечено светом, благодаря плавлым линиям и большим оконным проёмам, которые наполняют зал атмосферой открытости и свободы. Полисатурированная стенка из полистиролбетона обеспечивает отличную тепло- и звукоизоляцию, а плоская крыша открывает возможности для уютного веранда в любом сезоне. **Идеальная «внутренняя гавань» для круглогодичного проживания** Дом рассчитан на один надземный этаж, который легко обустроить в комфортную семейную, деловую или студийную среду. Удобный планировка гарантирует безупречное сочетание приватности и открытости – всё, что нужно для расслабления после напряжённого дня, находится рядом. Внутренняя система освещения и управления климатом автоматизирована до тех пор, пока вы не захотите вмешаться, создавая идеальную «установку» в любой точке года. **Функциональность без компромиссов** В этой модели всё под контролем: от энергоэффективности до легкости обслуживания. Поскольку в конструкции отсутствуют балконы, лоджии, чердачные помещения и крытые автостоянки, вы избавляетесь от лишних хлопот и забот, сосредотачиваясь только на том, что действительно важно – уюте, безопасности и стиле. Веранда добавит вашему дому неповторимое очарование: прогулки и вечерние собрания с дистиллированной атмосферой в сочетании с природой и современными технологиями. Приглашаем вас открыть дверь в новый стиль жизни, где высокие технологии встречаются с уютом, а функциональный дизайн создаёт пространство, где каждый момент становится комфортным, а каждая деталь – вдохновляющей. Добро пожаловать домой!

Характеристики дома

Архитектурный стиль
Автоматизированное регулирование параметров теплоносителя
Нет
Балконы/лоджии
Отсутствуют
Чердачное помещение
Нет
Датчики протечки воды
Нет
Эксплуатируемая или зеленая кровля
Нет
Электроснабжение
2 варианта
Газоснабжение
Центральное
Изоляция воздушного шума
Нет
Камин
Нет
Класс энергоэффективности
-
Класс энергосбережения
-
Количество надземных этажей
1
Круглогодичное проживание
Да
Материал кровли
ПВХ мембраны
Материал перекрытий
Иной вид материалов перекрытий
Материал внешних стен
Материал внутренних перегородок
Модульное строительство с конструкциями заводского изготовления
Нет
Объем надземной части
465 м3
Основной материал фасадов
Натуральный камень
Отопление
2 варианта
Площадь дома
138 м2
Площадь застройки
155 м2
Подвальное помещение
Нет
Показатель компактности здания
-
Приборы учета тепловой энергии
Нет
Пристроенный гараж/крытая автостоянка
Нет
Противопожарная система
Нет
Санузлы
3
Совмещенная кухня-гостиная
Да
Спальни
4
Терраса
Нет
Тип фундамента
Свайно-ростверковый
Тип кровли
Толщина внешних стен
400 мм
Толщина внутренних перегородок
200 мм
Улучшенные шумовые характеристики
Нет
Вентиляция
Рекуперация
Веранда
Да
Водоотведение
2 варианта
Водоснабжение
2 варианта
Высота дома
4 м
Высота потолков
3 м

Планировка

Фасад дома

Александр

Закажите выезд инженера

Александр

Выездной инженер
Закажите выезд инженера для точной диагностики и профессиональной консультации по инженерным системам. Специалист приедет в удобное время, проведёт осмотр, рассчитает стоимость работ и подберёт оптимальные решения для вашего дома.


    Похожие проекты

    Ипотека и
    рассрочка
    Загородный жилой дом №5
    Стоимость от:
    9 390 700
    Проект от: 56 250
    Этажей 1
    Санузлы 2
    Спальни 2
    Смотреть
    Ипотека и
    рассрочка
    Дом с тремя спальнями «Березово»
    Стоимость от:
    7 909 440
    Проект от: 50 400
    Этажей 1
    Санузлы 2
    Спальни 3
    Смотреть
    Ипотека и
    рассрочка
    Загородный дом КД — 74
    Стоимость от:
    5 564 680
    Проект от: 33 300
    Этажей 1
    Санузлы 1
    Спальни 3
    Смотреть
    Ипотека и
    рассрочка
    Проект Алина
    Стоимость от:
    6 890 180
    Проект от: 40 050
    Этажей 1
    Санузлы 2
    Спальни 3
    Смотреть
    Ипотека и
    рассрочка
    Одноэтажный Дом ВК-125
    Стоимость от:
    6 850 140
    Проект от: 43 650
    Этажей 1
    Санузлы 2
    Спальни 3
    Смотреть
    Ипотека и
    рассрочка
    Дом из бруса 8 на 8,5 в два этажа с террасой и балконом
    Стоимость от:
    8 827 680
    Проект от: 54 900
    Этажей 2
    Санузлы 2
    Спальни 4
    Смотреть

    Как узнать стоимость дома

    back
    Оставляете заявку
    Вы заполняете форму на сайте или звоните нам. Менеджер Лайвкрафт связывается с вами для уточнения деталей: тип дома, площадь, материалы, участок строительства.
    back
    Консультация и подбор решения
    Наш специалист помогает выбрать оптимальный тип дома и конструкцию с учётом бюджета, сроков и целей — будь то дом для постоянного проживания или дача.
    back
    Расчёт предварительной стоимости
    Инженер делает первичный расчёт стоимости строительства по вашим параметрам: фундамент, коробка, кровля, отделка. Вы получаете смету с разбивкой по этапам.
    back
    Корректировка и утверждение сметы
    При необходимости вносим изменения — например, замену материалов или сокращение этапов. После согласования формируется окончательная фиксированная смета.
    back
    Заключение договора и старт работ
    После утверждения сметы заключаем официальный договор с гарантией. Вы получаете прозрачный график и точную стоимость — без скрытых расходов.

    Заказать конусльтацию по:Хайтек 155

    Фото 1 Хайтек 155


      Наши
      контакты

      Дмитров
      Опорный проезд 28Б
      (индустриальный парк Ниагара)
      9:00 до 18:00

      Корзина