4.9
Рейтинг на основании 120 отзывов
Дмитров
Опорный проезд 28Б
(индустриальный парк Ниагара)
Бренд "Дмитров-Дело" c 2008 года на рынке строительства в Дмитрове
Звоните 9:00 до 18:00 8 (915) 055-33-61
Бренд "Дмитров-Дело" c 2008 года на рынке строительства в Дмитрове

Хютте 116 — дом заводского изготовления (ПРЕФАБ)

Стоимость проекта от:
51 750 ₽
БЕСПЛАТНО! ПРИ ЗАКАЗЕ СТРОИТЕЛЬСТВА
Стоимость строительства от:
7 899 600 ₽
Артикул ART-15139
Дата 25.12.2025
Архитектурный стиль Скандинавский
Количество надземных этажей 2
Круглогодичное проживание Да
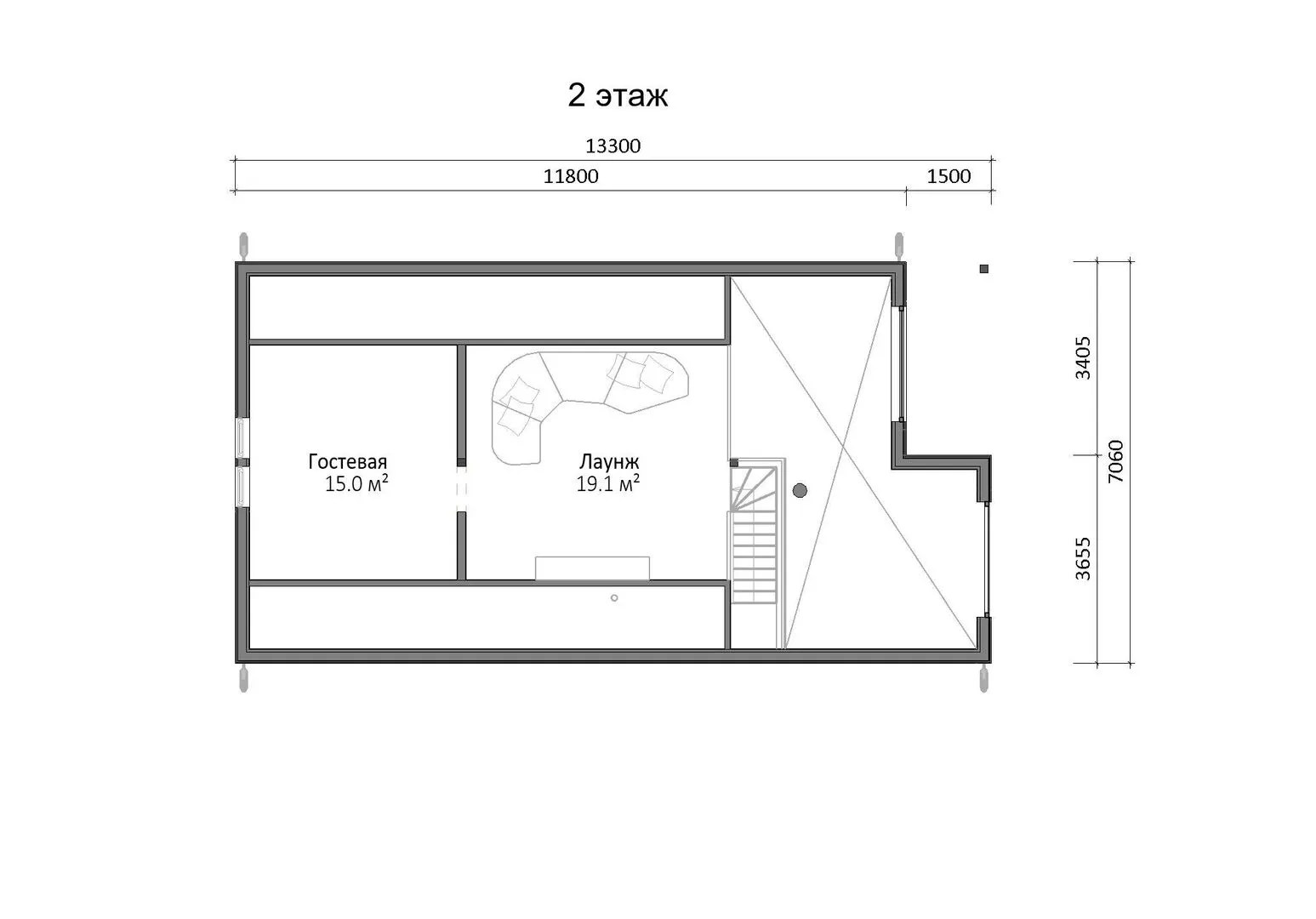
Площадь дома 115 м2
Санузлы 2
Спальни 3

Описание

Добро пожаловать в Хютте 116 – ваш новый дом, созданный из серийных панелей в скандинавском стиле. Эти два надземных этажа сочетают в себе простоту и утонченность: открытые планировки, большие окна, которые наполняют интерьер светом, и мягкие природные материалы, создающие ощущение уюта. Благодаря каркасно‑панельной технологии стены обеспечивают хорошую теплоизоляцию и шумопоглощение, а двускатная крыша придает фасаду строгую, но элегантную эрудицию. Хютте 116 готов к круглогодичному проживанию, а его функциональное разделение на два этажа позволяет организовать отдельное пространство для гостя, рабочего кабинета или детской комнаты. Даже без гаража и веранд — здесь предусмотрена просторная терраса, где можно устроить кулинарные эксперименты, просто наслаждаться свежим воздухом или устроить тихий вечер под звёздами. Каждый уголок дома продуман до мелочей: от естественного освещения до эргономичного размещения техники, чтобы ваш дом стал местом гармонии, где легко обнажить себя и восстановить силы. Заводское производство гарантирует точность сборки и соответствие всем стандартам качества, а покупка Хютте 116 означает выбор надежного партнёра в поиске вашего идеального убежища. Откройте для себя комфорт, простоту и скандинавскую эстетика – ваш новый дом уже ждет вас!

Характеристики дома

Архитектурный стиль
Автоматизированное регулирование параметров теплоносителя
Да
Балконы/лоджии
Отсутствуют
Чердачное помещение
Нет
Датчики протечки воды
Нет
Эксплуатируемая или зеленая кровля
Нет
Электроснабжение
2 варианта
Газоснабжение
Индивидуальное
Изоляция воздушного шума
Нет
Камин
Нет
Класс энергоэффективности
-
Класс энергосбережения
-
Количество надземных этажей
2
Круглогодичное проживание
Да
Материал кровли
Цементно-песчаная черепица
Материал перекрытий
Иной вид материалов перекрытий
Материал внешних стен
Материал внутренних перегородок
Деревянные
Модульное строительство с конструкциями заводского изготовления
Да
Объем надземной части
414 м3
Основной материал фасадов
Дерево
Отопление
Индивидуальное
Площадь дома
115 м2
Площадь застройки
95 м2
Подвальное помещение
Нет
Показатель компактности здания
-
Приборы учета тепловой энергии
Да
Пристроенный гараж/крытая автостоянка
Нет
Противопожарная система
Нет
Санузлы
2
Совмещенная кухня-гостиная
Да
Спальни
3
Терраса
Да
Тип фундамента
Плитный
Тип кровли
Толщина внешних стен
257 мм
Толщина внутренних перегородок
120 мм
Улучшенные шумовые характеристики
Да
Вентиляция
Естественная
Веранда
Нет
Водоотведение
2 варианта
Водоснабжение
2 варианта
Высота дома
5.55 м
Высота потолков
2.4 м

Планировка

Фасад дома

Александр

Закажите выезд инженера

Александр

Выездной инженер
Закажите выезд инженера для точной диагностики и профессиональной консультации по инженерным системам. Специалист приедет в удобное время, проведёт осмотр, рассчитает стоимость работ и подберёт оптимальные решения для вашего дома.


    Похожие проекты

    Ипотека и
    рассрочка
    «Белов»
    Стоимость от:
    5 865 300
    Проект от: 44 100
    Этажей 2
    Санузлы 1
    Спальни 4
    Смотреть
    Ипотека и
    рассрочка
    Загородный дом BS-117
    Стоимость от:
    9 990 860
    Проект от: 59 850
    Этажей 1
    Санузлы 2
    Спальни 3
    Смотреть
    Ипотека и
    рассрочка
    Дом из клееного бруса «Евпатория»
    Стоимость от:
    14 760 720
    Проект от: 102 600
    Этажей 2
    Санузлы 2
    Спальни 5
    Смотреть
    Ипотека и
    рассрочка
    Загородный дом «Комфорт-1»
    Стоимость от:
    5 939 780
    Проект от: 35 550
    Этажей 1
    Санузлы 1
    Спальни 2
    Смотреть
    Ипотека и
    рассрочка
    Одноэтажный дом Эрвин
    Стоимость от:
    4 887 190
    Проект от: 34 650
    Этажей 1
    Санузлы 1
    Спальни 3
    Смотреть
    Ипотека и
    рассрочка
    Каркасный дом Бордо 98
    Стоимость от:
    6 703 200
    Проект от: 50 400
    Этажей 2
    Санузлы 2
    Спальни 4
    Смотреть

    Как узнать стоимость дома

    back
    Оставляете заявку
    Вы заполняете форму на сайте или звоните нам. Менеджер Лайвкрафт связывается с вами для уточнения деталей: тип дома, площадь, материалы, участок строительства.
    back
    Консультация и подбор решения
    Наш специалист помогает выбрать оптимальный тип дома и конструкцию с учётом бюджета, сроков и целей — будь то дом для постоянного проживания или дача.
    back
    Расчёт предварительной стоимости
    Инженер делает первичный расчёт стоимости строительства по вашим параметрам: фундамент, коробка, кровля, отделка. Вы получаете смету с разбивкой по этапам.
    back
    Корректировка и утверждение сметы
    При необходимости вносим изменения — например, замену материалов или сокращение этапов. После согласования формируется окончательная фиксированная смета.
    back
    Заключение договора и старт работ
    После утверждения сметы заключаем официальный договор с гарантией. Вы получаете прозрачный график и точную стоимость — без скрытых расходов.

    Заказать конусльтацию по:Хютте 116 — дом заводского изготовления (ПРЕФАБ)

    Фото 1 Хютте 116 — дом заводского изготовления (ПРЕФАБ)


      Наши
      контакты

      Дмитров
      Опорный проезд 28Б
      (индустриальный парк Ниагара)
      9:00 до 18:00

      Корзина