4.9
Рейтинг на основании 120 отзывов
Дмитров
Опорный проезд 28Б
(индустриальный парк Ниагара)
Бренд "Дмитров-Дело" c 2008 года на рынке строительства в Дмитрове
Звоните 9:00 до 18:00 8 (915) 055-33-61
Бренд "Дмитров-Дело" c 2008 года на рынке строительства в Дмитрове

Загородный дом АС-251

Стоимость проекта от:
81 900 ₽
БЕСПЛАТНО! ПРИ ЗАКАЗЕ СТРОИТЕЛЬСТВА
Стоимость строительства от:
12 452 440 ₽
Артикул ART-17720
Дата 26.12.2025
Архитектурный стиль Хайтек
Количество надземных этажей 1
Круглогодичное проживание Да
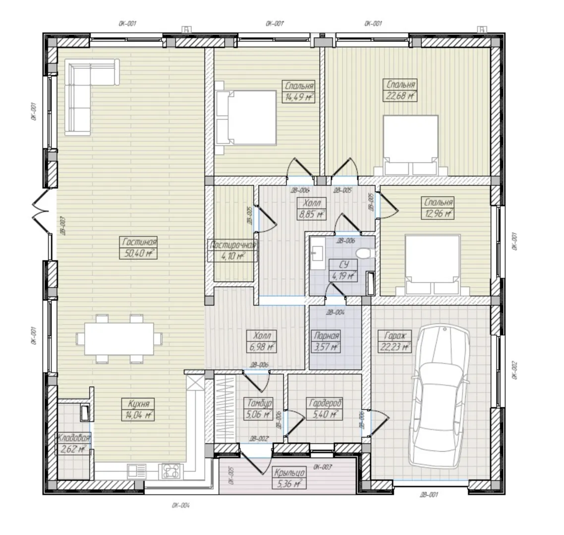
Площадь дома 182 м2
Санузлы 1
Спальни 3

Описание

Добро пожаловать в **Загородный дом АС‑251** – ваш идеальный уголок уединения и комфорта. Он сочетает в себе смелый хай‑тек стиль, строгие линии и современные технологии, создавая атмосферу роскоши без лишних хлопот. Один надземный этаж – это минимум лестниц и максимум открытого пространства, где каждый квадратный метр продуман до мелочей. Благодаря материалу внешних стен – газобетонным блокам – ваш дом будет тепло защищён от холодов и шумов, а плоская крыша обеспечит дополнительную гибкость в дизайне и использует свет как ресурс. Этот дом рассчитан на круглогодичное проживание: от солнечных летних дней до уютных зимних вечеров, которые наполнит ваш внутренний мир теплом и светом. Пристроенный гараж и крытая автостоянка сохраняют ваш автомобиль в защите от непогоды, а свободные от балконов и веранд пространство позволяет вам насладиться полной приватностью и спокойствием. Если вам хочется открыть окно, вы будете встречены мягким ветерком, который нежно проникает в гостиную, наполняя ее свежестью. Сделайте свой выбор в пользу функционального и эстетически привлекательного жилья. **АС‑251** – это не просто дом, а стиль жизни, где современность встречается с традиционными ценностями безопасности и уюта. Позвольте себе шагнуть внутрь, и почувствуйте, как технология и комфорт живут в гармонии, создавая ваш новый жизненный простор.

Характеристики дома

Архитектурный стиль
Автоматизированное регулирование параметров теплоносителя
Нет
Балконы/лоджии
Отсутствуют
Чердачное помещение
Нет
Датчики протечки воды
Нет
Эксплуатируемая или зеленая кровля
Нет
Электроснабжение
Центральное
Газоснабжение
Индивидуальное
Изоляция воздушного шума
Нет
Камин
Нет
Класс энергоэффективности
-
Класс энергосбережения
-
Количество надземных этажей
1
Круглогодичное проживание
Да
Материал кровли
Рулонные битумно-полимерные покрытия
Материал перекрытий
Монолитные железобетонные
Материал внешних стен
Материал внутренних перегородок
Блочные
Модульное строительство с конструкциями заводского изготовления
Нет
Объем надземной части
703 м3
Основной материал фасадов
Фасадная плитка
Отопление
Индивидуальное
Площадь дома
182 м2
Площадь застройки
225 м2
Подвальное помещение
Нет
Показатель компактности здания
-
Приборы учета тепловой энергии
Нет
Пристроенный гараж/крытая автостоянка
Да
Противопожарная система
Нет
Санузлы
1
Совмещенная кухня-гостиная
Да
Спальни
3
Терраса
Нет
Тип фундамента
Плитный
Тип кровли
Толщина внешних стен
300 мм
Толщина внутренних перегородок
150 мм
Улучшенные шумовые характеристики
Нет
Вентиляция
Естественная
Веранда
Нет
Водоотведение
Локальные очистные сооружения
Водоснабжение
Центральное
Высота дома
4.9 м
Высота потолков
3 м

Планировка

Фасад дома

Александр

Закажите выезд инженера

Александр

Выездной инженер
Закажите выезд инженера для точной диагностики и профессиональной консультации по инженерным системам. Специалист приедет в удобное время, проведёт осмотр, рассчитает стоимость работ и подберёт оптимальные решения для вашего дома.


    Похожие проекты

    Ипотека и
    рассрочка
    Двухэтажный дом из газобетона «БС-173»
    Стоимость от:
    6 020 640
    Проект от: 38 700
    Этажей 2
    Санузлы 2
    Спальни 3
    Смотреть
    Ипотека и
    рассрочка
    Адаль 80
    Стоимость от:
    4 797 815
    Проект от: 37 350
    Этажей 1
    Санузлы 1
    Спальни 2
    Смотреть
    Ипотека и
    рассрочка
    Особняк в стиле хайтек с плоской крышей S3-159-4 (ZX101)
    Стоимость от:
    12 295 580
    Проект от: 71 550
    Этажей 1
    Санузлы 3
    Спальни 4
    Смотреть
    Ипотека и
    рассрочка
    Одноэтажный дом «Ким» 83.14м2
    Стоимость от:
    5 473 600
    Проект от: 36 000
    Этажей 1
    Санузлы 2
    Спальни 3
    Смотреть
    Ипотека и
    рассрочка
    Альпийский
    Стоимость от:
    12 043 800
    Проект от: 92 250
    Этажей 2
    Санузлы 2
    Спальни 4
    Смотреть
    Ипотека и
    рассрочка
    Мансардный дом Б-125
    Стоимость от:
    8 311 440
    Проект от: 54 450
    Этажей 2
    Санузлы 2
    Спальни 4
    Смотреть

    Как узнать стоимость дома

    back
    Оставляете заявку
    Вы заполняете форму на сайте или звоните нам. Менеджер Лайвкрафт связывается с вами для уточнения деталей: тип дома, площадь, материалы, участок строительства.
    back
    Консультация и подбор решения
    Наш специалист помогает выбрать оптимальный тип дома и конструкцию с учётом бюджета, сроков и целей — будь то дом для постоянного проживания или дача.
    back
    Расчёт предварительной стоимости
    Инженер делает первичный расчёт стоимости строительства по вашим параметрам: фундамент, коробка, кровля, отделка. Вы получаете смету с разбивкой по этапам.
    back
    Корректировка и утверждение сметы
    При необходимости вносим изменения — например, замену материалов или сокращение этапов. После согласования формируется окончательная фиксированная смета.
    back
    Заключение договора и старт работ
    После утверждения сметы заключаем официальный договор с гарантией. Вы получаете прозрачный график и точную стоимость — без скрытых расходов.

    Заказать конусльтацию по:Загородный дом АС-251

    Фото 1 Загородный дом АС-251


      Наши
      контакты

      Дмитров
      Опорный проезд 28Б
      (индустриальный парк Ниагара)
      9:00 до 18:00

      Корзина