4.9
Рейтинг на основании 120 отзывов
Дмитров
Опорный проезд 28Б
(индустриальный парк Ниагара)
Бренд "Дмитров-Дело" c 2008 года на рынке строительства в Дмитрове
Звоните 9:00 до 18:00 8 (915) 055-33-61
Бренд "Дмитров-Дело" c 2008 года на рынке строительства в Дмитрове

Аристократ

Стоимость проекта от:
56 250 ₽
Стоимость строительства от:
8 737 200 ₽
Артикул ART-12322
Дата 25.12.2025
Архитектурный стиль Классический
Количество надземных этажей 2
Круглогодичное проживание Да
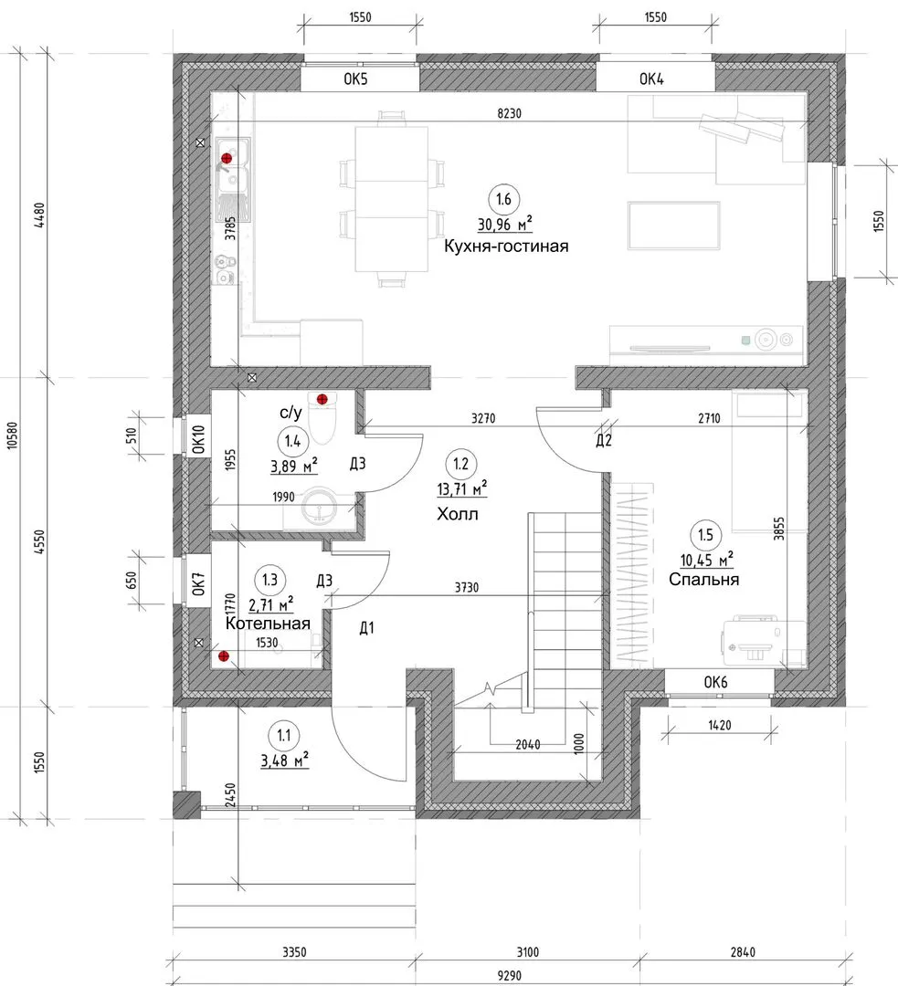
Площадь дома 125 м2
Санузлы 2
Спальни 4

Описание

Приятие роскоши в каждом уголке: этот величественный двухэтажный дом в классическом стиле воплощает в себе истинную аристократическую элегантность. Изящные линии фасада, выполненные из керамзитобетонных блоков, создают ощущение прочности и уюта, в то время как строгий, но благородный четырёхскатный (валмовой) крыша, укрывающий просторные помещения, добавляет архитектуре особую грандиозность. Внутреннее пространство безгранично раскрывается: широкий светлый вход, огромные панорамные окна, которые впускают дневной свет, и просторная гостиная, идеально подходящая для ужинов с друзьями и семейных торжеств. Выбирая этот дом, вы получаете не просто жильё, а полноценное место для круглый-дневного проживания, где каждая деталь продумана для комфорта и удобства. Подвесные потолки, качественная отделка, высокие полы и изящные декоративные элементы делают каждый день настоящим праздником. Даже отсутствие пристроенного гаража не мешает наслаждаться удобной круглогодичной парковкой за пределами дома. И, наконец, настоящий рай для любителей уединения: крытое чердачное помещение превращает обычное пространство в многофункциональное убежище — будь то домашний кинотеатр, домашний офис или уголок творчества. Этот дом – идеальный выбор для тех, кто ценит классику, величие и неподдельный комфорт, и хочет жить в месте, где каждый день начинается и заканчивается в гармонии с классической эстетикой и современным комфортом.

Характеристики дома

Архитектурный стиль
Классический
Автоматизированное регулирование параметров теплоносителя
Нет
Балконы/лоджии
Отсутствуют
Чердачное помещение
Да
Датчики протечки воды
Нет
Эксплуатируемая или зеленая кровля
Нет
Электроснабжение
Центральное
Газоснабжение
Не предусмотрено
Изоляция воздушного шума
Да
Камин
Нет
Класс энергоэффективности
-
Класс энергосбережения
-
Количество надземных этажей
2
Круглогодичное проживание
Да
Материал кровли
Металлочерепица
Материал перекрытий
Монолитные железобетонные
Материал внешних стен
Керамзитобетонные блоки
Материал внутренних перегородок
Блочные
Модульное строительство с конструкциями заводского изготовления
Нет
Объем надземной части
160 м3
Основной материал фасадов
Облицовочный кирпич
Отопление
Индивидуальное
Площадь дома
125 м2
Площадь застройки
100 м2
Подвальное помещение
Нет
Показатель компактности здания
-
Приборы учета тепловой энергии
Нет
Пристроенный гараж/крытая автостоянка
Нет
Противопожарная система
Нет
Санузлы
2
Совмещенная кухня-гостиная
Да
Спальни
4
Терраса
Нет
Тип фундамента
Плитный
Тип кровли
Четырехскатная (вальмовая)
Толщина внешних стен
300 мм
Толщина внутренних перегородок
100 мм
Улучшенные шумовые характеристики
Да
Вентиляция
Принудительная
Веранда
Нет
Водоотведение
Локальные очистные сооружения
Водоснабжение
Индивидуальное
Высота дома
9 м
Высота потолков
3 м

Планировка

Фасад дома

Александр

Закажите выезд инженера

Александр

Выездной инженер
Закажите выезд инженера для точной диагностики и профессиональной консультации по инженерным системам. Специалист приедет в удобное время, проведёт осмотр, рассчитает стоимость работ и подберёт оптимальные решения для вашего дома.


    Похожие проекты

    Ипотека и
    рассрочка
    Индивидуальный дом 160 КП Вартемяги ONE
    Стоимость от:
    11 391 120
    Проект от: 73 350
    Этажей 2
    Санузлы 2
    Спальни 4
    Смотреть
    Ипотека и
    рассрочка
    Индивидуальный жилой дом 764-06-05/22-АР
    Стоимость от:
    5 991 920
    Проект от: 38 700
    Этажей 1
    Санузлы 1
    Спальни 3
    Смотреть
    Ипотека и
    рассрочка
    Загородный дом МОНЕ 75
    Стоимость от:
    4 595 250
    Проект от: 33 750
    Этажей 1
    Санузлы 1
    Спальни 2
    Смотреть
    Ипотека и
    рассрочка
    Астерия К85-1 (Каркасный дом)
    Стоимость от:
    4 927 450
    Проект от: 38 250
    Этажей 1
    Санузлы 1
    Спальни 2
    Смотреть
    Ипотека и
    рассрочка
    Загородны дом «Карелия 79»
    Стоимость от:
    3 596 400
    Проект от: 27 000
    Этажей 2
    Санузлы 1
    Спальни 2
    Смотреть
    Ипотека и
    рассрочка
    Загородный дом-182
    Стоимость от:
    12 852 840
    Проект от: 81 900
    Этажей 1
    Санузлы 2
    Спальни 4
    Смотреть

    Как узнать стоимость дома

    back
    Оставляете заявку
    Вы заполняете форму на сайте или звоните нам. Менеджер Лайвкрафт связывается с вами для уточнения деталей: тип дома, площадь, материалы, участок строительства.
    back
    Консультация и подбор решения
    Наш специалист помогает выбрать оптимальный тип дома и конструкцию с учётом бюджета, сроков и целей — будь то дом для постоянного проживания или дача.
    back
    Расчёт предварительной стоимости
    Инженер делает первичный расчёт стоимости строительства по вашим параметрам: фундамент, коробка, кровля, отделка. Вы получаете смету с разбивкой по этапам.
    back
    Корректировка и утверждение сметы
    При необходимости вносим изменения — например, замену материалов или сокращение этапов. После согласования формируется окончательная фиксированная смета.
    back
    Заключение договора и старт работ
    После утверждения сметы заключаем официальный договор с гарантией. Вы получаете прозрачный график и точную стоимость — без скрытых расходов.

    Заказать конусльтацию по:Аристократ

    Фото 1 Аристократ


      Наши
      контакты

      Дмитров
      Опорный проезд 28Б
      (индустриальный парк Ниагара)
      9:00 до 18:00