4.9
Рейтинг на основании 120 отзывов
Дмитров
Опорный проезд 28Б
(индустриальный парк Ниагара)
Бренд "Дмитров-Дело" c 2008 года на рынке строительства в Дмитрове
Звоните 9:00 до 18:00 8 (915) 055-33-61
Бренд "Дмитров-Дело" c 2008 года на рынке строительства в Дмитрове

Кирпичный дом Чебоксары

Стоимость проекта от:
36 450 ₽
БЕСПЛАТНО! ПРИ ЗАКАЗЕ СТРОИТЕЛЬСТВА
Стоимость строительства от:
6 089 820 ₽
Артикул ART-18706
Дата 26.12.2025
Архитектурный стиль Классический
Количество надземных этажей 1
Круглогодичное проживание Да
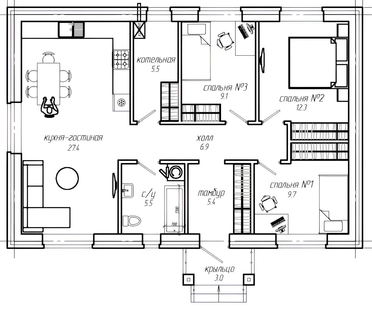
Площадь дома 81 м2
Санузлы 1
Спальни 3

Описание

**Кирпичный дом в Чебоксарах — эко‑уютный уголок для круглогодичного проживания** Слово «уют» в сочетании с кирпичом и классическим дизайном почти в шесть раз усиливается. Этот одиннадцатый этаж, но в реальности — открытая, тёплая единственная площадка с четырёхскатной вальмовой кровлей, подарит вам ощущение защищённости и уюта в любое время года. Благо, что в его стенах зафиксирована прочность и надёжность: кирпич, который веками доказал свою стойкость. Дом создан в стиле классицизма, но при этом сохраняет простоту и современный уровень комфорта. Внутри удобно распределяются зоны: открытая кухня, светлый зал, небольшая спальня и зона отдыха — все в одном этаже, без лишнего хаоса лестниц и разнесённых подъездов. По плану отсутствуют балконы, веранда, чердачное помещение и гараж, но именно это делает квартиру более спокойной и тихой: ваш «дом» сосредоточен на простоте, без лишних деталей и шумных коммуникаций. Месторасположение в Чебоксарах открывает всё самое удобное: близость к центру, зеленые зоны, школы, магазины, а также транспортные артерии, которые связывают город с остальными регионами. Вы будете ощущать баланс между спокойствием, историей и современной жизнью. Это место, где можно создать свою сказку, а цена, в которой укладывается классический стиль, позволяет инвестировать в собственную мечту без лишних затрат. С нами ваш поиск становится реальностью, а дом — вашим уютным островком в ритме мегаполиса.

Характеристики дома

Архитектурный стиль
Автоматизированное регулирование параметров теплоносителя
Нет
Балконы/лоджии
Отсутствуют
Чердачное помещение
Нет
Датчики протечки воды
Нет
Эксплуатируемая или зеленая кровля
Нет
Электроснабжение
Центральное
Газоснабжение
2 варианта
Изоляция воздушного шума
Нет
Камин
Нет
Класс энергоэффективности
-
Класс энергосбережения
-
Количество надземных этажей
1
Круглогодичное проживание
Да
Материал кровли
Металлочерепица
Материал перекрытий
Монолитные железобетонные
Материал внешних стен
Материал внутренних перегородок
Кирпичные
Модульное строительство с конструкциями заводского изготовления
Нет
Объем надземной части
353 м3
Основной материал фасадов
Облицовочный кирпич
Отопление
Индивидуальное
Площадь дома
81 м2
Площадь застройки
109 м2
Подвальное помещение
Нет
Показатель компактности здания
-
Приборы учета тепловой энергии
Нет
Пристроенный гараж/крытая автостоянка
Нет
Противопожарная система
Нет
Санузлы
1
Совмещенная кухня-гостиная
Да
Спальни
3
Терраса
Нет
Тип фундамента
Свайно-ростверковый
Толщина внешних стен
500 мм
Толщина внутренних перегородок
120 мм
Улучшенные шумовые характеристики
Нет
Вентиляция
Естественная
Веранда
Нет
Водоотведение
2 варианта
Водоснабжение
2 варианта
Высота дома
5.37 м
Высота потолков
3 м

Планировка

Фасад дома

Александр

Закажите выезд инженера

Александр

Выездной инженер
Закажите выезд инженера для точной диагностики и профессиональной консультации по инженерным системам. Специалист приедет в удобное время, проведёт осмотр, рассчитает стоимость работ и подберёт оптимальные решения для вашего дома.


    Похожие проекты

    Ипотека и
    рассрочка
    IDEA 99
    Стоимость от:
    5 712 300
    Проект от: 40 500
    Этажей 1
    Санузлы 1
    Спальни 3
    Смотреть
    Ипотека и
    рассрочка
    Одноэтажный загородный дом серии JARDIN 54
    Стоимость от:
    4 237 200
    Проект от: 27 000
    Этажей 1
    Санузлы 1
    Спальни 2
    Смотреть
    Ипотека и
    рассрочка
    П-107 Comfort
    Стоимость от:
    7 868 300
    Проект от: 51 750
    Этажей 1
    Санузлы 2
    Спальни 3
    Смотреть
    Ипотека и
    рассрочка
    Одноэтажный дом с террасой «Репное-2»
    Стоимость от:
    7 425 990
    Проект от: 52 650
    Этажей 1
    Санузлы 1
    Спальни 3
    Смотреть
    Ипотека и
    рассрочка
    Проект Каменный одноэтажный дом с террасой «Комфорт-121»
    Стоимость от:
    7 936 720
    Проект от: 52 200
    Этажей 1
    Санузлы 2
    Спальни 3
    Смотреть
    Ипотека и
    рассрочка
    Воиттоа
    Стоимость от:
    5 438 345
    Проект от: 40 050
    Этажей 1
    Санузлы 1
    Спальни 2
    Смотреть

    Как узнать стоимость дома

    back
    Оставляете заявку
    Вы заполняете форму на сайте или звоните нам. Менеджер Лайвкрафт связывается с вами для уточнения деталей: тип дома, площадь, материалы, участок строительства.
    back
    Консультация и подбор решения
    Наш специалист помогает выбрать оптимальный тип дома и конструкцию с учётом бюджета, сроков и целей — будь то дом для постоянного проживания или дача.
    back
    Расчёт предварительной стоимости
    Инженер делает первичный расчёт стоимости строительства по вашим параметрам: фундамент, коробка, кровля, отделка. Вы получаете смету с разбивкой по этапам.
    back
    Корректировка и утверждение сметы
    При необходимости вносим изменения — например, замену материалов или сокращение этапов. После согласования формируется окончательная фиксированная смета.
    back
    Заключение договора и старт работ
    После утверждения сметы заключаем официальный договор с гарантией. Вы получаете прозрачный график и точную стоимость — без скрытых расходов.

    Заказать конусльтацию по:Кирпичный дом Чебоксары

    Фото 1 Кирпичный дом Чебоксары


      Наши
      контакты

      Дмитров
      Опорный проезд 28Б
      (индустриальный парк Ниагара)
      9:00 до 18:00

      Корзина