4.9
Рейтинг на основании 120 отзывов
Дмитров
Опорный проезд 28Б
(индустриальный парк Ниагара)
Бренд "Дмитров-Дело" c 2008 года на рынке строительства в Дмитрове
Звоните 9:00 до 18:00 8 (915) 055-33-61
Бренд "Дмитров-Дело" c 2008 года на рынке строительства в Дмитрове

Кирпичный дом Псков

Стоимость проекта от:
52 650 ₽
БЕСПЛАТНО! ПРИ ЗАКАЗЕ СТРОИТЕЛЬСТВА
Стоимость строительства от:
8 790 540 ₽
Артикул ART-1376
Дата 25.12.2025
Архитектурный стиль Европейский
Количество надземных этажей 1
Круглогодичное проживание Да
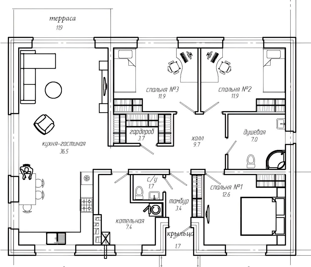
Площадь дома 117 м2
Санузлы 2
Спальни 3

Описание

Добро пожаловать в уютный кирпичный дом в самом сердце Псковской губернии – настоящий уголок европейской элегантности, созданный для комфортной жизни круглый год. Этот одноэтажный шедевр сочетает в себе традиционный стиль с современным функционалом. Стены выполнены из крепких керамических блоков, что обеспечивает надежную защиту от суровых зимних холодов и нежный теплоноситель для теплых летних дней. Четырёхскатная (вальмовая) крыша дополняет гармоничный облик фасада, создавая классическую европейскую композицию. Внутреннее пространство пропитано светом и теплом. Здесь вы найдёте просторные комнаты, удобные зоны для отдыха и работы, а также практичные детали, которые делают жизнь максимально комфортной: от уютной гостиной с камином до уютной спальни с великолепным видом на город. Большая терраса наружней части дома превращает ваш двоеклеточный «домик» в настоящий оазис, где можно наслаждаться рассветами, вечерними прогулками и свежим воздухом в любое время года. В доме нет балконов, лоджий, веранд, гаражей и чердаков, но именно эта лаконичность и чистота делают его простым и понятным, а при этом не лишённым шарма. Этот кирпичный дом – идеальный выбор для тех, кто ценит традиционное качество, европейский дизайн и желание жить в гармонии с природой. Приглашаем оценить его уют и убедиться, что здесь каждая деталь задумывалась с любовью к комфорту. Оставьте заявку сейчас и откройте для себя своё новое место для жизни.

Характеристики дома

Архитектурный стиль
Автоматизированное регулирование параметров теплоносителя
Нет
Балконы/лоджии
Отсутствуют
Чердачное помещение
Нет
Датчики протечки воды
Нет
Эксплуатируемая или зеленая кровля
Нет
Электроснабжение
Центральное
Газоснабжение
Центральное
Изоляция воздушного шума
Нет
Камин
Нет
Класс энергоэффективности
-
Класс энергосбережения
-
Количество надземных этажей
1
Круглогодичное проживание
Да
Материал кровли
Металлочерепица
Материал перекрытий
Монолитные железобетонные
Материал внешних стен
Материал внутренних перегородок
Кирпичные
Модульное строительство с конструкциями заводского изготовления
Нет
Объем надземной части
749 м3
Основной материал фасадов
Облицовочный кирпич
Отопление
Индивидуальное
Площадь дома
117 м2
Площадь застройки
140 м2
Подвальное помещение
Нет
Показатель компактности здания
-
Приборы учета тепловой энергии
Нет
Пристроенный гараж/крытая автостоянка
Нет
Противопожарная система
Нет
Санузлы
2
Совмещенная кухня-гостиная
Да
Спальни
3
Терраса
Да
Тип фундамента
Свайно-ростверковый
Толщина внешних стен
500 мм
Толщина внутренних перегородок
120 мм
Улучшенные шумовые характеристики
Нет
Вентиляция
Естественная
Веранда
Нет
Водоотведение
2 варианта
Водоснабжение
2 варианта
Высота дома
6.49 м
Высота потолков
3 м

Планировка

Фасад дома

Александр

Закажите выезд инженера

Александр

Выездной инженер
Закажите выезд инженера для точной диагностики и профессиональной консультации по инженерным системам. Специалист приедет в удобное время, проведёт осмотр, рассчитает стоимость работ и подберёт оптимальные решения для вашего дома.


    Похожие проекты

    Ипотека и
    рассрочка
    Ермак
    Стоимость от:
    8 615 640
    Проект от: 54 900
    Этажей 1
    Санузлы 1
    Спальни 3
    Смотреть
    Ипотека и
    рассрочка
    Одноэтажный каркасный дом 12х10м
    Стоимость от:
    5 607 085
    Проект от: 43 650
    Этажей 1
    Санузлы 2
    Спальни 3
    Смотреть
    Ипотека и
    рассрочка
    Загородный дом » Клен 3″
    Стоимость от:
    6 113 880
    Проект от: 45 900
    Этажей 2
    Санузлы 2
    Спальни 4
    Смотреть
    Ипотека и
    рассрочка
    D104
    Стоимость от:
    8 340 420
    Проект от: 49 950
    Этажей 1
    Санузлы 2
    Спальни 3
    Смотреть
    Ипотека и
    рассрочка
    Одноэтажный дом «Кастела 2.0»
    Стоимость от:
    5 296 500
    Проект от: 33 750
    Этажей 1
    Санузлы 1
    Спальни 2
    Смотреть
    Ипотека и
    рассрочка
    Одноэтажная гармония пространства
    Стоимость от:
    9 901 760
    Проект от: 57 600
    Этажей 1
    Санузлы 1
    Спальни 2
    Смотреть

    Как узнать стоимость дома

    back
    Оставляете заявку
    Вы заполняете форму на сайте или звоните нам. Менеджер Лайвкрафт связывается с вами для уточнения деталей: тип дома, площадь, материалы, участок строительства.
    back
    Консультация и подбор решения
    Наш специалист помогает выбрать оптимальный тип дома и конструкцию с учётом бюджета, сроков и целей — будь то дом для постоянного проживания или дача.
    back
    Расчёт предварительной стоимости
    Инженер делает первичный расчёт стоимости строительства по вашим параметрам: фундамент, коробка, кровля, отделка. Вы получаете смету с разбивкой по этапам.
    back
    Корректировка и утверждение сметы
    При необходимости вносим изменения — например, замену материалов или сокращение этапов. После согласования формируется окончательная фиксированная смета.
    back
    Заключение договора и старт работ
    После утверждения сметы заключаем официальный договор с гарантией. Вы получаете прозрачный график и точную стоимость — без скрытых расходов.

    Заказать конусльтацию по:Кирпичный дом Псков

    Фото 1 Кирпичный дом Псков


      Наши
      контакты

      Дмитров
      Опорный проезд 28Б
      (индустриальный парк Ниагара)
      9:00 до 18:00

      Корзина