4.9
Рейтинг на основании 120 отзывов
Дмитров
Опорный проезд 28Б
(индустриальный парк Ниагара)
Бренд "Дмитров-Дело" c 2008 года на рынке строительства в Дмитрове
Звоните 9:00 до 18:00 8 (915) 055-33-61
Бренд "Дмитров-Дело" c 2008 года на рынке строительства в Дмитрове

Кирпичный дом Симферополь

Стоимость проекта от:
33 300 ₽
Стоимость строительства от:
5 564 680 ₽
Артикул ART-10614
Дата 25.12.2025
Архитектурный стиль Классический
Количество надземных этажей 1
Круглогодичное проживание Да
Площадь дома 74 м2
Санузлы 1
Спальни 2

Описание

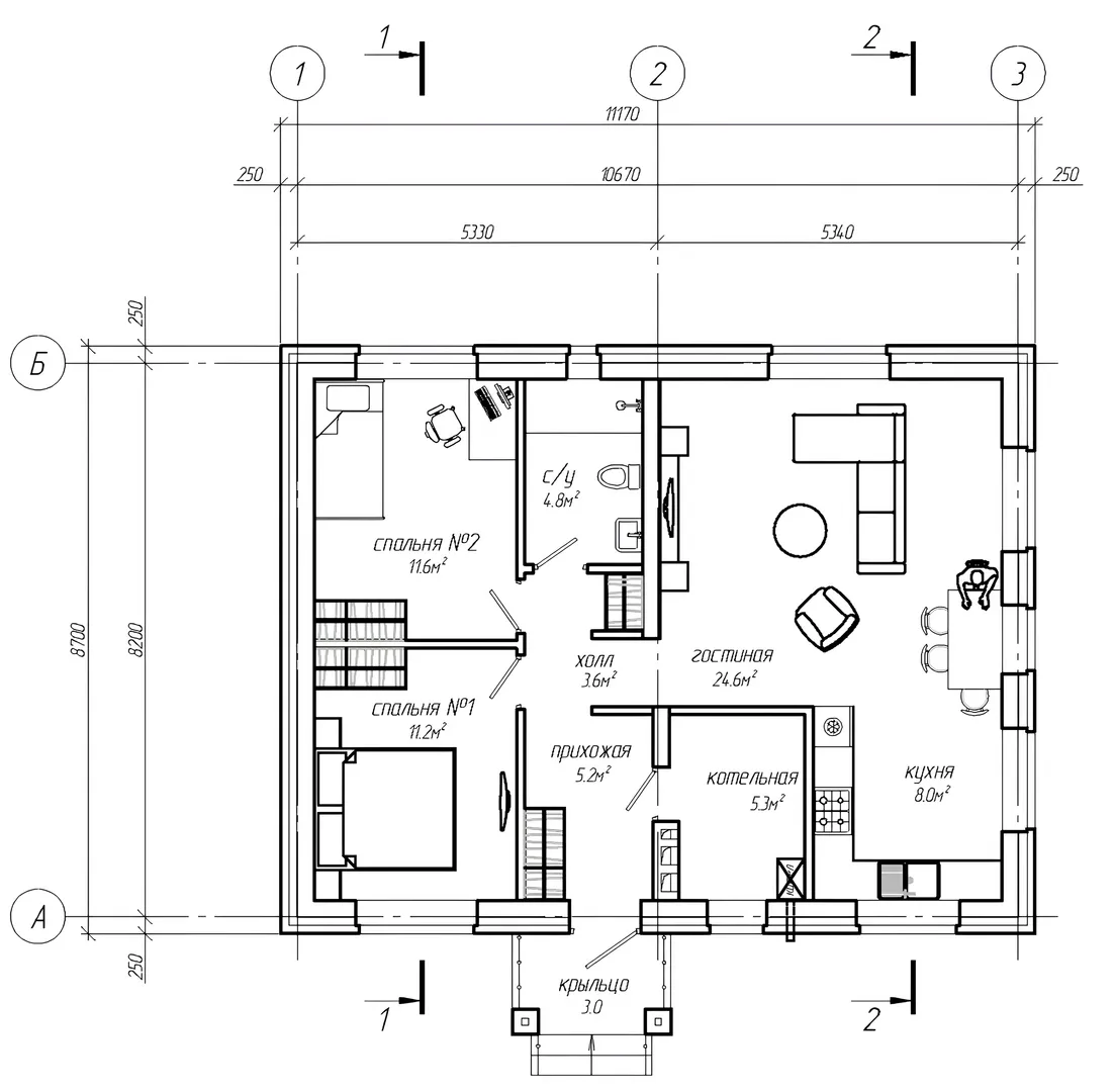
Потому что в сердце Симферополя каждый уголок дышит историей, а наш кирпичный бунгало – это гармоничное сочетание вековых традиций и современных удобств. В его одном надземном этаже уже спрятаны всё необходимые пространства: просторный подъезд, уютные гостиная и спальня, удобная кухня и ванной комната, каждая из которых оформлена в рамках классического стиля и наполнена теплом. Благодаря прочной кладке из кирпича и устойчивой четырёхскатной (валмовой) крыше дом сохраняет тепло и защищает от ветра в любой пору года, приглашая к круглогодичному проживанию без лишних хлопот. Самой привлекательной особенностью этого дома является его интимность: здесь нет балконов, лоджий, веранд, гаражей и террас, а значит вы можете полностью сконцентрироваться на внутреннем уединении и уюте. Кирпичная кладка придает внешнему виду строгую элегантность, а изящные изгибы крыши добавляют романтику классическому фасаду – словно небольшое произведение искусства в середине динамичного города. Это место, где каждый сможет почувствовать себя дома, оберегая традиции и создавая новые воспоминания. Расположенный в живописном районе Симферополя, дом находится в шаговой доступности от магазинов, школ и парков, а прогулки по тихим улочкам превратятся в настоящее удовольствие. Если вы ищете место, где история встречается с комфортом, где простота – это искусство, – то этот кирпичный шедевр точно для вас. Приглашаем вас увидеть его своими глазами и убедиться, что уют – это не только слово, а образ жизни, который можно купить за вашими ключами.

Характеристики дома

Архитектурный стиль
Классический
Автоматизированное регулирование параметров теплоносителя
Нет
Балконы/лоджии
Отсутствуют
Чердачное помещение
Нет
Датчики протечки воды
Нет
Эксплуатируемая или зеленая кровля
Нет
Электроснабжение
2 варианта
Газоснабжение
2 варианта
Изоляция воздушного шума
Нет
Камин
Нет
Класс энергоэффективности
-
Класс энергосбережения
-
Количество надземных этажей
1
Круглогодичное проживание
Да
Материал кровли
Металлочерепица
Материал перекрытий
Монолитные железобетонные
Материал внешних стен
Кирпич
Материал внутренних перегородок
Кирпичные
Модульное строительство с конструкциями заводского изготовления
Нет
Объем надземной части
329 м3
Основной материал фасадов
Облицовочный кирпич
Отопление
2 варианта
Площадь дома
74 м2
Площадь застройки
101 м2
Подвальное помещение
Нет
Показатель компактности здания
-
Приборы учета тепловой энергии
Нет
Пристроенный гараж/крытая автостоянка
Нет
Противопожарная система
Нет
Санузлы
1
Совмещенная кухня-гостиная
Да
Спальни
2
Терраса
Нет
Тип фундамента
Свайно-ростверковый
Тип кровли
Четырехскатная (вальмовая)
Толщина внешних стен
500 мм
Толщина внутренних перегородок
250 мм
Улучшенные шумовые характеристики
Нет
Вентиляция
Естественная
Веранда
Нет
Водоотведение
2 варианта
Водоснабжение
2 варианта
Высота дома
5.17 м
Высота потолков
3 м

Планировка

Фасад дома

Александр

Закажите выезд инженера

Александр

Выездной инженер
Закажите выезд инженера для точной диагностики и профессиональной консультации по инженерным системам. Специалист приедет в удобное время, проведёт осмотр, рассчитает стоимость работ и подберёт оптимальные решения для вашего дома.


    Похожие проекты

    Ипотека и
    рассрочка
    Двухэтажный ЦМС Измайловский
    Стоимость от:
    11 733 120
    Проект от: 75 600
    Этажей 2
    Санузлы 3
    Спальни 4
    Смотреть
    Ипотека и
    рассрочка
    Мадрид
    Стоимость от:
    3 883 990
    Проект от: 30 150
    Этажей 1
    Санузлы 1
    Спальни 2
    Смотреть
    Ипотека и
    рассрочка
    Двухэтажный загородный дом с отделкой под дерово
    Стоимость от:
    10 209 840
    Проект от: 63 450
    Этажей 2
    Санузлы 2
    Спальни 3
    Смотреть
    Ипотека и
    рассрочка
    Одноэтажный дом ПГ — 5
    Стоимость от:
    6 314 880
    Проект от: 37 800
    Этажей 1
    Санузлы 2
    Спальни 2
    Смотреть
    Ипотека и
    рассрочка
    Одноэтажный дом «Верона» 75м2
    Стоимость от:
    5 639 700
    Проект от: 33 750
    Этажей 1
    Санузлы 1
    Спальни 3
    Смотреть
    Ипотека и
    рассрочка
    Одноэтажный П-105
    Стоимость от:
    7 203 240
    Проект от: 45 900
    Этажей 1
    Санузлы 2
    Спальни 3
    Смотреть

    Как узнать стоимость дома

    back
    Оставляете заявку
    Вы заполняете форму на сайте или звоните нам. Менеджер Лайвкрафт связывается с вами для уточнения деталей: тип дома, площадь, материалы, участок строительства.
    back
    Консультация и подбор решения
    Наш специалист помогает выбрать оптимальный тип дома и конструкцию с учётом бюджета, сроков и целей — будь то дом для постоянного проживания или дача.
    back
    Расчёт предварительной стоимости
    Инженер делает первичный расчёт стоимости строительства по вашим параметрам: фундамент, коробка, кровля, отделка. Вы получаете смету с разбивкой по этапам.
    back
    Корректировка и утверждение сметы
    При необходимости вносим изменения — например, замену материалов или сокращение этапов. После согласования формируется окончательная фиксированная смета.
    back
    Заключение договора и старт работ
    После утверждения сметы заключаем официальный договор с гарантией. Вы получаете прозрачный график и точную стоимость — без скрытых расходов.

    Заказать конусльтацию по:Кирпичный дом Симферополь

    Фото 1 Кирпичный дом Симферополь


      Наши
      контакты

      Дмитров
      Опорный проезд 28Б
      (индустриальный парк Ниагара)
      9:00 до 18:00

      Корзина