4.9
Рейтинг на основании 120 отзывов
Дмитров
Опорный проезд 28Б
(индустриальный парк Ниагара)
Бренд "Дмитров-Дело" c 2008 года на рынке строительства в Дмитрове
Звоните 9:00 до 18:00 8 (915) 055-33-61
Бренд "Дмитров-Дело" c 2008 года на рынке строительства в Дмитрове

Рождественское 101Н

Стоимость проекта от:
45 000 ₽
БЕСПЛАТНО! ПРИ ЗАКАЗЕ СТРОИТЕЛЬСТВА
Стоимость строительства от:
6 842 000 ₽
Артикул ART-12882
Дата 25.12.2025
Архитектурный стиль Европейский
Количество надземных этажей 1
Круглогодичное проживание Да
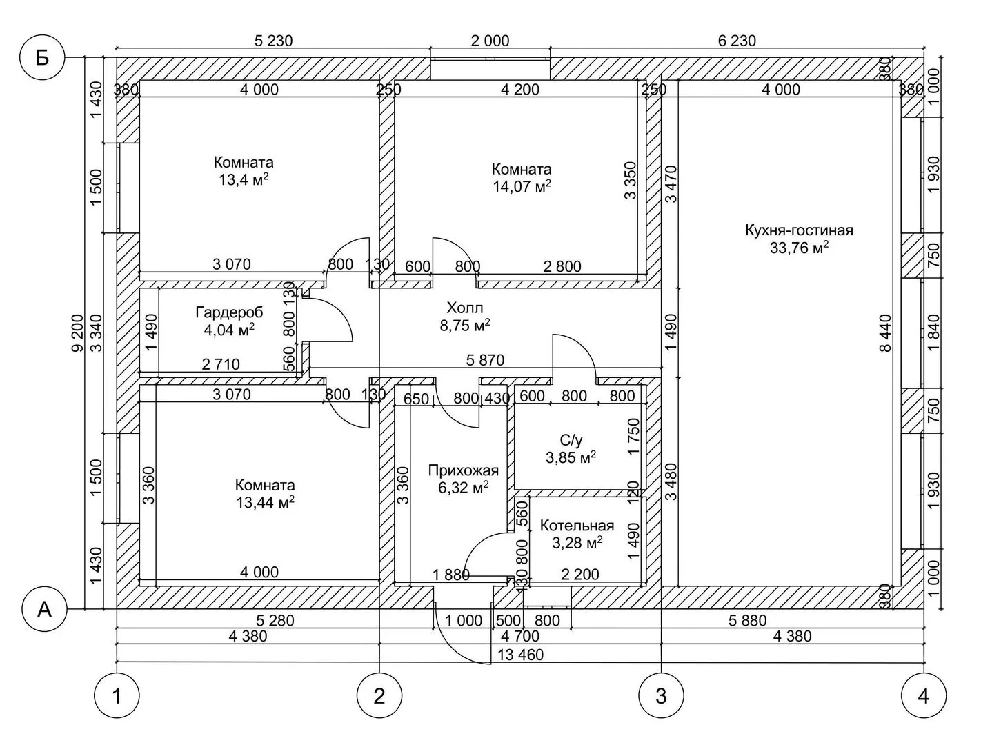
Площадь дома 100 м2
Санузлы 1
Спальни 3

Описание

Приглашаем вас открыть для себя уютный уголок в самом сердце европейского ландшафта — дом «Рождественское 101Н». Это одноэтажное жильё, которое дарит ощущение домашнего уюта в любое время года: от первых ярких лучей весны до теплых обилий осени. Архитектурный стиль, вдохновлённый классикой европейского дизайна, сохраняет элегантность и функциональность, создавая неповторимую атмосферу для спокойной семейной жизни. Здания «Рождественское 101Н» обрамлены массивными керамическими блоками, которые не только подчёркивают качество и простоту современных материалов, но и обеспечивают теплоизоляцию и долгую службу. Двускатная крыша придаёт фасаду строгий, но дружелюбный профиль, позволяя создать уютный внутренний простор и лёгкое сочетание с природой. В отсутствие балконов и веранды, вы обретёте спокойную внутреннюю зону, где каждая комната будто обволакивается теплом и светом. Эта квартира — идеальное место для тех, кто ценит уют, простоту и классический европейский шарм.

Характеристики дома

Архитектурный стиль
Автоматизированное регулирование параметров теплоносителя
Нет
Балконы/лоджии
Отсутствуют
Чердачное помещение
Нет
Датчики протечки воды
Нет
Эксплуатируемая или зеленая кровля
Нет
Электроснабжение
Центральное
Газоснабжение
Центральное
Изоляция воздушного шума
Нет
Камин
Нет
Класс энергоэффективности
-
Класс энергосбережения
-
Количество надземных этажей
1
Круглогодичное проживание
Да
Материал кровли
Фальцевая кровля Кликфальц
Материал перекрытий
Деревянные
Материал внешних стен
Материал внутренних перегородок
Кирпичные
Модульное строительство с конструкциями заводского изготовления
Нет
Объем надземной части
511 м3
Основной материал фасадов
Штукатурка
Отопление
Индивидуальное
Площадь дома
100 м2
Площадь застройки
123 м2
Подвальное помещение
Нет
Показатель компактности здания
-
Приборы учета тепловой энергии
Нет
Пристроенный гараж/крытая автостоянка
Нет
Противопожарная система
Нет
Санузлы
1
Совмещенная кухня-гостиная
Да
Спальни
3
Терраса
Нет
Тип фундамента
Плитный
Тип кровли
Толщина внешних стен
380 мм
Толщина внутренних перегородок
120 мм
Улучшенные шумовые характеристики
Нет
Вентиляция
Естественная
Веранда
Нет
Водоотведение
Локальные очистные сооружения
Водоснабжение
Индивидуальное
Высота дома
4.85 м
Высота потолков
3.3 м

Планировка

Фасад дома

Александр

Закажите выезд инженера

Александр

Выездной инженер
Закажите выезд инженера для точной диагностики и профессиональной консультации по инженерным системам. Специалист приедет в удобное время, проведёт осмотр, рассчитает стоимость работ и подберёт оптимальные решения для вашего дома.


    Похожие проекты

    Ипотека и
    рассрочка
    София
    Стоимость от:
    8 511 480
    Проект от: 63 900
    Этажей 2
    Санузлы 2
    Спальни 4
    Смотреть
    Ипотека и
    рассрочка
    Стриж
    Стоимость от:
    10 209 960
    Проект от: 69 750
    Этажей 2
    Санузлы 2
    Спальни 3
    Смотреть
    Ипотека и
    рассрочка
    Одноэтажный дом с двумя крыльцами и 3 спальнями р181
    Стоимость от:
    7 665 240
    Проект от: 45 900
    Этажей 1
    Санузлы 2
    Спальни 3
    Смотреть
    Ипотека и
    рассрочка
    Зелени
    Стоимость от:
    9 079 200
    Проект от: 58 500
    Этажей 2
    Санузлы 2
    Спальни 4
    Смотреть
    Ипотека и
    рассрочка
    Каркасный дом Кортленд 92
    Стоимость от:
    229 900
    Проект от: 42 750
    Этажей 1
    Санузлы 2
    Спальни 3
    Смотреть
    Ипотека и
    рассрочка
    Дом Лили Лофт
    Стоимость от:
    3 534 360
    Проект от: 26 550
    Этажей 2
    Санузлы 1
    Спальни 1
    Смотреть

    Как узнать стоимость дома

    back
    Оставляете заявку
    Вы заполняете форму на сайте или звоните нам. Менеджер Лайвкрафт связывается с вами для уточнения деталей: тип дома, площадь, материалы, участок строительства.
    back
    Консультация и подбор решения
    Наш специалист помогает выбрать оптимальный тип дома и конструкцию с учётом бюджета, сроков и целей — будь то дом для постоянного проживания или дача.
    back
    Расчёт предварительной стоимости
    Инженер делает первичный расчёт стоимости строительства по вашим параметрам: фундамент, коробка, кровля, отделка. Вы получаете смету с разбивкой по этапам.
    back
    Корректировка и утверждение сметы
    При необходимости вносим изменения — например, замену материалов или сокращение этапов. После согласования формируется окончательная фиксированная смета.
    back
    Заключение договора и старт работ
    После утверждения сметы заключаем официальный договор с гарантией. Вы получаете прозрачный график и точную стоимость — без скрытых расходов.

    Заказать конусльтацию по:Рождественское 101Н

    Фото 1 Рождественское 101Н


      Наши
      контакты

      Дмитров
      Опорный проезд 28Б
      (индустриальный парк Ниагара)
      9:00 до 18:00

      Корзина