4.9
Рейтинг на основании 120 отзывов
Дмитров
Опорный проезд 28Б
(индустриальный парк Ниагара)
Бренд "Дмитров-Дело" c 2008 года на рынке строительства в Дмитрове
Звоните 9:00 до 18:00 8 (915) 055-33-61
Бренд "Дмитров-Дело" c 2008 года на рынке строительства в Дмитрове

Классик 115

Стоимость проекта от:
51 750 ₽
БЕСПЛАТНО! ПРИ ЗАКАЗЕ СТРОИТЕЛЬСТВА
Стоимость строительства от:
8 121 300 ₽
Артикул ART-5173
Дата 26.12.2025
Архитектурный стиль Классический
Количество надземных этажей 1
Круглогодичное проживание Да
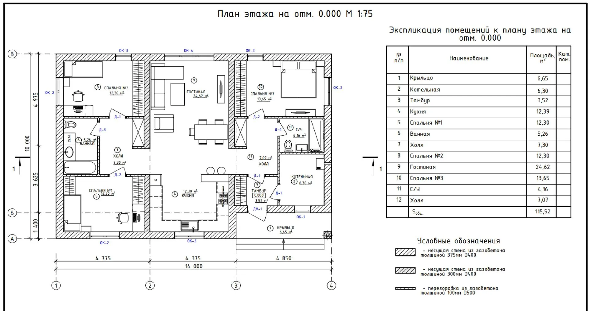
Площадь дома 115 м2
Санузлы 2
Спальни 3

Описание

Прекрасный дом «Классик 115» — это воплощение спокойствия и уюта, которые хочется ощущать каждый день. Он прост в планировке, но при этом поражает своей надежностью: стены из газобетонных блоков гарантируют отличную термо- и звукоизоляцию, а четырёхскатная (вальмовая) крыша обеспечивает надёжную защиту от непогоды и отличает фасад роскошной завершённой линией. Это современное решение в классическом стиле, которое будет радовать глаз и дарить спокойствие тем, кто ценит порядок и чистоту. Внутри одиннадцать квадратных метров пространства обрамлены мягкими световыми решениями и уютными уголками, где можно отдохнуть после долгого дня. Классический дизайн придаёт дому ощущение «быть дома» — чистые линии, гармоничные цвета, и простые детали создают ощущение безмятежности. На каждом уровне присутствует удобный бытовой уголок, где легко разместить всё необходимое, а большие окна наполняют комнаты естественным светом. Не хватает балкона, лоджии или веранды — но это только подчёркивает лаконичность и функциональность: вы получаете компактную, но в то же время продуманную обитель, где каждый квадратный метр использован с умом. Круглогодичное проживание возможно благодаря качественной теплоизоляции и надежной крыше, а отсутствие прицепленного гаража даёт вам свободные возможности планировать свой собственный гараж, если это будет актуально. Дом «Классик 115» — это идеальный выбор для тех, кто ищет комбинацию традиционного стиля и современных технологий, а также ценит простоту планировки и высокое качество строительства. Приглашаем вас открыть для себя уют, который будет вдохновлять каждый день.

Характеристики дома

Архитектурный стиль
Автоматизированное регулирование параметров теплоносителя
-
Балконы/лоджии
Отсутствуют
Чердачное помещение
Нет
Датчики протечки воды
-
Эксплуатируемая или зеленая кровля
-
Электроснабжение
Индивидуальное
Газоснабжение
Индивидуальное
Изоляция воздушного шума
-
Камин
Нет
Класс энергоэффективности
-
Класс энергосбережения
-
Количество надземных этажей
1
Круглогодичное проживание
Да
Материал кровли
Металлочерепица
Материал перекрытий
Деревянные
Материал внешних стен
Материал внутренних перегородок
Блочные
Модульное строительство с конструкциями заводского изготовления
Нет
Объем надземной части
500 м3
Основной материал фасадов
Штукатурка
Отопление
Индивидуальное
Площадь дома
115 м2
Площадь застройки
140 м2
Подвальное помещение
Нет
Показатель компактности здания
-
Приборы учета тепловой энергии
-
Пристроенный гараж/крытая автостоянка
Нет
Противопожарная система
Нет
Санузлы
2
Совмещенная кухня-гостиная
Да
Спальни
3
Терраса
Нет
Тип фундамента
Плитный
Толщина внешних стен
375 мм
Толщина внутренних перегородок
100 мм
Улучшенные шумовые характеристики
-
Вентиляция
2 варианта
Веранда
Нет
Водоотведение
Локальные очистные сооружения
Водоснабжение
Индивидуальное
Высота дома
5 м
Высота потолков
3 м

Планировка

Фасад дома

Александр

Закажите выезд инженера

Александр

Выездной инженер
Закажите выезд инженера для точной диагностики и профессиональной консультации по инженерным системам. Специалист приедет в удобное время, проведёт осмотр, рассчитает стоимость работ и подберёт оптимальные решения для вашего дома.


    Похожие проекты

    Ипотека и
    рассрочка
    Дом по проекту «Воронцово» от Строй и Живи
    Стоимость от:
    5 912 940
    Проект от: 45 900
    Этажей 1
    Санузлы 1
    Спальни 3
    Смотреть
    Ипотека и
    рассрочка
    Лофт 155 Альпийская Долина
    Стоимость от:
    12 315 600
    Проект от: 81 000
    Этажей 1
    Санузлы 2
    Спальни 3
    Смотреть
    Ипотека и
    рассрочка
    Одноэтажный дом линейки «Скандинавия» 1 — 140
    Стоимость от:
    13 770 900
    Проект от: 87 750
    Этажей 1
    Санузлы 2
    Спальни 3
    Смотреть
    Ипотека и
    рассрочка
    Форест 138
    Стоимость от:
    9 043 320
    Проект от: 70 200
    Этажей 1
    Санузлы 2
    Спальни 4
    Смотреть
    Ипотека и
    рассрочка
    Classic 150
    Стоимость от:
    15 052 400
    Проект от: 99 000
    Этажей 1
    Санузлы 2
    Спальни 4
    Смотреть
    Ипотека и
    рассрочка
    Загородный дом из клееного бруса «Эней»
    Стоимость от:
    5 331 480
    Проект от: 37 800
    Этажей 1
    Санузлы 1
    Спальни 2
    Смотреть

    Как узнать стоимость дома

    back
    Оставляете заявку
    Вы заполняете форму на сайте или звоните нам. Менеджер Лайвкрафт связывается с вами для уточнения деталей: тип дома, площадь, материалы, участок строительства.
    back
    Консультация и подбор решения
    Наш специалист помогает выбрать оптимальный тип дома и конструкцию с учётом бюджета, сроков и целей — будь то дом для постоянного проживания или дача.
    back
    Расчёт предварительной стоимости
    Инженер делает первичный расчёт стоимости строительства по вашим параметрам: фундамент, коробка, кровля, отделка. Вы получаете смету с разбивкой по этапам.
    back
    Корректировка и утверждение сметы
    При необходимости вносим изменения — например, замену материалов или сокращение этапов. После согласования формируется окончательная фиксированная смета.
    back
    Заключение договора и старт работ
    После утверждения сметы заключаем официальный договор с гарантией. Вы получаете прозрачный график и точную стоимость — без скрытых расходов.

    Заказать конусльтацию по:Классик 115

    Фото 1 Классик 115


      Наши
      контакты

      Дмитров
      Опорный проезд 28Б
      (индустриальный парк Ниагара)
      9:00 до 18:00

      Корзина