4.9
Рейтинг на основании 120 отзывов
Дмитров
Опорный проезд 28Б
(индустриальный парк Ниагара)
Бренд "Дмитров-Дело" c 2008 года на рынке строительства в Дмитрове
Звоните 9:00 до 18:00 8 (915) 055-33-61
Бренд "Дмитров-Дело" c 2008 года на рынке строительства в Дмитрове

Комфорт — 150

Стоимость проекта от:
67 500 ₽
БЕСПЛАТНО! ПРИ ЗАКАЗЕ СТРОИТЕЛЬСТВА
Стоимость строительства от:
8 811 000 ₽
Артикул ART-6102
Дата 26.12.2025
Архитектурный стиль Европейский
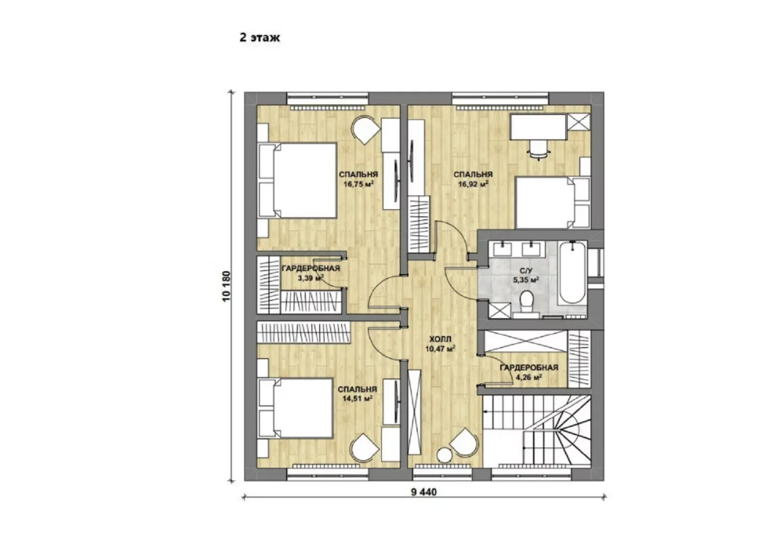
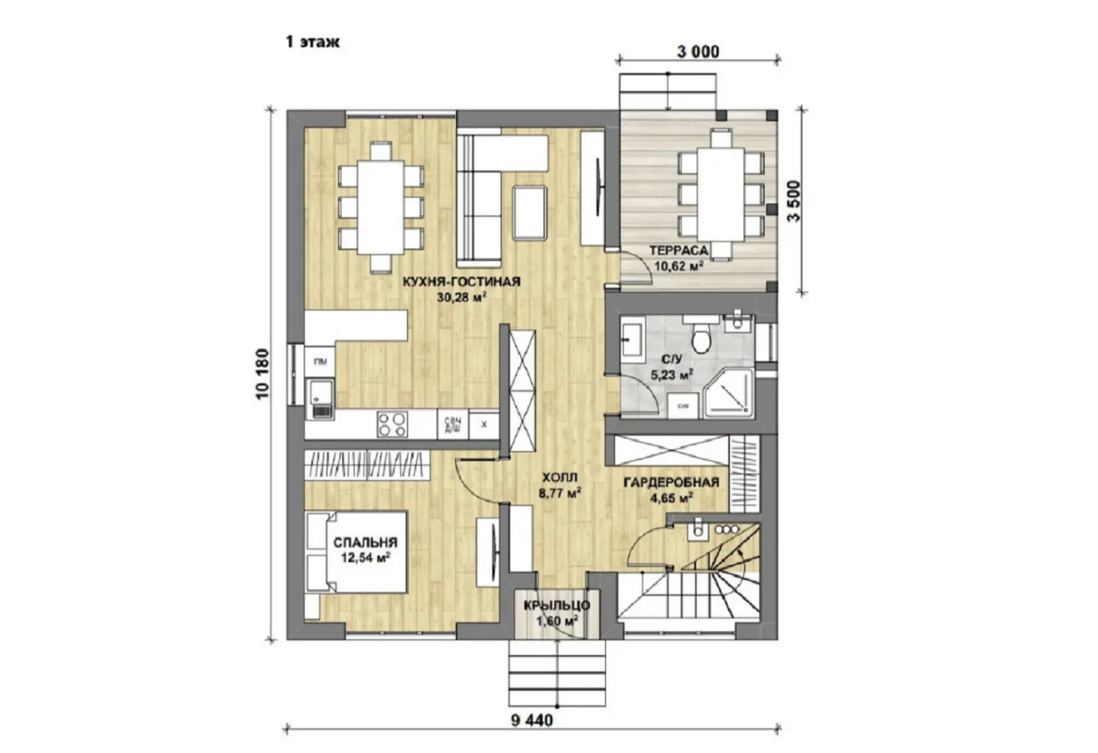
Количество надземных этажей 2
Круглогодичное проживание Да
Площадь дома 150 м2
Санузлы 2
Спальни 4

Описание

Представьте, как утро в этом уютном уголке Европы начинается с мягкого луча солнца, проникающего сквозь обширную террасу и наполняющего обширные комнаты светом. Двухэтажный дом, построенный на прочном деревянном каркасе, излучает тепло и традиционную европейскую элегантность. Круглогодичное проживание здесь возможно благодаря двойной крышей, выполненной в строгом габельном стиле, которая защитит ваше жилище от ветра и снега, позволяя всегда быть рядом с природой, не отрываясь от комфорта. Внутри вы найдете простор, где каждый элемент продуман до мелочей: открытая планировка двуковых этажей, естественная связь между внутренними и внешними пространствами, а также большая терраса, идеальная для летних собраний и тихих осенних вечеров. Стены из экологически чистого дерева дарят уют и естественную теплоизоляцию, а отсутствие балконов и пристроенного гаража только подчеркивает открытость и спокойствие этого дома, позволяя сосредоточиться на жизни внутри. Этот дом — ваш персональный оазис современного европейского дизайна, где каждая деталь способна превратить проживание в настоящее ощущение дома. Здесь вы найдете идеальное место для семьи, где уютные вечера за чашкой глинтвейна на террасе превратятся в воспоминания, а каждое утро будет встречаться с живописным видом, который заставит сердце биться быстрее. Позвольте себе почувствовать, как комфорт и стиль объединяются в гармоничной атмосфере, создающей уникальный образ жизни.

Характеристики дома

Архитектурный стиль
Автоматизированное регулирование параметров теплоносителя
Нет
Балконы/лоджии
Отсутствуют
Чердачное помещение
Нет
Датчики протечки воды
Нет
Эксплуатируемая или зеленая кровля
Нет
Электроснабжение
Центральное
Газоснабжение
2 варианта
Изоляция воздушного шума
Нет
Камин
Нет
Класс энергоэффективности
-
Класс энергосбережения
-
Количество надземных этажей
2
Круглогодичное проживание
Да
Материал кровли
Металлические листовые гофрированные профили
Материал перекрытий
Деревянные
Материал внешних стен
Материал внутренних перегородок
Деревянные
Модульное строительство с конструкциями заводского изготовления
Нет
Объем надземной части
560 м3
Основной материал фасадов
Искусственный камень
Отопление
Индивидуальное
Площадь дома
150 м2
Площадь застройки
100 м2
Подвальное помещение
Нет
Показатель компактности здания
-
Приборы учета тепловой энергии
Нет
Пристроенный гараж/крытая автостоянка
Нет
Противопожарная система
Нет
Санузлы
2
Совмещенная кухня-гостиная
Да
Спальни
4
Терраса
Да
Тип фундамента
Свайный
Тип кровли
Толщина внешних стен
220 мм
Толщина внутренних перегородок
150 мм
Улучшенные шумовые характеристики
Нет
Вентиляция
Естественная
Веранда
Нет
Водоотведение
2 варианта
Водоснабжение
2 варианта
Высота дома
5.7 м
Высота потолков
2.9 м

Планировка

Фасад дома

Александр

Закажите выезд инженера

Александр

Выездной инженер
Закажите выезд инженера для точной диагностики и профессиональной консультации по инженерным системам. Специалист приедет в удобное время, проведёт осмотр, рассчитает стоимость работ и подберёт оптимальные решения для вашего дома.


    Похожие проекты

    Ипотека и
    рассрочка
    Авторский проект «Стенли»
    Стоимость от:
    5 790 840
    Проект от: 36 900
    Этажей 1
    Санузлы 1
    Спальни 2
    Смотреть
    Ипотека и
    рассрочка
    Л-160 Comfort
    Стоимость от:
    8 586 000
    Проект от: 56 250
    Этажей 2
    Санузлы 2
    Спальни 5
    Смотреть
    Ипотека и
    рассрочка
    Двухэтажный дом DH 217
    Стоимость от:
    15 162 480
    Проект от: 97 650
    Этажей 2
    Санузлы 3
    Спальни 4
    Смотреть
    Ипотека и
    рассрочка
    Дом МИЛЛИ 56 м2
    Стоимость от:
    4 465 120
    Проект от: 25 200
    Этажей 1
    Санузлы 1
    Спальни 2
    Смотреть
    Ипотека и
    рассрочка
    Одноэтажный кирпичный дом ОН-85
    Стоимость от:
    8 415 440
    Проект от: 50 400
    Этажей 1
    Санузлы 1
    Спальни 2
    Смотреть
    Ипотека и
    рассрочка
    Антея
    Стоимость от:
    7 590 220
    Проект от: 45 450
    Этажей 1
    Санузлы 2
    Спальни 2
    Смотреть

    Как узнать стоимость дома

    back
    Оставляете заявку
    Вы заполняете форму на сайте или звоните нам. Менеджер Лайвкрафт связывается с вами для уточнения деталей: тип дома, площадь, материалы, участок строительства.
    back
    Консультация и подбор решения
    Наш специалист помогает выбрать оптимальный тип дома и конструкцию с учётом бюджета, сроков и целей — будь то дом для постоянного проживания или дача.
    back
    Расчёт предварительной стоимости
    Инженер делает первичный расчёт стоимости строительства по вашим параметрам: фундамент, коробка, кровля, отделка. Вы получаете смету с разбивкой по этапам.
    back
    Корректировка и утверждение сметы
    При необходимости вносим изменения — например, замену материалов или сокращение этапов. После согласования формируется окончательная фиксированная смета.
    back
    Заключение договора и старт работ
    После утверждения сметы заключаем официальный договор с гарантией. Вы получаете прозрачный график и точную стоимость — без скрытых расходов.

    Заказать конусльтацию по:Комфорт — 150

    Фото 1 Комфорт — 150


      Наши
      контакты

      Дмитров
      Опорный проезд 28Б
      (индустриальный парк Ниагара)
      9:00 до 18:00

      Корзина