4.9
Рейтинг на основании 120 отзывов
Дмитров
Опорный проезд 28Б
(индустриальный парк Ниагара)
Бренд "Дмитров-Дело" c 2008 года на рынке строительства в Дмитрове
Звоните 9:00 до 18:00 8 (915) 055-33-61
Бренд "Дмитров-Дело" c 2008 года на рынке строительства в Дмитрове

Коттедж в стиле хайтек с гаражом на две машины S-269

Стоимость проекта от:
120 600 ₽
БЕСПЛАТНО! ПРИ ЗАКАЗЕ СТРОИТЕЛЬСТВА
Стоимость строительства от:
19 701 120 ₽
Артикул ART-4205
Дата 26.12.2025
Архитектурный стиль Хайтек
Количество надземных этажей 2
Круглогодичное проживание Да
Площадь дома 268 м2
Санузлы 3
Спальни 4

Описание

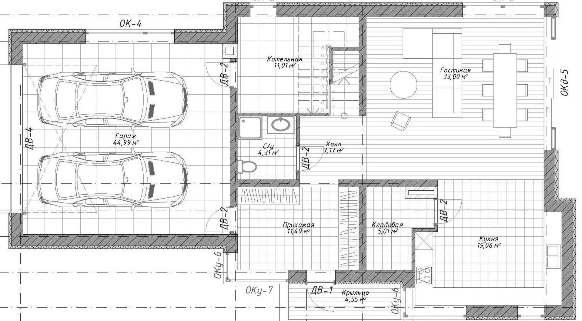
Великолепный коттедж в стиле хай‑тек, расположенный в живописном уголке природы, сочетает в себе современную архитектуру и функциональность, созданную для тех, кто ценит комфорт и стиль. Его открытая, плоская крыша и минималистичные геометрические линии создают ощущение легкости и воздушности, а прозрачные фасады пропускают свет в каждый уголок дома, делая пространство ярким и приятным в любой поре года. При этом два надземных этажа предоставляют достаточно пространства для семейной жизни, гостевых комнат и личных кабинетов, где можно забыться от городского шума. Внутри дом раскрывает своё совершенство: высокие потолки, большие панорамные окна и чистые линии отделки вызывают ощущение простора и свободы. Основные материалы – газобетонные блоки – обеспечивают отличную тепло- и звукоизоляцию, а плоская крыша способна вместить современные солнечные панели и даже небольшую зеленую поляну, если вы решите привнести природу рядом с домом. Пристроенный гараж, рассчитанный на две машины, не только защищает ваш транспорт от непогоды, но и служит стильным элементом фасада, подчёркивая практичность и внимательность к деталям. Этот коттедж – идеальное решение для тех, кто жаждет круглогодичного проживания в атмосфере технологической элегантности. Вдохновляйтесь архитектурой, наслаждайтесь уютом и простотой, которую дарит хай‑тек, и создайте свой собственный уголок, объединяющий современность и тепло семейного дома. Откройте новые горизонты комфорта уже сегодня – ваш новый дом ждёт вас.

Характеристики дома

Архитектурный стиль
Автоматизированное регулирование параметров теплоносителя
Да
Балконы/лоджии
Отсутствуют
Чердачное помещение
Нет
Датчики протечки воды
Да
Эксплуатируемая или зеленая кровля
Нет
Электроснабжение
Центральное
Газоснабжение
Центральное
Изоляция воздушного шума
Да
Камин
Нет
Класс энергоэффективности
-
Класс энергосбережения
-
Количество надземных этажей
2
Круглогодичное проживание
Да
Материал кровли
Битумная мастика
Материал перекрытий
Монолитные железобетонные
Материал внешних стен
Материал внутренних перегородок
Блочные
Модульное строительство с конструкциями заводского изготовления
Нет
Объем надземной части
-
Основной материал фасадов
Штукатурка
Отопление
Центральное
Площадь дома
268 м2
Площадь застройки
323 м2
Подвальное помещение
Нет
Показатель компактности здания
-
Приборы учета тепловой энергии
Да
Пристроенный гараж/крытая автостоянка
Да
Противопожарная система
Да
Санузлы
3
Совмещенная кухня-гостиная
Да
Спальни
4
Терраса
Нет
Тип фундамента
Ленточный
Тип кровли
Толщина внешних стен
425 мм
Толщина внутренних перегородок
100 мм
Улучшенные шумовые характеристики
Да
Вентиляция
Естественная
Веранда
Нет
Водоотведение
Локальные очистные сооружения
Водоснабжение
Центральное
Высота дома
8.78 м
Высота потолков
3 м

Планировка

Фасад дома

Александр

Закажите выезд инженера

Александр

Выездной инженер
Закажите выезд инженера для точной диагностики и профессиональной консультации по инженерным системам. Специалист приедет в удобное время, проведёт осмотр, рассчитает стоимость работ и подберёт оптимальные решения для вашего дома.


    Похожие проекты

    Ипотека и
    рассрочка
    Двухэтажный деревянный дом «Верона»
    Стоимость от:
    18 944 640
    Проект от: 124 200
    Этажей 2
    Санузлы 4
    Спальни 3
    Смотреть
    Ипотека и
    рассрочка
    Загородный дом АС-278
    Стоимость от:
    23 673 320
    Проект от: 155 700
    Этажей 1
    Санузлы 4
    Спальни 7
    Смотреть
    Ипотека и
    рассрочка
    Одноэтажный дом «Уверенность-2»
    Стоимость от:
    8 898 120
    Проект от: 56 700
    Этажей 1
    Санузлы 2
    Спальни 3
    Смотреть
    Ипотека и
    рассрочка
    Фаворит 7×9
    Стоимость от:
    6 703 200
    Проект от: 50 400
    Этажей 2
    Санузлы 1
    Спальни 4
    Смотреть
    Ипотека и
    рассрочка
    2C-105
    Стоимость от:
    9 015 600
    Проект от: 54 000
    Этажей 1
    Санузлы 2
    Спальни 3
    Смотреть
    Ипотека и
    рассрочка
    Одноэтажный загородный дом серии JARDIN 75
    Стоимость от:
    186 340
    Проект от: 34 650
    Этажей 1
    Санузлы 2
    Спальни 3
    Смотреть

    Как узнать стоимость дома

    back
    Оставляете заявку
    Вы заполняете форму на сайте или звоните нам. Менеджер Лайвкрафт связывается с вами для уточнения деталей: тип дома, площадь, материалы, участок строительства.
    back
    Консультация и подбор решения
    Наш специалист помогает выбрать оптимальный тип дома и конструкцию с учётом бюджета, сроков и целей — будь то дом для постоянного проживания или дача.
    back
    Расчёт предварительной стоимости
    Инженер делает первичный расчёт стоимости строительства по вашим параметрам: фундамент, коробка, кровля, отделка. Вы получаете смету с разбивкой по этапам.
    back
    Корректировка и утверждение сметы
    При необходимости вносим изменения — например, замену материалов или сокращение этапов. После согласования формируется окончательная фиксированная смета.
    back
    Заключение договора и старт работ
    После утверждения сметы заключаем официальный договор с гарантией. Вы получаете прозрачный график и точную стоимость — без скрытых расходов.

    Заказать конусльтацию по:Коттедж в стиле хайтек с гаражом на две машины S-269

    Фото 1 Коттедж в стиле хайтек с гаражом на две машины S-269


      Наши
      контакты

      Дмитров
      Опорный проезд 28Б
      (индустриальный парк Ниагара)
      9:00 до 18:00

      Корзина