4.9
Рейтинг на основании 120 отзывов
Дмитров
Опорный проезд 28Б
(индустриальный парк Ниагара)
Бренд "Дмитров-Дело" c 2008 года на рынке строительства в Дмитрове
Звоните 9:00 до 18:00 8 (915) 055-33-61
Бренд "Дмитров-Дело" c 2008 года на рынке строительства в Дмитрове

Крам-2 Газобетон

Стоимость проекта от:
50 400 ₽
БЕСПЛАТНО! ПРИ ЗАКАЗЕ СТРОИТЕЛЬСТВА
Стоимость строительства от:
8 912 640 ₽
Артикул ART-13718
Дата 25.12.2025
Архитектурный стиль Барнхаус
Количество надземных этажей 1
Круглогодичное проживание Да
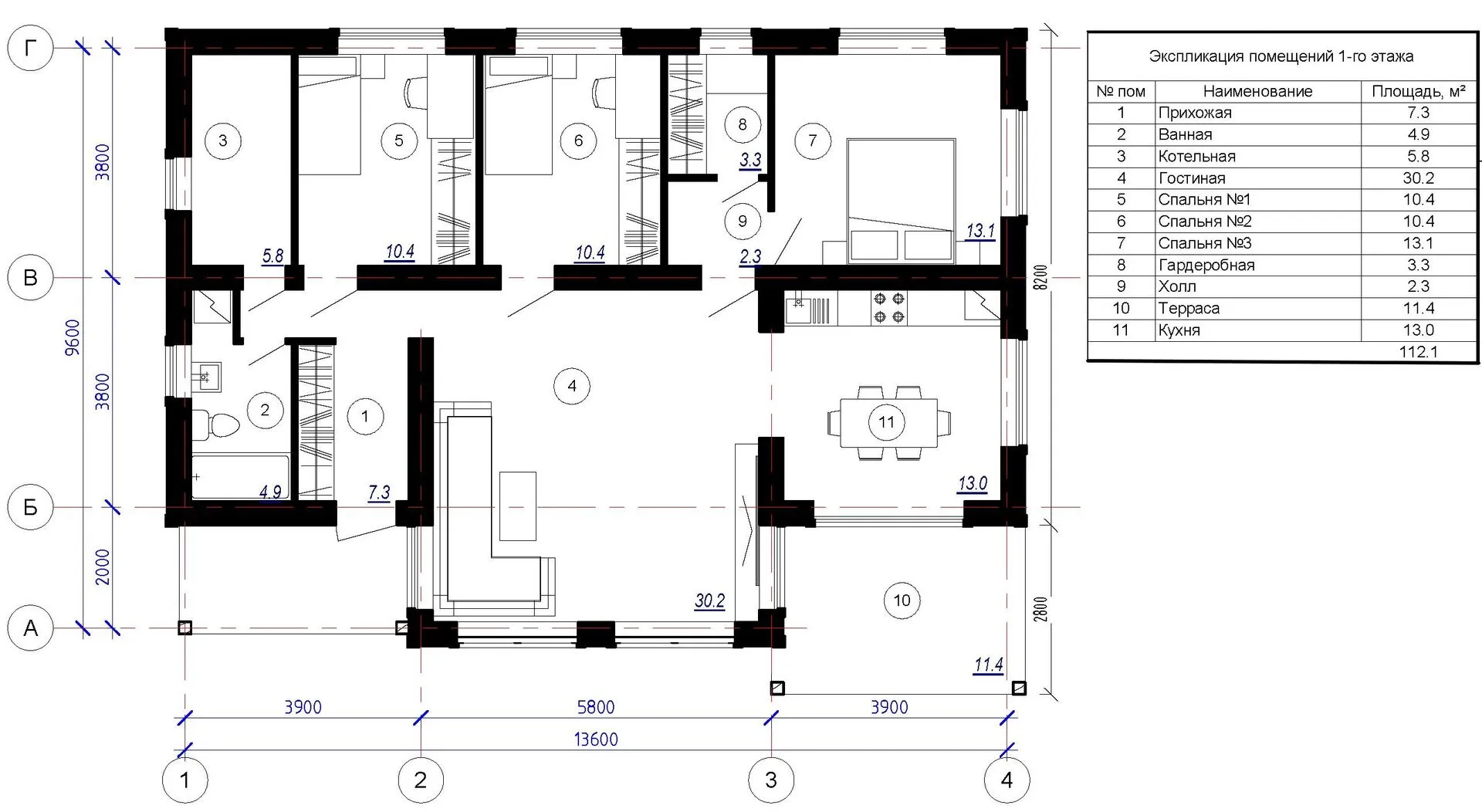
Площадь дома 112 м2
Санузлы 1
Спальни 3

Описание

**Добро пожаловать в уединённый уголок, где традиции встречаются с современно‑экономикой:** уникальный дом **Крам‑2** — это гармоничное сочетание простоты и уюта. Конструкция построена из газобетонных блоков, что обеспечивает не только надёжную тепло‑и шумо‑изоляцию, но и экономичность строительства, а также долговечность за счёт лёгкости материалов. Внешний фасад выглядит как настоящая сельская хижина в барнхаус‑стиле: простые линии, натуральная отделка и при этом современное ощущение простора. Характеристики этого одиннадцатого уровня? Один надземный этаж, полностью пригодный для круглогодичного проживания. Четырёхскатная (вальмовая) крыша подчёркивает традиционный характер интерьера, создавая светлую и воздушную планировку без лишних балконов, веранд и прицепного гаража. Просторные стены, открытые ярусы, световые щели – всё это делает каждый уголок дома уютным и привлекательным для жизни без компромиссов. **Сделайте первый шаг к своему новому дому,** где каждый день начинается с ощущения дома, где тепло сохраняется даже в прохладные зимние вечера, а пространство вдохновляет на творчество и отдых. Узнайте больше и запланируйте личный визит к Крам‑2 – мы уверены, что в этом доме вы найдёте именно ту уютную атмосферу, которую искали.

Характеристики дома

Архитектурный стиль
Автоматизированное регулирование параметров теплоносителя
Нет
Балконы/лоджии
Отсутствуют
Чердачное помещение
Нет
Датчики протечки воды
Нет
Эксплуатируемая или зеленая кровля
Нет
Электроснабжение
Центральное
Газоснабжение
Центральное
Изоляция воздушного шума
Нет
Камин
Нет
Класс энергоэффективности
-
Класс энергосбережения
-
Количество надземных этажей
1
Круглогодичное проживание
Да
Материал кровли
Металлочерепица
Материал перекрытий
Деревянные
Материал внешних стен
Материал внутренних перегородок
Блочные
Модульное строительство с конструкциями заводского изготовления
Нет
Объем надземной части
393 м3
Основной материал фасадов
Штукатурка
Отопление
Индивидуальное
Площадь дома
112 м2
Площадь застройки
148 м2
Подвальное помещение
Нет
Показатель компактности здания
-
Приборы учета тепловой энергии
Да
Пристроенный гараж/крытая автостоянка
Нет
Противопожарная система
Нет
Санузлы
1
Совмещенная кухня-гостиная
Нет
Спальни
3
Терраса
Нет
Тип фундамента
Ленточный
Толщина внешних стен
400 мм
Толщина внутренних перегородок
100 мм
Улучшенные шумовые характеристики
Нет
Вентиляция
Естественная
Веранда
Нет
Водоотведение
Локальные очистные сооружения
Водоснабжение
Индивидуальное
Высота дома
4.99 м
Высота потолков
3 м

Планировка

Фасад дома

Александр

Закажите выезд инженера

Александр

Выездной инженер
Закажите выезд инженера для точной диагностики и профессиональной консультации по инженерным системам. Специалист приедет в удобное время, проведёт осмотр, рассчитает стоимость работ и подберёт оптимальные решения для вашего дома.


    Похожие проекты

    Ипотека и
    рассрочка
    Проект «Август»
    Стоимость от:
    9 891 000
    Проект от: 67 500
    Этажей 2
    Санузлы 2
    Спальни 4
    Смотреть
    Ипотека и
    рассрочка
    Бьерн — дом заводского изготовления (ПРЕФАБ)
    Стоимость от:
    338 800
    Проект от: 63 000
    Этажей 1
    Санузлы 2
    Спальни 3
    Смотреть
    Ипотека и
    рассрочка
    ДОМ №2
    Стоимость от:
    17 186 400
    Проект от: 103 500
    Этажей 2
    Санузлы 1
    Спальни 3
    Смотреть
    Ипотека и
    рассрочка
    Одноэтажный дом с плоской эксплуатируемой крышей. Проект»Калифорния»
    Стоимость от:
    12 315 600
    Проект от: 81 000
    Этажей 1
    Санузлы 2
    Спальни 3
    Смотреть
    Ипотека и
    рассрочка
    КЛМ 112
    Стоимость от:
    9 363 480
    Проект от: 63 900
    Этажей 2
    Санузлы 2
    Спальни 4
    Смотреть
    Ипотека и
    рассрочка
    П-132
    Стоимость от:
    8 305 440
    Проект от: 59 400
    Этажей 1
    Санузлы 2
    Спальни 4
    Смотреть

    Как узнать стоимость дома

    back
    Оставляете заявку
    Вы заполняете форму на сайте или звоните нам. Менеджер Лайвкрафт связывается с вами для уточнения деталей: тип дома, площадь, материалы, участок строительства.
    back
    Консультация и подбор решения
    Наш специалист помогает выбрать оптимальный тип дома и конструкцию с учётом бюджета, сроков и целей — будь то дом для постоянного проживания или дача.
    back
    Расчёт предварительной стоимости
    Инженер делает первичный расчёт стоимости строительства по вашим параметрам: фундамент, коробка, кровля, отделка. Вы получаете смету с разбивкой по этапам.
    back
    Корректировка и утверждение сметы
    При необходимости вносим изменения — например, замену материалов или сокращение этапов. После согласования формируется окончательная фиксированная смета.
    back
    Заключение договора и старт работ
    После утверждения сметы заключаем официальный договор с гарантией. Вы получаете прозрачный график и точную стоимость — без скрытых расходов.

    Заказать конусльтацию по:Крам-2 Газобетон

    Фото 1 Крам-2 Газобетон


      Наши
      контакты

      Дмитров
      Опорный проезд 28Б
      (индустриальный парк Ниагара)
      9:00 до 18:00

      Корзина