4.9
Рейтинг на основании 120 отзывов
Дмитров
Опорный проезд 28Б
(индустриальный парк Ниагара)
Бренд "Дмитров-Дело" c 2008 года на рынке строительства в Дмитрове
Звоните 9:00 до 18:00 8 (915) 055-33-61
Бренд "Дмитров-Дело" c 2008 года на рынке строительства в Дмитрове

Кульсеитово — 155

Стоимость проекта от:
51 300 ₽
БЕСПЛАТНО! ПРИ ЗАКАЗЕ СТРОИТЕЛЬСТВА
Стоимость строительства от:
7 961 760 ₽
Артикул ART-11661
Дата 25.12.2025
Архитектурный стиль Классический
Количество надземных этажей 2
Круглогодичное проживание Да
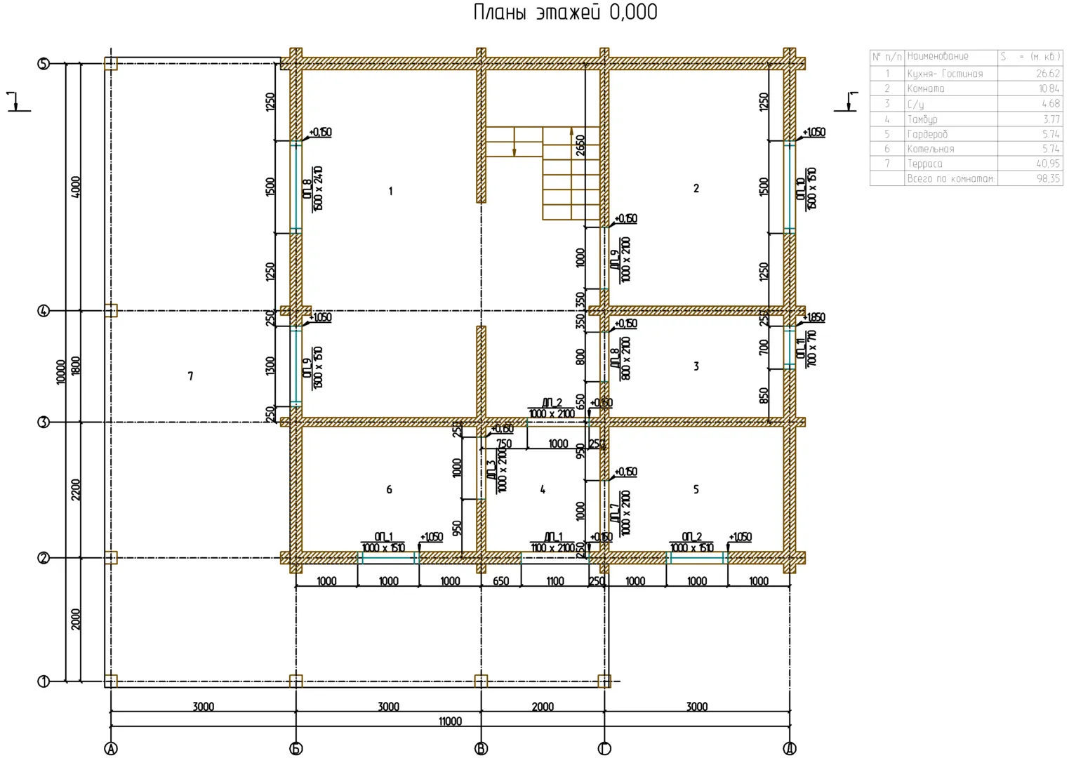
Площадь дома 114 м2
Санузлы 3
Спальни 4

Описание

В Кульсеитово‑155 вас ждёт уютный двухэтажный дом, созданный в строгом классическом стиле, который придаёт ему неповторимый шарм. Внутренние помещения отличаются светлым и просторным общим планом, а материал наружных стен – профилированный брус – придаёт дому тёплую, древесную аутентичность. Полугодовой дизайн позволяет комфортно жить здесь круглый год, а двускатная крыша добавляет дома элегантности и защищает от непогоды. Дом оснащён большой терассой, где можно наслаждаться закатами и ароматом весенних цветов, а отсутствие балконов и лоджий даёт чувство свободы и простора. Классическая архитектура сочетает в себе традиции и современность: строгие линии фасада, обилие декоративных элементов и нежные оттенки древесины создают умиротворенную атмосферу, идеально подходящую для семейного уединения или тихого отдыха. Хотя пристроенный гараж и крытая автостоянка отсутствуют, вы сможете легко организовать компактную парковку задней территорией либо воспользоваться местными возможностями для хранения транспортных средств. Всё это делает Кульсеитово‑155 привлекательным выбором для тех, кто ценит уют, эстетический комфорт и функциональность в гармоничном сочетании.

Характеристики дома

Архитектурный стиль
Автоматизированное регулирование параметров теплоносителя
Нет
Балконы/лоджии
Отсутствуют
Чердачное помещение
Нет
Датчики протечки воды
Нет
Эксплуатируемая или зеленая кровля
Нет
Электроснабжение
Не предусмотрено
Газоснабжение
Не предусмотрено
Изоляция воздушного шума
Нет
Камин
Нет
Класс энергоэффективности
C
Класс энергосбережения
B+
Количество надземных этажей
2
Круглогодичное проживание
Да
Материал кровли
Металлочерепица
Материал перекрытий
Деревянные
Материал внешних стен
Материал внутренних перегородок
Деревянные
Модульное строительство с конструкциями заводского изготовления
Нет
Объем надземной части
300 м3
Основной материал фасадов
Дерево
Отопление
Не предусмотрено
Площадь дома
114 м2
Площадь застройки
110 м2
Подвальное помещение
Нет
Показатель компактности здания
1
Приборы учета тепловой энергии
Нет
Пристроенный гараж/крытая автостоянка
Нет
Противопожарная система
Нет
Санузлы
3
Совмещенная кухня-гостиная
Да
Спальни
4
Терраса
Да
Тип фундамента
Плитный
Тип кровли
Толщина внешних стен
195 мм
Толщина внутренних перегородок
145 мм
Улучшенные шумовые характеристики
Нет
Вентиляция
Естественная
Веранда
Нет
Водоотведение
Не предусмотрено
Водоснабжение
Не предусмотрено
Высота дома
7 м
Высота потолков
2.6 м

Планировка

Фасад дома

Александр

Закажите выезд инженера

Александр

Выездной инженер
Закажите выезд инженера для точной диагностики и профессиональной консультации по инженерным системам. Специалист приедет в удобное время, проведёт осмотр, рассчитает стоимость работ и подберёт оптимальные решения для вашего дома.


    Похожие проекты

    Ипотека и
    рассрочка
    Дом из клееного бруса по проекту БД-112/3
    Стоимость от:
    6 600 880
    Проект от: 46 800
    Этажей 1
    Санузлы 1
    Спальни 3
    Смотреть
    Ипотека и
    рассрочка
    Загородный дом Рим-2
    Стоимость от:
    3 478 200
    Проект от: 27 000
    Этажей 1
    Санузлы 1
    Спальни 2
    Смотреть
    Ипотека и
    рассрочка
    P-11
    Стоимость от:
    10 619 640
    Проект от: 72 450
    Этажей 2
    Санузлы 3
    Спальни 6
    Смотреть
    Ипотека и
    рассрочка
    Мансардный дом №9
    Стоимость от:
    8 166 960
    Проект от: 49 050
    Этажей 2
    Санузлы 2
    Спальни 3
    Смотреть
    Ипотека и
    рассрочка
    Одноэтажный дом Репина-1
    Стоимость от:
    9 240 660
    Проект от: 55 350
    Этажей 1
    Санузлы 1
    Спальни 3
    Смотреть
    Ипотека и
    рассрочка
    Одноэтажный дом по проекту «Анна»
    Стоимость от:
    8 474 400
    Проект от: 54 000
    Этажей 1
    Санузлы 1
    Спальни 3
    Смотреть

    Как узнать стоимость дома

    back
    Оставляете заявку
    Вы заполняете форму на сайте или звоните нам. Менеджер Лайвкрафт связывается с вами для уточнения деталей: тип дома, площадь, материалы, участок строительства.
    back
    Консультация и подбор решения
    Наш специалист помогает выбрать оптимальный тип дома и конструкцию с учётом бюджета, сроков и целей — будь то дом для постоянного проживания или дача.
    back
    Расчёт предварительной стоимости
    Инженер делает первичный расчёт стоимости строительства по вашим параметрам: фундамент, коробка, кровля, отделка. Вы получаете смету с разбивкой по этапам.
    back
    Корректировка и утверждение сметы
    При необходимости вносим изменения — например, замену материалов или сокращение этапов. После согласования формируется окончательная фиксированная смета.
    back
    Заключение договора и старт работ
    После утверждения сметы заключаем официальный договор с гарантией. Вы получаете прозрачный график и точную стоимость — без скрытых расходов.

    Заказать конусльтацию по:Кульсеитово — 155

    Фото 1 Кульсеитово — 155


      Наши
      контакты

      Дмитров
      Опорный проезд 28Б
      (индустриальный парк Ниагара)
      9:00 до 18:00

      Корзина