4.9
Рейтинг на основании 120 отзывов
Дмитров
Опорный проезд 28Б
(индустриальный парк Ниагара)
Бренд "Дмитров-Дело" c 2008 года на рынке строительства в Дмитрове
Звоните 9:00 до 18:00 8 (915) 055-33-61
Бренд "Дмитров-Дело" c 2008 года на рынке строительства в Дмитрове

КЁЛЬН-138

Стоимость проекта от:
69 300 ₽
Стоимость строительства от:
11 139 360 ₽
Артикул ART-106
Дата 25.12.2025
Архитектурный стиль Европейский
Количество надземных этажей 2
Круглогодичное проживание Да
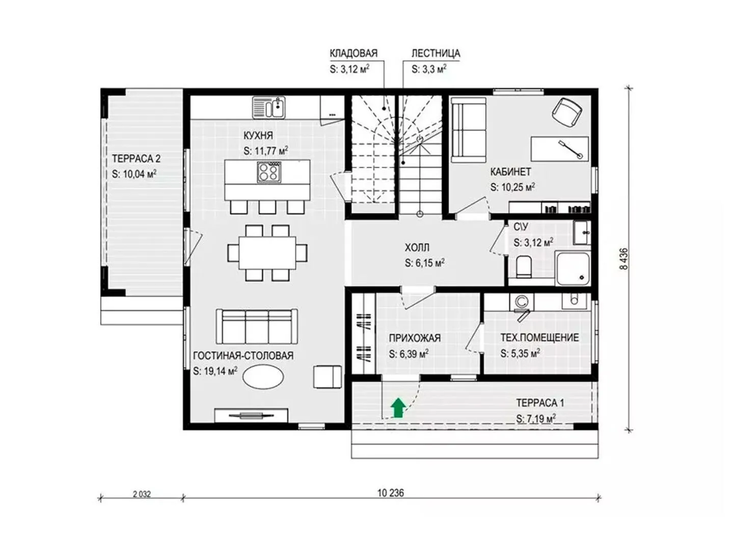
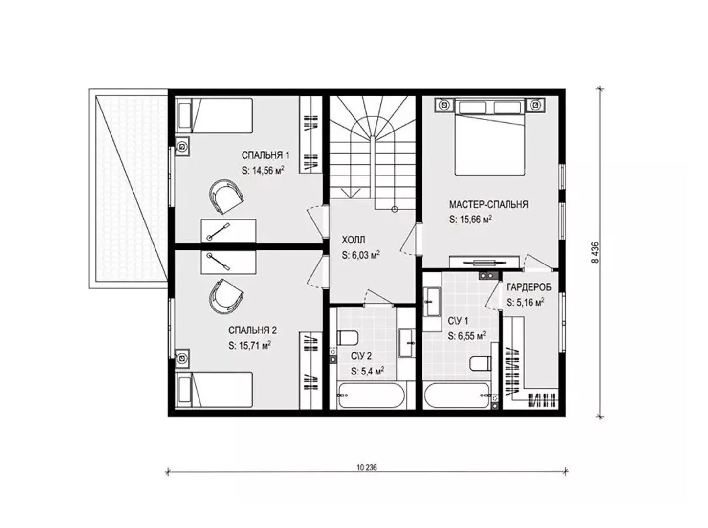
Площадь дома 154 м2
Санузлы 3
Спальни 3

Описание

Приглашаем Вас открыть для себя уют и комфорт в квартире **КЁЛЬН‑138** — настоящем воплощении европейского стиля в самом сердце города. На два надземных этажа вы раскроете простор квартиры, удобной для всей семьи, и сможете насладиться живописным открытым пространством, доступным в любое время года. Каркасно‑панельная технология создаёт прочную, энергоэффективную стену, а двускатная крыша придаёт дому классический вид, характерный европейской архитектуре. Особое внимание заслуживает большая терраса, расположенная прямо на выходе, где Вы сможете проводить летние вечера, пить кофе утром или устраивать семейные пикники. В квартире отсутствуют балконы и веранда, но наличие террасы компенсирует это, предлагая уникальные возможности для отдыха на свежем воздухе. Внутренняя планировка продумана до мелочей – открытая кухня‑дворец, светлые ливневая зона, тихие спальни и удобные санузлы, чтобы дома было максимально уютно и практично. Квартира КЁЛЬН‑138 подходит для круглогодичного проживания: утеплённые стены, качественная стеклянная отделка и правильная тепловая защита позволят вам наслаждаться комфортом даже в самые холодные дни. Не ждите — уже сегодня можно будет войти в дом своей мечты и почувствовать, как уют, стиль и функциональность сливаются в идеальное целое. Приходите, мы будем рады показать вам этот прекрасный уголок!

Характеристики дома

Архитектурный стиль
Европейский
Автоматизированное регулирование параметров теплоносителя
Нет
Балконы/лоджии
Отсутствуют
Чердачное помещение
Нет
Датчики протечки воды
Нет
Эксплуатируемая или зеленая кровля
Да
Электроснабжение
Центральное
Газоснабжение
Не предусмотрено
Изоляция воздушного шума
Нет
Камин
Нет
Класс энергоэффективности
-
Класс энергосбережения
-
Количество надземных этажей
2
Круглогодичное проживание
Да
Материал кровли
Металлочерепица
Материал перекрытий
Деревянные
Материал внешних стен
Каркасно-панельная технология
Материал внутренних перегородок
Цементно-стружечная плита
Модульное строительство с конструкциями заводского изготовления
Нет
Объем надземной части
596 м3
Основной материал фасадов
Штукатурка
Отопление
Индивидуальное
Площадь дома
154 м2
Площадь застройки
97 м2
Подвальное помещение
Нет
Показатель компактности здания
-
Приборы учета тепловой энергии
Нет
Пристроенный гараж/крытая автостоянка
Нет
Противопожарная система
Нет
Санузлы
3
Совмещенная кухня-гостиная
Да
Спальни
3
Терраса
Да
Тип фундамента
Свайно-ростверковый
Тип кровли
Двускатная
Толщина внешних стен
168 мм
Толщина внутренних перегородок
100 мм
Улучшенные шумовые характеристики
Нет
Вентиляция
Естественная
Веранда
Нет
Водоотведение
Локальные очистные сооружения
Водоснабжение
Индивидуальное
Высота дома
7.2 м
Высота потолков
2.6 м

Планировка

Фасад дома

Александр

Закажите выезд инженера

Александр

Выездной инженер
Закажите выезд инженера для точной диагностики и профессиональной консультации по инженерным системам. Специалист приедет в удобное время, проведёт осмотр, рассчитает стоимость работ и подберёт оптимальные решения для вашего дома.


    Похожие проекты

    Ипотека и
    рассрочка
    Авторский проект «Акбет»
    Стоимость от:
    7 822 080
    Проект от: 50 400
    Этажей 2
    Санузлы 2
    Спальни 4
    Смотреть
    Ипотека и
    рассрочка
    Двухэтажный загородный дом Д-142
    Стоимость от:
    9 917 280
    Проект от: 63 900
    Этажей 2
    Санузлы 3
    Спальни 4
    Смотреть
    Ипотека и
    рассрочка
    №969 Мухаев Д.И.
    Стоимость от:
    12 787 920
    Проект от: 82 350
    Этажей 2
    Санузлы 2
    Спальни 4
    Смотреть
    Ипотека и
    рассрочка
    Словения
    Стоимость от:
    9 432 720
    Проект от: 64 350
    Этажей 2
    Санузлы 2
    Спальни 4
    Смотреть
    Ипотека и
    рассрочка
    Мазай с верандой
    Стоимость от:
    4 071 210
    Проект от: 32 850
    Этажей 1
    Санузлы 1
    Спальни 2
    Смотреть
    Ипотека и
    рассрочка
    Загородный дом Дерби
    Стоимость от:
    3 998 610
    Проект от: 28 350
    Этажей 1
    Санузлы 1
    Спальни 2
    Смотреть

    Как узнать стоимость дома

    back
    Оставляете заявку
    Вы заполняете форму на сайте или звоните нам. Менеджер Лайвкрафт связывается с вами для уточнения деталей: тип дома, площадь, материалы, участок строительства.
    back
    Консультация и подбор решения
    Наш специалист помогает выбрать оптимальный тип дома и конструкцию с учётом бюджета, сроков и целей — будь то дом для постоянного проживания или дача.
    back
    Расчёт предварительной стоимости
    Инженер делает первичный расчёт стоимости строительства по вашим параметрам: фундамент, коробка, кровля, отделка. Вы получаете смету с разбивкой по этапам.
    back
    Корректировка и утверждение сметы
    При необходимости вносим изменения — например, замену материалов или сокращение этапов. После согласования формируется окончательная фиксированная смета.
    back
    Заключение договора и старт работ
    После утверждения сметы заключаем официальный договор с гарантией. Вы получаете прозрачный график и точную стоимость — без скрытых расходов.

    Заказать конусльтацию по:КЁЛЬН-138

    Фото 1 КЁЛЬН-138


      Наши
      контакты

      Дмитров
      Опорный проезд 28Б
      (индустриальный парк Ниагара)
      9:00 до 18:00

      Корзина