4.9
Рейтинг на основании 120 отзывов
Дмитров
Опорный проезд 28Б
(индустриальный парк Ниагара)
Бренд "Дмитров-Дело" c 2008 года на рынке строительства в Дмитрове
Звоните 9:00 до 18:00 8 (915) 055-33-61
Бренд "Дмитров-Дело" c 2008 года на рынке строительства в Дмитрове

Лейпциг-120-114-С

Стоимость проекта от:
72 900 ₽
БЕСПЛАТНО! ПРИ ЗАКАЗЕ СТРОИТЕЛЬСТВА
Стоимость строительства от:
12 527 240 ₽
Артикул ART-12180
Дата 25.12.2025
Архитектурный стиль Скандинавский
Количество надземных этажей 1
Круглогодичное проживание Да
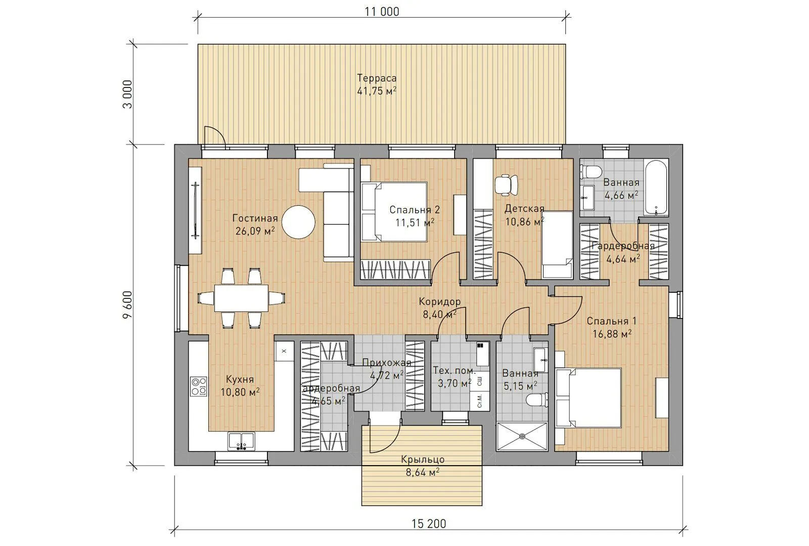
Площадь дома 162 м2
Санузлы 2
Спальни 3

Описание

Добро пожаловать в уютное и светлое уголок, где современный скандинавский стиль и практичность встречаются в гармонии. Дом под номером Лейпциг‑120‑114‑С — это одиннадцатый надземный этаж, построенный из теплоизолирующего полистиролбетона, который гарантирует комфорт в любое время года. Деревянно‑каменный фасад, строгие линии и простые, но элегантные детали делают его идеальным примером минимализма в архитектуре, где каждое пространство продумывается до последнего нюанса. Кровля — двускатная, простая и функциональная, а чердачное помещение открывает новые возможности: от уютного домашнего кабинета до места для хранения сезонных вещей. Большая и ярко освещенная терраса приглашает проводить выходные на свежем воздухе, наблюдая за меняющимися оттенками неба. Несмотря на отсутствие балконов, верандах и прикрепленном гараже, все детали продуманы таким образом, чтобы жилье оставалось простым, но одновременно удобным, а площадь для авто размещена вблизи, без необходимости строительства отдельной гаражной конструкции. Если вы ищете просторный, светлый и уютный дом, где каждый элемент продуман до мелочей, Лейпциг‑120‑114‑С станет отличным выбором. У нас вы найдете идеальное сочетание дизайна, удобства и практичности. Позвоните сегодня, и наш специалист покажет вам это место, которое уже ждёт своего нового владельца.

Характеристики дома

Архитектурный стиль
Автоматизированное регулирование параметров теплоносителя
Нет
Балконы/лоджии
Отсутствуют
Чердачное помещение
Да
Датчики протечки воды
Нет
Эксплуатируемая или зеленая кровля
Нет
Электроснабжение
Индивидуальное
Газоснабжение
Не предусмотрено
Изоляция воздушного шума
Нет
Камин
Нет
Класс энергоэффективности
-
Класс энергосбережения
-
Количество надземных этажей
1
Круглогодичное проживание
Да
Материал кровли
Фальцевая кровля Кликфальц
Материал перекрытий
Иной вид материалов перекрытий
Материал внешних стен
Материал внутренних перегородок
Модульное строительство с конструкциями заводского изготовления
Нет
Объем надземной части
-
Основной материал фасадов
Штукатурка
Отопление
Не предусмотрено
Площадь дома
162 м2
Площадь застройки
183 м2
Подвальное помещение
Нет
Показатель компактности здания
-
Приборы учета тепловой энергии
Нет
Пристроенный гараж/крытая автостоянка
Нет
Противопожарная система
Нет
Санузлы
2
Совмещенная кухня-гостиная
Да
Спальни
3
Терраса
Да
Тип фундамента
Ленточный
Тип кровли
Толщина внешних стен
400 мм
Толщина внутренних перегородок
150 мм
Улучшенные шумовые характеристики
Нет
Вентиляция
Естественная
Веранда
Нет
Водоотведение
Локальные очистные сооружения
Водоснабжение
Индивидуальное
Высота дома
6.7 м
Высота потолков
3.85 м

Планировка

Фасад дома

Александр

Закажите выезд инженера

Александр

Выездной инженер
Закажите выезд инженера для точной диагностики и профессиональной консультации по инженерным системам. Специалист приедет в удобное время, проведёт осмотр, рассчитает стоимость работ и подберёт оптимальные решения для вашего дома.


    Похожие проекты

    Ипотека и
    рассрочка
    Загородный дом — Тип 2
    Стоимость от:
    7 562 500
    Проект от: 42 750
    Этажей 1
    Санузлы 1
    Спальни 2
    Смотреть
    Ипотека и
    рассрочка
    Проект одноэтажного дома Марсель
    Стоимость от:
    13 441 780
    Проект от: 80 550
    Этажей 1
    Санузлы 2
    Спальни 3
    Смотреть
    Ипотека и
    рассрочка
    Дом из бруса с террасой и мансардным этажом
    Стоимость от:
    10 341 660
    Проект от: 70 650
    Этажей 2
    Санузлы 1
    Спальни 3
    Смотреть
    Ипотека и
    рассрочка
    Двухэтажный дом Д-125
    Стоимость от:
    9 361 200
    Проект от: 56 250
    Этажей 2
    Санузлы 2
    Спальни 4
    Смотреть
    Ипотека и
    рассрочка
    ДОМ № 1
    Стоимость от:
    10 262 780
    Проект от: 58 050
    Этажей 1
    Санузлы 1
    Спальни 2
    Смотреть
    Ипотека и
    рассрочка
    Одноэтажный дом «Крон»
    Стоимость от:
    4 378 440
    Проект от: 27 900
    Этажей 1
    Санузлы 1
    Спальни 2
    Смотреть

    Как узнать стоимость дома

    back
    Оставляете заявку
    Вы заполняете форму на сайте или звоните нам. Менеджер Лайвкрафт связывается с вами для уточнения деталей: тип дома, площадь, материалы, участок строительства.
    back
    Консультация и подбор решения
    Наш специалист помогает выбрать оптимальный тип дома и конструкцию с учётом бюджета, сроков и целей — будь то дом для постоянного проживания или дача.
    back
    Расчёт предварительной стоимости
    Инженер делает первичный расчёт стоимости строительства по вашим параметрам: фундамент, коробка, кровля, отделка. Вы получаете смету с разбивкой по этапам.
    back
    Корректировка и утверждение сметы
    При необходимости вносим изменения — например, замену материалов или сокращение этапов. После согласования формируется окончательная фиксированная смета.
    back
    Заключение договора и старт работ
    После утверждения сметы заключаем официальный договор с гарантией. Вы получаете прозрачный график и точную стоимость — без скрытых расходов.

    Заказать конусльтацию по:Лейпциг-120-114-С

    Фото 1 Лейпциг-120-114-С


      Наши
      контакты

      Дмитров
      Опорный проезд 28Б
      (индустриальный парк Ниагара)
      9:00 до 18:00

      Корзина