4.9
Рейтинг на основании 120 отзывов
Дмитров
Опорный проезд 28Б
(индустриальный парк Ниагара)
Бренд "Дмитров-Дело" c 2008 года на рынке строительства в Дмитрове
Звоните 9:00 до 18:00 8 (915) 055-33-61
Бренд "Дмитров-Дело" c 2008 года на рынке строительства в Дмитрове

Линеа — дом заводского изготовления (ПРЕФАБ)

Стоимость проекта от:
48 150 ₽
БЕСПЛАТНО! ПРИ ЗАКАЗЕ СТРОИТЕЛЬСТВА
Стоимость строительства от:
7 320 940 ₽
Артикул ART-15129
Дата 25.12.2025
Архитектурный стиль Скандинавский
Количество надземных этажей 1
Круглогодичное проживание Да
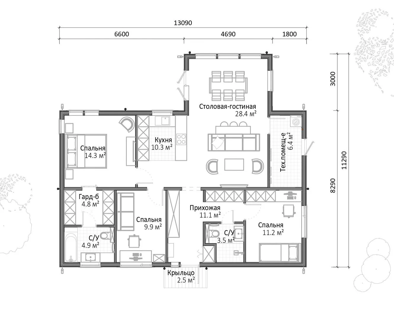
Площадь дома 107 м2
Санузлы 2
Спальни 3

Описание

Станьте владельцем дома «Линеа» – воплощения спокойствия и современной простоты. Заказать такой единичный, но просторный двухуровневый дом можно в кратчайшие сроки благодаря заводскому производству и модульной каркасно‑панельной технологии. Уже к моменту доставки на ваш участок он готов к круглогодичному проживанию: тепло, свежий воздух и уют обеспечит совмещённая «комбинированная» крыша, работающая как в пассивном, так и в активном климатическом режиме. Одноэтажный планировка позволяет легко ввести необходимые изменения, а отсутствие балконов и веранд экономит ваш бюджет и упрощает обслуживание. Архитектурный стиль «Скандинавский» дарит «Линее» элегантность и светлое пространство. Притягательный минимализм, простые линии и просторные окна создают непринуждённую атмосферу, в которой живёт гармония с природой. Внутреннее помещение удобно устроено: открытая кухня‑гостиная соединяется с зоной отдыха, а отдельная спальная комната придаёт чувство уединения и уюта. Благодаря качественным материалам и продуманной инженерной системе дом гарантирует долговечность и экономию энергии, а простая конструкция позволяет быстро и без усилий выполнить любые мелкие усовершенствования. Выбирая «Линеу», вы выбираете надёжность, простоту и стиль. Это не просто дом, а пространство, где каждый день начинается с тепла и завершается гармонией. Сделайте первый шаг к своему будущему – заказав «Линеу», вы получите готовый к жизни интерьер, который вдохновит вас и вашу семью на новые свершения.

Характеристики дома

Архитектурный стиль
Автоматизированное регулирование параметров теплоносителя
Да
Балконы/лоджии
Отсутствуют
Чердачное помещение
Нет
Датчики протечки воды
Нет
Эксплуатируемая или зеленая кровля
Нет
Электроснабжение
2 варианта
Газоснабжение
Индивидуальное
Изоляция воздушного шума
Нет
Камин
Нет
Класс энергоэффективности
-
Класс энергосбережения
-
Количество надземных этажей
1
Круглогодичное проживание
Да
Материал кровли
Цементно-песчаная черепица
Материал перекрытий
Иной вид материалов перекрытий
Материал внешних стен
Материал внутренних перегородок
Деревянные
Модульное строительство с конструкциями заводского изготовления
Да
Объем надземной части
363 м3
Основной материал фасадов
Дерево
Отопление
Индивидуальное
Площадь дома
107 м2
Площадь застройки
125 м2
Подвальное помещение
Нет
Показатель компактности здания
-
Приборы учета тепловой энергии
Да
Пристроенный гараж/крытая автостоянка
Нет
Противопожарная система
Нет
Санузлы
2
Совмещенная кухня-гостиная
Да
Спальни
3
Терраса
Нет
Тип фундамента
Плитный
Тип кровли
Толщина внешних стен
257 мм
Толщина внутренних перегородок
120 мм
Улучшенные шумовые характеристики
Да
Вентиляция
Естественная
Веранда
Нет
Водоотведение
2 варианта
Водоснабжение
2 варианта
Высота дома
5.25 м
Высота потолков
3 м

Планировка

Фасад дома

Александр

Закажите выезд инженера

Александр

Выездной инженер
Закажите выезд инженера для точной диагностики и профессиональной консультации по инженерным системам. Специалист приедет в удобное время, проведёт осмотр, рассчитает стоимость работ и подберёт оптимальные решения для вашего дома.


    Похожие проекты

    Ипотека и
    рассрочка
    Дом «Maxi» серии «NOVA»
    Стоимость от:
    9 075 385
    Проект от: 70 650
    Этажей 1
    Санузлы 1
    Спальни 3
    Смотреть
    Ипотека и
    рассрочка
    Индивидуальный жилой дом Т1-100(98)
    Стоимость от:
    7 515 200
    Проект от: 45 000
    Этажей 1
    Санузлы 1
    Спальни 3
    Смотреть
    Ипотека и
    рассрочка
    Двухэтажный дом СМ-23
    Стоимость от:
    11 961 600
    Проект от: 72 000
    Этажей 2
    Санузлы 3
    Спальни 4
    Смотреть
    Ипотека и
    рассрочка
    Двухэтажный дом БРАИТ-33Г
    Стоимость от:
    15 842 880
    Проект от: 95 400
    Этажей 2
    Санузлы 2
    Спальни 4
    Смотреть
    Ипотека и
    рассрочка
    Загородный дом АС-223
    Стоимость от:
    14 044 800
    Проект от: 99 000
    Этажей 2
    Санузлы 3
    Спальни 4
    Смотреть
    Ипотека и
    рассрочка
    Загородный дом Традиция 80/110
    Стоимость от:
    7 950 580
    Проект от: 49 050
    Этажей 1
    Санузлы 1
    Спальни 2
    Смотреть

    Как узнать стоимость дома

    back
    Оставляете заявку
    Вы заполняете форму на сайте или звоните нам. Менеджер Лайвкрафт связывается с вами для уточнения деталей: тип дома, площадь, материалы, участок строительства.
    back
    Консультация и подбор решения
    Наш специалист помогает выбрать оптимальный тип дома и конструкцию с учётом бюджета, сроков и целей — будь то дом для постоянного проживания или дача.
    back
    Расчёт предварительной стоимости
    Инженер делает первичный расчёт стоимости строительства по вашим параметрам: фундамент, коробка, кровля, отделка. Вы получаете смету с разбивкой по этапам.
    back
    Корректировка и утверждение сметы
    При необходимости вносим изменения — например, замену материалов или сокращение этапов. После согласования формируется окончательная фиксированная смета.
    back
    Заключение договора и старт работ
    После утверждения сметы заключаем официальный договор с гарантией. Вы получаете прозрачный график и точную стоимость — без скрытых расходов.

    Заказать конусльтацию по:Линеа — дом заводского изготовления (ПРЕФАБ)

    Фото 1 Линеа — дом заводского изготовления (ПРЕФАБ)


      Наши
      контакты

      Дмитров
      Опорный проезд 28Б
      (индустриальный парк Ниагара)
      9:00 до 18:00

      Корзина