4.9
Рейтинг на основании 120 отзывов
Дмитров
Опорный проезд 28Б
(индустриальный парк Ниагара)
Бренд "Дмитров-Дело" c 2008 года на рынке строительства в Дмитрове
Звоните 9:00 до 18:00 8 (915) 055-33-61
Бренд "Дмитров-Дело" c 2008 года на рынке строительства в Дмитрове

М-73

Стоимость проекта от:
40 950 ₽
БЕСПЛАТНО! ПРИ ЗАКАЗЕ СТРОИТЕЛЬСТВА
Стоимость строительства от:
5 060 055 ₽
Артикул ART-16546
Дата 26.12.2025
Архитектурный стиль Барнхаус
Количество надземных этажей 1
Круглогодичное проживание Да
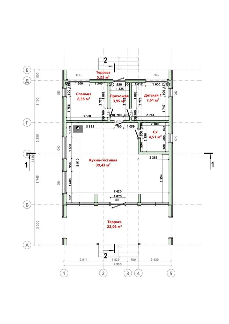
Площадь дома 91 м2
Санузлы 1
Спальни 2

Описание

Сияя теплом уюта и неповторимым шиком рустикального дизайна, дом «М‑73» приглашает вас окунуться в атмосферу настоящей идиллии. Её одноэтажная планировка, выполненная в стиле Barnhouse, раскрывает простоту и гармонию, благодаря деревянному каркасному фасаду и широким, слегка наклонным бревенчатыми крыше, которые создают ощущение, будто вы остаетесь в сердце природы, но при этом живёте полноценным жильём круглый год. Отсутствие балконов и веранд делает жилой простор ещё более непрерывным и целостным, а наличие просторной террасы добавляет яркую нотку свежего воздуха и изысканного комфорта на открытой площадке. Внутри дом раскрывает себя как уютное убежище от городской суеты. Современная кухня и светлая гостиная, обрамленные деревянными панельными стенами, создают тёплую и гостеприимную атмосферу, где каждый уголок пропитан естественным светом. Уютные спальни, оформленные в стиле Barnhouse, гарантируют спокойный сон и полноценное восстановление после каждого дня. Прекрасно подобранные материалы, от дерева до утеплителя, делают дом устойчивым к любым климатическим условиям, обеспечивая ваш комфорт в любое время года. Если вы ищете место, где каждый вдох наполняется свежестью и природой, где ваш дом становится вашим личным оазисом, «М‑73» в стиле Barnhouse – идеальный выбор. Позвольте своим мечтам стать реальностью, и откройте дверь к новому, светлому и счастливому будущему.

Характеристики дома

Архитектурный стиль
Автоматизированное регулирование параметров теплоносителя
Да
Балконы/лоджии
Отсутствуют
Чердачное помещение
Нет
Датчики протечки воды
Нет
Эксплуатируемая или зеленая кровля
Нет
Электроснабжение
Центральное
Газоснабжение
Не предусмотрено
Изоляция воздушного шума
Да
Камин
Да
Класс энергоэффективности
-
Класс энергосбережения
-
Количество надземных этажей
1
Круглогодичное проживание
Да
Материал кровли
Металлические рулонные или листовые материалы
Материал перекрытий
Деревянные
Материал внешних стен
Материал внутренних перегородок
Деревянные
Модульное строительство с конструкциями заводского изготовления
Нет
Объем надземной части
-
Основной материал фасадов
Дерево
Отопление
Индивидуальное
Площадь дома
91 м2
Площадь застройки
103 м2
Подвальное помещение
Нет
Показатель компактности здания
-
Приборы учета тепловой энергии
Нет
Пристроенный гараж/крытая автостоянка
Нет
Противопожарная система
Нет
Санузлы
1
Совмещенная кухня-гостиная
Да
Спальни
2
Терраса
Да
Тип фундамента
Свайно-винтовой
Тип кровли
Толщина внешних стен
300 мм
Толщина внутренних перегородок
150 мм
Улучшенные шумовые характеристики
Да
Вентиляция
Принудительная
Веранда
Нет
Водоотведение
Локальные очистные сооружения
Водоснабжение
Индивидуальное
Высота дома
3.43 м
Высота потолков
3.2 м

Планировка

Фасад дома

Александр

Закажите выезд инженера

Александр

Выездной инженер
Закажите выезд инженера для точной диагностики и профессиональной консультации по инженерным системам. Специалист приедет в удобное время, проведёт осмотр, рассчитает стоимость работ и подберёт оптимальные решения для вашего дома.


    Похожие проекты

    Ипотека и
    рассрочка
    Индивидуальный проект в современном стиле
    Стоимость от:
    18 807 360
    Проект от: 123 300
    Этажей 2
    Санузлы 2
    Спальни 3
    Смотреть
    Ипотека и
    рассрочка
    КД 21-22 «Калининград»
    Стоимость от:
    6 023 160
    Проект от: 48 600
    Этажей 1
    Санузлы 1
    Спальни 3
    Смотреть
    Ипотека и
    рассрочка
    Двухэтажный жилой дом НОТТИНГЕМ
    Стоимость от:
    14 399 760
    Проект от: 89 550
    Этажей 2
    Санузлы 2
    Спальни 3
    Смотреть
    Ипотека и
    рассрочка
    Йонкерс
    Стоимость от:
    8 033 700
    Проект от: 54 900
    Этажей 2
    Санузлы 2
    Спальни 4
    Смотреть
    Ипотека и
    рассрочка
    Охлопковы 8647
    Стоимость от:
    11 056 980
    Проект от: 62 550
    Этажей 1
    Санузлы 1
    Спальни 3
    Смотреть
    Ипотека и
    рассрочка
    Проект 03-24
    Стоимость от:
    13 865 280
    Проект от: 90 900
    Этажей 2
    Санузлы 3
    Спальни 3
    Смотреть

    Как узнать стоимость дома

    back
    Оставляете заявку
    Вы заполняете форму на сайте или звоните нам. Менеджер Лайвкрафт связывается с вами для уточнения деталей: тип дома, площадь, материалы, участок строительства.
    back
    Консультация и подбор решения
    Наш специалист помогает выбрать оптимальный тип дома и конструкцию с учётом бюджета, сроков и целей — будь то дом для постоянного проживания или дача.
    back
    Расчёт предварительной стоимости
    Инженер делает первичный расчёт стоимости строительства по вашим параметрам: фундамент, коробка, кровля, отделка. Вы получаете смету с разбивкой по этапам.
    back
    Корректировка и утверждение сметы
    При необходимости вносим изменения — например, замену материалов или сокращение этапов. После согласования формируется окончательная фиксированная смета.
    back
    Заключение договора и старт работ
    После утверждения сметы заключаем официальный договор с гарантией. Вы получаете прозрачный график и точную стоимость — без скрытых расходов.

    Заказать конусльтацию по:М-73

    Фото 1 М-73


      Наши
      контакты

      Дмитров
      Опорный проезд 28Б
      (индустриальный парк Ниагара)
      9:00 до 18:00

      Корзина