4.9
Рейтинг на основании 120 отзывов
Дмитров
Опорный проезд 28Б
(индустриальный парк Ниагара)
Бренд "Дмитров-Дело" c 2008 года на рынке строительства в Дмитрове
Звоните 9:00 до 18:00 8 (915) 055-33-61
Бренд "Дмитров-Дело" c 2008 года на рынке строительства в Дмитрове

МАГДЕБУРГ-133

Стоимость проекта от:
64 800 ₽
БЕСПЛАТНО! ПРИ ЗАКАЗЕ СТРОИТЕЛЬСТВА
Стоимость строительства от:
10 416 960 ₽
Артикул ART-4164
Дата 26.12.2025
Архитектурный стиль Минимализм
Количество надземных этажей 2
Круглогодичное проживание Да
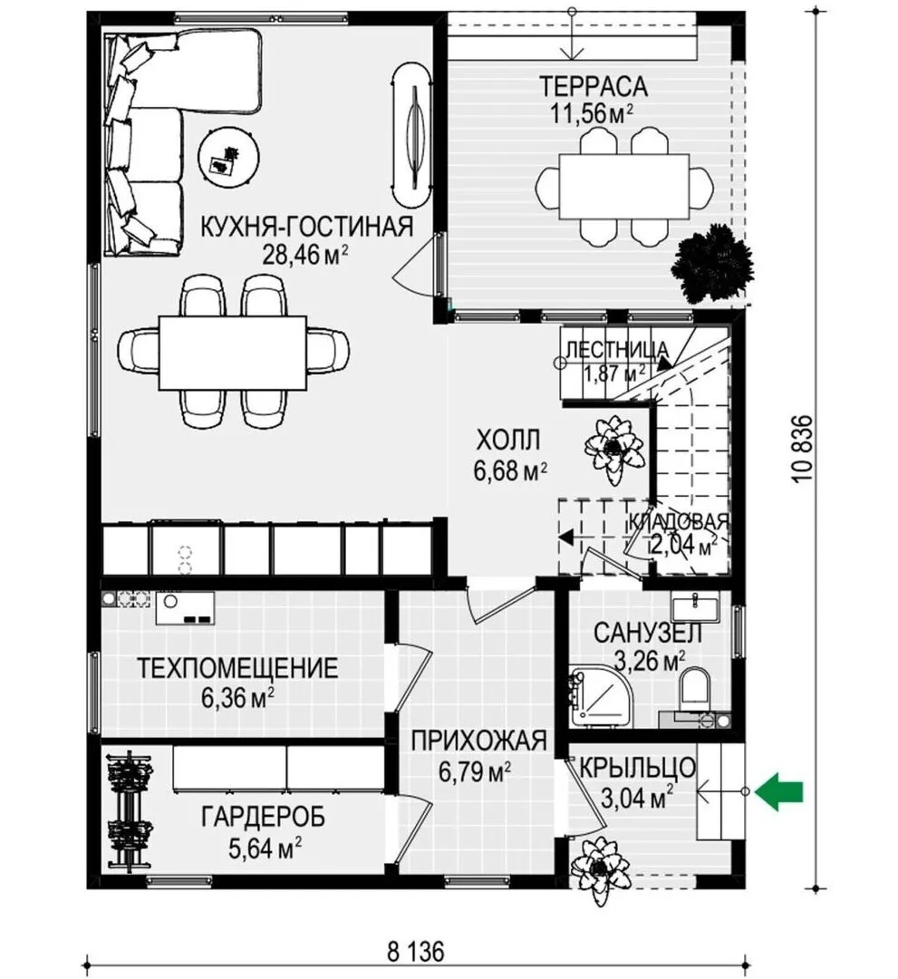
Площадь дома 144 м2
Санузлы 3
Спальни 3

Описание

Представляем вашему вниманию эксклюзивный проект – дом МАГДЕБУРГ‑133, воплощение современного минимализма в компактном двухэтажном исполнении. Зонированная планировка позволяет легко распределить пространство: первый уровень удобно сочетает открытый кухонный-обеденный зал с жилым офисом, а второй‑этаж служит уютными спальнями и собственной ванной. Каркасно‑панельный заборы создают легкость и непринужденность, а четыре склонных крыши в вальмовом стиле придают дому строгую гармонию простых форм и тепло, не забывая про энергоэффективность. Круглогодичное проживание стало реальностью благодаря продуманной теплоизоляции и системе вентиляции с рекуперацией, обеспечивающей комфорт даже в самые сырые дни. Одна из главных особенностей – просторная, солнечная терраса, где можно насладиться закатом, устроить барбекю или просто читать книгу в уединении с садом. В доме нет балконов и лоджий, зато каждый уголок проработан до мелочей, чтобы создать ощущение открытости и простора. На внешнем уровне отсутствуют присоединённые гаражи и крытые стоянки, что придаёт дому лаконичный вид и позволяет сосредоточиться на главном – уюте и эстетике. Дом МАГДЕБУРГ‑133 – это выбор для тех, кто ценит чистый дизайн, функциональность и гармонию с природой. Простая форма, современный комфорт и уникальная атмосфера сделают каждый день дома неповторимым. Приглашаем вас открыть для себя все преимущества этого проекта и стать частью нового архитектурного стиля в вашем городе.

Характеристики дома

Архитектурный стиль
Автоматизированное регулирование параметров теплоносителя
Нет
Балконы/лоджии
Отсутствуют
Чердачное помещение
Нет
Датчики протечки воды
Нет
Эксплуатируемая или зеленая кровля
Да
Электроснабжение
Центральное
Газоснабжение
Не предусмотрено
Изоляция воздушного шума
Нет
Камин
Нет
Класс энергоэффективности
-
Класс энергосбережения
-
Количество надземных этажей
2
Круглогодичное проживание
Да
Материал кровли
Металлочерепица
Материал перекрытий
Деревянные
Материал внешних стен
Материал внутренних перегородок
Цементно-стружечная плита
Модульное строительство с конструкциями заводского изготовления
Нет
Объем надземной части
483 м3
Основной материал фасадов
Фасадная плитка
Отопление
Индивидуальное
Площадь дома
144 м2
Площадь застройки
86 м2
Подвальное помещение
Да
Показатель компактности здания
-
Приборы учета тепловой энергии
Нет
Пристроенный гараж/крытая автостоянка
Нет
Противопожарная система
Нет
Санузлы
3
Совмещенная кухня-гостиная
Да
Спальни
3
Терраса
Да
Тип фундамента
Свайно-ростверковый
Толщина внешних стен
168 мм
Толщина внутренних перегородок
100 мм
Улучшенные шумовые характеристики
Нет
Вентиляция
Естественная
Веранда
Нет
Водоотведение
Локальные очистные сооружения
Водоснабжение
Индивидуальное
Высота дома
7.2 м
Высота потолков
2.6 м

Планировка

Фасад дома

Александр

Закажите выезд инженера

Александр

Выездной инженер
Закажите выезд инженера для точной диагностики и профессиональной консультации по инженерным системам. Специалист приедет в удобное время, проведёт осмотр, рассчитает стоимость работ и подберёт оптимальные решения для вашего дома.


    Похожие проекты

    Ипотека и
    рассрочка
    Дом из CLT «Артем»
    Стоимость от:
    398 160
    Проект от: 37 800
    Этажей 2
    Санузлы 2
    Спальни 3
    Смотреть
    Ипотека и
    рассрочка
    Ананас 72
    Стоимость от:
    5 735 840
    Проект от: 32 400
    Этажей 1
    Санузлы 1
    Спальни 3
    Смотреть
    Ипотека и
    рассрочка
    ЭС-93
    Стоимость от:
    11 374 660
    Проект от: 64 350
    Этажей 1
    Санузлы 2
    Спальни 4
    Смотреть
    Ипотека и
    рассрочка
    Одноэтажный дом с мансардой FIXPLANS — 2474
    Стоимость от:
    15 780 240
    Проект от: 94 950
    Этажей 2
    Санузлы 2
    Спальни 5
    Смотреть
    Ипотека и
    рассрочка
    Двухэтажный барнхаус Лаг-ОМ — 180
    Стоимость от:
    8 754 360
    Проект от: 67 050
    Этажей 2
    Санузлы 4
    Спальни 4
    Смотреть
    Ипотека и
    рассрочка
    Проект Мечта
    Стоимость от:
    12 372 800
    Проект от: 72 000
    Этажей 1
    Санузлы 2
    Спальни 3
    Смотреть

    Как узнать стоимость дома

    back
    Оставляете заявку
    Вы заполняете форму на сайте или звоните нам. Менеджер Лайвкрафт связывается с вами для уточнения деталей: тип дома, площадь, материалы, участок строительства.
    back
    Консультация и подбор решения
    Наш специалист помогает выбрать оптимальный тип дома и конструкцию с учётом бюджета, сроков и целей — будь то дом для постоянного проживания или дача.
    back
    Расчёт предварительной стоимости
    Инженер делает первичный расчёт стоимости строительства по вашим параметрам: фундамент, коробка, кровля, отделка. Вы получаете смету с разбивкой по этапам.
    back
    Корректировка и утверждение сметы
    При необходимости вносим изменения — например, замену материалов или сокращение этапов. После согласования формируется окончательная фиксированная смета.
    back
    Заключение договора и старт работ
    После утверждения сметы заключаем официальный договор с гарантией. Вы получаете прозрачный график и точную стоимость — без скрытых расходов.

    Заказать конусльтацию по:МАГДЕБУРГ-133

    Фото 1 МАГДЕБУРГ-133


      Наши
      контакты

      Дмитров
      Опорный проезд 28Б
      (индустриальный парк Ниагара)
      9:00 до 18:00

      Корзина