4.9
Рейтинг на основании 120 отзывов
Дмитров
Опорный проезд 28Б
(индустриальный парк Ниагара)
Бренд "Дмитров-Дело" c 2008 года на рынке строительства в Дмитрове
Звоните 9:00 до 18:00 8 (915) 055-33-61
Бренд "Дмитров-Дело" c 2008 года на рынке строительства в Дмитрове

«Майами»

Стоимость проекта от:
38 700 ₽
БЕСПЛАТНО! ПРИ ЗАКАЗЕ СТРОИТЕЛЬСТВА
Стоимость строительства от:
6 464 920 ₽
Артикул ART-6242
Дата 26.12.2025
Архитектурный стиль Европейский
Количество надземных этажей 1
Круглогодичное проживание Да
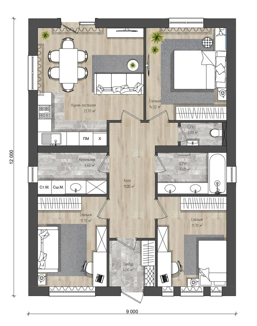
Площадь дома 86 м2
Санузлы 2
Спальни 3

Описание

Дом «Майами» — это идеальное сочетание уюта и европейской элегантности на одном уровне. Благодаря однокровневому строению каждая комната открывается на свет и простоту, а отсутствие лестниц делает его особенно привлекательным для семей с детьми и пожилыми людьми. Долгосрочное проживание гарантировано: влага удерживается от внешних стен, выполненных из газобетонных блоков, а прочная четырехскатная (вальмовая) крыша защищает от любых погодных условий, создавая надёжный убежище на любой сезон. Эстетика дома подчёркивается безупречным европейским стилем, где лаконичные линии и тщательно продуманные детали создают гармоничное пространство. Внутреннее убранство сдержано и изыскано, позволяя сосредоточиться на приятном окружении и качестве жизни. Небольшая площадка перед домом, украшенная ухоженным садом, становится природным продолжением интерьера и привносит свежесть и умиротворение в повседневную рутину. Несмотря на лаконичность фасада, «Майами» оснащён всем необходимым для комфортной жизни: просторной кухней, светлыми спальнями и удобным санузлом. В доме нет лишних узлов – от балконов до пристроенного гаража – что делает его простой в обслуживании и экономичной в эксплуатации. Выбирая «Майами», вы получаете не просто жильё, а настоящее уединённое убежище, где каждая деталь продумана до последнего штриха, а каждый день начинается на свежем воздухе и в круглом пространстве европейской гармонии.

Характеристики дома

Архитектурный стиль
Автоматизированное регулирование параметров теплоносителя
-
Балконы/лоджии
Отсутствуют
Чердачное помещение
Нет
Датчики протечки воды
-
Эксплуатируемая или зеленая кровля
-
Электроснабжение
Центральное
Газоснабжение
2 варианта
Изоляция воздушного шума
-
Камин
Нет
Класс энергоэффективности
-
Класс энергосбережения
-
Количество надземных этажей
1
Круглогодичное проживание
Да
Материал кровли
Металлочерепица
Материал перекрытий
Монолитные железобетонные
Материал внешних стен
Материал внутренних перегородок
Блочные
Модульное строительство с конструкциями заводского изготовления
Нет
Объем надземной части
423 м3
Основной материал фасадов
Штукатурка
Отопление
2 варианта
Площадь дома
86 м2
Площадь застройки
108 м2
Подвальное помещение
Нет
Показатель компактности здания
-
Приборы учета тепловой энергии
-
Пристроенный гараж/крытая автостоянка
Нет
Противопожарная система
Нет
Санузлы
2
Совмещенная кухня-гостиная
Да
Спальни
3
Терраса
Нет
Тип фундамента
Свайно-ростверковый
Толщина внешних стен
400 мм
Толщина внутренних перегородок
100 мм
Улучшенные шумовые характеристики
-
Вентиляция
Естественная
Веранда
Нет
Водоотведение
2 варианта
Водоснабжение
2 варианта
Высота дома
5.25 м
Высота потолков
3.1 м

Планировка

Фасад дома

Александр

Закажите выезд инженера

Александр

Выездной инженер
Закажите выезд инженера для точной диагностики и профессиональной консультации по инженерным системам. Специалист приедет в удобное время, проведёт осмотр, рассчитает стоимость работ и подберёт оптимальные решения для вашего дома.


    Похожие проекты

    Ипотека и
    рассрочка
    Загородный дом «Макадамия»
    Стоимость от:
    9 350 640
    Проект от: 70 200
    Этажей 2
    Санузлы 2
    Спальни 4
    Смотреть
    Ипотека и
    рассрочка
    GP-211 К
    Стоимость от:
    5 739 030
    Проект от: 44 550
    Этажей 1
    Санузлы 2
    Спальни 3
    Смотреть
    Ипотека и
    рассрочка
    Двухэтажный дом в классическом стиле Г-132
    Стоимость от:
    6 989 640
    Проект от: 47 700
    Этажей 2
    Санузлы 2
    Спальни 5
    Смотреть
    Ипотека и
    рассрочка
    ГБ-421-24
    Стоимость от:
    30 753 060
    Проект от: 189 450
    Этажей 3
    Санузлы 4
    Спальни 6
    Смотреть
    Ипотека и
    рассрочка
    Двухэтажное Шале 150
    Стоимость от:
    10 670 400
    Проект от: 67 500
    Этажей 2
    Санузлы 3
    Спальни 3
    Смотреть
    Ипотека и
    рассрочка
    Двухэтажный загородный дом CASUAL
    Стоимость от:
    10 416 960
    Проект от: 64 800
    Этажей 2
    Санузлы 2
    Спальни 4
    Смотреть

    Как узнать стоимость дома

    back
    Оставляете заявку
    Вы заполняете форму на сайте или звоните нам. Менеджер Лайвкрафт связывается с вами для уточнения деталей: тип дома, площадь, материалы, участок строительства.
    back
    Консультация и подбор решения
    Наш специалист помогает выбрать оптимальный тип дома и конструкцию с учётом бюджета, сроков и целей — будь то дом для постоянного проживания или дача.
    back
    Расчёт предварительной стоимости
    Инженер делает первичный расчёт стоимости строительства по вашим параметрам: фундамент, коробка, кровля, отделка. Вы получаете смету с разбивкой по этапам.
    back
    Корректировка и утверждение сметы
    При необходимости вносим изменения — например, замену материалов или сокращение этапов. После согласования формируется окончательная фиксированная смета.
    back
    Заключение договора и старт работ
    После утверждения сметы заключаем официальный договор с гарантией. Вы получаете прозрачный график и точную стоимость — без скрытых расходов.

    Заказать конусльтацию по:«Майами»

    Фото 1 «Майами»


      Наши
      контакты

      Дмитров
      Опорный проезд 28Б
      (индустриальный парк Ниагара)
      9:00 до 18:00

      Корзина