4.9
Рейтинг на основании 120 отзывов
Дмитров
Опорный проезд 28Б
(индустриальный парк Ниагара)
Бренд "Дмитров-Дело" c 2008 года на рынке строительства в Дмитрове
Звоните 9:00 до 18:00 8 (915) 055-33-61
Бренд "Дмитров-Дело" c 2008 года на рынке строительства в Дмитрове

МО-80

Стоимость проекта от:
38 250 ₽
БЕСПЛАТНО! ПРИ ЗАКАЗЕ СТРОИТЕЛЬСТВА
Стоимость строительства от:
6 002 700 ₽
Артикул ART-14762
Дата 25.12.2025
Архитектурный стиль Классический
Количество надземных этажей 1
Круглогодичное проживание Да
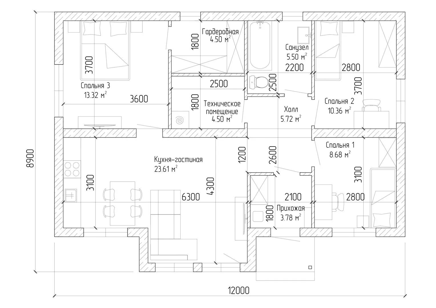
Площадь дома 85 м2
Санузлы 1
Спальни 3

Описание

Прекрасный дом в стиле «классика» в спокойном районе — идеальное место для тех, кто ценит уют и простоту. На первом этаже расположены уютная гостиная с большим окном, открывающим тёплое утреннее солнце, а также светлая кухня и комната для детей. Несмотря на ограниченное количество поверхностей, каждая деталь продумана: от эргономичной планировки до гармоничных отделок. Отсутствие балконов и веранд не мешает создать ощущение простора, ведь на территории есть удобный подъезд и место для парковки ваших машин под отдельным навесом. Дом построен из газобетонных блоков, что обеспечивает отличную изоляцию от холода и шума. Комбинированная крыша, сочетающая металлические листы с керамическими панелями, гарантирует долгий срок службы и аккуратный внешний вид. Кроме того, в доме предусмотрено чердачное помещение, которое можно превратить в уютное хранилище, мастерскую или даже дополнительную спальню, если понадобится. Этот дом – прекрасный выбор для тех, кто ищет спокойствие круглый год, комфорт и классический дизайн, где каждый день начинается и заканчивается в тишине и гармонии. Убедитесь сами, как уютно можно жить в вашем новом доме, и сделайте первый шаг к желаемому образу жизни.

Характеристики дома

Архитектурный стиль
Автоматизированное регулирование параметров теплоносителя
Нет
Балконы/лоджии
Отсутствуют
Чердачное помещение
Да
Датчики протечки воды
Нет
Эксплуатируемая или зеленая кровля
Нет
Электроснабжение
Не предусмотрено
Газоснабжение
Не предусмотрено
Изоляция воздушного шума
Нет
Камин
Нет
Класс энергоэффективности
-
Класс энергосбережения
-
Количество надземных этажей
1
Круглогодичное проживание
Да
Материал кровли
Металлочерепица
Материал перекрытий
Деревянные
Материал внешних стен
Материал внутренних перегородок
Блочные
Модульное строительство с конструкциями заводского изготовления
Нет
Объем надземной части
499 м3
Основной материал фасадов
Облицовочный кирпич
Отопление
Не предусмотрено
Площадь дома
85 м2
Площадь застройки
100 м2
Подвальное помещение
Нет
Показатель компактности здания
-
Приборы учета тепловой энергии
Нет
Пристроенный гараж/крытая автостоянка
Нет
Противопожарная система
Нет
Санузлы
1
Совмещенная кухня-гостиная
Да
Спальни
3
Терраса
Нет
Тип фундамента
Плитный
Тип кровли
Толщина внешних стен
300 мм
Толщина внутренних перегородок
100 мм
Улучшенные шумовые характеристики
Нет
Вентиляция
Естественная
Веранда
Нет
Водоотведение
Не предусмотрено
Водоснабжение
Не предусмотрено
Высота дома
5 м
Высота потолков
2.8 м

Планировка

Фасад дома

Александр

Закажите выезд инженера

Александр

Выездной инженер
Закажите выезд инженера для точной диагностики и профессиональной консультации по инженерным системам. Специалист приедет в удобное время, проведёт осмотр, рассчитает стоимость работ и подберёт оптимальные решения для вашего дома.


    Похожие проекты

    Ипотека и
    рассрочка
    Минимал-95
    Стоимость от:
    7 140 100
    Проект от: 42 750
    Этажей 1
    Санузлы 1
    Спальни 3
    Смотреть
    Ипотека и
    рассрочка
    Ангара
    Стоимость от:
    5 458 420
    Проект от: 38 700
    Этажей 1
    Санузлы 1
    Спальни 2
    Смотреть
    Ипотека и
    рассрочка
    Двухэтажный дом Black Г-4
    Стоимость от:
    13 532 160
    Проект от: 82 800
    Этажей 2
    Санузлы 2
    Спальни 3
    Смотреть
    Ипотека и
    рассрочка
    Дом из клееного бруса «Онега»
    Стоимость от:
    10 554 720
    Проект от: 73 350
    Этажей 2
    Санузлы 1
    Спальни 3
    Смотреть
    Ипотека и
    рассрочка
    Частный дом ШС-2
    Стоимость от:
    6 915 040
    Проект от: 41 400
    Этажей 1
    Санузлы 1
    Спальни 3
    Смотреть
    Ипотека и
    рассрочка
    ОД-112
    Стоимость от:
    7 663 040
    Проект от: 50 400
    Этажей 1
    Санузлы 2
    Спальни 3
    Смотреть

    Как узнать стоимость дома

    back
    Оставляете заявку
    Вы заполняете форму на сайте или звоните нам. Менеджер Лайвкрафт связывается с вами для уточнения деталей: тип дома, площадь, материалы, участок строительства.
    back
    Консультация и подбор решения
    Наш специалист помогает выбрать оптимальный тип дома и конструкцию с учётом бюджета, сроков и целей — будь то дом для постоянного проживания или дача.
    back
    Расчёт предварительной стоимости
    Инженер делает первичный расчёт стоимости строительства по вашим параметрам: фундамент, коробка, кровля, отделка. Вы получаете смету с разбивкой по этапам.
    back
    Корректировка и утверждение сметы
    При необходимости вносим изменения — например, замену материалов или сокращение этапов. После согласования формируется окончательная фиксированная смета.
    back
    Заключение договора и старт работ
    После утверждения сметы заключаем официальный договор с гарантией. Вы получаете прозрачный график и точную стоимость — без скрытых расходов.

    Заказать конусльтацию по:МО-80

    Фото 1 МО-80


      Наши
      контакты

      Дмитров
      Опорный проезд 28Б
      (индустриальный парк Ниагара)
      9:00 до 18:00

      Корзина