4.9
Рейтинг на основании 120 отзывов
Дмитров
Опорный проезд 28Б
(индустриальный парк Ниагара)
Бренд "Дмитров-Дело" c 2008 года на рынке строительства в Дмитрове
Звоните 9:00 до 18:00 8 (915) 055-33-61
Бренд "Дмитров-Дело" c 2008 года на рынке строительства в Дмитрове

Модульный дом А001

Стоимость проекта от:
23 400 ₽
БЕСПЛАТНО! ПРИ ЗАКАЗЕ СТРОИТЕЛЬСТВА
Стоимость строительства от:
2 891 460 ₽
Артикул ART-17809
Дата 26.12.2025
Архитектурный стиль Минимализм
Количество надземных этажей 1
Круглогодичное проживание Да
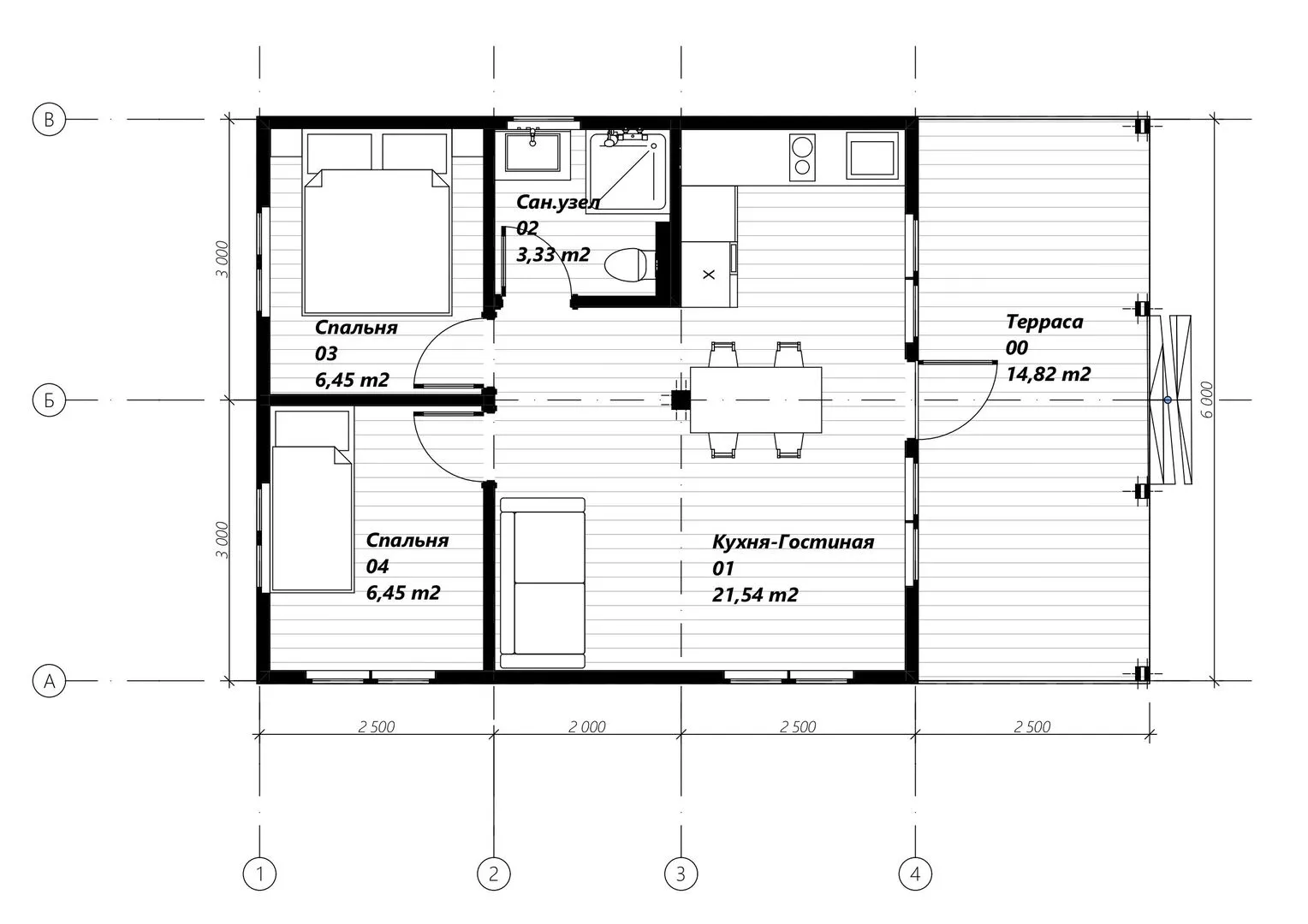
Площадь дома 52 м2
Санузлы 1
Спальни 2

Описание

Уютный модульный дом **А001** – ваш новый уголок спокойствия и простоты. С одним надземным этажом он идеально подходит для семей с детьми, молодых пар и тех, кто ценит практичность и комфорт в круглогодичном жилье. Минималистичный дизайн подчёркнут простыми линиями и естественными материалами – деревянный каркасных стен, подчёркивающий природный характер дома и создающий ощущение тепла и гармонии в любой поглощённой атмосфере. Этот дом не только стильно выглядит, но и предлагает вам просторный внутренний мир, где каждый уголок продуман до мелочей. Спокойная терраса, открытая к живописному ландшафту, станет вашим личным убежищем для вечерних бесед, чтения под солнцем или простого отдыха после рабочего дня. Однос катная крыша добавляет элегантности, при этом позволяя максимально использовать природный свет и воздушность пространства. Независимо от ваших привычек, модульный дом А001 – это сочетание практичности, современного дизайна и природных материалов. Позвольте себе насладиться идеальным балансом между простотой и комфортом: уют, безопасность и стиль в одном месте. Приглашаем принять решение, которое превратит ваш дом в настоящее место силы, где каждый день будет наполнен лёгкостью и благополучием.

Характеристики дома

Архитектурный стиль
Автоматизированное регулирование параметров теплоносителя
Да
Балконы/лоджии
Отсутствуют
Чердачное помещение
Нет
Датчики протечки воды
Нет
Эксплуатируемая или зеленая кровля
Нет
Электроснабжение
Индивидуальное
Газоснабжение
Индивидуальное
Изоляция воздушного шума
Нет
Камин
Нет
Класс энергоэффективности
A+
Класс энергосбережения
A+
Количество надземных этажей
1
Круглогодичное проживание
Да
Материал кровли
Металлические листовые гофрированные профили
Материал перекрытий
Деревянные
Материал внешних стен
Материал внутренних перегородок
Деревянные
Модульное строительство с конструкциями заводского изготовления
Нет
Объем надземной части
171 м3
Основной материал фасадов
Дерево
Отопление
Индивидуальное
Площадь дома
52 м2
Площадь застройки
57 м2
Подвальное помещение
Нет
Показатель компактности здания
4
Приборы учета тепловой энергии
Да
Пристроенный гараж/крытая автостоянка
Нет
Противопожарная система
Нет
Санузлы
1
Совмещенная кухня-гостиная
Да
Спальни
2
Терраса
Да
Тип фундамента
Свайно-винтовой
Тип кровли
Толщина внешних стен
100 мм
Толщина внутренних перегородок
100 мм
Улучшенные шумовые характеристики
Да
Вентиляция
Принудительная
Веранда
Нет
Водоотведение
Локальные очистные сооружения
Водоснабжение
Индивидуальное
Высота дома
3 м
Высота потолков
2.7 м

Планировка

Фасад дома

Александр

Закажите выезд инженера

Александр

Выездной инженер
Закажите выезд инженера для точной диагностики и профессиональной консультации по инженерным системам. Специалист приедет в удобное время, проведёт осмотр, рассчитает стоимость работ и подберёт оптимальные решения для вашего дома.


    Похожие проекты

    Ипотека и
    рассрочка
    Каркасный дом 6,0х6,0м КД-49
    Стоимость от:
    3 534 360
    Проект от: 26 550
    Этажей 2
    Санузлы 1
    Спальни 3
    Смотреть
    Ипотека и
    рассрочка
    БД 1454
    Стоимость от:
    4 802 160
    Проект от: 30 600
    Этажей 1
    Санузлы 1
    Спальни 2
    Смотреть
    Ипотека и
    рассрочка
    Мансардный дом К-185
    Стоимость от:
    12 850 560
    Проект от: 82 800
    Этажей 2
    Санузлы 2
    Спальни 3
    Смотреть
    Ипотека и
    рассрочка
    Дом Дарли с террасой
    Стоимость от:
    6 920 760
    Проект от: 44 100
    Этажей 1
    Санузлы 2
    Спальни 3
    Смотреть
    Ипотека и
    рассрочка
    Киитос
    Стоимость от:
    4 155 140
    Проект от: 30 600
    Этажей 1
    Санузлы 1
    Спальни 3
    Смотреть
    Ипотека и
    рассрочка
    Одноэтажный дом в стиле Барнхаус «Sodaar 92»
    Стоимость от:
    5 115 660
    Проект от: 41 400
    Этажей 1
    Санузлы 1
    Спальни 2
    Смотреть

    Как узнать стоимость дома

    back
    Оставляете заявку
    Вы заполняете форму на сайте или звоните нам. Менеджер Лайвкрафт связывается с вами для уточнения деталей: тип дома, площадь, материалы, участок строительства.
    back
    Консультация и подбор решения
    Наш специалист помогает выбрать оптимальный тип дома и конструкцию с учётом бюджета, сроков и целей — будь то дом для постоянного проживания или дача.
    back
    Расчёт предварительной стоимости
    Инженер делает первичный расчёт стоимости строительства по вашим параметрам: фундамент, коробка, кровля, отделка. Вы получаете смету с разбивкой по этапам.
    back
    Корректировка и утверждение сметы
    При необходимости вносим изменения — например, замену материалов или сокращение этапов. После согласования формируется окончательная фиксированная смета.
    back
    Заключение договора и старт работ
    После утверждения сметы заключаем официальный договор с гарантией. Вы получаете прозрачный график и точную стоимость — без скрытых расходов.

    Заказать конусльтацию по:Модульный дом А001

    Фото 1 Модульный дом А001


      Наши
      контакты

      Дмитров
      Опорный проезд 28Б
      (индустриальный парк Ниагара)
      9:00 до 18:00

      Корзина