4.9
Рейтинг на основании 120 отзывов
Дмитров
Опорный проезд 28Б
(индустриальный парк Ниагара)
Бренд "Дмитров-Дело" c 2008 года на рынке строительства в Дмитрове
Звоните 9:00 до 18:00 8 (915) 055-33-61
Бренд "Дмитров-Дело" c 2008 года на рынке строительства в Дмитрове

Модульный каркасный дом с парной и верандой серии «Эстэр 9,9 х 8,4 м»

Стоимость проекта от:
29 250 ₽
БЕСПЛАТНО! ПРИ ЗАКАЗЕ СТРОИТЕЛЬСТВА
Стоимость строительства от:
3 614 325 ₽
Артикул ART-15953
Дата 25.12.2025
Архитектурный стиль Скандинавский
Количество надземных этажей 1
Круглогодичное проживание Да
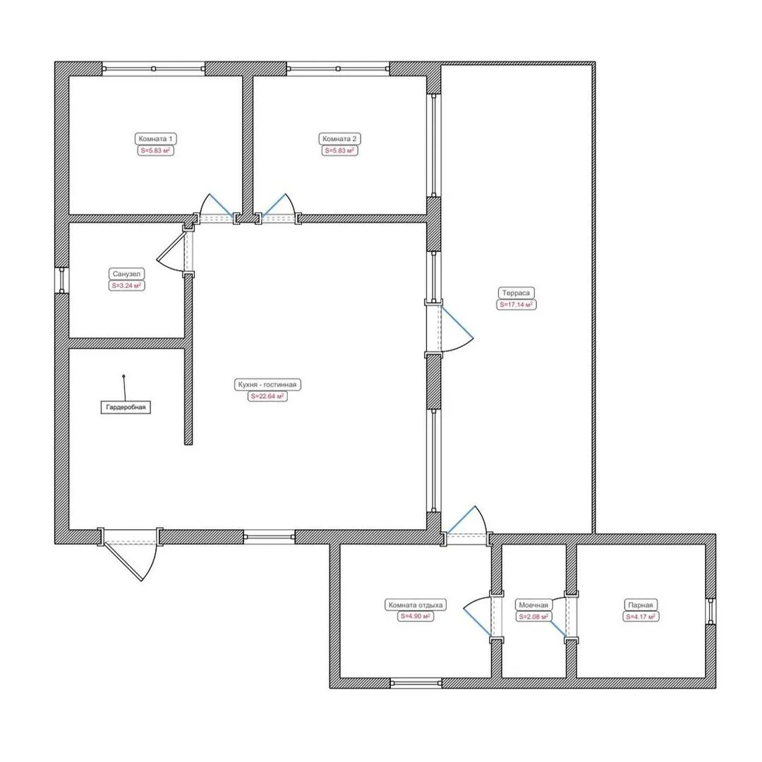
Площадь дома 65 м2
Санузлы 2
Спальни 2

Описание

Добро пожаловать в уютный уголок, где скандинавская простота встречается с современным комфортом. Дом серии «Эстэр» (9,9 × 8,4 м) – это модульный каркасный шедевр, идеально подходящий как для первого дома, так и для небольшого семейного резиденса. Он создан из прочных деревянных рам, обшитых высококлассными материалами, а плоская крыша добавляет изящества и позволяет эффективно использовать пространство на балконе и в террасе. Внутри царит ровно рассчитанное пространство, где каждый квадратный метр продуман. Прямая коридорная планировка соединяется с открытой зоной гостиной и кухней, где керамическая плитка и натуральный мрамор напомнят о тепле и живости северной природы. Спокойный уголок с парной – настоящий оазис для тела и души, предлагающий полноценный релакс после напряжённого дня. Спальная палата расположена так, чтобы дарить максимальный покой и уединение, а наличие просторной ванные комнаты со всеми современными удобствами делает ваш дом незабываемым. К тому же, в доме предусмотрены терраса и веранда, где вы сможете наслаждаться прохладным ветерком или жарким солнечным светом на летних и зимних вечерах, а отсутствие наружных балконов и гаражей обеспечивает больше приватности и ровное пространство. Всё, что нужно, чтобы почувствовать себя дома, уже здесь: от уютных деталей до простоты планировки. Приглашаем вас сделать первый шаг к своему новому дому, где комфорт и эстетика живут бок о бок.

Характеристики дома

Архитектурный стиль
Автоматизированное регулирование параметров теплоносителя
Да
Балконы/лоджии
Отсутствуют
Чердачное помещение
Нет
Датчики протечки воды
Нет
Эксплуатируемая или зеленая кровля
Нет
Электроснабжение
Центральное
Газоснабжение
Не предусмотрено
Изоляция воздушного шума
Нет
Камин
Нет
Класс энергоэффективности
-
Класс энергосбережения
-
Количество надземных этажей
1
Круглогодичное проживание
Да
Материал кровли
Металлические листовые гофрированные профили
Материал перекрытий
Деревянные
Материал внешних стен
Материал внутренних перегородок
Деревянные
Модульное строительство с конструкциями заводского изготовления
Нет
Объем надземной части
-
Основной материал фасадов
Дерево
Отопление
Индивидуальное
Площадь дома
65 м2
Площадь застройки
65 м2
Подвальное помещение
Нет
Показатель компактности здания
-
Приборы учета тепловой энергии
Нет
Пристроенный гараж/крытая автостоянка
Нет
Противопожарная система
Нет
Санузлы
2
Совмещенная кухня-гостиная
Да
Спальни
2
Терраса
Да
Тип фундамента
Свайно-винтовой
Тип кровли
Толщина внешних стен
220 мм
Толщина внутренних перегородок
160 мм
Улучшенные шумовые характеристики
Нет
Вентиляция
Естественная
Веранда
Да
Водоотведение
Локальные очистные сооружения
Водоснабжение
Индивидуальное
Высота дома
3 м
Высота потолков
2.25 м

Планировка

Фасад дома

Александр

Закажите выезд инженера

Александр

Выездной инженер
Закажите выезд инженера для точной диагностики и профессиональной консультации по инженерным системам. Специалист приедет в удобное время, проведёт осмотр, рассчитает стоимость работ и подберёт оптимальные решения для вашего дома.


    Похожие проекты

    Ипотека и
    рассрочка
    Хлынов
    Стоимость от:
    7 515 200
    Проект от: 45 000
    Этажей 1
    Санузлы 1
    Спальни 3
    Смотреть
    Ипотека и
    рассрочка
    Индивидуальный жилой дом
    Стоимость от:
    6 768 300
    Проект от: 38 250
    Этажей 1
    Санузлы 1
    Спальни 3
    Смотреть
    Ипотека и
    рассрочка
    Загородная ВИЛЛА
    Стоимость от:
    30 135 360
    Проект от: 190 800
    Этажей 2
    Санузлы 5
    Спальни 6
    Смотреть
    Ипотека и
    рассрочка
    Максимов ГБ24
    Стоимость от:
    17 739 360
    Проект от: 114 300
    Этажей 2
    Санузлы 2
    Спальни 2
    Смотреть
    Ипотека и
    рассрочка
    K 2-88
    Стоимость от:
    5 938 080
    Проект от: 36 900
    Этажей 2
    Санузлы 2
    Спальни 3
    Смотреть
    Ипотека и
    рассрочка
    БаковДом из газобетона одноэтажный с террасой 140
    Стоимость от:
    10 516 000
    Проект от: 63 000
    Этажей 1
    Санузлы 3
    Спальни 3
    Смотреть

    Как узнать стоимость дома

    back
    Оставляете заявку
    Вы заполняете форму на сайте или звоните нам. Менеджер Лайвкрафт связывается с вами для уточнения деталей: тип дома, площадь, материалы, участок строительства.
    back
    Консультация и подбор решения
    Наш специалист помогает выбрать оптимальный тип дома и конструкцию с учётом бюджета, сроков и целей — будь то дом для постоянного проживания или дача.
    back
    Расчёт предварительной стоимости
    Инженер делает первичный расчёт стоимости строительства по вашим параметрам: фундамент, коробка, кровля, отделка. Вы получаете смету с разбивкой по этапам.
    back
    Корректировка и утверждение сметы
    При необходимости вносим изменения — например, замену материалов или сокращение этапов. После согласования формируется окончательная фиксированная смета.
    back
    Заключение договора и старт работ
    После утверждения сметы заключаем официальный договор с гарантией. Вы получаете прозрачный график и точную стоимость — без скрытых расходов.

    Заказать конусльтацию по:Модульный каркасный дом с парной и верандой серии «Эстэр 9,9 х 8,4 м»

    Фото 1 Модульный каркасный дом с парной и верандой серии «Эстэр 9,9 х 8,4 м»


      Наши
      контакты

      Дмитров
      Опорный проезд 28Б
      (индустриальный парк Ниагара)
      9:00 до 18:00

      Корзина