4.9
Рейтинг на основании 120 отзывов
Дмитров
Опорный проезд 28Б
(индустриальный парк Ниагара)
Бренд "Дмитров-Дело" c 2008 года на рынке строительства в Дмитрове
Звоните 9:00 до 18:00 8 (915) 055-33-61
Бренд "Дмитров-Дело" c 2008 года на рынке строительства в Дмитрове

МЮНХЕН-340

Стоимость проекта от:
158 400 ₽
БЕСПЛАТНО! ПРИ ЗАКАЗЕ СТРОИТЕЛЬСТВА
Стоимость строительства от:
25 442 880 ₽
Артикул ART-4182
Дата 26.12.2025
Архитектурный стиль Европейский
Количество надземных этажей 2
Круглогодичное проживание Да
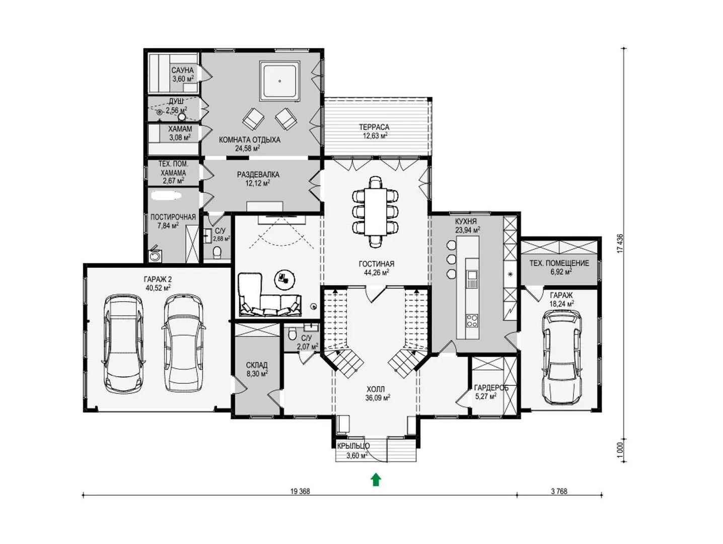
Площадь дома 352 м2
Санузлы 4
Спальни 3

Описание

Добро пожаловать в дом мечты – МЮНХЕН‑340, где традиционное европейское очарование встречается с современной практичностью. Уже от входа вы ощутите спокойствие и уют: классический фасад, выполненный из высококачественных каркасно‑панельных материалов, обещает надёжность и эстетическую привлекательность на долгие годы. Архитектурный стиль «Европейский» в сочетании с четырехскатной (вальмовой) крышей создаёт ощущение настоящего уголка стиля и комфорта, где каждая деталь продумана до мелочей. Дом разделён на два надземных этажа, которые предлагают просторные, светлые и функциональные комнаты, идеально подходящие как для семейной жизни, так и для работы из дома. Пристроенный гараж/крытая автостоянка избавит вас от хлопот с парковкой, а отсутствие чердачного помещения гарантирует ровный и удобный планировочный ритм, сохраняя пространство максимально открытым. Уютные зоны и мягкие линии дизайна создают атмосферу безмятежности и гармонии, а уютный дворик и просторная терраса приглашают провести там время у семейного очага, выращивая свежие травы или устраивая летние барбекю. Именно в МЮНХЕН‑340 каждый элемент задуман так, чтобы обеспечить круглогодичное проживание без лишних забот: утеплённые стены, высококачественная крыша, надежный крытый гараж – всё это гарантирует стабильный комфорт даже в самые непредсказуемые погодные условия. Если вы ищете дом, где уют сочетается с практичностью, где европейский стиль встречается с современными технологиями – этот уголок станет вашим идеальным убежищем. Отправляйтесь и убедитесь, что мечта о идеальном жилище может стать реальностью.

Характеристики дома

Архитектурный стиль
Автоматизированное регулирование параметров теплоносителя
Нет
Балконы/лоджии
Отсутствуют
Чердачное помещение
Нет
Датчики протечки воды
Нет
Эксплуатируемая или зеленая кровля
Да
Электроснабжение
Индивидуальное
Газоснабжение
Не предусмотрено
Изоляция воздушного шума
Нет
Камин
Нет
Класс энергоэффективности
-
Класс энергосбережения
-
Количество надземных этажей
2
Круглогодичное проживание
Да
Материал кровли
Металлочерепица
Материал перекрытий
Деревянные
Материал внешних стен
Материал внутренних перегородок
Цементно-стружечная плита
Модульное строительство с конструкциями заводского изготовления
Нет
Объем надземной части
1206 м3
Основной материал фасадов
Штукатурка
Отопление
Индивидуальное
Площадь дома
352 м2
Площадь застройки
290 м2
Подвальное помещение
Нет
Показатель компактности здания
-
Приборы учета тепловой энергии
Нет
Пристроенный гараж/крытая автостоянка
Да
Противопожарная система
Нет
Санузлы
4
Совмещенная кухня-гостиная
Нет
Спальни
3
Терраса
Да
Тип фундамента
Свайно-ростверковый
Толщина внешних стен
168 мм
Толщина внутренних перегородок
100 мм
Улучшенные шумовые характеристики
Нет
Вентиляция
Естественная
Веранда
Нет
Водоотведение
Локальные очистные сооружения
Водоснабжение
Центральное
Высота дома
7.7 м
Высота потолков
2.8 м

Планировка

Фасад дома

Александр

Закажите выезд инженера

Александр

Выездной инженер
Закажите выезд инженера для точной диагностики и профессиональной консультации по инженерным системам. Специалист приедет в удобное время, проведёт осмотр, рассчитает стоимость работ и подберёт оптимальные решения для вашего дома.


    Похожие проекты

    Ипотека и
    рассрочка
    Одноэтажный загородный дом
    Стоимость от:
    246 840
    Проект от: 45 900
    Этажей 1
    Санузлы 1
    Спальни 2
    Смотреть
    Ипотека и
    рассрочка
    Одноэтажный дом УД4
    Стоимость от:
    5 974 100
    Проект от: 33 750
    Этажей 1
    Санузлы 1
    Спальни 1
    Смотреть
    Ипотека и
    рассрочка
    Д-201
    Стоимость от:
    10 982 400
    Проект от: 72 000
    Этажей 2
    Санузлы 2
    Спальни 4
    Смотреть
    Ипотека и
    рассрочка
    Дом из клееного бруса «Марфино»
    Стоимость от:
    12 496 920
    Проект от: 86 850
    Этажей 2
    Санузлы 2
    Спальни 5
    Смотреть
    Ипотека и
    рассрочка
    Индивидуальный жилой дом проект 140 (2п)
    Стоимость от:
    11 428 320
    Проект от: 71 100
    Этажей 2
    Санузлы 2
    Спальни 5
    Смотреть
    Ипотека и
    рассрочка
    Одноэтажный дом Fixplans-1925
    Стоимость от:
    15 692 380
    Проект от: 94 050
    Этажей 1
    Санузлы 2
    Спальни 4
    Смотреть

    Как узнать стоимость дома

    back
    Оставляете заявку
    Вы заполняете форму на сайте или звоните нам. Менеджер Лайвкрафт связывается с вами для уточнения деталей: тип дома, площадь, материалы, участок строительства.
    back
    Консультация и подбор решения
    Наш специалист помогает выбрать оптимальный тип дома и конструкцию с учётом бюджета, сроков и целей — будь то дом для постоянного проживания или дача.
    back
    Расчёт предварительной стоимости
    Инженер делает первичный расчёт стоимости строительства по вашим параметрам: фундамент, коробка, кровля, отделка. Вы получаете смету с разбивкой по этапам.
    back
    Корректировка и утверждение сметы
    При необходимости вносим изменения — например, замену материалов или сокращение этапов. После согласования формируется окончательная фиксированная смета.
    back
    Заключение договора и старт работ
    После утверждения сметы заключаем официальный договор с гарантией. Вы получаете прозрачный график и точную стоимость — без скрытых расходов.

    Заказать конусльтацию по:МЮНХЕН-340

    Фото 1 МЮНХЕН-340


      Наши
      контакты

      Дмитров
      Опорный проезд 28Б
      (индустриальный парк Ниагара)
      9:00 до 18:00

      Корзина