4.9
Рейтинг на основании 120 отзывов
Дмитров
Опорный проезд 28Б
(индустриальный парк Ниагара)
Бренд "Дмитров-Дело" c 2008 года на рынке строительства в Дмитрове
Звоните 9:00 до 18:00 8 (915) 055-33-61
Бренд "Дмитров-Дело" c 2008 года на рынке строительства в Дмитрове

Майпо 3.0

Стоимость проекта от:
27 000 ₽
Стоимость строительства от:
4 237 200 ₽
Артикул ART-10020
Дата 25.12.2025
Архитектурный стиль Европейский
Количество надземных этажей 1
Круглогодичное проживание Да
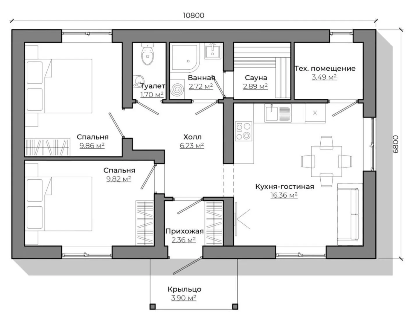
Площадь дома 60 м2
Санузлы 1
Спальни 2

Описание

Добро пожаловать в уютный уголок европейской гармонии – дом «Майпо 3.0». Это современное, но при этом вневременное решение для жизни круглый год, созданное для тех, кто ценит комфорт, практичность и эстетическое удовольствие. Однокровневый, но при этом уютно разложенный по просторному внутреннему пространству, он приглашает обитателей в атмосферу непринуждённого домашнего покоя, где каждая деталь продумана до мелочей. Сочетание классической европейской архитектуры с современными материалами делает это жильё не просто красивым, но и надёжным. Газобетонные блоки придают стенам теплоизоляцию и звукоустойчивость, а двойной двускатный крытый элемент добавляет величественность и защищает от непогоды. Внутри вас ждёт просторное чердачное помещение – идеальное место для хранения или творческого уголка, а открытые, светлые интерьеры создают тёплую и располагающую атмосферу уюта. В этом доме нет лишних балконов, веранд и гаражей, но зато каждая стена, каждая крыша пропитана заботой о вашем уюте. Отсутствие внешних отвлечений, таких как балконы или веранда, позволяет максимально сосредоточиться на внутреннем пространстве и сделать его максимально функциональным. Крытая автостоянка и прицепные гаражи отсутствуют – но в этом нет ничего плохого: вы можете свободно распоряжаться своим временем, не думая о дополнительных усложнениях. Благодаря продуманной планировке, утепленным стенам и изысканному европейскому стилю, «Майпо 3.0» становится вашим надёжным убежищем от суеты и простым, но надёжным решением для комфортной жизни, где каждое утро начинается с улыбки и завершается ощущением спокойствия.

Характеристики дома

Архитектурный стиль
Европейский
Автоматизированное регулирование параметров теплоносителя
-
Балконы/лоджии
Отсутствуют
Чердачное помещение
Да
Датчики протечки воды
-
Эксплуатируемая или зеленая кровля
-
Электроснабжение
Индивидуальное
Газоснабжение
Индивидуальное
Изоляция воздушного шума
-
Камин
Нет
Класс энергоэффективности
-
Класс энергосбережения
-
Количество надземных этажей
1
Круглогодичное проживание
Да
Материал кровли
Металлочерепица
Материал перекрытий
Деревянные
Материал внешних стен
Газобетонные блоки
Материал внутренних перегородок
Блочные
Модульное строительство с конструкциями заводского изготовления
Нет
Объем надземной части
-
Основной материал фасадов
Штукатурка
Отопление
Индивидуальное
Площадь дома
60 м2
Площадь застройки
77 м2
Подвальное помещение
Нет
Показатель компактности здания
-
Приборы учета тепловой энергии
-
Пристроенный гараж/крытая автостоянка
Нет
Противопожарная система
Нет
Санузлы
1
Совмещенная кухня-гостиная
Да
Спальни
2
Терраса
Нет
Тип фундамента
Плитный
Тип кровли
Двускатная
Толщина внешних стен
375 мм
Толщина внутренних перегородок
100 мм
Улучшенные шумовые характеристики
-
Вентиляция
Естественная
Веранда
Нет
Водоотведение
Локальные очистные сооружения
Водоснабжение
Индивидуальное
Высота дома
4.4 м
Высота потолков
2.75 м

Планировка

Фасад дома

Александр

Закажите выезд инженера

Александр

Выездной инженер
Закажите выезд инженера для точной диагностики и профессиональной консультации по инженерным системам. Специалист приедет в удобное время, проведёт осмотр, рассчитает стоимость работ и подберёт оптимальные решения для вашего дома.


    Похожие проекты

    Ипотека и
    рассрочка
    Двухэтажный дом в современном стиле
    Стоимость от:
    8 391 600
    Проект от: 63 000
    Этажей 2
    Санузлы 2
    Спальни 3
    Смотреть
    Ипотека и
    рассрочка
    Одноэтажный дом ОБТ103
    Стоимость от:
    7 740 260
    Проект от: 46 350
    Этажей 1
    Санузлы 2
    Спальни 3
    Смотреть
    Ипотека и
    рассрочка
    Одноэтажный жилой дом р-111
    Стоимость от:
    7 365 160
    Проект от: 44 100
    Этажей 1
    Санузлы 1
    Спальни 3
    Смотреть
    Ипотека и
    рассрочка
    Проект Сканди
    Стоимость от:
    6 260 760
    Проект от: 48 600
    Этажей 1
    Санузлы 1
    Спальни 3
    Смотреть
    Ипотека и
    рассрочка
    Одноэтажный дом FIXPLANS- 1232
    Стоимость от:
    11 214 500
    Проект от: 65 250
    Этажей 1
    Санузлы 1
    Спальни 3
    Смотреть
    Ипотека и
    рассрочка
    Двухэтажный дом М-340
    Стоимость от:
    23 745 600
    Проект от: 153 000
    Этажей 2
    Санузлы 2
    Спальни 3
    Смотреть

    Как узнать стоимость дома

    back
    Оставляете заявку
    Вы заполняете форму на сайте или звоните нам. Менеджер Лайвкрафт связывается с вами для уточнения деталей: тип дома, площадь, материалы, участок строительства.
    back
    Консультация и подбор решения
    Наш специалист помогает выбрать оптимальный тип дома и конструкцию с учётом бюджета, сроков и целей — будь то дом для постоянного проживания или дача.
    back
    Расчёт предварительной стоимости
    Инженер делает первичный расчёт стоимости строительства по вашим параметрам: фундамент, коробка, кровля, отделка. Вы получаете смету с разбивкой по этапам.
    back
    Корректировка и утверждение сметы
    При необходимости вносим изменения — например, замену материалов или сокращение этапов. После согласования формируется окончательная фиксированная смета.
    back
    Заключение договора и старт работ
    После утверждения сметы заключаем официальный договор с гарантией. Вы получаете прозрачный график и точную стоимость — без скрытых расходов.

    Заказать конусльтацию по:Майпо 3.0

    Фото 1 Майпо 3.0


      Наши
      контакты

      Дмитров
      Опорный проезд 28Б
      (индустриальный парк Ниагара)
      9:00 до 18:00

      Корзина