4.9
Рейтинг на основании 120 отзывов
Дмитров
Опорный проезд 28Б
(индустриальный парк Ниагара)
Бренд "Дмитров-Дело" c 2008 года на рынке строительства в Дмитрове
Звоните 9:00 до 18:00 8 (915) 055-33-61
Бренд "Дмитров-Дело" c 2008 года на рынке строительства в Дмитрове

Двухэтажный дом FK-231 Самосырово

Стоимость проекта от:
103 500 ₽
БЕСПЛАТНО! ПРИ ЗАКАЗЕ СТРОИТЕЛЬСТВА
Стоимость строительства от:
16 629 600 ₽
Артикул ART-4918
Дата 26.12.2025
Архитектурный стиль Европейский
Количество надземных этажей 2
Круглогодичное проживание Да
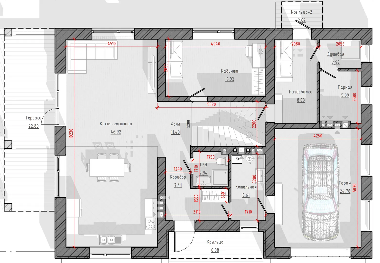
Площадь дома 230 м2
Санузлы 3
Спальни 3

Описание

**Дом 2‑этажный FK‑231 в Самосырово: ваш уютный уголок европейского стиля** Этот дваэтажный дом в Самосырово сочетает в себе элегантный европейский дизайн и практичность, присущую современному жилью. Просторные, светлые помещения, выстроенные вокруг открытой площадки, создают атмосферу тепла и гармонии, позволяя проживать в нём круглый год без компромиссов. Керамический блок внешних стен гарантирует прочность, изоляцию и низкие эксплуатационные расходы, а четыре‑скатная (вальмовая) кровля придаёт дому благородный силуэт и надёжную защиту от непогоды. Внутри вас ждёт светлое, общее пространство, где каждая комната пронизана природным светом. Чердачное помещение превращается в дополнительную творческую галерею или кабинет, а уютная терраса приглашает к вечерним собраниям с семьёй и друзьями, наслаждаясь покоем природы. Пристроенный гараж с крытой автостоянкой обеспечивает надежную защищённость вашего автомобиля, а отсутствие балконов и веранд делает архитектуру дома более чистой и элегантной. Ищете дом, где каждая деталь продумана до мелочей, а атмосфера вызывает чувство покоя и уверенности? Дом FK‑231 в Самосырово именно те условия, которые вы ищете. Позвоните нам и узнайте, как быстро можно стать владельцем этой неповторимой жемчужины.

Характеристики дома

Архитектурный стиль
Автоматизированное регулирование параметров теплоносителя
-
Балконы/лоджии
Отсутствуют
Чердачное помещение
Да
Датчики протечки воды
-
Эксплуатируемая или зеленая кровля
-
Электроснабжение
2 варианта
Газоснабжение
2 варианта
Изоляция воздушного шума
-
Камин
Нет
Класс энергоэффективности
-
Класс энергосбережения
-
Количество надземных этажей
2
Круглогодичное проживание
Да
Материал кровли
Металлочерепица
Материал перекрытий
Монолитные железобетонные
Материал внешних стен
Материал внутренних перегородок
Кирпичные
Модульное строительство с конструкциями заводского изготовления
Нет
Объем надземной части
-
Основной материал фасадов
Облицовочный кирпич
Отопление
Индивидуальное
Площадь дома
230 м2
Площадь застройки
185 м2
Подвальное помещение
Нет
Показатель компактности здания
-
Приборы учета тепловой энергии
-
Пристроенный гараж/крытая автостоянка
Да
Противопожарная система
Нет
Санузлы
3
Совмещенная кухня-гостиная
Да
Спальни
3
Терраса
Да
Тип фундамента
Свайно-ростверковый
Толщина внешних стен
420 мм
Толщина внутренних перегородок
250 мм
Улучшенные шумовые характеристики
-
Вентиляция
2 варианта
Веранда
Нет
Водоотведение
Локальные очистные сооружения
Водоснабжение
2 варианта
Высота дома
9.04 м
Высота потолков
3 м

Планировка

Фасад дома

Александр

Закажите выезд инженера

Александр

Выездной инженер
Закажите выезд инженера для точной диагностики и профессиональной консультации по инженерным системам. Специалист приедет в удобное время, проведёт осмотр, рассчитает стоимость работ и подберёт оптимальные решения для вашего дома.


    Похожие проекты

    Ипотека и
    рассрочка
    Одноэтажный дом из клееного бруса КБ84
    Стоимость от:
    6 239 860
    Проект от: 37 350
    Этажей 1
    Санузлы 1
    Спальни 2
    Смотреть
    Ипотека и
    рассрочка
    Барнхаус 75
    Стоимость от:
    222 640
    Проект от: 41 400
    Этажей 1
    Санузлы 1
    Спальни 3
    Смотреть
    Ипотека и
    рассрочка
    Брусовой дом ТА-70
    Стоимость от:
    5 423 000
    Проект от: 31 500
    Этажей 1
    Санузлы 1
    Спальни 3
    Смотреть
    Ипотека и
    рассрочка
    Одноэтажный кирпичный дом COMFORT — 118 m2 (Белый облицовочный кирпич)
    Стоимость от:
    7 085 980
    Проект от: 40 050
    Этажей 1
    Санузлы 1
    Спальни 3
    Смотреть
    Ипотека и
    рассрочка
    Одноэтажный дом О70
    Стоимость от:
    12 016 400
    Проект от: 72 000
    Этажей 1
    Санузлы 2
    Спальни 2
    Смотреть
    Ипотека и
    рассрочка
    Одноэтажный дом от компании UNIT серии Премиум 141 TK
    Стоимость от:
    12 538 240
    Проект от: 77 400
    Этажей 1
    Санузлы 3
    Спальни 3
    Смотреть

    Как узнать стоимость дома

    back
    Оставляете заявку
    Вы заполняете форму на сайте или звоните нам. Менеджер Лайвкрафт связывается с вами для уточнения деталей: тип дома, площадь, материалы, участок строительства.
    back
    Консультация и подбор решения
    Наш специалист помогает выбрать оптимальный тип дома и конструкцию с учётом бюджета, сроков и целей — будь то дом для постоянного проживания или дача.
    back
    Расчёт предварительной стоимости
    Инженер делает первичный расчёт стоимости строительства по вашим параметрам: фундамент, коробка, кровля, отделка. Вы получаете смету с разбивкой по этапам.
    back
    Корректировка и утверждение сметы
    При необходимости вносим изменения — например, замену материалов или сокращение этапов. После согласования формируется окончательная фиксированная смета.
    back
    Заключение договора и старт работ
    После утверждения сметы заключаем официальный договор с гарантией. Вы получаете прозрачный график и точную стоимость — без скрытых расходов.

    Заказать конусльтацию по:Двухэтажный дом FK-231 Самосырово

    Фото 1 Двухэтажный дом FK-231 Самосырово


      Наши
      контакты

      Дмитров
      Опорный проезд 28Б
      (индустриальный парк Ниагара)
      9:00 до 18:00

      Корзина