4.9
Рейтинг на основании 120 отзывов
Дмитров
Опорный проезд 28Б
(индустриальный парк Ниагара)
Бренд "Дмитров-Дело" c 2008 года на рынке строительства в Дмитрове
Звоните 9:00 до 18:00 8 (915) 055-33-61
Бренд "Дмитров-Дело" c 2008 года на рынке строительства в Дмитрове

Проект S 172/1

Стоимость проекта от:
97 200 ₽
БЕСПЛАТНО! ПРИ ЗАКАЗЕ СТРОИТЕЛЬСТВА
Стоимость строительства от:
13 709 520 ₽
Артикул ART-11701
Дата 25.12.2025
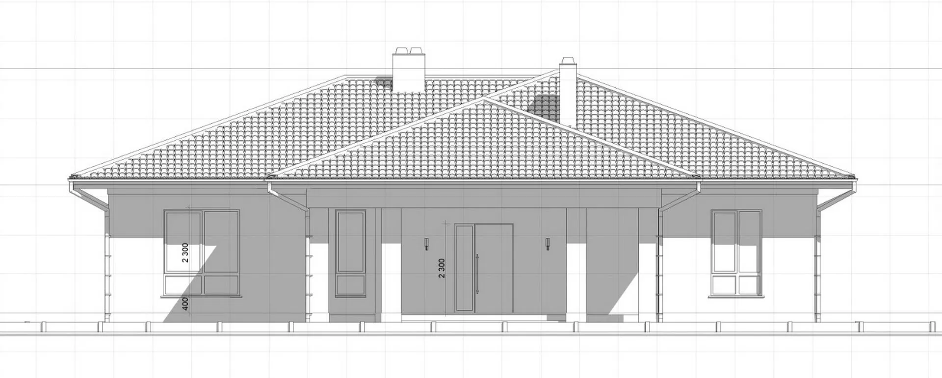
Архитектурный стиль Классический
Количество надземных этажей 1
Круглогодичное проживание Да
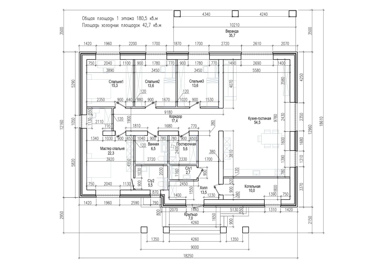
Площадь дома 216 м2
Санузлы 3
Спальни 4

Описание

Откройте для себя очарование простоты и классической элегантности проекта S 172/1. Это уютный одноэтажный дом, созданный для круглогодичного проживания, в котором каждый угол привлекает взгляд своей гармоничностью. Архитектура сохраняет традиционный стиль, а использование керамических блоков обеспечивает долговечность и теплоизоляцию, создавая неповторимую атмосферу домашнего уюта. Четырехскатная (вальмовая) крыша не только подчёркивает общий образ, но и гарантирует надёжную защиту от непогоды, делая ваш дом надежным оазисом в любой климатической зоне. Внутри дома простые, но функциональные решения: просторный холл, светлый коридор и большой светло-доска, где каждый день можно отдохнуть от городской суеты. Отсутствие балконов или лоджий позволяет максимально использовать внутреннее пространство, а наличие большой верандой превращает его в идеальное место для летних барбекю и тихих вечеров на свежем воздухе. Особое внимание привлекает чердачное помещение – вместимый, практичный уголок, который можно организовать как кладовой, домашний кабинет или даже мини-студию для творчества. Дом сочетает в себе простоту, элегантность и практичность. Без прикладного гаража вы будете чувствовать легкость перемещения, а крытая автостоянка вблизи позволяет быстро укрыться от непогоды. Прожив в таком доме вы получите не только комфорт и безопасность, но и живое дыхание классической архитектуры, которое с лёгкостью впишется во любой городской ландшафт. Закажите этот проект сейчас и откройте дверь в атмосферу домашнего уюта, где каждый штрих произведён с душой.

Характеристики дома

Архитектурный стиль
Автоматизированное регулирование параметров теплоносителя
Нет
Балконы/лоджии
Отсутствуют
Чердачное помещение
Да
Датчики протечки воды
Нет
Эксплуатируемая или зеленая кровля
Нет
Электроснабжение
Не предусмотрено
Газоснабжение
Не предусмотрено
Изоляция воздушного шума
Нет
Камин
Нет
Класс энергоэффективности
-
Класс энергосбережения
-
Количество надземных этажей
1
Круглогодичное проживание
Да
Материал кровли
Металлочерепица
Материал перекрытий
Деревянные
Материал внешних стен
Материал внутренних перегородок
Кирпичные
Модульное строительство с конструкциями заводского изготовления
Нет
Объем надземной части
692 м3
Основной материал фасадов
Облицовочный кирпич
Отопление
Не предусмотрено
Площадь дома
216 м2
Площадь застройки
258 м2
Подвальное помещение
Нет
Показатель компактности здания
-
Приборы учета тепловой энергии
Нет
Пристроенный гараж/крытая автостоянка
Нет
Противопожарная система
Нет
Санузлы
3
Совмещенная кухня-гостиная
Да
Спальни
4
Терраса
Нет
Тип фундамента
Свайный
Толщина внешних стен
500 мм
Толщина внутренних перегородок
120 мм
Улучшенные шумовые характеристики
Нет
Вентиляция
Естественная
Веранда
Да
Водоотведение
Не предусмотрено
Водоснабжение
Не предусмотрено
Высота дома
4.5 м
Высота потолков
3.15 м

Планировка

Фасад дома

Александр

Закажите выезд инженера

Александр

Выездной инженер
Закажите выезд инженера для точной диагностики и профессиональной консультации по инженерным системам. Специалист приедет в удобное время, проведёт осмотр, рассчитает стоимость работ и подберёт оптимальные решения для вашего дома.


    Похожие проекты

    Ипотека и
    рассрочка
    Дом из клееного бруса «Сияна»
    Стоимость от:
    7 352 400
    Проект от: 54 000
    Этажей 1
    Санузлы 2
    Спальни 1
    Смотреть
    Ипотека и
    рассрочка
    Эффектный Ми-5
    Стоимость от:
    15 159 760
    Проект от: 93 600
    Этажей 1
    Санузлы 2
    Спальни 3
    Смотреть
    Ипотека и
    рассрочка
    Загородный дом «Большая семья»
    Стоимость от:
    14 847 360
    Проект от: 102 600
    Этажей 1
    Санузлы 3
    Спальни 6
    Смотреть
    Ипотека и
    рассрочка
    Дом в Якушах-2 83,9
    Стоимость от:
    4 219 765
    Проект от: 32 850
    Этажей 1
    Санузлы 1
    Спальни 2
    Смотреть
    Ипотека и
    рассрочка
    Ермилов
    Стоимость от:
    9 550 080
    Проект от: 59 400
    Этажей 2
    Санузлы 2
    Спальни 5
    Смотреть
    Ипотека и
    рассрочка
    Одноэтажный дом «Уютный»
    Стоимость от:
    5 437 740
    Проект от: 34 650
    Этажей 1
    Санузлы 1
    Спальни 2
    Смотреть

    Как узнать стоимость дома

    back
    Оставляете заявку
    Вы заполняете форму на сайте или звоните нам. Менеджер Лайвкрафт связывается с вами для уточнения деталей: тип дома, площадь, материалы, участок строительства.
    back
    Консультация и подбор решения
    Наш специалист помогает выбрать оптимальный тип дома и конструкцию с учётом бюджета, сроков и целей — будь то дом для постоянного проживания или дача.
    back
    Расчёт предварительной стоимости
    Инженер делает первичный расчёт стоимости строительства по вашим параметрам: фундамент, коробка, кровля, отделка. Вы получаете смету с разбивкой по этапам.
    back
    Корректировка и утверждение сметы
    При необходимости вносим изменения — например, замену материалов или сокращение этапов. После согласования формируется окончательная фиксированная смета.
    back
    Заключение договора и старт работ
    После утверждения сметы заключаем официальный договор с гарантией. Вы получаете прозрачный график и точную стоимость — без скрытых расходов.

    Заказать конусльтацию по:Проект S 172/1

    Фото 1 Проект S 172/1


      Наши
      контакты

      Дмитров
      Опорный проезд 28Б
      (индустриальный парк Ниагара)
      9:00 до 18:00

      Корзина