4.9
Рейтинг на основании 120 отзывов
Дмитров
Опорный проезд 28Б
(индустриальный парк Ниагара)
Бренд "Дмитров-Дело" c 2008 года на рынке строительства в Дмитрове
Звоните 9:00 до 18:00 8 (915) 055-33-61
Бренд "Дмитров-Дело" c 2008 года на рынке строительства в Дмитрове

Мюнхен-340

Стоимость проекта от:
175 950 ₽
БЕСПЛАТНО! ПРИ ЗАКАЗЕ СТРОИТЕЛЬСТВА
Стоимость строительства от:
28 745 040 ₽
Артикул ART-17252
Дата 26.12.2025
Архитектурный стиль Европейский
Количество надземных этажей 2
Круглогодичное проживание Да
Площадь дома 391 м2
Санузлы 4
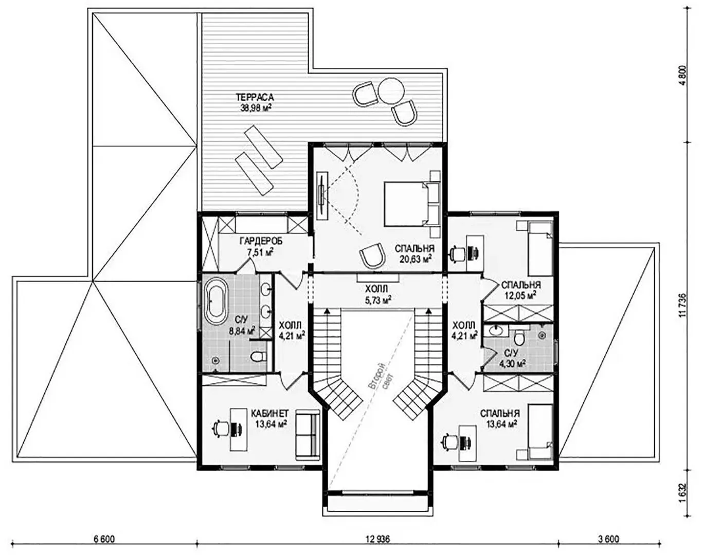
Спальни 3

Описание

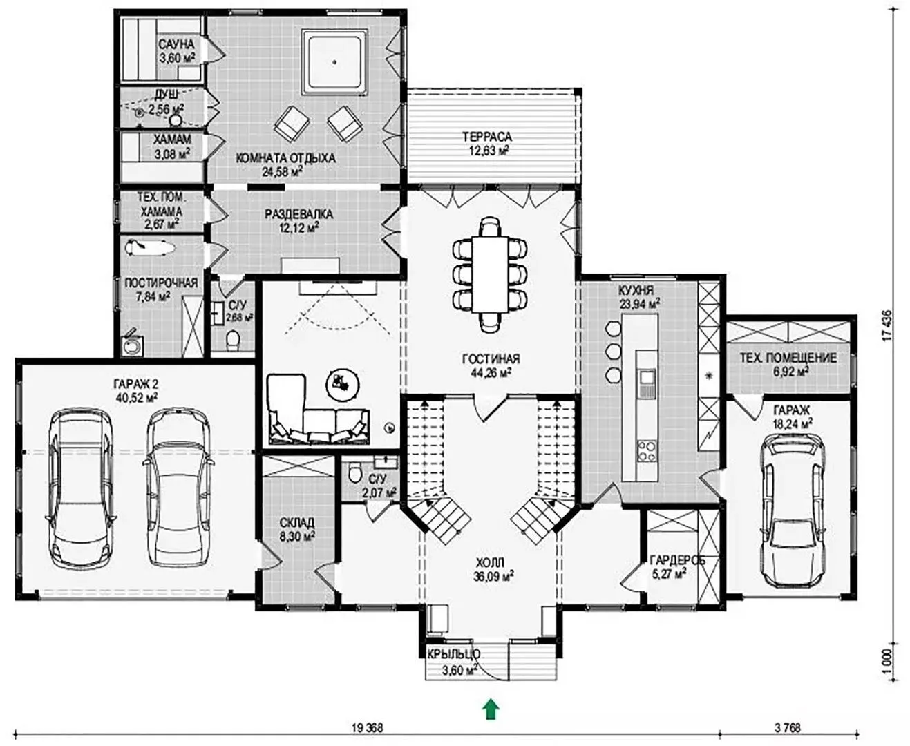
Наша модель «Мюнхен‑340» – это настоящая жемчужина европейского дизайна, где каждый элемент продуман до мелочей. Дом восхищает простотой и элегантностью: два надземных этажа, выполненные в классическом европейском стиле, обеспечивают уютные и светлые интерьеры, где можно обитать круглый год без излишней тепловой нагрузки. Каркасно‑панельная фасадная оболочка не только придает зданию современный вид, но и обеспечивает отличную тепло- и звукоизоляцию, а четыре‑скатная кровля – настоящая эстетика, придающая вашему дому статусный характер. С заботой о вашем комфорте и безопасности «Мюнхен‑340» оборудован пристроенным гаражом/крытой автостоянкой, где ваш автомобиль всегда будет в безопасности от непогоды и не нуждается в дополнительной защите. На территории есть просторная терраса, где можно устроить вечеринку у бассейна, устроить романтический ужин под звёздами или просто наслаждаться свежим воздухом в собственном уголке. Дом без балконов и веранд – значит, вы получите более приватную и открывающую вид с внутреннего двора комнату. Хотите жить в уютной европейской атмосфере, но при этом иметь все нужные удобства? «Мюнхен‑340» – ваш выбор. Он сочетает в себе простоту современных материалов и классическую эстетическую линию, чтобы каждый ваш день был наполнен гармонией и удобством. Приглашаем вас открыть для себя это идеальное место, где каждый элемент дома создан, чтобы радовать ваш образ жизни.

Характеристики дома

Архитектурный стиль
Автоматизированное регулирование параметров теплоносителя
Нет
Балконы/лоджии
Отсутствуют
Чердачное помещение
Нет
Датчики протечки воды
Нет
Эксплуатируемая или зеленая кровля
Нет
Электроснабжение
Центральное
Газоснабжение
Не предусмотрено
Изоляция воздушного шума
Нет
Камин
Нет
Класс энергоэффективности
-
Класс энергосбережения
-
Количество надземных этажей
2
Круглогодичное проживание
Да
Материал кровли
Битумная черепица
Материал перекрытий
Деревянные
Материал внешних стен
Материал внутренних перегородок
Деревянные
Модульное строительство с конструкциями заводского изготовления
Да
Объем надземной части
-
Основной материал фасадов
Штукатурка
Отопление
Индивидуальное
Площадь дома
391 м2
Площадь застройки
283 м2
Подвальное помещение
Нет
Показатель компактности здания
-
Приборы учета тепловой энергии
Нет
Пристроенный гараж/крытая автостоянка
Да
Противопожарная система
Нет
Санузлы
4
Совмещенная кухня-гостиная
Да
Спальни
3
Терраса
Да
Тип фундамента
Ленточный
Толщина внешних стен
168 мм
Толщина внутренних перегородок
168 мм
Улучшенные шумовые характеристики
Нет
Вентиляция
Естественная
Веранда
Нет
Водоотведение
Локальные очистные сооружения
Водоснабжение
Индивидуальное
Высота дома
7.68 м
Высота потолков
2.82 м

Планировка

Фасад дома

Александр

Закажите выезд инженера

Александр

Выездной инженер
Закажите выезд инженера для точной диагностики и профессиональной консультации по инженерным системам. Специалист приедет в удобное время, проведёт осмотр, рассчитает стоимость работ и подберёт оптимальные решения для вашего дома.


    Похожие проекты

    Ипотека и
    рассрочка
    Экодом Лайт 75
    Стоимость от:
    5 838 800
    Проект от: 36 000
    Этажей 1
    Санузлы 1
    Спальни 2
    Смотреть
    Ипотека и
    рассрочка
    Двухэтажный дом «Уверенность-1»
    Стоимость от:
    14 945 760
    Проект от: 96 300
    Этажей 2
    Санузлы 2
    Спальни 4
    Смотреть
    Ипотека и
    рассрочка
    Проект загородного дома NHD-138
    Стоимость от:
    9 165 640
    Проект от: 54 900
    Этажей 1
    Санузлы 2
    Спальни 3
    Смотреть
    Ипотека и
    рассрочка
    Одноэтажный дом в стиле Барнхаус «Sodaar 92»
    Стоимость от:
    5 115 660
    Проект от: 41 400
    Этажей 1
    Санузлы 1
    Спальни 2
    Смотреть
    Ипотека и
    рассрочка
    Грата 1-120
    Стоимость от:
    9 015 600
    Проект от: 54 000
    Этажей 1
    Санузлы 2
    Спальни 3
    Смотреть
    Ипотека и
    рассрочка
    Одноэтажный дом ПГ — 1
    Стоимость от:
    5 039 540
    Проект от: 30 150
    Этажей 1
    Санузлы 1
    Спальни 2
    Смотреть

    Как узнать стоимость дома

    back
    Оставляете заявку
    Вы заполняете форму на сайте или звоните нам. Менеджер Лайвкрафт связывается с вами для уточнения деталей: тип дома, площадь, материалы, участок строительства.
    back
    Консультация и подбор решения
    Наш специалист помогает выбрать оптимальный тип дома и конструкцию с учётом бюджета, сроков и целей — будь то дом для постоянного проживания или дача.
    back
    Расчёт предварительной стоимости
    Инженер делает первичный расчёт стоимости строительства по вашим параметрам: фундамент, коробка, кровля, отделка. Вы получаете смету с разбивкой по этапам.
    back
    Корректировка и утверждение сметы
    При необходимости вносим изменения — например, замену материалов или сокращение этапов. После согласования формируется окончательная фиксированная смета.
    back
    Заключение договора и старт работ
    После утверждения сметы заключаем официальный договор с гарантией. Вы получаете прозрачный график и точную стоимость — без скрытых расходов.

    Заказать конусльтацию по:Мюнхен-340

    Фото 1 Мюнхен-340


      Наши
      контакты

      Дмитров
      Опорный проезд 28Б
      (индустриальный парк Ниагара)
      9:00 до 18:00

      Корзина