4.9
Рейтинг на основании 120 отзывов
Дмитров
Опорный проезд 28Б
(индустриальный парк Ниагара)
Бренд "Дмитров-Дело" c 2008 года на рынке строительства в Дмитрове
Звоните 9:00 до 18:00 8 (915) 055-33-61
Бренд "Дмитров-Дело" c 2008 года на рынке строительства в Дмитрове

Наб Челны 664

Стоимость проекта от:
107 100 ₽
БЕСПЛАТНО! ПРИ ЗАКАЗЕ СТРОИТЕЛЬСТВА
Стоимость строительства от:
17 344 360 ₽
Артикул ART-16285
Дата 26.12.2025
Архитектурный стиль Хайтек
Количество надземных этажей 1
Круглогодичное проживание Да
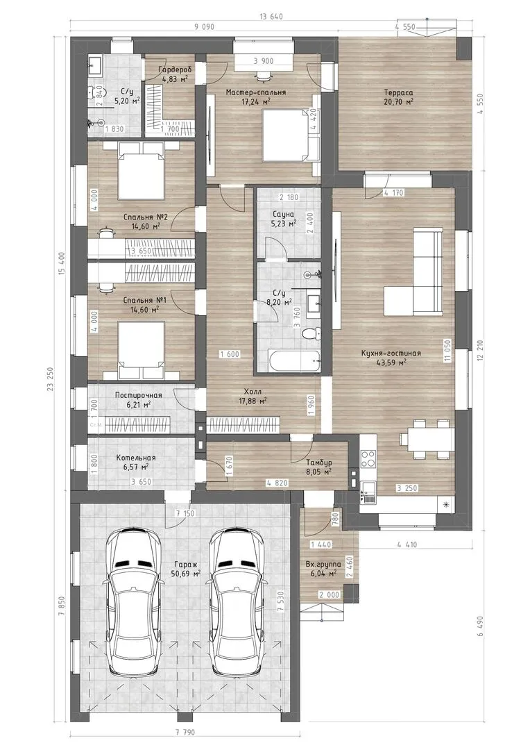
Площадь дома 238 м2
Санузлы 2
Спальни 3

Описание

Проживание по адресу Наб Челны 664 — это встреча современного хай‑тек дизайна и комфорта привычного дома, где каждый элемент продуман до мелочей. Одноэтажный корпус, выполненный из керамических блоков, сочетает в себе прочность и визуальную легкость: стены сияют чистотой и открыты для лучей солнца, а плоская крыша добавляет зданию смелые геометрические контуры, подчёркивающие его инновационную эстетику. Внутреннее пространство открыто и светлое, благодаря отсутствию перегородок и лаконичному планированию, позволяющему максимально использовать доступное пространство как для активной жизни, так и для уединенного уединения. Уютное размещение всех комнат на одном уровне делает дом удобным для круглогодичного проживания: от кухни и гостиной до спален – всё находится в пределах одной ступеньки. К тому же к дому прицеплен гараж с закрытой автостоянкой, избавляющий от лишних забот о транспортных средствах. Оставив просторы для творчества, архитектор не обошёл стороной возможность насладиться свежим воздухом: просторная терраса, соединяющая внутренние помещения с открытым пространством, открывается к живописному ландшаффу. Даже в отсутствии балконов и веранд, открытая площадка за стенами дарит ощущение свободы и возможность организовать любое летнее праздновое настроение. Пусть это место станет вашим личным оазисом, где стильность и функциональность идут рука об руку. В каждом уголке ощущается сочетание современности и уюта, которые делают жизнь здесь особенной и вдохновляющей. Приглашаем вас открыть дверь в будущее, где каждый день наполнен новыми возможностями и яркими впечатлениями.

Характеристики дома

Архитектурный стиль
Автоматизированное регулирование параметров теплоносителя
Нет
Балконы/лоджии
Отсутствуют
Чердачное помещение
Нет
Датчики протечки воды
Нет
Эксплуатируемая или зеленая кровля
Нет
Электроснабжение
Не предусмотрено
Газоснабжение
Не предусмотрено
Изоляция воздушного шума
Нет
Камин
Нет
Класс энергоэффективности
-
Класс энергосбережения
-
Количество надземных этажей
1
Круглогодичное проживание
Да
Материал кровли
Битумно-полимерная или Битумно-резиновая мастика
Материал перекрытий
Сборные железобетонные многопустотные плиты
Материал внешних стен
Материал внутренних перегородок
Кирпичные
Модульное строительство с конструкциями заводского изготовления
Нет
Объем надземной части
678 м3
Основной материал фасадов
Облицовочный кирпич
Отопление
Не предусмотрено
Площадь дома
238 м2
Площадь застройки
284 м2
Подвальное помещение
Нет
Показатель компактности здания
-
Приборы учета тепловой энергии
Нет
Пристроенный гараж/крытая автостоянка
Да
Противопожарная система
Нет
Санузлы
2
Совмещенная кухня-гостиная
Да
Спальни
3
Терраса
Да
Тип фундамента
Свайно-ростверковый
Тип кровли
Толщина внешних стен
560 мм
Толщина внутренних перегородок
120 мм
Улучшенные шумовые характеристики
Нет
Вентиляция
Естественная
Веранда
Нет
Водоотведение
Не предусмотрено
Водоснабжение
Не предусмотрено
Высота дома
4.35 м
Высота потолков
2.85 м

Планировка

Фасад дома

Александр

Закажите выезд инженера

Александр

Выездной инженер
Закажите выезд инженера для точной диагностики и профессиональной консультации по инженерным системам. Специалист приедет в удобное время, проведёт осмотр, рассчитает стоимость работ и подберёт оптимальные решения для вашего дома.


    Похожие проекты

    Ипотека и
    рассрочка
    СтроимДом-1
    Стоимость от:
    7 753 680
    Проект от: 59 400
    Этажей 2
    Санузлы 2
    Спальни 4
    Смотреть
    Ипотека и
    рассрочка
    Дом с тремя спальнями «Березово»
    Стоимость от:
    7 909 440
    Проект от: 50 400
    Этажей 1
    Санузлы 2
    Спальни 3
    Смотреть
    Ипотека и
    рассрочка
    Проект «Ветерок»
    Стоимость от:
    5 428 560
    Проект от: 35 550
    Этажей 2
    Санузлы 2
    Спальни 3
    Смотреть
    Ипотека и
    рассрочка
    Одноэтажный дом из газобетона «БС-120»
    Стоимость от:
    4 532 880
    Проект от: 28 800
    Этажей 1
    Санузлы 1
    Спальни 2
    Смотреть
    Ипотека и
    рассрочка
    Виктория
    Стоимость от:
    5 414 640
    Проект от: 32 400
    Этажей 1
    Санузлы 1
    Спальни 3
    Смотреть
    Ипотека и
    рассрочка
    Двухэтажный дом 137
    Стоимость от:
    10 214 400
    Проект от: 72 000
    Этажей 2
    Санузлы 2
    Спальни 2
    Смотреть

    Как узнать стоимость дома

    back
    Оставляете заявку
    Вы заполняете форму на сайте или звоните нам. Менеджер Лайвкрафт связывается с вами для уточнения деталей: тип дома, площадь, материалы, участок строительства.
    back
    Консультация и подбор решения
    Наш специалист помогает выбрать оптимальный тип дома и конструкцию с учётом бюджета, сроков и целей — будь то дом для постоянного проживания или дача.
    back
    Расчёт предварительной стоимости
    Инженер делает первичный расчёт стоимости строительства по вашим параметрам: фундамент, коробка, кровля, отделка. Вы получаете смету с разбивкой по этапам.
    back
    Корректировка и утверждение сметы
    При необходимости вносим изменения — например, замену материалов или сокращение этапов. После согласования формируется окончательная фиксированная смета.
    back
    Заключение договора и старт работ
    После утверждения сметы заключаем официальный договор с гарантией. Вы получаете прозрачный график и точную стоимость — без скрытых расходов.

    Заказать конусльтацию по:Наб Челны 664

    Фото 1 Наб Челны 664


      Наши
      контакты

      Дмитров
      Опорный проезд 28Б
      (индустриальный парк Ниагара)
      9:00 до 18:00

      Корзина