4.9
Рейтинг на основании 120 отзывов
Дмитров
Опорный проезд 28Б
(индустриальный парк Ниагара)
Бренд "Дмитров-Дело" c 2008 года на рынке строительства в Дмитрове
Звоните 9:00 до 18:00 8 (915) 055-33-61
Бренд "Дмитров-Дело" c 2008 года на рынке строительства в Дмитрове

Двухэтажный индивидуальный жилой дом

Стоимость проекта от:
65 250 ₽
БЕСПЛАТНО! ПРИ ЗАКАЗЕ СТРОИТЕЛЬСТВА
Стоимость строительства от:
10 854 000 ₽
Артикул ART-13459
Дата 25.12.2025
Архитектурный стиль Классический
Количество надземных этажей 2
Круглогодичное проживание Да
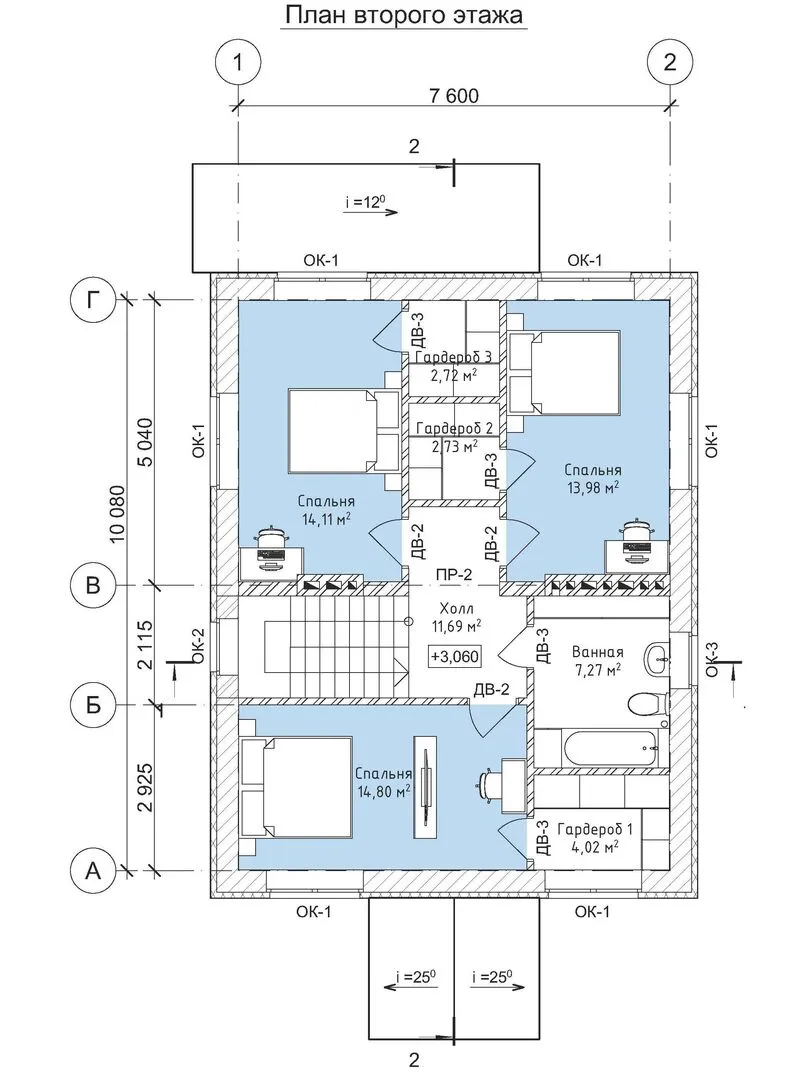
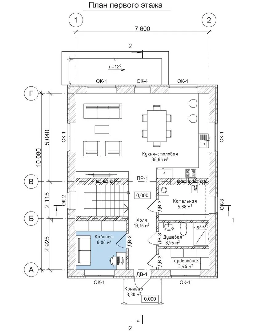
Площадь дома 145 м2
Санузлы 2
Спальни 4

Описание

Приглашаем вас открыть для себя уют и элегантность в новом двоеточном индивидуальном доме, выполненном в неповторимом классическом стиле. Нежные кирпичные стены придают фасаду теплоту и прочность, а величественная четырехскатная кровля с характерными валмировыми деталями завершает композицию, создавая образ истинно традиционного семейного гнезда. Этот дом, спроектированный с учётом круглогодичного проживания, сочетает в себе комфорт и практичность: просторные комнаты, светлый внутренний двор и продуманную планировку обеспечат вам спокойствие и уединение в любой сезон. Внутри вас ждёт гармония простых линий и функциональности. Открытая кухня, гостиной, уютные спальни и современные санузлы – всё, что необходимо для комфортной жизни. Отсутствие балконов и веранд позволяет владельцам наслаждаться приватностью и спокойной атмосферой, а отсутствие внешних дополнительных конструкций дарит целостность и чистоту внешнего вида. Кирпич в сочетании с вальмовой крышей усиливает ощущение крепости и надёжности, а также гарантирует долговечность и энергоэффективность постройки. Жизнь в этом доме – это сочетание статуса, уюта и надёжности. Если вы ищете просторное семейное гнездо, где каждый уголок пропитан классической элегантностью, а все необходимые инфраструктурные элементы доступны в радиусе нескольких шагов, этот дом станет идеаль­ным выбором. Позвольте себе засиять в атмосфере традиций и современного комфорта, где каждая деталь продумана с любовью и заботой о вашем благополучии.

Характеристики дома

Архитектурный стиль
Автоматизированное регулирование параметров теплоносителя
Нет
Балконы/лоджии
Отсутствуют
Чердачное помещение
Нет
Датчики протечки воды
Нет
Эксплуатируемая или зеленая кровля
Нет
Электроснабжение
Центральное
Газоснабжение
Центральное
Изоляция воздушного шума
Нет
Камин
Нет
Класс энергоэффективности
-
Класс энергосбережения
-
Количество надземных этажей
2
Круглогодичное проживание
Да
Материал кровли
Металлочерепица
Материал перекрытий
Сборные железобетонные многопустотные плиты
Материал внешних стен
Материал внутренних перегородок
Кирпичные
Модульное строительство с конструкциями заводского изготовления
Нет
Объем надземной части
889 м3
Основной материал фасадов
Штукатурка
Отопление
Индивидуальное
Площадь дома
145 м2
Площадь застройки
107 м2
Подвальное помещение
Нет
Показатель компактности здания
-
Приборы учета тепловой энергии
Нет
Пристроенный гараж/крытая автостоянка
Нет
Противопожарная система
Нет
Санузлы
2
Совмещенная кухня-гостиная
Да
Спальни
4
Терраса
Нет
Тип фундамента
Ленточный
Толщина внешних стен
380 мм
Толщина внутренних перегородок
120 мм
Улучшенные шумовые характеристики
Нет
Вентиляция
Естественная
Веранда
Нет
Водоотведение
2 варианта
Водоснабжение
2 варианта
Высота дома
8.31 м
Высота потолков
2.8 м

Планировка

Фасад дома

Александр

Закажите выезд инженера

Александр

Выездной инженер
Закажите выезд инженера для точной диагностики и профессиональной консультации по инженерным системам. Специалист приедет в удобное время, проведёт осмотр, рассчитает стоимость работ и подберёт оптимальные решения для вашего дома.


    Похожие проекты

    Ипотека и
    рассрочка
    50м2
    Стоимость от:
    121 000
    Проект от: 22 500
    Этажей 1
    Санузлы 1
    Спальни 2
    Смотреть
    Ипотека и
    рассрочка
    Одноэтажный дом «Ането»
    Стоимость от:
    3 813 480
    Проект от: 24 300
    Этажей 1
    Санузлы 1
    Спальни 2
    Смотреть
    Ипотека и
    рассрочка
    Проект загородного дома NHD-138
    Стоимость от:
    9 165 640
    Проект от: 54 900
    Этажей 1
    Санузлы 2
    Спальни 3
    Смотреть
    Ипотека и
    рассрочка
    Проект Двухэтажный дом классической архитектуры s3-156-6 (Z95 A)
    Стоимость от:
    16 589 280
    Проект от: 99 900
    Этажей 2
    Санузлы 2
    Спальни 3
    Смотреть
    Ипотека и
    рассрочка
    Одноэтажный дом Л116
    Стоимость от:
    8 565 480
    Проект от: 51 300
    Этажей 1
    Санузлы 2
    Спальни 3
    Смотреть
    Ипотека и
    рассрочка
    Шишкин
    Стоимость от:
    5 337 960
    Проект от: 40 050
    Этажей 2
    Санузлы 1
    Спальни 3
    Смотреть

    Как узнать стоимость дома

    back
    Оставляете заявку
    Вы заполняете форму на сайте или звоните нам. Менеджер Лайвкрафт связывается с вами для уточнения деталей: тип дома, площадь, материалы, участок строительства.
    back
    Консультация и подбор решения
    Наш специалист помогает выбрать оптимальный тип дома и конструкцию с учётом бюджета, сроков и целей — будь то дом для постоянного проживания или дача.
    back
    Расчёт предварительной стоимости
    Инженер делает первичный расчёт стоимости строительства по вашим параметрам: фундамент, коробка, кровля, отделка. Вы получаете смету с разбивкой по этапам.
    back
    Корректировка и утверждение сметы
    При необходимости вносим изменения — например, замену материалов или сокращение этапов. После согласования формируется окончательная фиксированная смета.
    back
    Заключение договора и старт работ
    После утверждения сметы заключаем официальный договор с гарантией. Вы получаете прозрачный график и точную стоимость — без скрытых расходов.

    Заказать конусльтацию по:Двухэтажный индивидуальный жилой дом

    Фото 1 Двухэтажный индивидуальный жилой дом


      Наши
      контакты

      Дмитров
      Опорный проезд 28Б
      (индустриальный парк Ниагара)
      9:00 до 18:00

      Корзина