4.9
Рейтинг на основании 120 отзывов
Дмитров
Опорный проезд 28Б
(индустриальный парк Ниагара)
Бренд "Дмитров-Дело" c 2008 года на рынке строительства в Дмитрове
Звоните 9:00 до 18:00 8 (915) 055-33-61
Бренд "Дмитров-Дело" c 2008 года на рынке строительства в Дмитрове

НД-ТПБ2-100

Стоимость проекта от:
45 000 ₽
БЕСПЛАТНО! ПРИ ЗАКАЗЕ СТРОИТЕЛЬСТВА
Стоимость строительства от:
6 984 000 ₽
Артикул ART-13867
Дата 25.12.2025
Архитектурный стиль Классический
Количество надземных этажей 2
Круглогодичное проживание Да
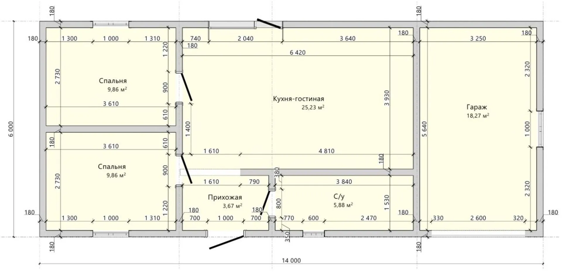
Площадь дома 100 м2
Санузлы 1
Спальни 3

Описание

Стильное сочетание традиционной архитектуры и современных удобств — вот что представляет вам дом **НД‑ТПБ2‑100**. Благодаря двум надземным этажам, аккуратному двускатному крыху и использованию природного материала - пиленого бруса в облике внешних стен, он излучает тепло и уют, делая любое время года комфортным. В классическом исполнении каждый фасад олицетворяет элегантность и строгую гармонию, а отсутствие балконов и веранд гарантирует приватность и простоту ухода. Проверенная конструкция с крытой автостоянкой и пристроенным гаражом обеспечивает надёжное хранение автомобиля, защищая его от погодных капризов и повышая уровень безопасности вашей семьи. Чердачное помещение служит дополнительным гибким пространством, которое можно превратить в кабинет, хранилище или даже в уютный детский уголок. Этот дом — идеальное решение для тех, кто ценит традиционную эстетику, безопасность и комфорт, не жертвуя функциональностью. Войдите в него и ощутите, как уют и тепло создают настоящий дом, где вы будете приятно удивлять себя и своих близких.

Характеристики дома

Архитектурный стиль
Автоматизированное регулирование параметров теплоносителя
Да
Балконы/лоджии
Отсутствуют
Чердачное помещение
Да
Датчики протечки воды
Нет
Эксплуатируемая или зеленая кровля
Нет
Электроснабжение
Центральное
Газоснабжение
Не предусмотрено
Изоляция воздушного шума
Нет
Камин
Нет
Класс энергоэффективности
-
Класс энергосбережения
-
Количество надземных этажей
2
Круглогодичное проживание
Да
Материал кровли
Металлочерепица
Материал перекрытий
Деревянные
Материал внешних стен
Материал внутренних перегородок
Деревянные
Модульное строительство с конструкциями заводского изготовления
Нет
Объем надземной части
529 м3
Основной материал фасадов
Дерево
Отопление
Индивидуальное
Площадь дома
100 м2
Площадь застройки
84 м2
Подвальное помещение
Нет
Показатель компактности здания
-
Приборы учета тепловой энергии
Да
Пристроенный гараж/крытая автостоянка
Да
Противопожарная система
Нет
Санузлы
1
Совмещенная кухня-гостиная
Да
Спальни
3
Терраса
Нет
Тип фундамента
Плитный
Тип кровли
Толщина внешних стен
180 мм
Толщина внутренних перегородок
180 мм
Улучшенные шумовые характеристики
Да
Вентиляция
Естественная
Веранда
Нет
Водоотведение
Локальные очистные сооружения
Водоснабжение
Индивидуальное
Высота дома
7.25 м
Высота потолков
2.88 м

Планировка

Фасад дома

Александр

Закажите выезд инженера

Александр

Выездной инженер
Закажите выезд инженера для точной диагностики и профессиональной консультации по инженерным системам. Специалист приедет в удобное время, проведёт осмотр, рассчитает стоимость работ и подберёт оптимальные решения для вашего дома.


    Похожие проекты

    Ипотека и
    рассрочка
    Европейский-142,55
    Стоимость от:
    13 280 740
    Проект от: 75 150
    Этажей 1
    Санузлы 2
    Спальни 3
    Смотреть
    Ипотека и
    рассрочка
    Индивидуальный жилой дом площадью 107 м2
    Стоимость от:
    8 515 540
    Проект от: 48 150
    Этажей 1
    Санузлы 2
    Спальни 3
    Смотреть
    Ипотека и
    рассрочка
    ХАЙ-ТЕК-161
    Стоимость от:
    12 728 640
    Проект от: 79 200
    Этажей 2
    Санузлы 3
    Спальни 3
    Смотреть
    Ипотека и
    рассрочка
    Каркасный дом «Прага»
    Стоимость от:
    9 470 520
    Проект от: 71 100
    Этажей 2
    Санузлы 2
    Спальни 4
    Смотреть
    Ипотека и
    рассрочка
    Современный одноэтажный дом KV-04-01 с террасой
    Стоимость от:
    10 804 860
    Проект от: 68 850
    Этажей 1
    Санузлы 2
    Спальни 4
    Смотреть
    Ипотека и
    рассрочка
    Каменый дом Кипарис
    Стоимость от:
    6 927 140
    Проект от: 39 150
    Этажей 1
    Санузлы 1
    Спальни 3
    Смотреть

    Как узнать стоимость дома

    back
    Оставляете заявку
    Вы заполняете форму на сайте или звоните нам. Менеджер Лайвкрафт связывается с вами для уточнения деталей: тип дома, площадь, материалы, участок строительства.
    back
    Консультация и подбор решения
    Наш специалист помогает выбрать оптимальный тип дома и конструкцию с учётом бюджета, сроков и целей — будь то дом для постоянного проживания или дача.
    back
    Расчёт предварительной стоимости
    Инженер делает первичный расчёт стоимости строительства по вашим параметрам: фундамент, коробка, кровля, отделка. Вы получаете смету с разбивкой по этапам.
    back
    Корректировка и утверждение сметы
    При необходимости вносим изменения — например, замену материалов или сокращение этапов. После согласования формируется окончательная фиксированная смета.
    back
    Заключение договора и старт работ
    После утверждения сметы заключаем официальный договор с гарантией. Вы получаете прозрачный график и точную стоимость — без скрытых расходов.

    Заказать конусльтацию по:НД-ТПБ2-100

    Фото 1 НД-ТПБ2-100


      Наши
      контакты

      Дмитров
      Опорный проезд 28Б
      (индустриальный парк Ниагара)
      9:00 до 18:00

      Корзина