4.9
Рейтинг на основании 120 отзывов
Дмитров
Опорный проезд 28Б
(индустриальный парк Ниагара)
Бренд "Дмитров-Дело" c 2008 года на рынке строительства в Дмитрове
Звоните 9:00 до 18:00 8 (915) 055-33-61
Бренд "Дмитров-Дело" c 2008 года на рынке строительства в Дмитрове

Проект загородного дома NHD-165

Стоимость проекта от:
69 300 ₽
БЕСПЛАТНО! ПРИ ЗАКАЗЕ СТРОИТЕЛЬСТВА
Стоимость строительства от:
11 139 360 ₽
Артикул ART-13225
Дата 25.12.2025
Архитектурный стиль Классический
Количество надземных этажей 2
Круглогодичное проживание Да
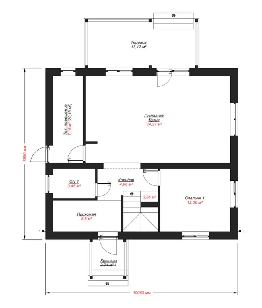
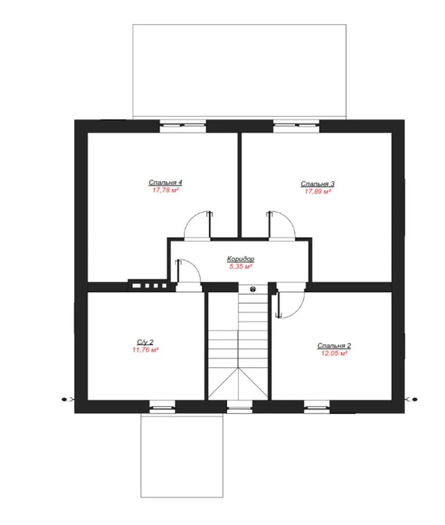
Площадь дома 154 м2
Санузлы 2
Спальни 4

Описание

Надежный и уютный, загородный дом NHD‑165 — это воплощение классической элегантности, созданное специально для тех, кто ценит комфорт круглый год. С двумя надземными этажами он легко адаптируется под любые семейные потребности: от просторных гостевых помещений до уютных уголков для работы или чтения. Классический архитектурный стиль, сочетающий строгую геометрия с мягкими линиями, создаёт ощущение гармонии и стабильности, а материалы высокого качества обеспечивают тепло и шумоизоляцию даже в холодные месяцы. Дом облечён в нежный, строгий фасад из газобетонных блоков, придающий структуре прочность и долгий срок эксплуатации. Двускатная кровля, выполненная в традиционном виде, подчёркивает архитектурную целостность и в то же время отталкивает дождь и снег, что делает этот объект особенно удобным для круглогодичного проживания. Чердачное помещение открывает дополнительный функциональный простор, что позволяет адаптировать его под личные нужды: от хранилища до уютного домашнего офиса или игровой площадки для детей. Дом не обязывает к созданию громоздких внешних элементов—нет балконов, веранд и прицепных гаражей, но компенсирует это практичностью и простотой. На территории располагается ровная, ухоженная терраса, идеальная для летних вечеров, барбекю или просто спокойного отдыха после трудного дня. В итоге NHD‑165 становится уютным убежищем, где каждый элемент продуман до мелочей, но при этом сохраняет неизменную теплоту и семейный уют. Это место, где хочется жить, где каждый день начинается с запаха свежего воздуха и завершается улыбкой на лице.

Характеристики дома

Архитектурный стиль
Автоматизированное регулирование параметров теплоносителя
Да
Балконы/лоджии
Отсутствуют
Чердачное помещение
Да
Датчики протечки воды
Нет
Эксплуатируемая или зеленая кровля
Нет
Электроснабжение
Центральное
Газоснабжение
Центральное
Изоляция воздушного шума
Да
Камин
Нет
Класс энергоэффективности
A++
Класс энергосбережения
A++
Количество надземных этажей
2
Круглогодичное проживание
Да
Материал кровли
Металлочерепица
Материал перекрытий
Сборные железобетонные предварительно напряженные пустотные плиты
Материал внешних стен
Материал внутренних перегородок
Блочные
Модульное строительство с конструкциями заводского изготовления
Нет
Объем надземной части
836 м3
Основной материал фасадов
Штукатурка
Отопление
Индивидуальное
Площадь дома
154 м2
Площадь застройки
95 м2
Подвальное помещение
Нет
Показатель компактности здания
0.8
Приборы учета тепловой энергии
Да
Пристроенный гараж/крытая автостоянка
Нет
Противопожарная система
Нет
Санузлы
2
Совмещенная кухня-гостиная
Да
Спальни
4
Терраса
Да
Тип фундамента
Свайно-ростверковый
Тип кровли
Толщина внешних стен
400 мм
Толщина внутренних перегородок
100 мм
Улучшенные шумовые характеристики
Да
Вентиляция
Естественная
Веранда
Нет
Водоотведение
Локальные очистные сооружения
Водоснабжение
Индивидуальное
Высота дома
9.3 м
Высота потолков
2.8 м

Планировка

Фасад дома

Александр

Закажите выезд инженера

Александр

Выездной инженер
Закажите выезд инженера для точной диагностики и профессиональной консультации по инженерным системам. Специалист приедет в удобное время, проведёт осмотр, рассчитает стоимость работ и подберёт оптимальные решения для вашего дома.


    Похожие проекты

    Ипотека и
    рассрочка
    Варшава
    Стоимость от:
    5 994 000
    Проект от: 45 000
    Этажей 2
    Санузлы 2
    Спальни 3
    Смотреть
    Ипотека и
    рассрочка
    Одноэтажный деревянный дом «Вистлер»
    Стоимость от:
    5 405 180
    Проект от: 35 550
    Этажей 1
    Санузлы 1
    Спальни 1
    Смотреть
    Ипотека и
    рассрочка
    Загородный дом Сибиряк-70
    Стоимость от:
    4 943 400
    Проект от: 31 500
    Этажей 1
    Санузлы 1
    Спальни 2
    Смотреть
    Ипотека и
    рассрочка
    007
    Стоимость от:
    6 847 720
    Проект от: 38 700
    Этажей 1
    Санузлы 1
    Спальни 2
    Смотреть
    Ипотека и
    рассрочка
    Восток 150624
    Стоимость от:
    7 721 340
    Проект от: 43 650
    Этажей 1
    Санузлы 2
    Спальни 3
    Смотреть
    Ипотека и
    рассрочка
    Одноэтажный дом с крыльцом и террасой Family-108
    Стоимость от:
    8 940 580
    Проект от: 53 550
    Этажей 1
    Санузлы 2
    Спальни 3
    Смотреть

    Как узнать стоимость дома

    back
    Оставляете заявку
    Вы заполняете форму на сайте или звоните нам. Менеджер Лайвкрафт связывается с вами для уточнения деталей: тип дома, площадь, материалы, участок строительства.
    back
    Консультация и подбор решения
    Наш специалист помогает выбрать оптимальный тип дома и конструкцию с учётом бюджета, сроков и целей — будь то дом для постоянного проживания или дача.
    back
    Расчёт предварительной стоимости
    Инженер делает первичный расчёт стоимости строительства по вашим параметрам: фундамент, коробка, кровля, отделка. Вы получаете смету с разбивкой по этапам.
    back
    Корректировка и утверждение сметы
    При необходимости вносим изменения — например, замену материалов или сокращение этапов. После согласования формируется окончательная фиксированная смета.
    back
    Заключение договора и старт работ
    После утверждения сметы заключаем официальный договор с гарантией. Вы получаете прозрачный график и точную стоимость — без скрытых расходов.

    Заказать конусльтацию по:Проект загородного дома NHD-165

    Фото 1 Проект загородного дома NHD-165


      Наши
      контакты

      Дмитров
      Опорный проезд 28Б
      (индустриальный парк Ниагара)
      9:00 до 18:00

      Корзина