4.9
Рейтинг на основании 120 отзывов
Дмитров
Опорный проезд 28Б
(индустриальный парк Ниагара)
Бренд "Дмитров-Дело" c 2008 года на рынке строительства в Дмитрове
Звоните 9:00 до 18:00 8 (915) 055-33-61
Бренд "Дмитров-Дело" c 2008 года на рынке строительства в Дмитрове

Низино

Стоимость проекта от:
83 700 ₽
БЕСПЛАТНО! ПРИ ЗАКАЗЕ СТРОИТЕЛЬСТВА
Стоимость строительства от:
11 148 840 ₽
Артикул ART-14132
Дата 25.12.2025
Архитектурный стиль Скандинавский
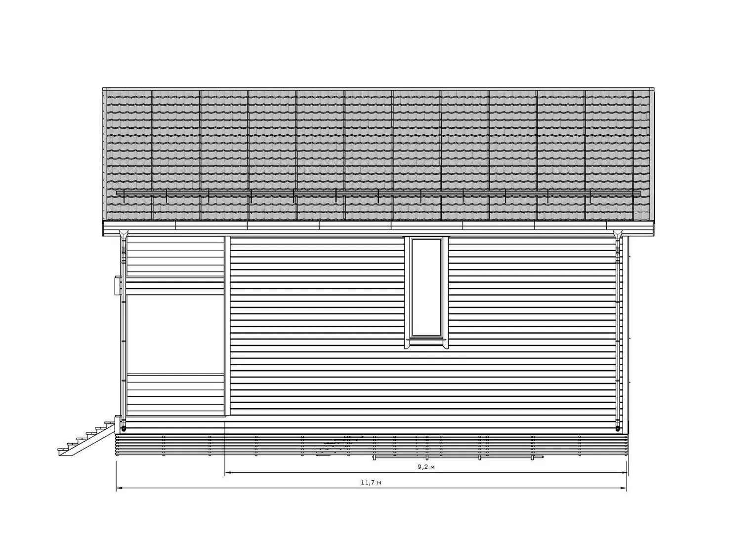
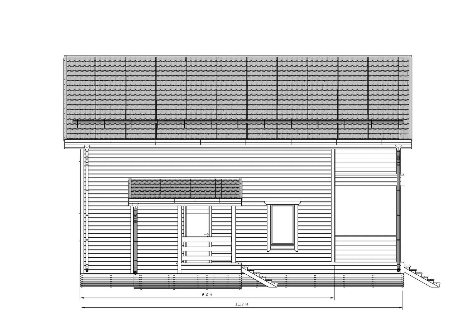
Количество надземных этажей 2
Круглогодичное проживание Да
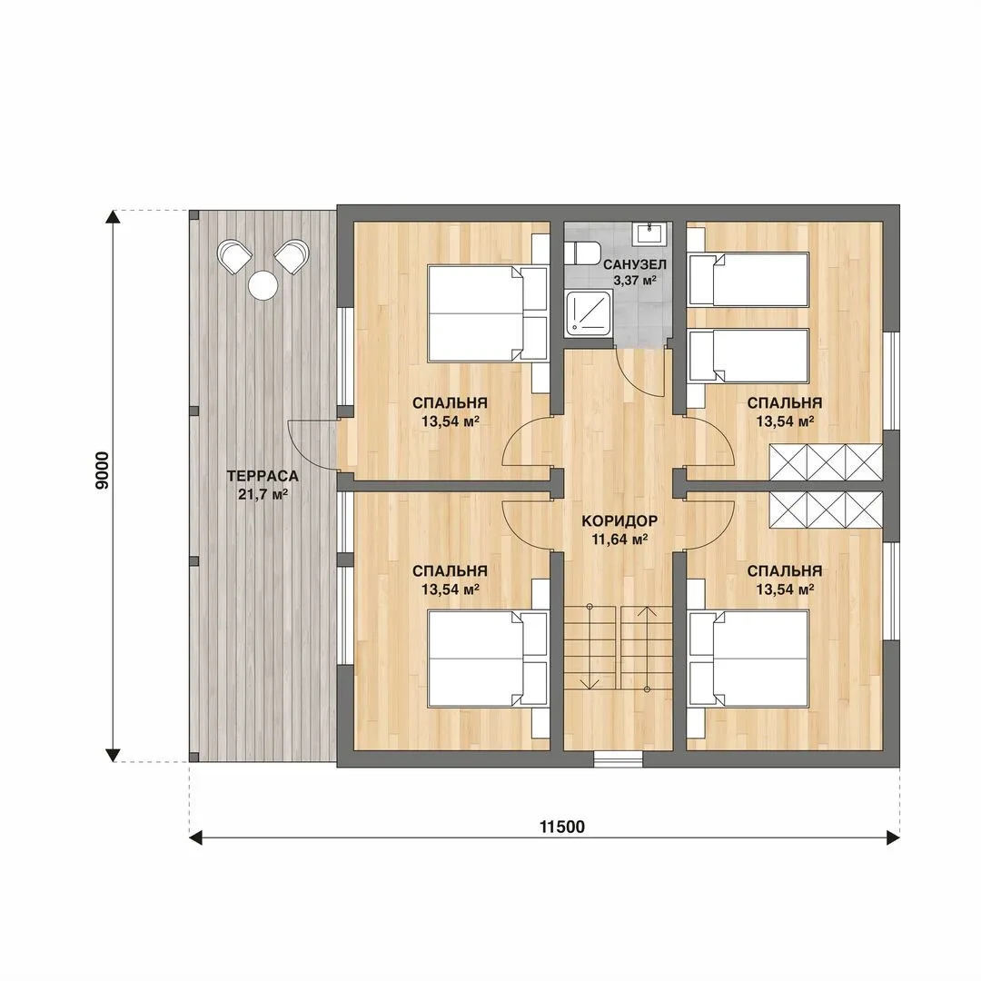
Площадь дома 186 м2
Санузлы 2
Спальни 5

Описание

Незабываемое сочетание уюта и простоты — наш дом в Низино приглашает вдохнуть свежесть северных лесов. С двумя открытыми этажами, он располагает светлыми, просторными комнатами, где каждая зона плавно переходит в другую. Внутренние стены, обрамленные чистыми линиями деревянного каркаса, создают ощущение открытого пространства, а большие окна пропускают свет, наполняя дом теплом даже в самые холодные дни. Круглогодичная обустроенность и два ровных крыша позволяют без напряжения проживать здесь в любое время года, наслаждаясь при этом естественным климатом. Скандинавский дизайн проявляется в лаконичности деталей и нежном использовании природных материалов. Двухскатная крыша акцентирует вертикальность, а просторная терраса становится продолжением дома, приглашая к вечерним беседам и наблюдениям за звёздным небом. Внутреннее пространство организовано так, чтобы в каждой комнате ощущалось тепло и спокойствие, а отсутствие лишних балконов и прибрежных стоянок делает дом полностью сосредоточенным на его главных достоинствах: простоте, функциональности и уединённости. Приходите и посмотрите, как может выглядеть ваш новый путь к гармонии в сердце Низино.

Характеристики дома

Архитектурный стиль
Автоматизированное регулирование параметров теплоносителя
Нет
Балконы/лоджии
Отсутствуют
Чердачное помещение
Нет
Датчики протечки воды
Нет
Эксплуатируемая или зеленая кровля
Нет
Электроснабжение
Индивидуальное
Газоснабжение
Индивидуальное
Изоляция воздушного шума
Нет
Камин
Нет
Класс энергоэффективности
-
Класс энергосбережения
-
Количество надземных этажей
2
Круглогодичное проживание
Да
Материал кровли
Металлочерепица
Материал перекрытий
Деревянные
Материал внешних стен
Материал внутренних перегородок
Деревянные
Модульное строительство с конструкциями заводского изготовления
Нет
Объем надземной части
500 м3
Основной материал фасадов
Дерево
Отопление
Индивидуальное
Площадь дома
186 м2
Площадь застройки
210 м2
Подвальное помещение
Нет
Показатель компактности здания
-
Приборы учета тепловой энергии
Нет
Пристроенный гараж/крытая автостоянка
Нет
Противопожарная система
Нет
Санузлы
2
Совмещенная кухня-гостиная
Да
Спальни
5
Терраса
Да
Тип фундамента
Свайный
Тип кровли
Толщина внешних стен
370 мм
Толщина внутренних перегородок
270 мм
Улучшенные шумовые характеристики
Нет
Вентиляция
Естественная
Веранда
Нет
Водоотведение
Локальные очистные сооружения
Водоснабжение
Индивидуальное
Высота дома
7.1 м
Высота потолков
2.7 м

Планировка

Фасад дома

Александр

Закажите выезд инженера

Александр

Выездной инженер
Закажите выезд инженера для точной диагностики и профессиональной консультации по инженерным системам. Специалист приедет в удобное время, проведёт осмотр, рассчитает стоимость работ и подберёт оптимальные решения для вашего дома.


    Похожие проекты

    Ипотека и
    рассрочка
    Проект А021
    Стоимость от:
    6 308 880
    Проект от: 39 150
    Этажей 2
    Санузлы 2
    Спальни 3
    Смотреть
    Ипотека и
    рассрочка
    Серийный проект каркасного дома КВ-1-89К
    Стоимость от:
    5 159 330
    Проект от: 40 050
    Этажей 1
    Санузлы 1
    Спальни 2
    Смотреть
    Ипотека и
    рассрочка
    Барн с антресолью и террасой
    Стоимость от:
    7 766 160
    Проект от: 49 050
    Этажей 2
    Санузлы 1
    Спальни 3
    Смотреть
    Ипотека и
    рассрочка
    Проект загородного дома NHD-144
    Стоимость от:
    13 306 560
    Проект от: 82 800
    Этажей 2
    Санузлы 2
    Спальни 4
    Смотреть
    Ипотека и
    рассрочка
    Фотон
    Стоимость от:
    5 838 800
    Проект от: 36 000
    Этажей 1
    Санузлы 1
    Спальни 2
    Смотреть
    Ипотека и
    рассрочка
    Мансардный дом ЭС-129
    Стоимость от:
    6 344 520
    Проект от: 44 100
    Этажей 2
    Санузлы 2
    Спальни 2
    Смотреть

    Как узнать стоимость дома

    back
    Оставляете заявку
    Вы заполняете форму на сайте или звоните нам. Менеджер Лайвкрафт связывается с вами для уточнения деталей: тип дома, площадь, материалы, участок строительства.
    back
    Консультация и подбор решения
    Наш специалист помогает выбрать оптимальный тип дома и конструкцию с учётом бюджета, сроков и целей — будь то дом для постоянного проживания или дача.
    back
    Расчёт предварительной стоимости
    Инженер делает первичный расчёт стоимости строительства по вашим параметрам: фундамент, коробка, кровля, отделка. Вы получаете смету с разбивкой по этапам.
    back
    Корректировка и утверждение сметы
    При необходимости вносим изменения — например, замену материалов или сокращение этапов. После согласования формируется окончательная фиксированная смета.
    back
    Заключение договора и старт работ
    После утверждения сметы заключаем официальный договор с гарантией. Вы получаете прозрачный график и точную стоимость — без скрытых расходов.

    Заказать конусльтацию по:Низино

    Фото 1 Низино


      Наши
      контакты

      Дмитров
      Опорный проезд 28Б
      (индустриальный парк Ниагара)
      9:00 до 18:00

      Корзина