4.9
Рейтинг на основании 120 отзывов
Дмитров
Опорный проезд 28Б
(индустриальный парк Ниагара)
Бренд "Дмитров-Дело" c 2008 года на рынке строительства в Дмитрове
Звоните 9:00 до 18:00 8 (915) 055-33-61
Бренд "Дмитров-Дело" c 2008 года на рынке строительства в Дмитрове

НОРВЕЙ 60

Стоимость проекта от:
21 600 ₽
БЕСПЛАТНО! ПРИ ЗАКАЗЕ СТРОИТЕЛЬСТВА
Стоимость строительства от:
2 782 560 ₽
Артикул ART-19982
Дата 26.12.2025
Архитектурный стиль Скандинавский
Количество надземных этажей 1
Круглогодичное проживание Да
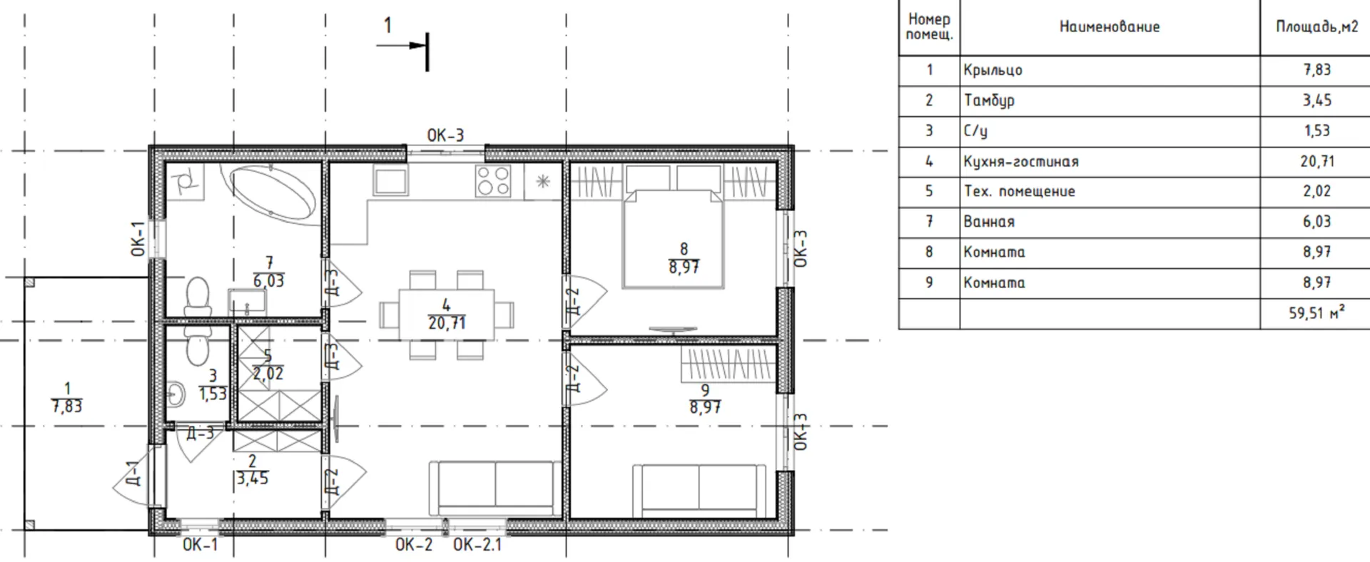
Площадь дома 48 м2
Санузлы 2
Спальни 2

Описание

Норвегия 60 – это воплощение скандинавского уюта и чистой простоты в современном исполнении. Совершенно открытая планировка одного надземного этажа позволяет каждому уголку дома дышать свежим воздухом и светом, а деревянный каркас и тонкая, но стойкая двойная кровля создают естественное тепло, поглощающие даже холодные ветра северных дней. Внутри вы ощутите гармонию простых линий, натуральных материалов и тихое приглушённое освещение, оттесняя шум и суету повседневной жизни. Дом спроектирован как полноценное место для круглогодичного проживания: просторные жилые зоны, полностью оборудованная кухня и уютный обеденный уголок с видом на лесную рощу. Гибкая конфигурация помещений позволяет легко адаптировать пространство под любые потребности – будь то семейный уют, офис на дому или тихий уголок для творчества. Отсутствие лишних внешних конструкций (балконов, веранд, гаража) подчеркивает лаконичность и современный минимализм, при этом всё внутреннее пространство обогащено природными материалами, создавая неповторимую атмосферу тёплой домашней гавани, где каждый найдет своё место.

Характеристики дома

Архитектурный стиль
Автоматизированное регулирование параметров теплоносителя
Нет
Балконы/лоджии
Отсутствуют
Чердачное помещение
Нет
Датчики протечки воды
Нет
Эксплуатируемая или зеленая кровля
Нет
Электроснабжение
Центральное
Газоснабжение
Не предусмотрено
Изоляция воздушного шума
Да
Камин
Нет
Класс энергоэффективности
-
Класс энергосбережения
-
Количество надземных этажей
1
Круглогодичное проживание
Да
Материал кровли
Металлочерепица
Материал перекрытий
Деревянные
Материал внешних стен
Материал внутренних перегородок
Гипсокартонные
Модульное строительство с конструкциями заводского изготовления
Нет
Объем надземной части
150 м3
Основной материал фасадов
Дерево
Отопление
Индивидуальное
Площадь дома
48 м2
Площадь застройки
68 м2
Подвальное помещение
Нет
Показатель компактности здания
-
Приборы учета тепловой энергии
Нет
Пристроенный гараж/крытая автостоянка
Нет
Противопожарная система
Нет
Санузлы
2
Совмещенная кухня-гостиная
Да
Спальни
2
Терраса
Нет
Тип фундамента
Свайный
Тип кровли
Толщина внешних стен
282 мм
Толщина внутренних перегородок
100 мм
Улучшенные шумовые характеристики
Да
Вентиляция
Естественная
Веранда
Нет
Водоотведение
Локальные очистные сооружения
Водоснабжение
Индивидуальное
Высота дома
3.98 м
Высота потолков
2.7 м

Планировка

Фасад дома

Александр

Закажите выезд инженера

Александр

Выездной инженер
Закажите выезд инженера для точной диагностики и профессиональной консультации по инженерным системам. Специалист приедет в удобное время, проведёт осмотр, рассчитает стоимость работ и подберёт оптимальные решения для вашего дома.


    Похожие проекты

    Ипотека и
    рассрочка
    Дом «Находка»
    Стоимость от:
    4 218 995
    Проект от: 35 550
    Этажей 1
    Санузлы 1
    Спальни 2
    Смотреть
    Ипотека и
    рассрочка
    Двухэтажный загородный дом «Балтийский»
    Стоимость от:
    5 266 800
    Проект от: 39 600
    Этажей 2
    Санузлы 2
    Спальни 3
    Смотреть
    Ипотека и
    рассрочка
    Барнхаус 62,29
    Стоимость от:
    3 716 280
    Проект от: 27 900
    Этажей 2
    Санузлы 1
    Спальни 1
    Смотреть
    Ипотека и
    рассрочка
    «Жданов»
    Стоимость от:
    6 885 960
    Проект от: 51 750
    Этажей 2
    Санузлы 2
    Спальни 3
    Смотреть
    Ипотека и
    рассрочка
    Одноэтажный дом Сканди Вилье ВМ
    Стоимость от:
    8 811 440
    Проект от: 68 400
    Этажей 1
    Санузлы 1
    Спальни 4
    Смотреть
    Ипотека и
    рассрочка
    ДомPRO 87-3К-КТ
    Стоимость от:
    8 356 700
    Проект от: 47 250
    Этажей 1
    Санузлы 2
    Спальни 3
    Смотреть

    Как узнать стоимость дома

    back
    Оставляете заявку
    Вы заполняете форму на сайте или звоните нам. Менеджер Лайвкрафт связывается с вами для уточнения деталей: тип дома, площадь, материалы, участок строительства.
    back
    Консультация и подбор решения
    Наш специалист помогает выбрать оптимальный тип дома и конструкцию с учётом бюджета, сроков и целей — будь то дом для постоянного проживания или дача.
    back
    Расчёт предварительной стоимости
    Инженер делает первичный расчёт стоимости строительства по вашим параметрам: фундамент, коробка, кровля, отделка. Вы получаете смету с разбивкой по этапам.
    back
    Корректировка и утверждение сметы
    При необходимости вносим изменения — например, замену материалов или сокращение этапов. После согласования формируется окончательная фиксированная смета.
    back
    Заключение договора и старт работ
    После утверждения сметы заключаем официальный договор с гарантией. Вы получаете прозрачный график и точную стоимость — без скрытых расходов.

    Заказать конусльтацию по:НОРВЕЙ 60

    Фото 1 НОРВЕЙ 60


      Наши
      контакты

      Дмитров
      Опорный проезд 28Б
      (индустриальный парк Ниагара)
      9:00 до 18:00

      Корзина