4.9
Рейтинг на основании 120 отзывов
Дмитров
Опорный проезд 28Б
(индустриальный парк Ниагара)
Бренд "Дмитров-Дело" c 2008 года на рынке строительства в Дмитрове
Звоните 9:00 до 18:00 8 (915) 055-33-61
Бренд "Дмитров-Дело" c 2008 года на рынке строительства в Дмитрове

БарнХаус 22-22КД

Стоимость проекта от:
29 250 ₽
БЕСПЛАТНО! ПРИ ЗАКАЗЕ СТРОИТЕЛЬСТВА
Стоимость строительства от:
3 982 550 ₽
Артикул ART-4509
Дата 26.12.2025
Архитектурный стиль Барнхаус
Количество надземных этажей 1
Круглогодичное проживание Да
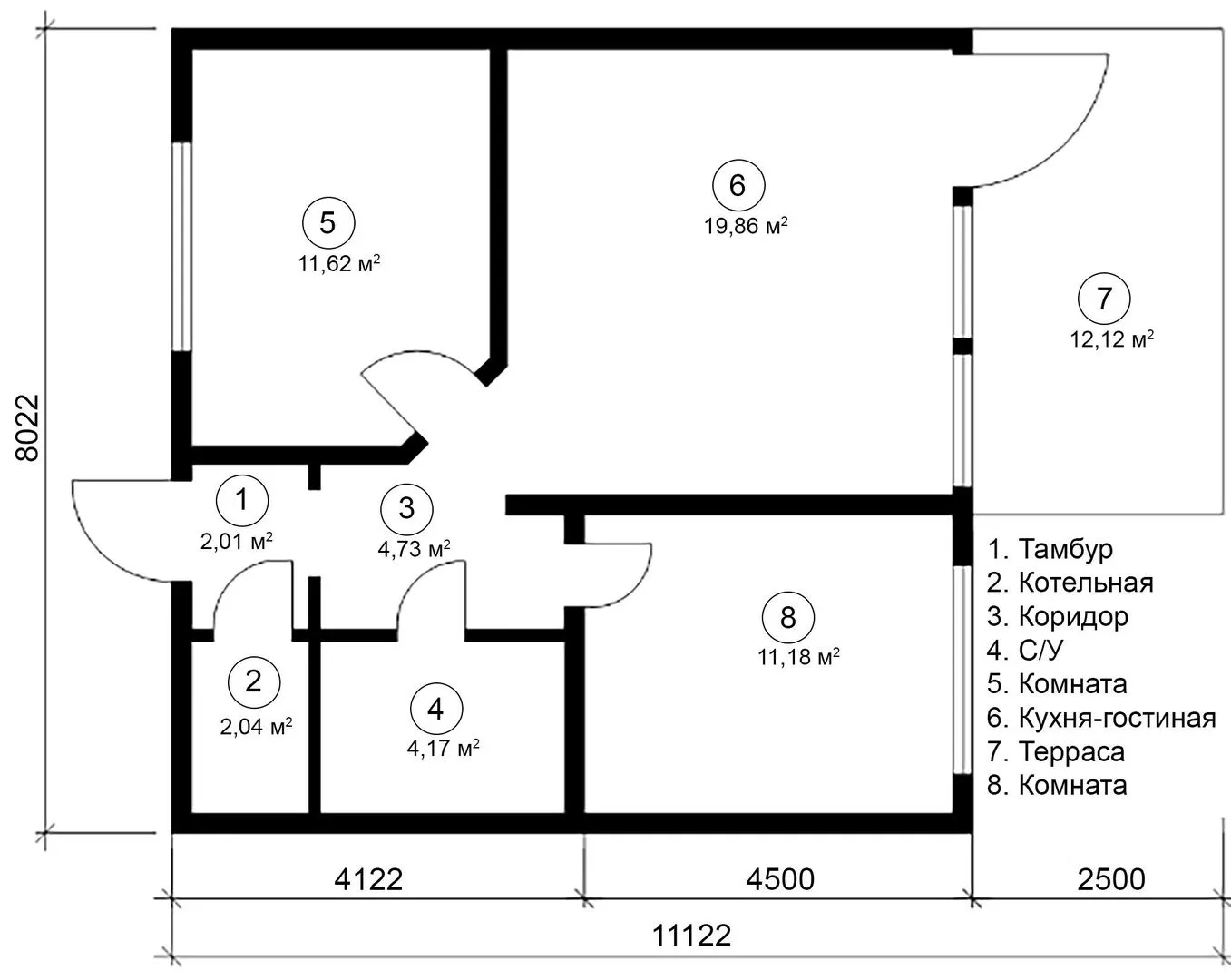
Площадь дома 65 м2
Санузлы 1
Спальни 2

Описание

Добро пожаловать в *БарнХаус 22‑22КД* – ваш новый уголок уюта и легкости. Этот одноэтажный дом, выполненный в романтично-скандинавском барнхаус-стиле, создаёт ощущение спокойного рая, где каждый сантиметр пропитан природной гармонией. Круглогодичное проживание гарантирует комфорт независимо от погоды: тепло бережно сохраняется в изолированных SIP‑панелях, а простая, но элегантная двускатная крыша защищает от снегов, ветра и солнечных лучей. Мелочи делают пространство особенным: отсутствуют балконы и веранда, но наличие просторной террасы позволяет вам наслаждаться ярким солнцем, шумом луга или тихим вечерним освещением прямо на собственной приватной площадке. Стены из SIP‑панелей не только обеспечивают энергоэффективность, но и дают безупречный внешний вид, придавая дому современный и ухоженный облик. Простая архитектура барнхауса, объединенная с продуманными интерьерами, делает комнату лёгкой и воздушной, идеальной для семейного уюта и приёма гостей. Это дом — не просто жильё, а стиль жизни, который сочетает в себе простоту и современность, а также функциональность и тепло. Если вы мечтаете об уютном, но всё‑таки продуманном доме, где каждый день открывает новые возможности для отдыха и встреч, *БарнХаус 22‑22КД* готов стать вашим любимым местом.

Характеристики дома

Архитектурный стиль
Автоматизированное регулирование параметров теплоносителя
Да
Балконы/лоджии
Отсутствуют
Чердачное помещение
Нет
Датчики протечки воды
Нет
Эксплуатируемая или зеленая кровля
Нет
Электроснабжение
Индивидуальное
Газоснабжение
Не предусмотрено
Изоляция воздушного шума
Нет
Камин
Нет
Класс энергоэффективности
-
Класс энергосбережения
-
Количество надземных этажей
1
Круглогодичное проживание
Да
Материал кровли
Металлические листовые гофрированные профили
Материал перекрытий
Деревянные
Материал внешних стен
Материал внутренних перегородок
Деревянные
Модульное строительство с конструкциями заводского изготовления
Нет
Объем надземной части
318 м3
Основной материал фасадов
Планкен
Отопление
Индивидуальное
Площадь дома
65 м2
Площадь застройки
89 м2
Подвальное помещение
Нет
Показатель компактности здания
-
Приборы учета тепловой энергии
Нет
Пристроенный гараж/крытая автостоянка
Нет
Противопожарная система
Нет
Санузлы
1
Совмещенная кухня-гостиная
Да
Спальни
2
Терраса
Да
Тип фундамента
Свайный
Тип кровли
Толщина внешних стен
174 мм
Толщина внутренних перегородок
174 мм
Улучшенные шумовые характеристики
Нет
Вентиляция
Принудительная
Веранда
Нет
Водоотведение
Локальные очистные сооружения
Водоснабжение
Индивидуальное
Высота дома
4.7 м
Высота потолков
2.8 м

Планировка

Фасад дома

Александр

Закажите выезд инженера

Александр

Выездной инженер
Закажите выезд инженера для точной диагностики и профессиональной консультации по инженерным системам. Специалист приедет в удобное время, проведёт осмотр, рассчитает стоимость работ и подберёт оптимальные решения для вашего дома.


    Похожие проекты

    Ипотека и
    рассрочка
    ДРЕВЕСНЫЙ КОМФОРТ
    Стоимость от:
    3 820 200
    Проект от: 29 250
    Этажей 2
    Санузлы 1
    Спальни 2
    Смотреть
    Ипотека и
    рассрочка
    КД «Томск»
    Стоимость от:
    7 900 200
    Проект от: 59 400
    Этажей 2
    Санузлы 2
    Спальни 5
    Смотреть
    Ипотека и
    рассрочка
    Загородный дом «АЯН-2»
    Стоимость от:
    6 002 700
    Проект от: 38 250
    Этажей 1
    Санузлы 1
    Спальни 2
    Смотреть
    Ипотека и
    рассрочка
    Жилой дом DC-65
    Стоимость от:
    4 862 220
    Проект от: 27 450
    Этажей 1
    Санузлы 1
    Спальни 2
    Смотреть
    Ипотека и
    рассрочка
    Одноэтажный дом Fixplans-0548
    Стоимость от:
    13 439 580
    Проект от: 76 050
    Этажей 1
    Санузлы 2
    Спальни 4
    Смотреть
    Ипотека и
    рассрочка
    Модульный дом FL 65 (ТИ65)
    Стоимость от:
    5 019 300
    Проект от: 40 500
    Этажей 1
    Санузлы 1
    Спальни 2
    Смотреть

    Как узнать стоимость дома

    back
    Оставляете заявку
    Вы заполняете форму на сайте или звоните нам. Менеджер Лайвкрафт связывается с вами для уточнения деталей: тип дома, площадь, материалы, участок строительства.
    back
    Консультация и подбор решения
    Наш специалист помогает выбрать оптимальный тип дома и конструкцию с учётом бюджета, сроков и целей — будь то дом для постоянного проживания или дача.
    back
    Расчёт предварительной стоимости
    Инженер делает первичный расчёт стоимости строительства по вашим параметрам: фундамент, коробка, кровля, отделка. Вы получаете смету с разбивкой по этапам.
    back
    Корректировка и утверждение сметы
    При необходимости вносим изменения — например, замену материалов или сокращение этапов. После согласования формируется окончательная фиксированная смета.
    back
    Заключение договора и старт работ
    После утверждения сметы заключаем официальный договор с гарантией. Вы получаете прозрачный график и точную стоимость — без скрытых расходов.

    Заказать конусльтацию по:БарнХаус 22-22КД

    Фото 1 БарнХаус 22-22КД


      Наши
      контакты

      Дмитров
      Опорный проезд 28Б
      (индустриальный парк Ниагара)
      9:00 до 18:00

      Корзина