4.9
Рейтинг на основании 120 отзывов
Дмитров
Опорный проезд 28Б
(индустриальный парк Ниагара)
Бренд "Дмитров-Дело" c 2008 года на рынке строительства в Дмитрове
Звоните 9:00 до 18:00 8 (915) 055-33-61
Бренд "Дмитров-Дело" c 2008 года на рынке строительства в Дмитрове

Загородный дом «АЯН-2»

Стоимость проекта от:
38 250 ₽
БЕСПЛАТНО! ПРИ ЗАКАЗЕ СТРОИТЕЛЬСТВА
Стоимость строительства от:
6 002 700 ₽
Артикул ART-2757
Дата 26.12.2025
Архитектурный стиль Классический
Количество надземных этажей 1
Круглогодичное проживание Да
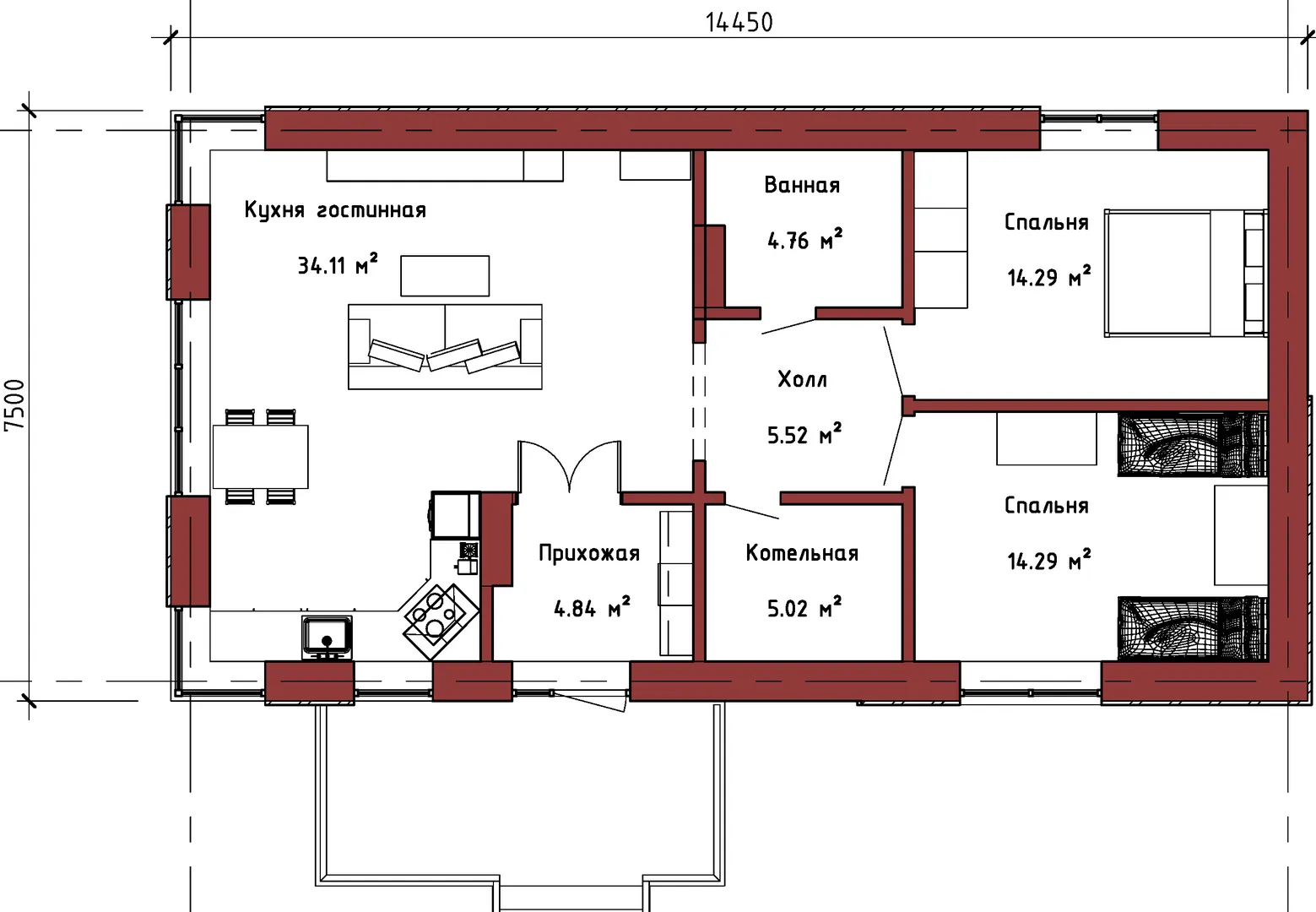
Площадь дома 85 м2
Санузлы 1
Спальни 2

Описание

**Дом «АЯН‑2» — ваш уютный уголок в сердце природы** Представьте себе спокойствие и гармонию, где каждый уголок пронизан классическим стилем, а простота одной надземной этажности дарит ощущение открытости и свободы. Дом «АЯН‑2» создан для тех, кто ценит тихую жизнь в окружении зелёных просторов, но при этом желает жить круглогодично без лишних хлопот. Величественные оконные проёмы пропускают естественный свет, создавая в помещении ощущение пространства, а при ярчайших солнечных днях открывается завораживающий вид на ландшафт за окнами. **Итончённый дизайн и надёжные материалы** Эта резиденция сочетает в себе классику и современные технологии. Внешние стены выполнены из полистиролбетона — материала, дарящего тепло, шумоизоляцию и долгий срок эксплуатации без лишнего ухода. Кровля выполнена комбинированным способом, что обеспечивает надёжную защиту от непогоды и придаёт дому утончённый контур. Несмотря на отсутствие балконов, террас и веранд, интерьер дома пропитан светом и лёгкостью, а открытая планировка делает каждый уголок гостеприимным и функциональным. **Ваш новый образ жизни уже ждёт** «АЯН‑2» — это идеальный дом для семьи, которая хочет совместить комфорт с природой. Одна этажа позволяет удобно устроить пространство для всех, а отсутствие гаража открывает перспективу оформить дополнительную жилую или хозяйственную площадью по собственному вкусу. Приглашаем вас открыть для себя этот уголок спокойствия, где каждый день начинается и заканчивается в окружении уюта и тишины. Если вы ищете место, где сердце успеет отдохнуть, а душа почувствует себя дома, «АЯН‑2» готов стать вашим новым приютом.

Характеристики дома

Архитектурный стиль
Автоматизированное регулирование параметров теплоносителя
-
Балконы/лоджии
Отсутствуют
Чердачное помещение
Нет
Датчики протечки воды
-
Эксплуатируемая или зеленая кровля
-
Электроснабжение
Центральное
Газоснабжение
Не предусмотрено
Изоляция воздушного шума
-
Камин
Нет
Класс энергоэффективности
-
Класс энергосбережения
-
Количество надземных этажей
1
Круглогодичное проживание
Да
Материал кровли
Металлочерепица
Материал перекрытий
Деревянные
Материал внешних стен
Материал внутренних перегородок
Блочные
Модульное строительство с конструкциями заводского изготовления
Нет
Объем надземной части
-
Основной материал фасадов
Штукатурка
Отопление
Индивидуальное
Площадь дома
85 м2
Площадь застройки
108 м2
Подвальное помещение
Нет
Показатель компактности здания
-
Приборы учета тепловой энергии
-
Пристроенный гараж/крытая автостоянка
Нет
Противопожарная система
Нет
Санузлы
1
Совмещенная кухня-гостиная
Да
Спальни
2
Терраса
Нет
Тип фундамента
Плитный
Тип кровли
Толщина внешних стен
480 мм
Толщина внутренних перегородок
100 мм
Улучшенные шумовые характеристики
-
Вентиляция
Естественная
Веранда
Нет
Водоотведение
Локальные очистные сооружения
Водоснабжение
Индивидуальное
Высота дома
3.2 м
Высота потолков
2.5 м

Планировка

Фасад дома

Александр

Закажите выезд инженера

Александр

Выездной инженер
Закажите выезд инженера для точной диагностики и профессиональной консультации по инженерным системам. Специалист приедет в удобное время, проведёт осмотр, рассчитает стоимость работ и подберёт оптимальные решения для вашего дома.


    Похожие проекты

    Ипотека и
    рассрочка
    Загородный дом АС-207
    Стоимость от:
    18 268 140
    Проект от: 120 150
    Этажей 1
    Санузлы 3
    Спальни 4
    Смотреть
    Ипотека и
    рассрочка
    Одноэтажный кирпичный дом ТП-64
    Стоимость от:
    4 439 380
    Проект от: 26 550
    Этажей 1
    Санузлы 1
    Спальни 2
    Смотреть
    Ипотека и
    рассрочка
    Брусовой дом с гаражом ТА-92
    Стоимость от:
    8 666 240
    Проект от: 50 400
    Этажей 1
    Санузлы 1
    Спальни 2
    Смотреть
    Ипотека и
    рассрочка
    Одноэтажный дом c террасой LV-146
    Стоимость от:
    10 966 120
    Проект от: 65 700
    Этажей 1
    Санузлы 2
    Спальни 3
    Смотреть
    Ипотека и
    рассрочка
    Индивидуальный жилой дом площадью 217 м2
    Стоимость от:
    14 847 140
    Проект от: 97 650
    Этажей 1
    Санузлы 2
    Спальни 4
    Смотреть
    Ипотека и
    рассрочка
    Проект индивидуального жилого одноэтажного на 154,97 м 2
    Стоимость от:
    11 566 280
    Проект от: 69 300
    Этажей 1
    Санузлы 2
    Спальни 3
    Смотреть

    Как узнать стоимость дома

    back
    Оставляете заявку
    Вы заполняете форму на сайте или звоните нам. Менеджер Лайвкрафт связывается с вами для уточнения деталей: тип дома, площадь, материалы, участок строительства.
    back
    Консультация и подбор решения
    Наш специалист помогает выбрать оптимальный тип дома и конструкцию с учётом бюджета, сроков и целей — будь то дом для постоянного проживания или дача.
    back
    Расчёт предварительной стоимости
    Инженер делает первичный расчёт стоимости строительства по вашим параметрам: фундамент, коробка, кровля, отделка. Вы получаете смету с разбивкой по этапам.
    back
    Корректировка и утверждение сметы
    При необходимости вносим изменения — например, замену материалов или сокращение этапов. После согласования формируется окончательная фиксированная смета.
    back
    Заключение договора и старт работ
    После утверждения сметы заключаем официальный договор с гарантией. Вы получаете прозрачный график и точную стоимость — без скрытых расходов.

    Заказать конусльтацию по:Загородный дом «АЯН-2»

    Фото 1 Загородный дом «АЯН-2»


      Наши
      контакты

      Дмитров
      Опорный проезд 28Б
      (индустриальный парк Ниагара)
      9:00 до 18:00

      Корзина