4.9
Рейтинг на основании 120 отзывов
Дмитров
Опорный проезд 28Б
(индустриальный парк Ниагара)
Бренд "Дмитров-Дело" c 2008 года на рынке строительства в Дмитрове
Звоните 9:00 до 18:00 8 (915) 055-33-61
Бренд "Дмитров-Дело" c 2008 года на рынке строительства в Дмитрове

КД «Томск»

Стоимость проекта от:
59 400 ₽
БЕСПЛАТНО! ПРИ ЗАКАЗЕ СТРОИТЕЛЬСТВА
Стоимость строительства от:
7 900 200 ₽
Артикул ART-12946
Дата 25.12.2025
Архитектурный стиль Классический
Количество надземных этажей 2
Круглогодичное проживание Да
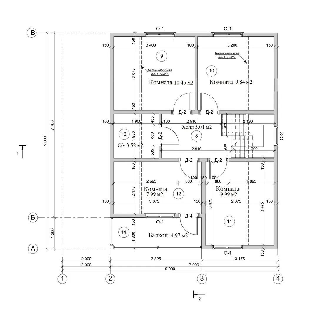
Площадь дома 132 м2
Санузлы 2
Спальни 5

Описание

В сердце живописного коттеджа «Томск» вы откроете уют, где каждая деталь наполняется теплом и современным комфортом. Двухэтажная застройка в классическом стиле соединяет традиционную элегантность с практичностью нового века: просторные окна, пропускающие мягкий свет, создают ощущение легкости и простора. Балкон, обрамленный стильными перилами, приглашает наслаждаться рассветом или вечерними огнями соседей, пока крытая автостоянка и гараж в данном проекте не предусмотрены, но уют внутри компенсирует отсутствие наружных конструкций. Фасад дома выполнен из прочного деревянного каркаса, который не только придает визуальную теплоту, но и обеспечивает высокую теплоизоляцию, позволяя проживать здесь круглый год без лишних расходов. Двускатная крыша добавляет шарма и защищает от непогоды, а терраса, открывающаяся на тёплую летнюю погоду, превращает ваш двор в маленький оазис. В этом доме вы почувствуете, как гармоничное сочетание классической формы и современных удобств превращает пространс в настоящий уголок счастья, где каждый день начинается с восхитительных видов и завершается уютом, наполненным семейным теплом.

Характеристики дома

Архитектурный стиль
Автоматизированное регулирование параметров теплоносителя
Нет
Балконы/лоджии
1
Чердачное помещение
Нет
Датчики протечки воды
Нет
Эксплуатируемая или зеленая кровля
Нет
Электроснабжение
Центральное
Газоснабжение
Индивидуальное
Изоляция воздушного шума
Да
Камин
Нет
Класс энергоэффективности
A+
Класс энергосбережения
A+
Количество надземных этажей
2
Круглогодичное проживание
Да
Материал кровли
Металлочерепица
Материал перекрытий
Деревянные
Материал внешних стен
Материал внутренних перегородок
Деревянные
Модульное строительство с конструкциями заводского изготовления
Нет
Объем надземной части
352 м3
Основной материал фасадов
Дерево
Отопление
Индивидуальное
Площадь дома
132 м2
Площадь застройки
81 м2
Подвальное помещение
Нет
Показатель компактности здания
1.08
Приборы учета тепловой энергии
Нет
Пристроенный гараж/крытая автостоянка
Нет
Противопожарная система
Нет
Санузлы
2
Совмещенная кухня-гостиная
Да
Спальни
5
Терраса
Да
Тип фундамента
Свайно-винтовой
Тип кровли
Толщина внешних стен
150 мм
Толщина внутренних перегородок
150 мм
Улучшенные шумовые характеристики
Да
Вентиляция
Естественная
Веранда
Нет
Водоотведение
Локальные очистные сооружения
Водоснабжение
Индивидуальное
Высота дома
7.69 м
Высота потолков
2.7 м

Планировка

Фасад дома

Александр

Закажите выезд инженера

Александр

Выездной инженер
Закажите выезд инженера для точной диагностики и профессиональной консультации по инженерным системам. Специалист приедет в удобное время, проведёт осмотр, рассчитает стоимость работ и подберёт оптимальные решения для вашего дома.


    Похожие проекты

    Ипотека и
    рассрочка
    Одноэтажный кирпичный дом COMFORT — 118 m2 (Декоративная штукатурка)
    Стоимость от:
    7 085 980
    Проект от: 40 050
    Этажей 1
    Санузлы 1
    Спальни 3
    Смотреть
    Ипотека и
    рассрочка
    Одноэтажный Дом (ТРИО) 12,9х14,1 141,9м2
    Стоимость от:
    11 215 820
    Проект от: 63 450
    Этажей 1
    Санузлы 1
    Спальни 3
    Смотреть
    Ипотека и
    рассрочка
    Дом из клееного бруса «Углич»
    Стоимость от:
    14 957 040
    Проект от: 103 950
    Этажей 2
    Санузлы 3
    Спальни 4
    Смотреть
    Ипотека и
    рассрочка
    Одноэтажный кирпичный дом ТП-119
    Стоимость от:
    8 565 480
    Проект от: 51 300
    Этажей 1
    Санузлы 2
    Спальни 3
    Смотреть
    Ипотека и
    рассрочка
    Авторский проект «Лелия 2.0»
    Стоимость от:
    6 564 960
    Проект от: 42 300
    Этажей 2
    Санузлы 2
    Спальни 2
    Смотреть
    Ипотека и
    рассрочка
    17АЗ11.00 IZHORA
    Стоимость от:
    6 344 100
    Проект от: 47 700
    Этажей 2
    Санузлы 2
    Спальни 4
    Смотреть

    Как узнать стоимость дома

    back
    Оставляете заявку
    Вы заполняете форму на сайте или звоните нам. Менеджер Лайвкрафт связывается с вами для уточнения деталей: тип дома, площадь, материалы, участок строительства.
    back
    Консультация и подбор решения
    Наш специалист помогает выбрать оптимальный тип дома и конструкцию с учётом бюджета, сроков и целей — будь то дом для постоянного проживания или дача.
    back
    Расчёт предварительной стоимости
    Инженер делает первичный расчёт стоимости строительства по вашим параметрам: фундамент, коробка, кровля, отделка. Вы получаете смету с разбивкой по этапам.
    back
    Корректировка и утверждение сметы
    При необходимости вносим изменения — например, замену материалов или сокращение этапов. После согласования формируется окончательная фиксированная смета.
    back
    Заключение договора и старт работ
    После утверждения сметы заключаем официальный договор с гарантией. Вы получаете прозрачный график и точную стоимость — без скрытых расходов.

    Заказать конусльтацию по:КД «Томск»

    Фото 1 КД «Томск»


      Наши
      контакты

      Дмитров
      Опорный проезд 28Б
      (индустриальный парк Ниагара)
      9:00 до 18:00

      Корзина