4.9
Рейтинг на основании 120 отзывов
Дмитров
Опорный проезд 28Б
(индустриальный парк Ниагара)
Бренд "Дмитров-Дело" c 2008 года на рынке строительства в Дмитрове
Звоните 9:00 до 18:00 8 (915) 055-33-61
Бренд "Дмитров-Дело" c 2008 года на рынке строительства в Дмитрове

Загородный дом Эльбрус

Стоимость проекта от:
89 100 ₽
БЕСПЛАТНО! ПРИ ЗАКАЗЕ СТРОИТЕЛЬСТВА
Стоимость строительства от:
13 828 320 ₽
Артикул ART-2340
Дата 26.12.2025
Архитектурный стиль Классический
Количество надземных этажей 2
Круглогодичное проживание Нет
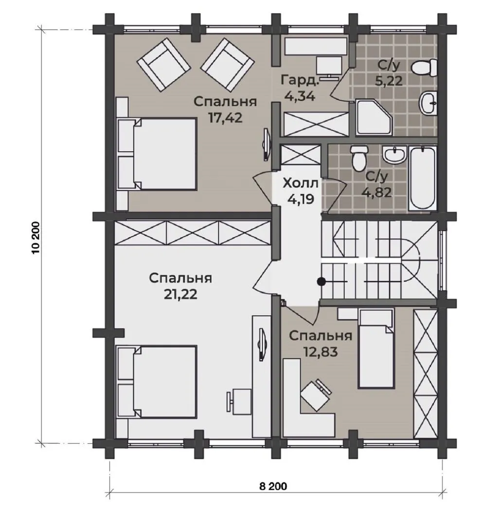
Площадь дома 198 м2
Санузлы 3
Спальни 4

Описание

Загородный дом «Эльбрус» – это умиротворённый уголок, где каждая деталь пронизана духом классической элегантности. Стены построены из клееного бруса, придающего теплоту и натуральную прочность, а двускатная крыша подчёркивает строгую простоту фасада. Внутреннее пространство разделено на два надземных этажа, где свет проникает сквозь большие окна, создавая ощущение простора и свободы. Дом не предназначен для круглогодичного проживания, но именно это делает его идеальным местом для уединённых летних выездов и семейных летних праздников – тихий оазис в окружении природы. «Эльбрус» предлагает уют и практичность. В комнатах преобладает светлый, деревяшковый интерьер, а безбалконное, безлоджиевое решение позволяет полностью погрузиться в атмосферу дома, не отвлекаясь на лишние детали. Важным акцентом является просторная веранда, где можно наслаждаться свежим воздухом, читать закатные истории и устраивать вечеринки с друзьями. Отсутствие прицепленного гаража и крытой автостоянки не влияет на его привлекательность – для него главное место под открытым небом, где можно оставить машину под естественным покровом деревьев. Такой дом создаст для вас атмосферу благополучия и уединения. Он не требует постоянного отъезда от привычного быта, но предлагает именно то, что нужно для восстановления душевной гармонии: свежий воздух, тишина, просторные окна, которые открывают вид на живописные окрестности. Если вы ищете место, где можно зарядиться новой энергией и восстановить себя, «Эльбрус» – ваш идеальный выбор.

Характеристики дома

Архитектурный стиль
Автоматизированное регулирование параметров теплоносителя
-
Балконы/лоджии
Отсутствуют
Чердачное помещение
Нет
Датчики протечки воды
-
Эксплуатируемая или зеленая кровля
-
Электроснабжение
Не предусмотрено
Газоснабжение
Не предусмотрено
Изоляция воздушного шума
-
Камин
Нет
Класс энергоэффективности
-
Класс энергосбережения
-
Количество надземных этажей
2
Круглогодичное проживание
Нет
Материал кровли
Металлочерепица
Материал перекрытий
Деревянные
Материал внешних стен
Материал внутренних перегородок
Деревянные
Модульное строительство с конструкциями заводского изготовления
Нет
Объем надземной части
721 м3
Основной материал фасадов
Дерево
Отопление
Не предусмотрено
Площадь дома
198 м2
Площадь застройки
96 м2
Подвальное помещение
Нет
Показатель компактности здания
-
Приборы учета тепловой энергии
-
Пристроенный гараж/крытая автостоянка
Нет
Противопожарная система
Нет
Санузлы
3
Совмещенная кухня-гостиная
Да
Спальни
4
Терраса
Нет
Тип фундамента
Плитный
Тип кровли
Толщина внешних стен
200 мм
Толщина внутренних перегородок
160 мм
Улучшенные шумовые характеристики
-
Вентиляция
Естественная
Веранда
Да
Водоотведение
Не предусмотрено
Водоснабжение
Не предусмотрено
Высота дома
6 м
Высота потолков
2 м

Планировка

Фасад дома

Александр

Закажите выезд инженера

Александр

Выездной инженер
Закажите выезд инженера для точной диагностики и профессиональной консультации по инженерным системам. Специалист приедет в удобное время, проведёт осмотр, рассчитает стоимость работ и подберёт оптимальные решения для вашего дома.


    Похожие проекты

    Ипотека и
    рассрочка
    D198-1
    Стоимость от:
    8 360 880
    Проект от: 55 800
    Этажей 1
    Санузлы 2
    Спальни 3
    Смотреть
    Ипотека и
    рассрочка
    Модульный дом FL 103 (МИ103)
    Стоимость от:
    6 803 940
    Проект от: 54 900
    Этажей 1
    Санузлы 1
    Спальни 4
    Смотреть
    Ипотека и
    рассрочка
    МИКЕЯ 5 одноэтажный дом со вторым светом
    Стоимость от:
    11 357 720
    Проект от: 74 700
    Этажей 1
    Санузлы 2
    Спальни 3
    Смотреть
    Ипотека и
    рассрочка
    Двухэтажный дом
    Стоимость от:
    7 238 400
    Проект от: 45 000
    Этажей 2
    Санузлы 1
    Спальни 3
    Смотреть
    Ипотека и
    рассрочка
    Двухэтажный дом СТАНДАРТ 135
    Стоимость от:
    7 641 600
    Проект от: 51 750
    Этажей 2
    Санузлы 2
    Спальни 3
    Смотреть
    Ипотека и
    рассрочка
    Каркасный дом К-131
    Стоимость от:
    8 869 410
    Проект от: 68 850
    Этажей 1
    Санузлы 2
    Спальни 3
    Смотреть

    Как узнать стоимость дома

    back
    Оставляете заявку
    Вы заполняете форму на сайте или звоните нам. Менеджер Лайвкрафт связывается с вами для уточнения деталей: тип дома, площадь, материалы, участок строительства.
    back
    Консультация и подбор решения
    Наш специалист помогает выбрать оптимальный тип дома и конструкцию с учётом бюджета, сроков и целей — будь то дом для постоянного проживания или дача.
    back
    Расчёт предварительной стоимости
    Инженер делает первичный расчёт стоимости строительства по вашим параметрам: фундамент, коробка, кровля, отделка. Вы получаете смету с разбивкой по этапам.
    back
    Корректировка и утверждение сметы
    При необходимости вносим изменения — например, замену материалов или сокращение этапов. После согласования формируется окончательная фиксированная смета.
    back
    Заключение договора и старт работ
    После утверждения сметы заключаем официальный договор с гарантией. Вы получаете прозрачный график и точную стоимость — без скрытых расходов.

    Заказать конусльтацию по:Загородный дом Эльбрус

    Фото 1 Загородный дом Эльбрус


      Наши
      контакты

      Дмитров
      Опорный проезд 28Б
      (индустриальный парк Ниагара)
      9:00 до 18:00

      Корзина