4.9
Рейтинг на основании 120 отзывов
Дмитров
Опорный проезд 28Б
(индустриальный парк Ниагара)
Бренд "Дмитров-Дело" c 2008 года на рынке строительства в Дмитрове
Звоните 9:00 до 18:00 8 (915) 055-33-61
Бренд "Дмитров-Дело" c 2008 года на рынке строительства в Дмитрове

Ното

Стоимость проекта от:
84 600 ₽
БЕСПЛАТНО! ПРИ ЗАКАЗЕ СТРОИТЕЛЬСТВА
Стоимость строительства от:
11 518 760 ₽
Артикул ART-12811
Дата 25.12.2025
Архитектурный стиль Хайтек
Количество надземных этажей 1
Круглогодичное проживание Да
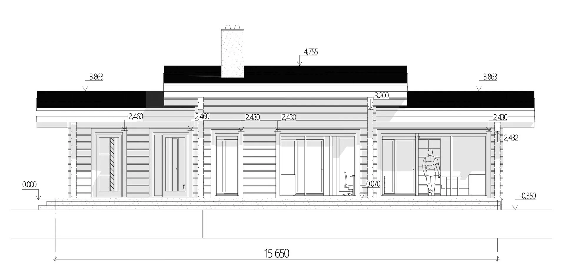
Площадь дома 188 м2
Санузлы 2
Спальни 3

Описание

Представляем вашему вниманию современное решение для тех, кто ценит комфорт, стиль и простоту строительства. Это уникальное одноэтажное жилище в высокотехнологичном стиле, которое создано для круглогодичного проживания. Задавая тон своему интерьеру, дом сочетает в себе чистые линии и прогрессивные решения, позволяя вам наслаждаться уютом как в тёплые летние дни, так и в прохладную зиму, не сталкиваясь с лишней обременительностью. Внешний облик дома подчёркнут массивными клейоновыми брусьями, придающими ему естественную теплоту и долговечность, а односкатная кровля гармонирует с общей концепцией простоты и функциональности. Внутреннее пространство открыто и светло, а наличие террасы, выходящей на свежем воздухе, расширяет зоны отдыха и позволяет вам проводить время на свежем воздухе, наслаждаясь уединением и красотой окружающей природы. Отсутствие балконов и веранд не меняет ощущения свободы: просторную террасу удобно использовать как для завтраков на закате, так и для семейных встреч под открытым небом. Если вы ищете дом, где технологии встречаются с природой, где каждый элемент продуман до мелочей, а безупречный дизайн создаёт атмосферу благополучия – этот дом станет вашим идеальным выбором. Не упустите шанс стать владельцем этого уютного уголка, где каждый день будет наполнен комфортом и вдохновением. Переходите в мир современных решений и позвольте себе начать новую страницу в этой привлекательной, стильной и функциональной квартире на одной площадке.

Характеристики дома

Архитектурный стиль
Автоматизированное регулирование параметров теплоносителя
Нет
Балконы/лоджии
Отсутствуют
Чердачное помещение
Нет
Датчики протечки воды
Нет
Эксплуатируемая или зеленая кровля
Нет
Электроснабжение
Не предусмотрено
Газоснабжение
Не предусмотрено
Изоляция воздушного шума
Нет
Камин
Нет
Класс энергоэффективности
-
Класс энергосбережения
-
Количество надземных этажей
1
Круглогодичное проживание
Да
Материал кровли
ПВХ мембраны
Материал перекрытий
Деревянные
Материал внешних стен
Материал внутренних перегородок
Гипсокартонные
Модульное строительство с конструкциями заводского изготовления
Нет
Объем надземной части
800 м3
Основной материал фасадов
Дерево
Отопление
Не предусмотрено
Площадь дома
188 м2
Площадь застройки
260 м2
Подвальное помещение
Нет
Показатель компактности здания
-
Приборы учета тепловой энергии
Нет
Пристроенный гараж/крытая автостоянка
Нет
Противопожарная система
Нет
Санузлы
2
Совмещенная кухня-гостиная
Да
Спальни
3
Терраса
Да
Тип фундамента
Свайный
Тип кровли
Толщина внешних стен
200 мм
Толщина внутренних перегородок
150 мм
Улучшенные шумовые характеристики
Нет
Вентиляция
Естественная
Веранда
Нет
Водоотведение
Не предусмотрено
Водоснабжение
Не предусмотрено
Высота дома
4.75 м
Высота потолков
4 м

Планировка

Фасад дома

Александр

Закажите выезд инженера

Александр

Выездной инженер
Закажите выезд инженера для точной диагностики и профессиональной консультации по инженерным системам. Специалист приедет в удобное время, проведёт осмотр, рассчитает стоимость работ и подберёт оптимальные решения для вашего дома.


    Похожие проекты

    Ипотека и
    рассрочка
    Проект Мечта
    Стоимость от:
    12 372 800
    Проект от: 72 000
    Этажей 1
    Санузлы 2
    Спальни 3
    Смотреть
    Ипотека и
    рассрочка
    Одноэтажный жилой дом ЭС-122
    Стоимость от:
    9 706 840
    Проект от: 54 900
    Этажей 1
    Санузлы 2
    Спальни 3
    Смотреть
    Ипотека и
    рассрочка
    Дорби
    Стоимость от:
    3 362 260
    Проект от: 26 100
    Этажей 1
    Санузлы 2
    Спальни 2
    Смотреть
    Ипотека и
    рассрочка
    BARN49 с боковым входом
    Стоимость от:
    3 011 580
    Проект от: 24 300
    Этажей 1
    Санузлы 1
    Спальни 1
    Смотреть
    Ипотека и
    рассрочка
    Брусовой дом 70
    Стоимость от:
    5 423 000
    Проект от: 31 500
    Этажей 1
    Санузлы 1
    Спальни 3
    Смотреть
    Ипотека и
    рассрочка
    Новиг
    Стоимость от:
    9 165 640
    Проект от: 54 900
    Этажей 1
    Санузлы 2
    Спальни 3
    Смотреть

    Как узнать стоимость дома

    back
    Оставляете заявку
    Вы заполняете форму на сайте или звоните нам. Менеджер Лайвкрафт связывается с вами для уточнения деталей: тип дома, площадь, материалы, участок строительства.
    back
    Консультация и подбор решения
    Наш специалист помогает выбрать оптимальный тип дома и конструкцию с учётом бюджета, сроков и целей — будь то дом для постоянного проживания или дача.
    back
    Расчёт предварительной стоимости
    Инженер делает первичный расчёт стоимости строительства по вашим параметрам: фундамент, коробка, кровля, отделка. Вы получаете смету с разбивкой по этапам.
    back
    Корректировка и утверждение сметы
    При необходимости вносим изменения — например, замену материалов или сокращение этапов. После согласования формируется окончательная фиксированная смета.
    back
    Заключение договора и старт работ
    После утверждения сметы заключаем официальный договор с гарантией. Вы получаете прозрачный график и точную стоимость — без скрытых расходов.

    Заказать конусльтацию по:Ното

    Фото 1 Ното


      Наши
      контакты

      Дмитров
      Опорный проезд 28Б
      (индустриальный парк Ниагара)
      9:00 до 18:00

      Корзина