4.9
Рейтинг на основании 120 отзывов
Дмитров
Опорный проезд 28Б
(индустриальный парк Ниагара)
Бренд "Дмитров-Дело" c 2008 года на рынке строительства в Дмитрове
Звоните 9:00 до 18:00 8 (915) 055-33-61
Бренд "Дмитров-Дело" c 2008 года на рынке строительства в Дмитрове

Одноэтажный Барн Хаус Д64

Стоимость проекта от:
27 000 ₽
БЕСПЛАТНО! ПРИ ЗАКАЗЕ СТРОИТЕЛЬСТВА
Стоимость строительства от:
3 336 300 ₽
Артикул ART-10708
Дата 25.12.2025
Архитектурный стиль Барнхаус
Количество надземных этажей 1
Круглогодичное проживание Да
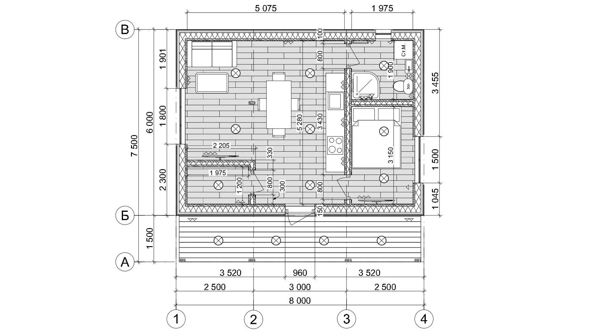
Площадь дома 60 м2
Санузлы 1
Спальни 1

Описание

Добро пожаловать в наш уникальный одноместный Барн Хаус D64 – настоящий уголок уюта и простора, который подарит вам ощущение домашнего тепла сколь угодно в течение года. Сочетая в себе рустикальный шарм старой фермы и современные простые линии, эта нежная деревянная резиденция излучает душевную теплоту и спокойствие. Пиксельный двускатный кран, выполненный из плотных материалов, защищает от всех погодных условий, а просторный деревянный каркас, обрамленный теплыми оттенками, создаёт ощущение природного баланса. Внутри вы найдёте просторную гостиную с открытой керамической печью, где можно разложиться по ночам и провести вечер в живом диалоге с семьёй. Просторные коридоры и изящные двери ведут к светлым спальням, в которых каждый элемент – от окон до подоконников – рассчитан на гармонию с окружающей природой. Задний двор, озаренный солнцем, готов к жарким летним вечерам, а уютная терраса приглашает к романтическим прогулкам, где можно почувствовать свежий аромат живой зелени и кристально чистый вечерний воздух. Барн Хаус D64 – это не просто дом, а стиль жизни, где каждый день начинается и заканчивается в компании природы и воссоздаётся гармония простого и красивого. Приглашаем вас окунуться в атмосферу тёплой, открытой и уютной семьи, которую легко строить и развивать в вашем собственном уголке.

Характеристики дома

Архитектурный стиль
Автоматизированное регулирование параметров теплоносителя
-
Балконы/лоджии
Отсутствуют
Чердачное помещение
Нет
Датчики протечки воды
-
Эксплуатируемая или зеленая кровля
-
Электроснабжение
Не предусмотрено
Газоснабжение
Не предусмотрено
Изоляция воздушного шума
-
Камин
Нет
Класс энергоэффективности
-
Класс энергосбережения
-
Количество надземных этажей
1
Круглогодичное проживание
Да
Материал кровли
Металлические рулонные или листовые материалы
Материал перекрытий
Деревянные
Материал внешних стен
Материал внутренних перегородок
Деревянные
Модульное строительство с конструкциями заводского изготовления
Нет
Объем надземной части
205 м3
Основной материал фасадов
Сайдинг
Отопление
Индивидуальное
Площадь дома
60 м2
Площадь застройки
60 м2
Подвальное помещение
Нет
Показатель компактности здания
-
Приборы учета тепловой энергии
-
Пристроенный гараж/крытая автостоянка
Нет
Противопожарная система
Нет
Санузлы
1
Совмещенная кухня-гостиная
Да
Спальни
1
Терраса
Да
Тип фундамента
Свайно-винтовой
Тип кровли
Толщина внешних стен
365 мм
Толщина внутренних перегородок
230 мм
Улучшенные шумовые характеристики
-
Вентиляция
Принудительная
Веранда
Нет
Водоотведение
Не предусмотрено
Водоснабжение
Не предусмотрено
Высота дома
3.46 м
Высота потолков
2.78 м

Планировка

Фасад дома

Александр

Закажите выезд инженера

Александр

Выездной инженер
Закажите выезд инженера для точной диагностики и профессиональной консультации по инженерным системам. Специалист приедет в удобное время, проведёт осмотр, рассчитает стоимость работ и подберёт оптимальные решения для вашего дома.


    Похожие проекты

    Ипотека и
    рассрочка
    Коргиш
    Стоимость от:
    5 577 720
    Проект от: 41 850
    Этажей 2
    Санузлы 1
    Спальни 2
    Смотреть
    Ипотека и
    рассрочка
    Проект A023
    Стоимость от:
    4 064 280
    Проект от: 24 300
    Этажей 1
    Санузлы 1
    Спальни 2
    Смотреть
    Ипотека и
    рассрочка
    Проект загородного дома NHD-143
    Стоимость от:
    9 116 640
    Проект от: 56 700
    Этажей 2
    Санузлы 2
    Спальни 4
    Смотреть
    Ипотека и
    рассрочка
    Проект загородного дома NHD-116
    Стоимость от:
    8 827 680
    Проект от: 54 900
    Этажей 2
    Санузлы 2
    Спальни 3
    Смотреть
    Ипотека и
    рассрочка
    Одноэтажный дом «Дания» Комсомольский
    Стоимость от:
    9 150 900
    Проект от: 51 750
    Этажей 1
    Санузлы 2
    Спальни 3
    Смотреть
    Ипотека и
    рассрочка
    Загородный дом ВС-107
    Стоимость от:
    9 575 280
    Проект от: 61 650
    Этажей 2
    Санузлы 2
    Спальни 1
    Смотреть

    Как узнать стоимость дома

    back
    Оставляете заявку
    Вы заполняете форму на сайте или звоните нам. Менеджер Лайвкрафт связывается с вами для уточнения деталей: тип дома, площадь, материалы, участок строительства.
    back
    Консультация и подбор решения
    Наш специалист помогает выбрать оптимальный тип дома и конструкцию с учётом бюджета, сроков и целей — будь то дом для постоянного проживания или дача.
    back
    Расчёт предварительной стоимости
    Инженер делает первичный расчёт стоимости строительства по вашим параметрам: фундамент, коробка, кровля, отделка. Вы получаете смету с разбивкой по этапам.
    back
    Корректировка и утверждение сметы
    При необходимости вносим изменения — например, замену материалов или сокращение этапов. После согласования формируется окончательная фиксированная смета.
    back
    Заключение договора и старт работ
    После утверждения сметы заключаем официальный договор с гарантией. Вы получаете прозрачный график и точную стоимость — без скрытых расходов.

    Заказать конусльтацию по:Одноэтажный Барн Хаус Д64

    Фото 1 Одноэтажный Барн Хаус Д64


      Наши
      контакты

      Дмитров
      Опорный проезд 28Б
      (индустриальный парк Ниагара)
      9:00 до 18:00

      Корзина