4.9
Рейтинг на основании 120 отзывов
Дмитров
Опорный проезд 28Б
(индустриальный парк Ниагара)
Бренд "Дмитров-Дело" c 2008 года на рынке строительства в Дмитрове
Звоните 9:00 до 18:00 8 (915) 055-33-61
Бренд "Дмитров-Дело" c 2008 года на рынке строительства в Дмитрове

Одноэтажный дом 153,7 (162.1) м2 MATO

Стоимость проекта от:
72 900 ₽
БЕСПЛАТНО! ПРИ ЗАКАЗЕ СТРОИТЕЛЬСТВА
Стоимость строительства от:
12 527 240 ₽
Артикул ART-5547
Дата 26.12.2025
Архитектурный стиль Европейский
Количество надземных этажей 1
Круглогодичное проживание Да
Площадь дома 162 м2
Санузлы 3
Спальни 4

Описание

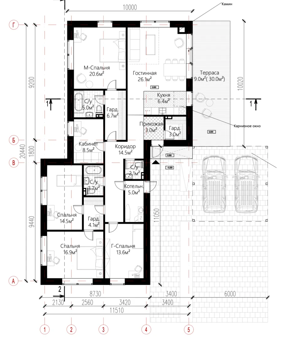
Наслаждайтесь уютом и практичностью в нашем полностью обустроенном одноквартирном доме площадью 153,7 м² (162,1 м² при учёте чердака). Плавно спроектирован для комфортного круглогодичного проживания, он воплощает европейскую элегантность, где каждая деталь от архитектурных линий до изысканного отделочного материала создает атмосферу домашнего тепла и стиля. Просторные комнаты открыты за стеклянными панелями, позволяющими наслаждаться естественным светом и видом на благоустроенный двор. Дом построен из керамического блока, который гарантирует долговечность, теплоизоляцию и легкость ухода. Двускатная крыша добавляет здания дополнительного очарования, а наличие чердачного помещения даёт свободу для хранения или разработки личного проекта. Приглашаем стать обладателем этого замечательного дома, который сочетает практичность, эстетику и заботу о комфорте вашего семейного быта.

Характеристики дома

Архитектурный стиль
Автоматизированное регулирование параметров теплоносителя
-
Балконы/лоджии
Отсутствуют
Чердачное помещение
Да
Датчики протечки воды
-
Эксплуатируемая или зеленая кровля
-
Электроснабжение
Центральное
Газоснабжение
2 варианта
Изоляция воздушного шума
-
Камин
Нет
Класс энергоэффективности
-
Класс энергосбережения
-
Количество надземных этажей
1
Круглогодичное проживание
Да
Материал кровли
Фальцевая кровля Кликфальц
Материал перекрытий
Деревянные
Материал внешних стен
Материал внутренних перегородок
Блочные
Модульное строительство с конструкциями заводского изготовления
Нет
Объем надземной части
960 м3
Основной материал фасадов
Штукатурка
Отопление
2 варианта
Площадь дома
162 м2
Площадь застройки
195 м2
Подвальное помещение
Нет
Показатель компактности здания
-
Приборы учета тепловой энергии
-
Пристроенный гараж/крытая автостоянка
Нет
Противопожарная система
Нет
Санузлы
3
Совмещенная кухня-гостиная
Да
Спальни
4
Терраса
Нет
Тип фундамента
Ленточный
Тип кровли
Толщина внешних стен
380 мм
Толщина внутренних перегородок
100 мм
Улучшенные шумовые характеристики
-
Вентиляция
Естественная
Веранда
Нет
Водоотведение
2 варианта
Водоснабжение
2 варианта
Высота дома
6.4 м
Высота потолков
2.8 м

Планировка

Фасад дома

Александр

Закажите выезд инженера

Александр

Выездной инженер
Закажите выезд инженера для точной диагностики и профессиональной консультации по инженерным системам. Специалист приедет в удобное время, проведёт осмотр, рассчитает стоимость работ и подберёт оптимальные решения для вашего дома.


    Похожие проекты

    Ипотека и
    рассрочка
    Дрим 150624
    Стоимость от:
    7 959 600
    Проект от: 45 000
    Этажей 1
    Санузлы 2
    Спальни 3
    Смотреть
    Ипотека и
    рассрочка
    S 1-52
    Стоимость от:
    3 839 220
    Проект от: 22 950
    Этажей 1
    Санузлы 1
    Спальни 2
    Смотреть
    Ипотека и
    рассрочка
    Загородный дом Геацинт
    Стоимость от:
    9 039 360
    Проект от: 57 600
    Этажей 1
    Санузлы 2
    Спальни 3
    Смотреть
    Ипотека и
    рассрочка
    CraftDom 90+
    Стоимость от:
    5 818 500
    Проект от: 40 500
    Этажей 2
    Санузлы 1
    Спальни 4
    Смотреть
    Ипотека и
    рассрочка
    S146.2
    Стоимость от:
    10 196 640
    Проект от: 65 700
    Этажей 2
    Санузлы 2
    Спальни 5
    Смотреть
    Ипотека и
    рассрочка
    ЭЛЕГАНТ ПРАВЫЙ
    Стоимость от:
    10 468 800
    Проект от: 63 000
    Этажей 2
    Санузлы 2
    Спальни 4
    Смотреть

    Как узнать стоимость дома

    back
    Оставляете заявку
    Вы заполняете форму на сайте или звоните нам. Менеджер Лайвкрафт связывается с вами для уточнения деталей: тип дома, площадь, материалы, участок строительства.
    back
    Консультация и подбор решения
    Наш специалист помогает выбрать оптимальный тип дома и конструкцию с учётом бюджета, сроков и целей — будь то дом для постоянного проживания или дача.
    back
    Расчёт предварительной стоимости
    Инженер делает первичный расчёт стоимости строительства по вашим параметрам: фундамент, коробка, кровля, отделка. Вы получаете смету с разбивкой по этапам.
    back
    Корректировка и утверждение сметы
    При необходимости вносим изменения — например, замену материалов или сокращение этапов. После согласования формируется окончательная фиксированная смета.
    back
    Заключение договора и старт работ
    После утверждения сметы заключаем официальный договор с гарантией. Вы получаете прозрачный график и точную стоимость — без скрытых расходов.

    Заказать конусльтацию по:Одноэтажный дом 153,7 (162.1) м2 MATO

    Фото 1 Одноэтажный дом 153,7 (162.1) м2 MATO


      Наши
      контакты

      Дмитров
      Опорный проезд 28Б
      (индустриальный парк Ниагара)
      9:00 до 18:00

      Корзина