4.9
Рейтинг на основании 120 отзывов
Дмитров
Опорный проезд 28Б
(индустриальный парк Ниагара)
Бренд "Дмитров-Дело" c 2008 года на рынке строительства в Дмитрове
Звоните 9:00 до 18:00 8 (915) 055-33-61
Бренд "Дмитров-Дело" c 2008 года на рынке строительства в Дмитрове

Одноэтажный дом «Актау 2.0»

Стоимость проекта от:
34 650 ₽
Стоимость строительства от:
5 268 340 ₽
Артикул ART-10110
Дата 25.12.2025
Архитектурный стиль Минимализм
Количество надземных этажей 1
Круглогодичное проживание Да
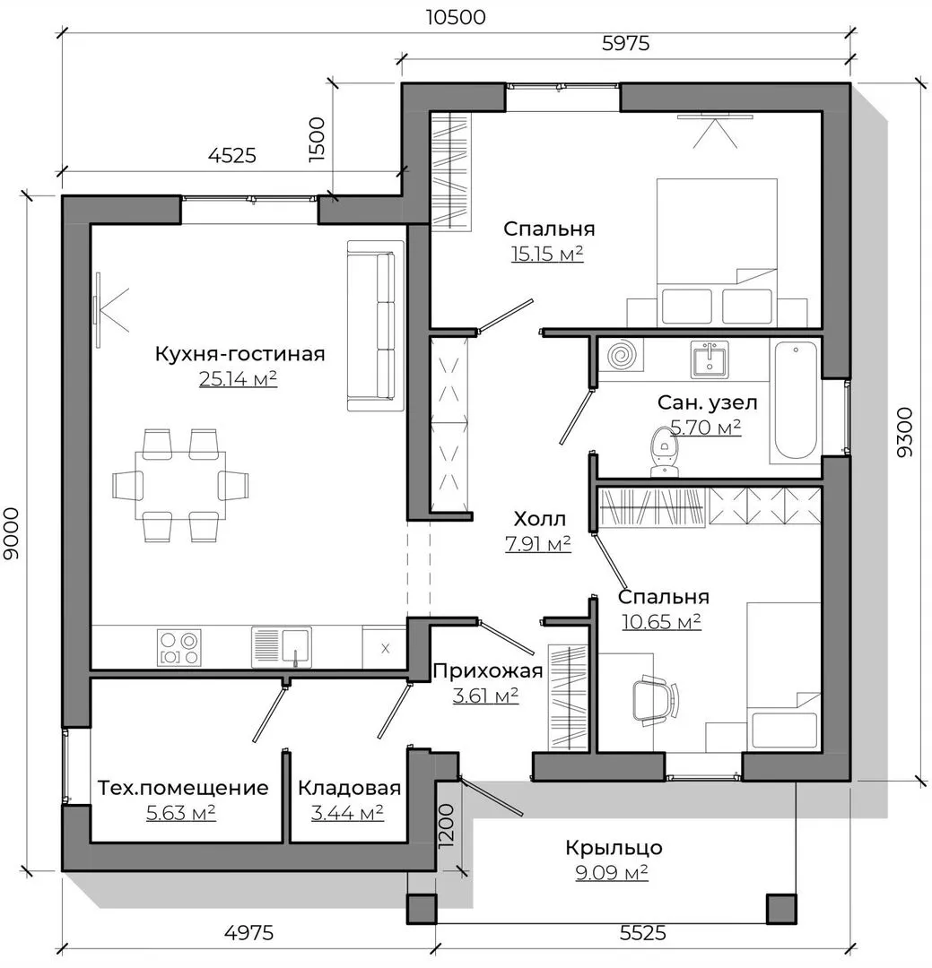
Площадь дома 77 м2
Санузлы 1
Спальни 2

Описание

**Дом «Актау 2.0» – это воплощение современного комфорта на одной планке.** Одноэтажная постройка, скроющая в себе идеальный баланс простоты и практичности, рассчитана на круглогодичную жизнь. Минималистичный архитектурный стиль придаёт дому чистые линии и открытые пространства, которые легко адаптировать под любые потребности: от уютной семейной зоны до рабочего офиса прямо у вас дома. Внутреннее пространство обрамлено прозрачными стенами, что создаёт ощущение легкости и благородства, а качественные газобетонные блоки обеспечивают отличную тепло‑изоляцию и долгий срок службы. **Уют и функциональность без лишних лишних.** «Актау 2.0» не требует дополнительных элементов – не надо балконов, лоджий, веранд, прицепленного гаража или чердак‑помещения. Всё, что действительно важно, собрано в одном компактном доме: просторный внутренний двор, плавная плоская крыша и аккуратные, современные фасады. Благоустройство простое и экономичное, а отсутствие лишних конструкций упрощает обслуживание и снижает затраты. **Подарите себе уверенность в будущем.** Выбирая «Актау 2.0», вы получаете уверенность в качестве: газобетонные блоки гарантируют долгую службу без протечек, а плоская крыша предоставляет дополнительное пространство, которое можно использовать по своему усмотрению – для теплицы, кладовки или личного гаража. Это дом, где каждый квадратный метр прожит в гармонии с природой и вашим комфортом. Откройте для себя простой стиль, который делает жизнь ярче и легче.

Характеристики дома

Архитектурный стиль
Минимализм
Автоматизированное регулирование параметров теплоносителя
Нет
Балконы/лоджии
Отсутствуют
Чердачное помещение
Нет
Датчики протечки воды
Нет
Эксплуатируемая или зеленая кровля
Нет
Электроснабжение
Индивидуальное
Газоснабжение
Индивидуальное
Изоляция воздушного шума
Нет
Камин
Нет
Класс энергоэффективности
-
Класс энергосбережения
-
Количество надземных этажей
1
Круглогодичное проживание
Да
Материал кровли
Битумно-полимерная или Битумно-резиновая мастика
Материал перекрытий
Деревянные
Материал внешних стен
Газобетонные блоки
Материал внутренних перегородок
Блочные
Модульное строительство с конструкциями заводского изготовления
Нет
Объем надземной части
-
Основной материал фасадов
Штукатурка
Отопление
Индивидуальное
Площадь дома
77 м2
Площадь застройки
102 м2
Подвальное помещение
Нет
Показатель компактности здания
-
Приборы учета тепловой энергии
Нет
Пристроенный гараж/крытая автостоянка
Нет
Противопожарная система
Нет
Санузлы
1
Совмещенная кухня-гостиная
Да
Спальни
2
Терраса
Нет
Тип фундамента
Плитный
Тип кровли
Плоская
Толщина внешних стен
375 мм
Толщина внутренних перегородок
100 мм
Улучшенные шумовые характеристики
Нет
Вентиляция
Естественная
Веранда
Нет
Водоотведение
Локальные очистные сооружения
Водоснабжение
Индивидуальное
Высота дома
3.6 м
Высота потолков
3 м

Планировка

Фасад дома

Александр

Закажите выезд инженера

Александр

Выездной инженер
Закажите выезд инженера для точной диагностики и профессиональной консультации по инженерным системам. Специалист приедет в удобное время, проведёт осмотр, рассчитает стоимость работ и подберёт оптимальные решения для вашего дома.


    Похожие проекты

    Ипотека и
    рассрочка
    Одноэтажный просторный Барн хаус с 4 спальнями Г-117
    Стоимость от:
    7 842 560
    Проект от: 57 600
    Этажей 1
    Санузлы 2
    Спальни 4
    Смотреть
    Ипотека и
    рассрочка
    Дом «Находка»
    Стоимость от:
    4 218 995
    Проект от: 35 550
    Этажей 1
    Санузлы 1
    Спальни 2
    Смотреть
    Ипотека и
    рассрочка
    Одноэтажный дом Монтерей 120
    Стоимость от:
    8 210 400
    Проект от: 54 000
    Этажей 1
    Санузлы 2
    Спальни 2
    Смотреть
    Ипотека и
    рассрочка
    «Загородный дом Виталий»
    Стоимость от:
    13 534 080
    Проект от: 95 400
    Этажей 2
    Санузлы 2
    Спальни 2
    Смотреть
    Ипотека и
    рассрочка
    Двухэтажный коттедж С131-2
    Стоимость от:
    13 305 120
    Проект от: 80 100
    Этажей 2
    Санузлы 2
    Спальни 5
    Смотреть
    Ипотека и
    рассрочка
    Кедр R108
    Стоимость от:
    4 869 960
    Проект от: 37 350
    Этажей 2
    Санузлы 1
    Спальни 3
    Смотреть

    Как узнать стоимость дома

    back
    Оставляете заявку
    Вы заполняете форму на сайте или звоните нам. Менеджер Лайвкрафт связывается с вами для уточнения деталей: тип дома, площадь, материалы, участок строительства.
    back
    Консультация и подбор решения
    Наш специалист помогает выбрать оптимальный тип дома и конструкцию с учётом бюджета, сроков и целей — будь то дом для постоянного проживания или дача.
    back
    Расчёт предварительной стоимости
    Инженер делает первичный расчёт стоимости строительства по вашим параметрам: фундамент, коробка, кровля, отделка. Вы получаете смету с разбивкой по этапам.
    back
    Корректировка и утверждение сметы
    При необходимости вносим изменения — например, замену материалов или сокращение этапов. После согласования формируется окончательная фиксированная смета.
    back
    Заключение договора и старт работ
    После утверждения сметы заключаем официальный договор с гарантией. Вы получаете прозрачный график и точную стоимость — без скрытых расходов.

    Заказать конусльтацию по:Одноэтажный дом «Актау 2.0»

    Фото 1 Одноэтажный дом «Актау 2.0»


      Наши
      контакты

      Дмитров
      Опорный проезд 28Б
      (индустриальный парк Ниагара)
      9:00 до 18:00

      Корзина