4.9
Рейтинг на основании 120 отзывов
Дмитров
Опорный проезд 28Б
(индустриальный парк Ниагара)
Бренд "Дмитров-Дело" c 2008 года на рынке строительства в Дмитрове
Звоните 9:00 до 18:00 8 (915) 055-33-61
Бренд "Дмитров-Дело" c 2008 года на рынке строительства в Дмитрове

Одноэтажный дом «Анапский»

Стоимость проекта от:
24 300 ₽
БЕСПЛАТНО! ПРИ ЗАКАЗЕ СТРОИТЕЛЬСТВА
Стоимость строительства от:
4 064 280 ₽
Артикул ART-16263
Дата 26.12.2025
Архитектурный стиль Европейский
Количество надземных этажей 1
Круглогодичное проживание Да
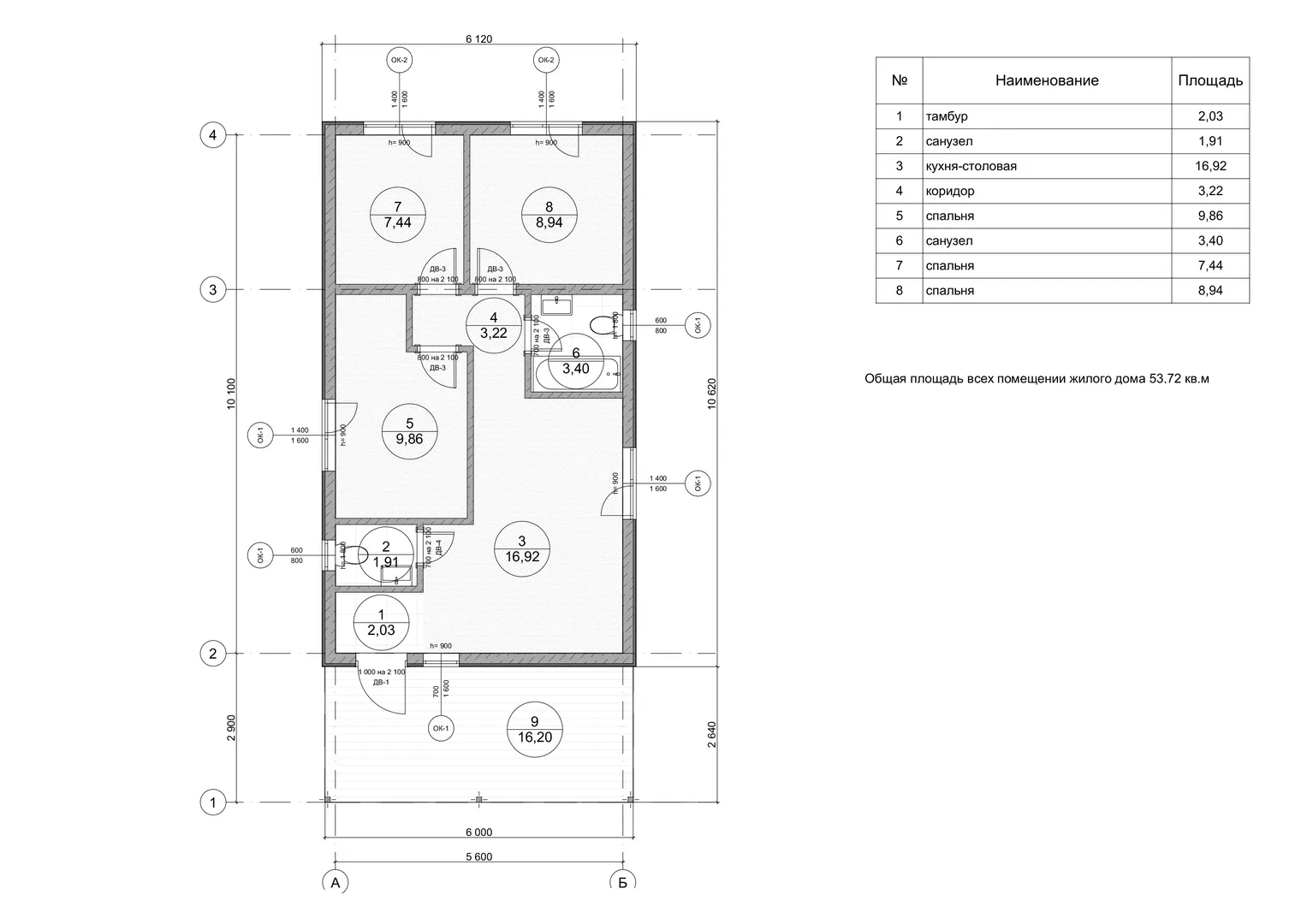
Площадь дома 54 м2
Санузлы 2
Спальни 3

Описание

Одноэтажный дом «Анапский» – это воплощение простоты и комфорта в европейском стиле. Он спроектирован так, чтобы жильё оставалось уютным и теплом в любое время года: от морозных зимних кристаллов до жарких летних вечеров. Внутри царит гармония светлых оттенков и строгих линий, создающих ощущение пространства и лёгкости. Окна открывают вид на зеленую застройку, а простые, но элегантные формы придают фасаду современный, но при этом уютный вид. Фасад выполнен из керамзитобетонных блоков, что обеспечивает отличную тепло- и звукоизоляцию, а также долговечность при минимальном обслуживании. Четырехскатная (вальмовая) крыша подчёркивает классический европейский ансамбль и защищает от непогоды с надёжной защитой дождей и ветров. Внутри ждёт просторная веранда-терраса, где можно наслаждаться закатами и свежим воздухом, не выходя за пределы дома. Такой дом идеален для тех, кто ищет гармонию с природой и комфорт без лишних хлопот.

Характеристики дома

Архитектурный стиль
Автоматизированное регулирование параметров теплоносителя
Нет
Балконы/лоджии
Отсутствуют
Чердачное помещение
Нет
Датчики протечки воды
Нет
Эксплуатируемая или зеленая кровля
Нет
Электроснабжение
Центральное
Газоснабжение
Не предусмотрено
Изоляция воздушного шума
Нет
Камин
Нет
Класс энергоэффективности
-
Класс энергосбережения
-
Количество надземных этажей
1
Круглогодичное проживание
Да
Материал кровли
Металлочерепица
Материал перекрытий
Деревянные
Материал внешних стен
Материал внутренних перегородок
Блочные
Модульное строительство с конструкциями заводского изготовления
Нет
Объем надземной части
-
Основной материал фасадов
Штукатурка
Отопление
Индивидуальное
Площадь дома
54 м2
Площадь застройки
81 м2
Подвальное помещение
Нет
Показатель компактности здания
-
Приборы учета тепловой энергии
Нет
Пристроенный гараж/крытая автостоянка
Нет
Противопожарная система
Нет
Санузлы
2
Совмещенная кухня-гостиная
Да
Спальни
3
Терраса
Да
Тип фундамента
Свайно-ростверковый
Толщина внешних стен
200 мм
Толщина внутренних перегородок
120 мм
Улучшенные шумовые характеристики
Нет
Вентиляция
2 варианта
Веранда
Нет
Водоотведение
Локальные очистные сооружения
Водоснабжение
Индивидуальное
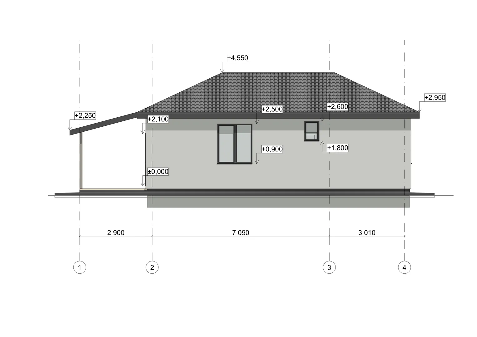
Высота дома
6 м
Высота потолков
3 м

Планировка

Фасад дома

Александр

Закажите выезд инженера

Александр

Выездной инженер
Закажите выезд инженера для точной диагностики и профессиональной консультации по инженерным системам. Специалист приедет в удобное время, проведёт осмотр, рассчитает стоимость работ и подберёт оптимальные решения для вашего дома.


    Похожие проекты

    Ипотека и
    рассрочка
    Двухэтажный дом с навесом для автомобиля Б019
    Стоимость от:
    12 558 720
    Проект от: 75 600
    Этажей 2
    Санузлы 3
    Спальни 4
    Смотреть
    Ипотека и
    рассрочка
    «Одноэтажный дом «Осло-95»
    Стоимость от:
    7 562 500
    Проект от: 42 750
    Этажей 1
    Санузлы 2
    Спальни 3
    Смотреть
    Ипотека и
    рассрочка
    СЕРИЯ «ХАЙ-ТЕК» ПРОЕКТ КД-22
    Стоимость от:
    6 480 760
    Проект от: 46 350
    Этажей 1
    Санузлы 1
    Спальни 2
    Смотреть
    Ипотека и
    рассрочка
    Классический дом ДК 195
    Стоимость от:
    15 154 320
    Проект от: 95 850
    Этажей 2
    Санузлы 3
    Спальни 4
    Смотреть
    Ипотека и
    рассрочка
    ИСТРА D 161
    Стоимость от:
    9 236 700
    Проект от: 60 750
    Этажей 1
    Санузлы 2
    Спальни 3
    Смотреть
    Ипотека и
    рассрочка
    Аристократ 187
    Стоимость от:
    12 787 920
    Проект от: 82 350
    Этажей 2
    Санузлы 2
    Спальни 4
    Смотреть

    Как узнать стоимость дома

    back
    Оставляете заявку
    Вы заполняете форму на сайте или звоните нам. Менеджер Лайвкрафт связывается с вами для уточнения деталей: тип дома, площадь, материалы, участок строительства.
    back
    Консультация и подбор решения
    Наш специалист помогает выбрать оптимальный тип дома и конструкцию с учётом бюджета, сроков и целей — будь то дом для постоянного проживания или дача.
    back
    Расчёт предварительной стоимости
    Инженер делает первичный расчёт стоимости строительства по вашим параметрам: фундамент, коробка, кровля, отделка. Вы получаете смету с разбивкой по этапам.
    back
    Корректировка и утверждение сметы
    При необходимости вносим изменения — например, замену материалов или сокращение этапов. После согласования формируется окончательная фиксированная смета.
    back
    Заключение договора и старт работ
    После утверждения сметы заключаем официальный договор с гарантией. Вы получаете прозрачный график и точную стоимость — без скрытых расходов.

    Заказать конусльтацию по:Одноэтажный дом «Анапский»

    Фото 1 Одноэтажный дом «Анапский»


      Наши
      контакты

      Дмитров
      Опорный проезд 28Б
      (индустриальный парк Ниагара)
      9:00 до 18:00

      Корзина