4.9
Рейтинг на основании 120 отзывов
Дмитров
Опорный проезд 28Б
(индустриальный парк Ниагара)
Бренд "Дмитров-Дело" c 2008 года на рынке строительства в Дмитрове
Звоните 9:00 до 18:00 8 (915) 055-33-61
Бренд "Дмитров-Дело" c 2008 года на рынке строительства в Дмитрове

Одноэтажный дом АС-84/ОД-183,92/24

Стоимость проекта от:
90 900 ₽
Стоимость строительства от:
14 722 840 ₽
Артикул ART-12320
Дата 25.12.2025
Архитектурный стиль Классический
Количество надземных этажей 1
Круглогодичное проживание Да
Площадь дома 202 м2
Санузлы 2
Спальни 3

Описание

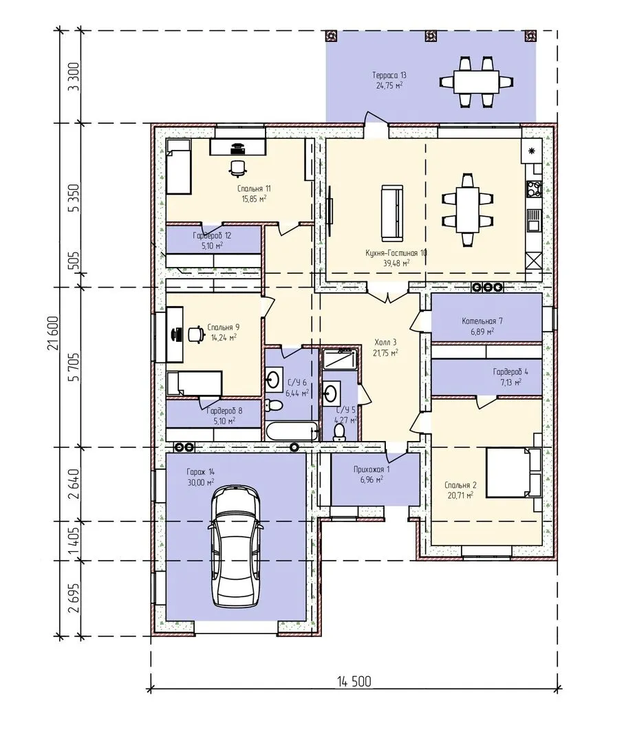
Одноэтажный дом‑производство АС‑84/ОД‑183,92/24 сочетает в себе элегантность классического стиля и простоту использования, что делает его идеальным выбором для современных семей, ищущих уют и практичность. Стены, выполненные из газобетонных блоков, не только придают дому изысканный внешний вид, но и обеспечивают отличную тепло‑ и звукоизоляцию, даря вам тихий и тёплый дом круглый год. Четырёхскатная (вальмовая) крыша придаёт конструкции характерную силуэтную линию, а просторный чердачный корпус предоставляет дополнительные варианты использования: из него можно организовать гостиную, детскую комнату, офис или домашний зал для творческих занятий. Комфорт дома усиливает тщательно продуманный план: прицепный гараж с крытой автостоянкой избавляет от хлопот с парковкой и сохраняет автомобиль в безопасности, а просторная терраса превращает ваш задний двор в место для семейных посиделок и уютных летних барбекю. Внутри вас ждёт светлое и гармоничное пространство с высоким потолком, которое прекрасно вписывается в концепцию круглогодичного проживания. Каждый уголок дома продуман так, чтобы подчеркнуть благородство классического дизайна, сохраняя при этом простоту и функциональность, которая будет радовать вас и ваших близких каждый день.

Характеристики дома

Архитектурный стиль
Классический
Автоматизированное регулирование параметров теплоносителя
Нет
Балконы/лоджии
Отсутствуют
Чердачное помещение
Да
Датчики протечки воды
Нет
Эксплуатируемая или зеленая кровля
Нет
Электроснабжение
Центральное
Газоснабжение
Центральное
Изоляция воздушного шума
Нет
Камин
Нет
Класс энергоэффективности
-
Класс энергосбережения
-
Количество надземных этажей
1
Круглогодичное проживание
Да
Материал кровли
Битумная черепица
Материал перекрытий
Иной вид материалов перекрытий
Материал внешних стен
Газобетонные блоки
Материал внутренних перегородок
Кирпичные
Модульное строительство с конструкциями заводского изготовления
Нет
Объем надземной части
-
Основной материал фасадов
Облицовочный кирпич
Отопление
Индивидуальное
Площадь дома
202 м2
Площадь застройки
313 м2
Подвальное помещение
Нет
Показатель компактности здания
-
Приборы учета тепловой энергии
Нет
Пристроенный гараж/крытая автостоянка
Да
Противопожарная система
Нет
Санузлы
2
Совмещенная кухня-гостиная
Да
Спальни
3
Терраса
Да
Тип фундамента
Свайно-ростверковый
Тип кровли
Четырехскатная (вальмовая)
Толщина внешних стен
400 мм
Толщина внутренних перегородок
120 мм
Улучшенные шумовые характеристики
Нет
Вентиляция
Естественная
Веранда
Нет
Водоотведение
Локальные очистные сооружения
Водоснабжение
Индивидуальное
Высота дома
6.67 м
Высота потолков
3.2 м

Планировка

Фасад дома

Александр

Закажите выезд инженера

Александр

Выездной инженер
Закажите выезд инженера для точной диагностики и профессиональной консультации по инженерным системам. Специалист приедет в удобное время, проведёт осмотр, рассчитает стоимость работ и подберёт оптимальные решения для вашего дома.


    Похожие проекты

    Ипотека и
    рассрочка
    Дом White Box из Сибита G-BOX 93
    Стоимость от:
    7 353 500
    Проект от: 42 750
    Этажей 1
    Санузлы 2
    Спальни 3
    Смотреть
    Ипотека и
    рассрочка
    Двухэтажный деревянный дом «Углич»
    Стоимость от:
    16 685 520
    Проект от: 109 350
    Этажей 2
    Санузлы 1
    Спальни 3
    Смотреть
    Ипотека и
    рассрочка
    SV-107Б
    Стоимость от:
    9 840 820
    Проект от: 58 950
    Этажей 1
    Санузлы 2
    Спальни 3
    Смотреть
    Ипотека и
    рассрочка
    Дом 1 облицовка кирпич
    Стоимость от:
    6 840 020
    Проект от: 40 950
    Этажей 1
    Санузлы 1
    Спальни 3
    Смотреть
    Ипотека и
    рассрочка
    П1-72-СП3
    Стоимость от:
    5 014 020
    Проект от: 31 950
    Этажей 1
    Санузлы 1
    Спальни 3
    Смотреть
    Ипотека и
    рассрочка
    Маленькая Ряба
    Стоимость от:
    3 813 480
    Проект от: 24 300
    Этажей 1
    Санузлы 1
    Спальни 2
    Смотреть

    Как узнать стоимость дома

    back
    Оставляете заявку
    Вы заполняете форму на сайте или звоните нам. Менеджер Лайвкрафт связывается с вами для уточнения деталей: тип дома, площадь, материалы, участок строительства.
    back
    Консультация и подбор решения
    Наш специалист помогает выбрать оптимальный тип дома и конструкцию с учётом бюджета, сроков и целей — будь то дом для постоянного проживания или дача.
    back
    Расчёт предварительной стоимости
    Инженер делает первичный расчёт стоимости строительства по вашим параметрам: фундамент, коробка, кровля, отделка. Вы получаете смету с разбивкой по этапам.
    back
    Корректировка и утверждение сметы
    При необходимости вносим изменения — например, замену материалов или сокращение этапов. После согласования формируется окончательная фиксированная смета.
    back
    Заключение договора и старт работ
    После утверждения сметы заключаем официальный договор с гарантией. Вы получаете прозрачный график и точную стоимость — без скрытых расходов.

    Заказать конусльтацию по:Одноэтажный дом АС-84/ОД-183,92/24

    Фото 1 Одноэтажный дом АС-84/ОД-183,92/24


      Наши
      контакты

      Дмитров
      Опорный проезд 28Б
      (индустриальный парк Ниагара)
      9:00 до 18:00