4.9
Рейтинг на основании 120 отзывов
Дмитров
Опорный проезд 28Б
(индустриальный парк Ниагара)
Бренд "Дмитров-Дело" c 2008 года на рынке строительства в Дмитрове
Звоните 9:00 до 18:00 8 (915) 055-33-61
Бренд "Дмитров-Дело" c 2008 года на рынке строительства в Дмитрове

Одноэтажный дом — Барн 70 ВМ

Стоимость проекта от:
31 500 ₽
БЕСПЛАТНО! ПРИ ЗАКАЗЕ СТРОИТЕЛЬСТВА
Стоимость строительства от:
4 057 900 ₽
Артикул ART-12891
Дата 25.12.2025
Архитектурный стиль Барнхаус
Количество надземных этажей 1
Круглогодичное проживание Да
Площадь дома 70 м2
Санузлы 1
Спальни 2

Описание

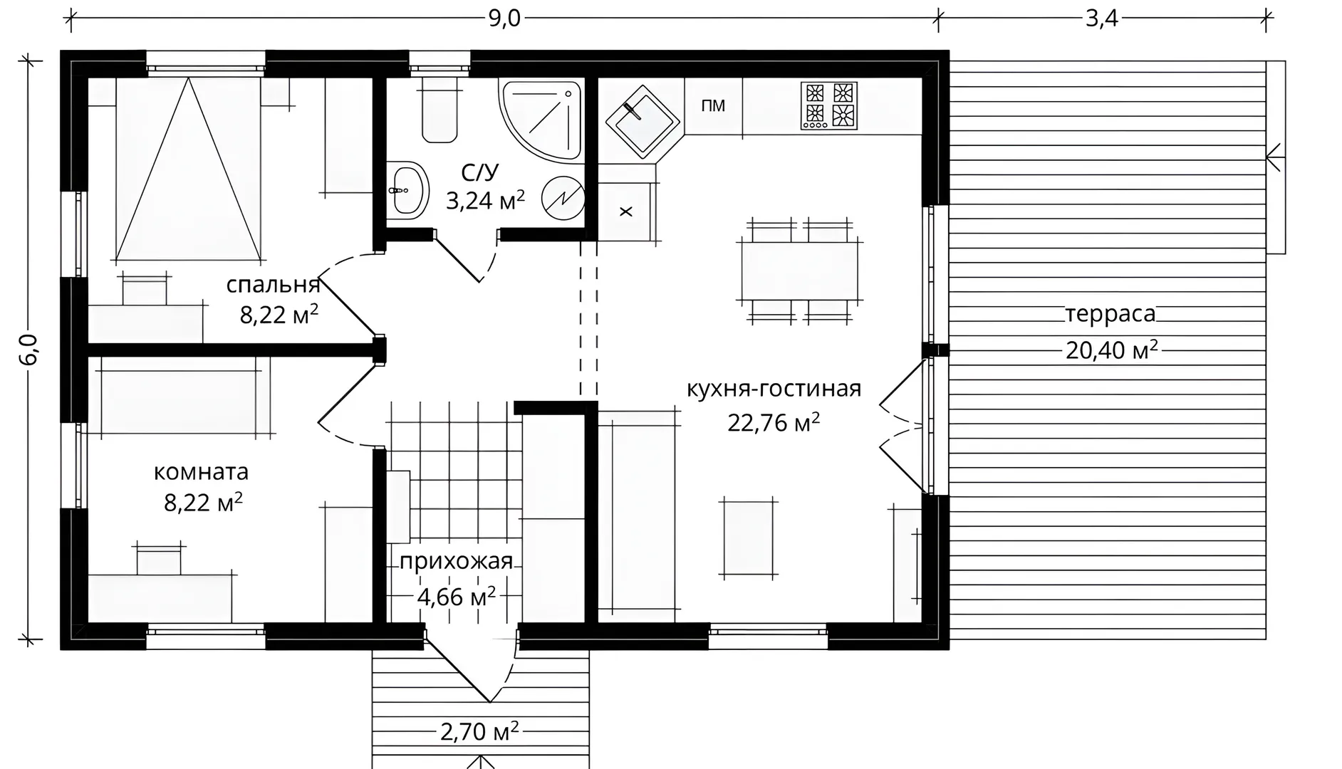
Приют из камней и древесины, где каждая деталь говорит о тепле и уюте — так можно описать одинэтажный дом Барн 70 ВМ. Внутри открывается элегантный симфонический ряд света: просторная гостиная, где открытая кухня и обеденный зал сливаются в единый поток, а из окна тянет в комнату естественный свет, создающий атмосферу домашнего тепла. Весь интерьер пронизан барнхаусным духом: деревянные балки, натуральные материалы и открытая планировка делают пространство живым и запоминающимся. Беседка и терраса — это ваш собственный уголок для отдыха, где летний ветер будет приносить аромат свежих полей, а тихий вечер — мягкое меркновение заката. Чердачное помещение открывает перспективу на новые приключения: его можно превратить в гостиную, рабочее место или даже в небольшую комнату для креативного вдохновения. Несмотря на простоту внешнего вида, дом обладает всеми возможностями для комфортного круглогодичного проживания — от утепленных стен до двухскатной кровли, прекрасно защищающей от ветра и дождя. Благодаря деревяшке в каркасной системе, ваш новый дом станет слиянием традиционных методов строительства и современной уюта. Нет необходимости в лишних гаражах или верандах — все, что нужно, находится внутри: тепло, уют и мгновения, которые останутся в памяти надолго. Приглашаем вас стать владельцем уникального произведения архитектуры, где каждый день начинается с вдохновения и заканчивается ощущением, что это ваш маленький уголок мира.

Характеристики дома

Архитектурный стиль
Автоматизированное регулирование параметров теплоносителя
Нет
Балконы/лоджии
Отсутствуют
Чердачное помещение
Да
Датчики протечки воды
Нет
Эксплуатируемая или зеленая кровля
Нет
Электроснабжение
Не предусмотрено
Газоснабжение
Не предусмотрено
Изоляция воздушного шума
Да
Камин
Нет
Класс энергоэффективности
-
Класс энергосбережения
-
Количество надземных этажей
1
Круглогодичное проживание
Да
Материал кровли
Металлочерепица
Материал перекрытий
Деревянные
Материал внешних стен
Материал внутренних перегородок
Деревянные
Модульное строительство с конструкциями заводского изготовления
Нет
Объем надземной части
244 м3
Основной материал фасадов
Дерево
Отопление
Не предусмотрено
Площадь дома
70 м2
Площадь застройки
79 м2
Подвальное помещение
Нет
Показатель компактности здания
-
Приборы учета тепловой энергии
Нет
Пристроенный гараж/крытая автостоянка
Нет
Противопожарная система
Нет
Санузлы
1
Совмещенная кухня-гостиная
Да
Спальни
2
Терраса
Да
Тип фундамента
Свайный
Тип кровли
Толщина внешних стен
250 мм
Толщина внутренних перегородок
100 мм
Улучшенные шумовые характеристики
Да
Вентиляция
Естественная
Веранда
Нет
Водоотведение
Не предусмотрено
Водоснабжение
Не предусмотрено
Высота дома
6.05 м
Высота потолков
2.7 м

Планировка

Фасад дома

Александр

Закажите выезд инженера

Александр

Выездной инженер
Закажите выезд инженера для точной диагностики и профессиональной консультации по инженерным системам. Специалист приедет в удобное время, проведёт осмотр, рассчитает стоимость работ и подберёт оптимальные решения для вашего дома.


    Похожие проекты

    Ипотека и
    рассрочка
    Милино 3
    Стоимость от:
    14 573 460
    Проект от: 95 850
    Этажей 1
    Санузлы 2
    Спальни 4
    Смотреть
    Ипотека и
    рассрочка
    Отдых
    Стоимость от:
    3 011 580
    Проект от: 24 300
    Этажей 1
    Санузлы 1
    Спальни 1
    Смотреть
    Ипотека и
    рассрочка
    Одноэтажный дом 69 м2 «Брюгге»
    Стоимость от:
    5 497 580
    Проект от: 31 050
    Этажей 1
    Санузлы 2
    Спальни 2
    Смотреть
    Ипотека и
    рассрочка
    Опал-К2
    Стоимость от:
    6 840 020
    Проект от: 40 950
    Этажей 1
    Санузлы 1
    Спальни 2
    Смотреть
    Ипотека и
    рассрочка
    Двухэтажный дом №24
    Стоимость от:
    10 319 520
    Проект от: 62 100
    Этажей 2
    Санузлы 2
    Спальни 4
    Смотреть
    Ипотека и
    рассрочка
    Одноэтажный дом в современном стиле с гаражом на 2 авто SS-303
    Стоимость от:
    25 589 080
    Проект от: 168 300
    Этажей 1
    Санузлы 3
    Спальни 4
    Смотреть

    Как узнать стоимость дома

    back
    Оставляете заявку
    Вы заполняете форму на сайте или звоните нам. Менеджер Лайвкрафт связывается с вами для уточнения деталей: тип дома, площадь, материалы, участок строительства.
    back
    Консультация и подбор решения
    Наш специалист помогает выбрать оптимальный тип дома и конструкцию с учётом бюджета, сроков и целей — будь то дом для постоянного проживания или дача.
    back
    Расчёт предварительной стоимости
    Инженер делает первичный расчёт стоимости строительства по вашим параметрам: фундамент, коробка, кровля, отделка. Вы получаете смету с разбивкой по этапам.
    back
    Корректировка и утверждение сметы
    При необходимости вносим изменения — например, замену материалов или сокращение этапов. После согласования формируется окончательная фиксированная смета.
    back
    Заключение договора и старт работ
    После утверждения сметы заключаем официальный договор с гарантией. Вы получаете прозрачный график и точную стоимость — без скрытых расходов.

    Заказать конусльтацию по:Одноэтажный дом — Барн 70 ВМ

    Фото 1 Одноэтажный дом — Барн 70 ВМ


      Наши
      контакты

      Дмитров
      Опорный проезд 28Б
      (индустриальный парк Ниагара)
      9:00 до 18:00

      Корзина