4.9
Рейтинг на основании 120 отзывов
Дмитров
Опорный проезд 28Б
(индустриальный парк Ниагара)
Бренд "Дмитров-Дело" c 2008 года на рынке строительства в Дмитрове
Звоните 9:00 до 18:00 8 (915) 055-33-61
Бренд "Дмитров-Дело" c 2008 года на рынке строительства в Дмитрове

Одноэтажный дом ДМ- 103

Стоимость проекта от:
45 450 ₽
БЕСПЛАТНО! ПРИ ЗАКАЗЕ СТРОИТЕЛЬСТВА
Стоимость строительства от:
7 590 220 ₽
Артикул ART-11287
Дата 25.12.2025
Архитектурный стиль Европейский
Количество надземных этажей 1
Круглогодичное проживание Да
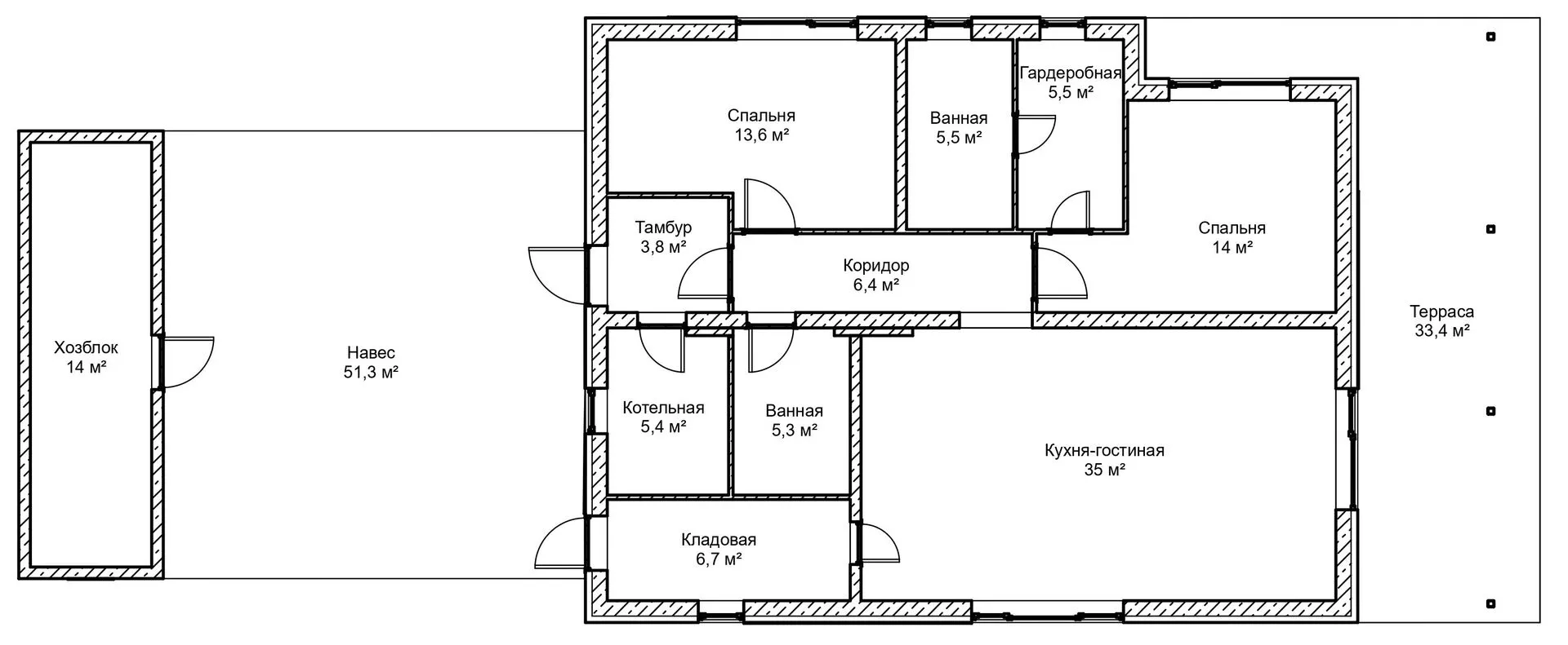
Площадь дома 101 м2
Санузлы 2
Спальни 2

Описание

Новый дом DM‑103 – это гармоничное сочетание европейской элегантности и уюта настоящего семейного дома. Одноэтажная конструкция с кирпичными стенами и четырёхскатной вальмовой крышей дарит ощущение традиционной крепости, а ровной, ровной крышей обеспечивается надёжная защита от непогоды в любой сезон. Внутренний план, спроектированный с учётом круглогодичного проживания, предвосхищает потребности современной семьи: просторные комнаты, светлые окна, высокие потолки и естественное освещение создают атмосферу спокойствия и бодрости. Терраса внизу становится очагом для уединённых вечеров на свежем воздухе. Здесь можно устроить романтический ужин или просто расслабиться после рабочего дня, наслаждаясь видами на ухоженный двор. Отсутствие балконов, веранд и прицепного гаража придаёт дому чистый, лаконичный вид, подчеркивая архитектурный стиль, который будто бы пришёл с европейских улочек. При желании, небольшие открытые зоны можно легко адаптировать под сад или детскую площадку, создавая уникальное пространство, в котором каждый момент будет запоминаться.

Характеристики дома

Архитектурный стиль
Автоматизированное регулирование параметров теплоносителя
-
Балконы/лоджии
Отсутствуют
Чердачное помещение
Нет
Датчики протечки воды
-
Эксплуатируемая или зеленая кровля
-
Электроснабжение
Центральное
Газоснабжение
Центральное
Изоляция воздушного шума
-
Камин
Нет
Класс энергоэффективности
-
Класс энергосбережения
-
Количество надземных этажей
1
Круглогодичное проживание
Да
Материал кровли
Металлочерепица
Материал перекрытий
Деревянные
Материал внешних стен
Материал внутренних перегородок
Блочные
Модульное строительство с конструкциями заводского изготовления
Нет
Объем надземной части
467 м3
Основной материал фасадов
Штукатурка
Отопление
Индивидуальное
Площадь дома
101 м2
Площадь застройки
128 м2
Подвальное помещение
Нет
Показатель компактности здания
-
Приборы учета тепловой энергии
-
Пристроенный гараж/крытая автостоянка
Нет
Противопожарная система
Нет
Санузлы
2
Совмещенная кухня-гостиная
Да
Спальни
2
Терраса
Да
Тип фундамента
Свайно-ростверковый
Толщина внешних стен
360 мм
Толщина внутренних перегородок
100 мм
Улучшенные шумовые характеристики
-
Вентиляция
Естественная
Веранда
Нет
Водоотведение
Локальные очистные сооружения
Водоснабжение
Индивидуальное
Высота дома
5.2 м
Высота потолков
3 м

Планировка

Фасад дома

Александр

Закажите выезд инженера

Александр

Выездной инженер
Закажите выезд инженера для точной диагностики и профессиональной консультации по инженерным системам. Специалист приедет в удобное время, проведёт осмотр, рассчитает стоимость работ и подберёт оптимальные решения для вашего дома.


    Похожие проекты

    Ипотека и
    рассрочка
    Проект Мия
    Стоимость от:
    27 636 000
    Проект от: 166 500
    Этажей 2
    Санузлы 3
    Спальни 3
    Смотреть
    Ипотека и
    рассрочка
    Горный-59
    Стоимость от:
    8 860 560
    Проект от: 58 050
    Этажей 2
    Санузлы 2
    Спальни 5
    Смотреть
    Ипотека и
    рассрочка
    Дом в Радужном
    Стоимость от:
    14 267 000
    Проект от: 85 500
    Этажей 1
    Санузлы 4
    Спальни 3
    Смотреть
    Ипотека и
    рассрочка
    Дом из газобетонных блоков G-190-3
    Стоимость от:
    5 500 220
    Проект от: 31 950
    Этажей 1
    Санузлы 1
    Спальни 2
    Смотреть
    Ипотека и
    рассрочка
    Дом из газоблока 87
    Стоимость от:
    14 074 940
    Проект от: 79 650
    Этажей 1
    Санузлы 1
    Спальни 4
    Смотреть
    Ипотека и
    рассрочка
    Проект загородного дома NHD-148
    Стоимость от:
    13 243 920
    Проект от: 82 350
    Этажей 2
    Санузлы 2
    Спальни 4
    Смотреть

    Как узнать стоимость дома

    back
    Оставляете заявку
    Вы заполняете форму на сайте или звоните нам. Менеджер Лайвкрафт связывается с вами для уточнения деталей: тип дома, площадь, материалы, участок строительства.
    back
    Консультация и подбор решения
    Наш специалист помогает выбрать оптимальный тип дома и конструкцию с учётом бюджета, сроков и целей — будь то дом для постоянного проживания или дача.
    back
    Расчёт предварительной стоимости
    Инженер делает первичный расчёт стоимости строительства по вашим параметрам: фундамент, коробка, кровля, отделка. Вы получаете смету с разбивкой по этапам.
    back
    Корректировка и утверждение сметы
    При необходимости вносим изменения — например, замену материалов или сокращение этапов. После согласования формируется окончательная фиксированная смета.
    back
    Заключение договора и старт работ
    После утверждения сметы заключаем официальный договор с гарантией. Вы получаете прозрачный график и точную стоимость — без скрытых расходов.

    Заказать конусльтацию по:Одноэтажный дом ДМ- 103

    Фото 1 Одноэтажный дом ДМ- 103


      Наши
      контакты

      Дмитров
      Опорный проезд 28Б
      (индустриальный парк Ниагара)
      9:00 до 18:00

      Корзина