4.9
Рейтинг на основании 120 отзывов
Дмитров
Опорный проезд 28Б
(индустриальный парк Ниагара)
Бренд "Дмитров-Дело" c 2008 года на рынке строительства в Дмитрове
Звоните 9:00 до 18:00 8 (915) 055-33-61
Бренд "Дмитров-Дело" c 2008 года на рынке строительства в Дмитрове

Проект ЕР-120

Стоимость проекта от:
48 150 ₽
Стоимость строительства от:
6 416 880 ₽
Артикул ART-10461
Дата 25.12.2025
Архитектурный стиль Скандинавский
Количество надземных этажей 2
Круглогодичное проживание Да
Площадь дома 107 м2
Санузлы 2
Спальни 4

Описание

В сердце уютного уголка природы откроется дом, созданный по проекту **ЕР‑120** – настоящий шедевр скандинавской просторы, где каждая деталь пронизана свежестью и гармонией. С двумя надземными этажами он не только легко впишется в любой ландшафт, но и подарит простор для самых смелых дизайнерских идей. Деревянный каркас, объятый теплыми материалами, создает ощущение уюта, будто вы отдыхаете в собственноручно построенном домике, открытом к ветреному весеннему порогу. Кровля в классическом двускатном стиле добавляет характер и элегантность, а внутри царит идеальная атмосфера для круглогодичного проживания – прохладные зимы и солнечные летние вечера становятся вашим постоянным спутником. Удобный балкон/лоджия, открывающий панорамные виды на живописные окрестности, приглашает к завтраку у окна, а открытая веранда и просторные террасы – редкость в такой компактной конструкции. Несмотря на отсутствие прицепного гаража, проект позволяет обеспечить безопасное и эстетичное размещение авто, а также дополнительное пространство под личные потребности. Простой, но элегантный, этот дом – идеальный выбор для тех, кто ценит природную красоту, функциональность и стиль. С **ЕР‑120** вы получаете не просто жилище, а целый образ жизни, где каждая комната дышит спокойствием, а ваш дом становится вторым домом для всей семьи.

Характеристики дома

Архитектурный стиль
Скандинавский
Автоматизированное регулирование параметров теплоносителя
-
Балконы/лоджии
1
Чердачное помещение
Нет
Датчики протечки воды
-
Эксплуатируемая или зеленая кровля
-
Электроснабжение
Центральное
Газоснабжение
Индивидуальное
Изоляция воздушного шума
-
Камин
Нет
Класс энергоэффективности
-
Класс энергосбережения
-
Количество надземных этажей
2
Круглогодичное проживание
Да
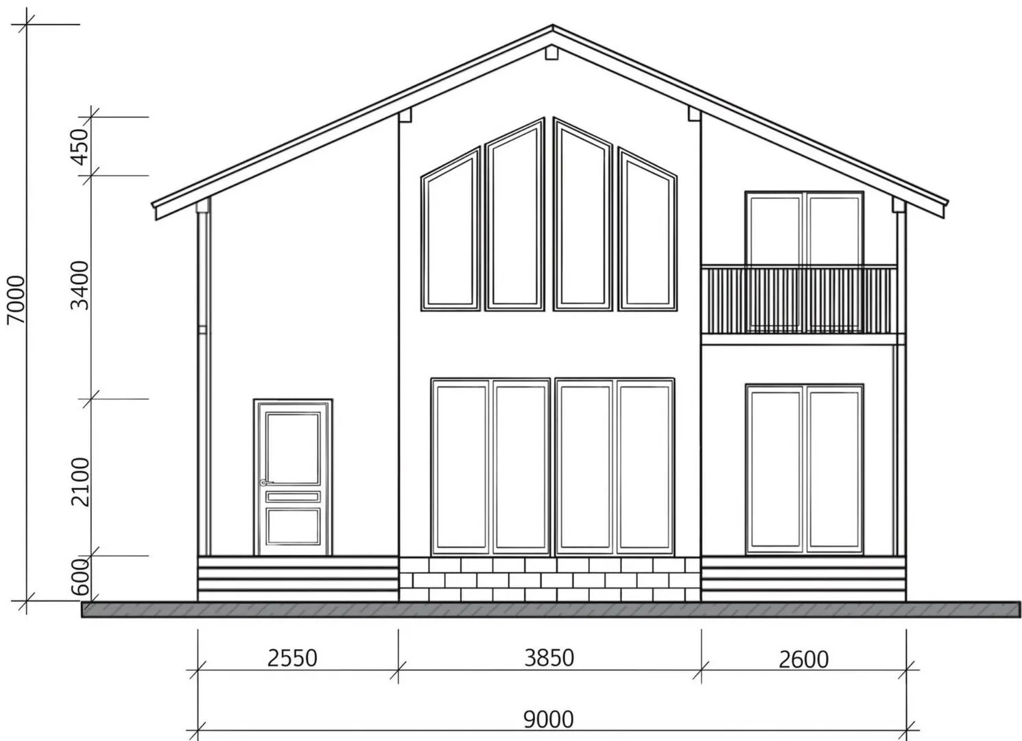
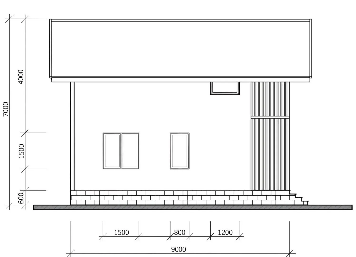
Материал кровли
Металлочерепица
Материал перекрытий
Деревянные
Материал внешних стен
Деревянные каркасные
Материал внутренних перегородок
Деревянные
Модульное строительство с конструкциями заводского изготовления
Нет
Объем надземной части
300 м3
Основной материал фасадов
Дерево
Отопление
Индивидуальное
Площадь дома
107 м2
Площадь застройки
81 м2
Подвальное помещение
Нет
Показатель компактности здания
-
Приборы учета тепловой энергии
-
Пристроенный гараж/крытая автостоянка
Нет
Противопожарная система
Нет
Санузлы
2
Совмещенная кухня-гостиная
Да
Спальни
4
Терраса
Нет
Тип фундамента
Свайный
Тип кровли
Двускатная
Толщина внешних стен
150 мм
Толщина внутренних перегородок
100 мм
Улучшенные шумовые характеристики
-
Вентиляция
Естественная
Веранда
Нет
Водоотведение
Локальные очистные сооружения
Водоснабжение
Индивидуальное
Высота дома
7 м
Высота потолков
3 м

Планировка

Фасад дома

Александр

Закажите выезд инженера

Александр

Выездной инженер
Закажите выезд инженера для точной диагностики и профессиональной консультации по инженерным системам. Специалист приедет в удобное время, проведёт осмотр, рассчитает стоимость работ и подберёт оптимальные решения для вашего дома.


    Похожие проекты

    Ипотека и
    рассрочка
    WOODY — 11
    Стоимость от:
    4 684 680
    Проект от: 37 800
    Этажей 1
    Санузлы 1
    Спальни 2
    Смотреть
    Ипотека и
    рассрочка
    Двухэтажный дом FIXPLANS — 2366
    Стоимость от:
    6 526 800
    Проект от: 42 750
    Этажей 2
    Санузлы 1
    Спальни 3
    Смотреть
    Ипотека и
    рассрочка
    Family Dream 104.5
    Стоимость от:
    8 277 280
    Проект от: 46 800
    Этажей 1
    Санузлы 2
    Спальни 2
    Смотреть
    Ипотека и
    рассрочка
    Одноэтажный Family 86
    Стоимость от:
    7 229 860
    Проект от: 53 100
    Этажей 1
    Санузлы 1
    Спальни 3
    Смотреть
    Ипотека и
    рассрочка
    Двухэтажный фахверк MIDI UP
    Стоимость от:
    12 070 320
    Проект от: 82 350
    Этажей 2
    Санузлы 4
    Спальни 3
    Смотреть
    Ипотека и
    рассрочка
    Авторский проект «Нексис 1.0»
    Стоимость от:
    8 686 260
    Проект от: 55 350
    Этажей 1
    Санузлы 1
    Спальни 3
    Смотреть

    Как узнать стоимость дома

    back
    Оставляете заявку
    Вы заполняете форму на сайте или звоните нам. Менеджер Лайвкрафт связывается с вами для уточнения деталей: тип дома, площадь, материалы, участок строительства.
    back
    Консультация и подбор решения
    Наш специалист помогает выбрать оптимальный тип дома и конструкцию с учётом бюджета, сроков и целей — будь то дом для постоянного проживания или дача.
    back
    Расчёт предварительной стоимости
    Инженер делает первичный расчёт стоимости строительства по вашим параметрам: фундамент, коробка, кровля, отделка. Вы получаете смету с разбивкой по этапам.
    back
    Корректировка и утверждение сметы
    При необходимости вносим изменения — например, замену материалов или сокращение этапов. После согласования формируется окончательная фиксированная смета.
    back
    Заключение договора и старт работ
    После утверждения сметы заключаем официальный договор с гарантией. Вы получаете прозрачный график и точную стоимость — без скрытых расходов.

    Заказать конусльтацию по:Проект ЕР-120

    Фото 1 Проект ЕР-120


      Наши
      контакты

      Дмитров
      Опорный проезд 28Б
      (индустриальный парк Ниагара)
      9:00 до 18:00

      Корзина