4.9
Рейтинг на основании 120 отзывов
Дмитров
Опорный проезд 28Б
(индустриальный парк Ниагара)
Бренд "Дмитров-Дело" c 2008 года на рынке строительства в Дмитрове
Звоните 9:00 до 18:00 8 (915) 055-33-61
Бренд "Дмитров-Дело" c 2008 года на рынке строительства в Дмитрове

Одноэтажный дом Фибос

Стоимость проекта от:
48 600 ₽
Стоимость строительства от:
7 877 760 ₽
Артикул ART-16398
Дата 26.12.2025
Архитектурный стиль Хайтек
Количество надземных этажей 1
Круглогодичное проживание Да
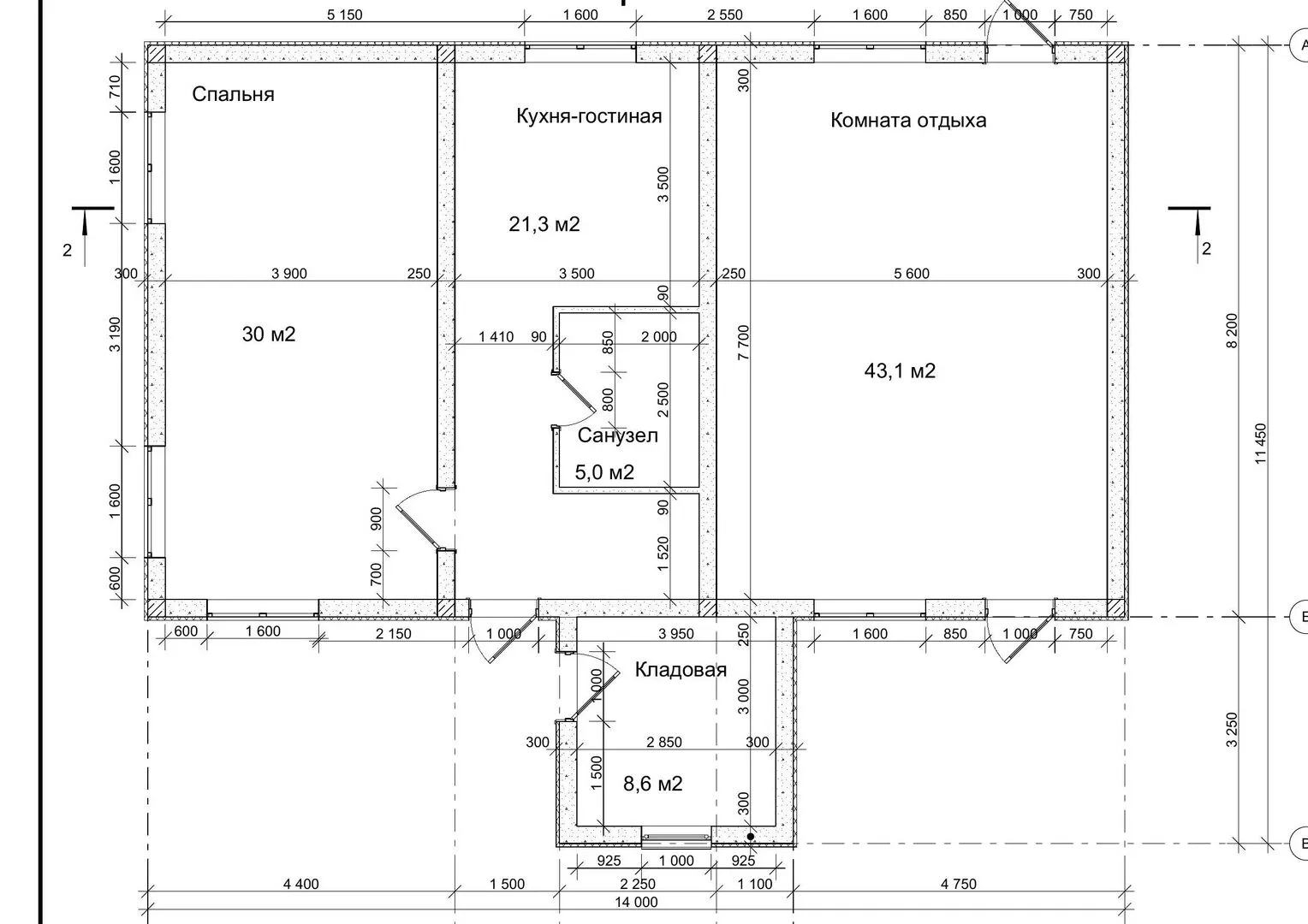
Площадь дома 108 м2
Санузлы 1
Спальни 1

Описание

Небольшой, но элегантный, одноэтажный дом Фибос в стиле хай‑тек превратит идею «всеобъемлющего комфорта» в реальность. Благодаря плотно спроектированному плану и светлому интерьеру, каждый уголок будет радовать вас просторным ощущением и открытой энергетикой. Керамзитобетонные блоки внешних стен гарантируют изоляцию от перепадов температур и звука, а плоская крыша открывает простор для оригинальных дизайнерских решений: можно легко установить солнечные панели или добавить небольшую солнечную «корону». В течение всего года этот дом предлагает комфорт и безопасность. Холодостойкие фасады и высокоэффективная теплоизоляция сохраняют внутреннее уютное тепло зимой и прохладу летом, а отсутствие балконов, веранд и прицепных гаражей позволяет более гибко использовать пространство внутри дома. При выборе Фибос вы получаете современный, энергоэффективный облик, свободный от лишних сложностей в обслуживании, идеальный для тех, кто ценит простоту, но не хочет отказываться от современного стиля. Пусть ваш новый дом станет уютным гнездом, где каждый день начинается и заканчивается в атмосфере чистоты, стиля и удобства. Откройте для себя современность, которую предлагает Фибос, сочетая передовые технологии и практичность, и позвольте себе ощутить истинный комфорт нового уровня.

Характеристики дома

Архитектурный стиль
Хайтек
Автоматизированное регулирование параметров теплоносителя
Да
Балконы/лоджии
Отсутствуют
Чердачное помещение
Нет
Датчики протечки воды
Нет
Эксплуатируемая или зеленая кровля
Да
Электроснабжение
Центральное
Газоснабжение
Центральное
Изоляция воздушного шума
Да
Камин
Нет
Класс энергоэффективности
A
Класс энергосбережения
A
Количество надземных этажей
1
Круглогодичное проживание
Да
Материал кровли
Рулонные битумно-полимерные покрытия
Материал перекрытий
Монолитные железобетонные
Материал внешних стен
Керамзитобетонные блоки
Материал внутренних перегородок
Блочные
Модульное строительство с конструкциями заводского изготовления
Нет
Объем надземной части
400 м3
Основной материал фасадов
Штукатурка
Отопление
Индивидуальное
Площадь дома
108 м2
Площадь застройки
125 м2
Подвальное помещение
Нет
Показатель компактности здания
1.02
Приборы учета тепловой энергии
Да
Пристроенный гараж/крытая автостоянка
Нет
Противопожарная система
Нет
Санузлы
1
Совмещенная кухня-гостиная
Да
Спальни
1
Терраса
Нет
Тип фундамента
Свайно-ростверковый
Тип кровли
Плоская
Толщина внешних стен
300 мм
Толщина внутренних перегородок
250 мм
Улучшенные шумовые характеристики
Да
Вентиляция
Естественная
Веранда
Нет
Водоотведение
Локальные очистные сооружения
Водоснабжение
Индивидуальное
Высота дома
3.78 м
Высота потолков
3 м

Планировка

Фасад дома

Александр

Закажите выезд инженера

Александр

Выездной инженер
Закажите выезд инженера для точной диагностики и профессиональной консультации по инженерным системам. Специалист приедет в удобное время, проведёт осмотр, рассчитает стоимость работ и подберёт оптимальные решения для вашего дома.


    Похожие проекты

    Ипотека и
    рассрочка
    Дом из клееного бруса по проекту БД-112/3
    Стоимость от:
    6 600 880
    Проект от: 46 800
    Этажей 1
    Санузлы 1
    Спальни 3
    Смотреть
    Ипотека и
    рассрочка
    Дом S=100,3 кв.м
    Стоимость от:
    7 295 200
    Проект от: 45 000
    Этажей 1
    Санузлы 1
    Спальни 3
    Смотреть
    Ипотека и
    рассрочка
    Загородный дом по проекту «Альвар».
    Стоимость от:
    11 656 480
    Проект от: 80 550
    Этажей 1
    Санузлы 2
    Спальни 4
    Смотреть
    Ипотека и
    рассрочка
    Трехкомнатный дом, площадью 73 кв.м., проект №65
    Стоимость от:
    4 994 660
    Проект от: 32 850
    Этажей 1
    Санузлы 1
    Спальни 2
    Смотреть
    Ипотека и
    рассрочка
    Нуар
    Стоимость от:
    4 796 220
    Проект от: 38 700
    Этажей 1
    Санузлы 1
    Спальни 2
    Смотреть
    Ипотека и
    рассрочка
    Одноэтажный дом Смарт 9х10
    Стоимость от:
    5 838 800
    Проект от: 36 000
    Этажей 1
    Санузлы 1
    Спальни 3
    Смотреть

    Как узнать стоимость дома

    back
    Оставляете заявку
    Вы заполняете форму на сайте или звоните нам. Менеджер Лайвкрафт связывается с вами для уточнения деталей: тип дома, площадь, материалы, участок строительства.
    back
    Консультация и подбор решения
    Наш специалист помогает выбрать оптимальный тип дома и конструкцию с учётом бюджета, сроков и целей — будь то дом для постоянного проживания или дача.
    back
    Расчёт предварительной стоимости
    Инженер делает первичный расчёт стоимости строительства по вашим параметрам: фундамент, коробка, кровля, отделка. Вы получаете смету с разбивкой по этапам.
    back
    Корректировка и утверждение сметы
    При необходимости вносим изменения — например, замену материалов или сокращение этапов. После согласования формируется окончательная фиксированная смета.
    back
    Заключение договора и старт работ
    После утверждения сметы заключаем официальный договор с гарантией. Вы получаете прозрачный график и точную стоимость — без скрытых расходов.

    Заказать конусльтацию по:Одноэтажный дом Фибос

    Фото 1 Одноэтажный дом Фибос


      Наши
      контакты

      Дмитров
      Опорный проезд 28Б
      (индустриальный парк Ниагара)
      9:00 до 18:00