4.9
Рейтинг на основании 120 отзывов
Дмитров
Опорный проезд 28Б
(индустриальный парк Ниагара)
Бренд "Дмитров-Дело" c 2008 года на рынке строительства в Дмитрове
Звоните 9:00 до 18:00 8 (915) 055-33-61
Бренд "Дмитров-Дело" c 2008 года на рынке строительства в Дмитрове

Одноэтажный дом Fixplans — 0989

Стоимость проекта от:
51 300 ₽
БЕСПЛАТНО! ПРИ ЗАКАЗЕ СТРОИТЕЛЬСТВА
Стоимость строительства от:
275 880 ₽
Артикул ART-19846
Дата 26.12.2025
Архитектурный стиль -
Количество надземных этажей 1
Круглогодичное проживание Да
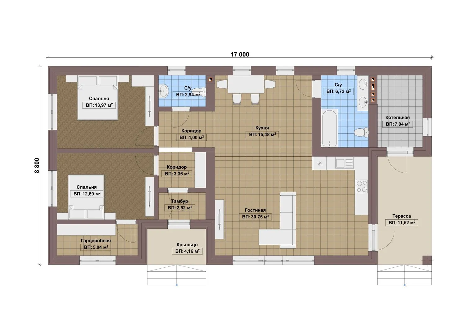
Площадь дома 114 м2
Санузлы 2
Спальни 2

Описание

Пусть ваш новый адрес станет местом, где каждый миг наполнен уютом и светом. Одноэтажный дом Fixplans‑0989, спроектированный под круглогодичную жизнь, дарит просторы и спокойствие, которые хочется обретать снова и снова. Витрины открытых пространств — это не просто пространство, а пространство, которое вы сможете наполнить своей жизнью: открытая терраса позволяет проводить вечера, наслаждаясь свежим воздухом и панорамой, а чердачное помещение придаёт дому характер и практическое преимущество. Здесь нет суеты: гаража, веранда и лоджии нет, зато зато приподнятый стиль и элегантная простота делают этот дом идеальным фоном для семейных историй. Чистые линии, продуманная планировка и возможность адаптировать пространство под свои нужды делают Fixplans‑0989 идеальным выбором для тех, кто ценит комфорт и лаконичность. Это будет ваш тихий кутек, где каждый день начинается с улыбки.

Характеристики дома

Архитектурный стиль
-
Автоматизированное регулирование параметров теплоносителя
-
Балконы/лоджии
Отсутствуют
Чердачное помещение
Да
Датчики протечки воды
-
Эксплуатируемая или зеленая кровля
-
Электроснабжение
-
Газоснабжение
-
Изоляция воздушного шума
-
Камин
Нет
Класс энергоэффективности
-
Класс энергосбережения
-
Количество надземных этажей
1
Круглогодичное проживание
Да
Материал кровли
-
Материал перекрытий
-
Материал внешних стен
-
Материал внутренних перегородок
-
Модульное строительство с конструкциями заводского изготовления
Нет
Объем надземной части
598 м3
Основной материал фасадов
-
Отопление
-
Площадь дома
114 м2
Площадь застройки
149 м2
Подвальное помещение
Нет
Показатель компактности здания
-
Приборы учета тепловой энергии
-
Пристроенный гараж/крытая автостоянка
Нет
Противопожарная система
Нет
Санузлы
2
Совмещенная кухня-гостиная
Да
Спальни
2
Терраса
Да
Тип фундамента
-
Тип кровли
-
Толщина внешних стен
530 мм
Толщина внутренних перегородок
100 мм
Улучшенные шумовые характеристики
-
Вентиляция
-
Веранда
Нет
Водоотведение
-
Водоснабжение
-
Высота дома
6 м
Высота потолков
3 м

Планировка

Фасад дома

Александр

Закажите выезд инженера

Александр

Выездной инженер
Закажите выезд инженера для точной диагностики и профессиональной консультации по инженерным системам. Специалист приедет в удобное время, проведёт осмотр, рассчитает стоимость работ и подберёт оптимальные решения для вашего дома.


    Похожие проекты

    Ипотека и
    рассрочка
    Проект индивидуального жилого дома
    Стоимость от:
    9 109 980
    Проект от: 58 050
    Этажей 1
    Санузлы 2
    Спальни 3
    Смотреть
    Ипотека и
    рассрочка
    D130
    Стоимость от:
    9 465 720
    Проект от: 56 700
    Этажей 1
    Санузлы 2
    Спальни 4
    Смотреть
    Ипотека и
    рассрочка
    Кода-73
    Стоимость от:
    3 935 140
    Проект от: 27 900
    Этажей 1
    Санузлы 1
    Спальни 2
    Смотреть
    Ипотека и
    рассрочка
    Омега
    Стоимость от:
    9 990 860
    Проект от: 59 850
    Этажей 1
    Санузлы 2
    Спальни 3
    Смотреть
    Ипотека и
    рассрочка
    КОТТЕДЖ «Оливия»
    Стоимость от:
    8 415 440
    Проект от: 50 400
    Этажей 1
    Санузлы 2
    Спальни 3
    Смотреть
    Ипотека и
    рассрочка
    Моя История
    Стоимость от:
    9 604 320
    Проект от: 61 200
    Этажей 1
    Санузлы 2
    Спальни 3
    Смотреть

    Как узнать стоимость дома

    back
    Оставляете заявку
    Вы заполняете форму на сайте или звоните нам. Менеджер Лайвкрафт связывается с вами для уточнения деталей: тип дома, площадь, материалы, участок строительства.
    back
    Консультация и подбор решения
    Наш специалист помогает выбрать оптимальный тип дома и конструкцию с учётом бюджета, сроков и целей — будь то дом для постоянного проживания или дача.
    back
    Расчёт предварительной стоимости
    Инженер делает первичный расчёт стоимости строительства по вашим параметрам: фундамент, коробка, кровля, отделка. Вы получаете смету с разбивкой по этапам.
    back
    Корректировка и утверждение сметы
    При необходимости вносим изменения — например, замену материалов или сокращение этапов. После согласования формируется окончательная фиксированная смета.
    back
    Заключение договора и старт работ
    После утверждения сметы заключаем официальный договор с гарантией. Вы получаете прозрачный график и точную стоимость — без скрытых расходов.

    Заказать конусльтацию по:Одноэтажный дом Fixplans — 0989

    Фото 1 Одноэтажный дом Fixplans — 0989


      Наши
      контакты

      Дмитров
      Опорный проезд 28Б
      (индустриальный парк Ниагара)
      9:00 до 18:00

      Корзина