4.9
Рейтинг на основании 120 отзывов
Дмитров
Опорный проезд 28Б
(индустриальный парк Ниагара)
Бренд "Дмитров-Дело" c 2008 года на рынке строительства в Дмитрове
Звоните 9:00 до 18:00 8 (915) 055-33-61
Бренд "Дмитров-Дело" c 2008 года на рынке строительства в Дмитрове

Одноэтажный дом «ФСК_92

Стоимость проекта от:
40 950 ₽
БЕСПЛАТНО! ПРИ ЗАКАЗЕ СТРОИТЕЛЬСТВА
Стоимость строительства от:
6 840 020 ₽
Артикул ART-11255
Дата 25.12.2025
Архитектурный стиль Европейский
Количество надземных этажей 1
Круглогодичное проживание Да
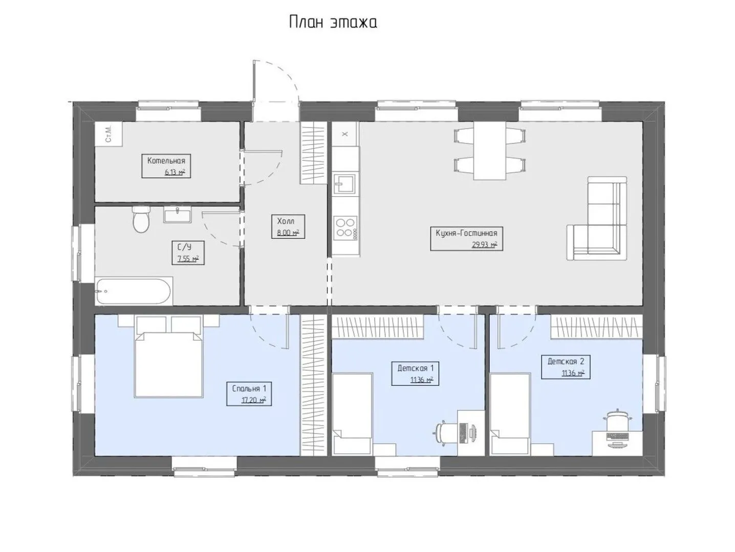
Площадь дома 91 м2
Санузлы 1
Спальни 3

Описание

Представляем вашему вниманию идеальный вариант для уютного и гармоничного семейного дома – один­этажный «ФСК_92». Дизайн выполнен в элегантном европейском стиле, придающем помещению классическую изысканность и неповторимую теплоту. Внутренние пространства открыты, светлые и дышащие, благодаря качественной теплоизоляции керамзитобетонных блоков внешних стен и просторной четырехскатной (вальмовой) крыше, которая гарантирует надёжную защиту от любых погодных условий. Именно поэтому «ФСК_92» идеально подходит для круглогодичного проживания, где каждый уголок создаёт ощущение уюта и покоя. Дом обладает компактным планировочным решением: один надземный этаж устраняет необходимость в подвижках, а все основные зоны – гостинная, кухня, спальня и ванная – расположены рационально и удобно. Внутри вы почувствуете лёгкость пространства без лишних перегородок, а простые линии и аккуратные детали подчеркивают современный характер архитектуры. Несмотря на отсутствие балконов, веранд и крытого хранения, каждая зона дома продумана до мелочей: от светлого и продуманного освещения до просторных шкафов, чтобы ваше жильё оставалось организованным и приятным для жизни. «ФСК_92» – это не просто дом, а место, где можно спокойно восстанавливать силы после трудного дня и ощущать гармонию каждого мгновения. Его европейская эстетика, высочайшее качество материалов и продуманная планировка делают его идеальным выбором для тех, кто ценит комфорт, функциональность и неподвластный времени стиль. Откройте новую главу своей жизни в этом уютном уголке, где каждый миг наполнен благополучием и гармонией.

Характеристики дома

Архитектурный стиль
Автоматизированное регулирование параметров теплоносителя
Нет
Балконы/лоджии
Отсутствуют
Чердачное помещение
Нет
Датчики протечки воды
Нет
Эксплуатируемая или зеленая кровля
Нет
Электроснабжение
Центральное
Газоснабжение
Центральное
Изоляция воздушного шума
Нет
Камин
Нет
Класс энергоэффективности
-
Класс энергосбережения
-
Количество надземных этажей
1
Круглогодичное проживание
Да
Материал кровли
Металлочерепица
Материал перекрытий
Сборно-монолитные железобетонные
Материал внешних стен
Материал внутренних перегородок
Блочные
Модульное строительство с конструкциями заводского изготовления
Нет
Объем надземной части
992 м3
Основной материал фасадов
Облицовочный кирпич
Отопление
Индивидуальное
Площадь дома
91 м2
Площадь застройки
115 м2
Подвальное помещение
Нет
Показатель компактности здания
-
Приборы учета тепловой энергии
Нет
Пристроенный гараж/крытая автостоянка
Нет
Противопожарная система
Нет
Санузлы
1
Совмещенная кухня-гостиная
Да
Спальни
3
Терраса
Нет
Тип фундамента
Свайно-ростверковый
Толщина внешних стен
410 мм
Толщина внутренних перегородок
100 мм
Улучшенные шумовые характеристики
Нет
Вентиляция
2 варианта
Веранда
Нет
Водоотведение
2 варианта
Водоснабжение
2 варианта
Высота дома
5.76 м
Высота потолков
2.8 м

Планировка

Фасад дома

Александр

Закажите выезд инженера

Александр

Выездной инженер
Закажите выезд инженера для точной диагностики и профессиональной консультации по инженерным системам. Специалист приедет в удобное время, проведёт осмотр, рассчитает стоимость работ и подберёт оптимальные решения для вашего дома.


    Похожие проекты

    Ипотека и
    рассрочка
    Одноэтажный дом с двумя крыльцами и 3 спальнями р181
    Стоимость от:
    7 665 240
    Проект от: 45 900
    Этажей 1
    Санузлы 2
    Спальни 3
    Смотреть
    Ипотека и
    рассрочка
    Проект одноэтажный №3
    Стоимость от:
    13 201 320
    Проект от: 74 700
    Этажей 1
    Санузлы 2
    Спальни 4
    Смотреть
    Ипотека и
    рассрочка
    IDEA 185
    Стоимость от:
    12 861 600
    Проект от: 87 750
    Этажей 2
    Санузлы 4
    Спальни 4
    Смотреть
    Ипотека и
    рассрочка
    ONE_85
    Стоимость от:
    6 464 920
    Проект от: 38 700
    Этажей 1
    Санузлы 1
    Спальни 2
    Смотреть
    Ипотека и
    рассрочка
    Одноэтажный дом по проекту S-124
    Стоимость от:
    9 090 620
    Проект от: 54 450
    Этажей 1
    Санузлы 2
    Спальни 3
    Смотреть
    Ипотека и
    рассрочка
    Одноэтажный дом с плоской эксплуатируемой крышей. Проект»Калифорния»
    Стоимость от:
    12 315 600
    Проект от: 81 000
    Этажей 1
    Санузлы 2
    Спальни 3
    Смотреть

    Как узнать стоимость дома

    back
    Оставляете заявку
    Вы заполняете форму на сайте или звоните нам. Менеджер Лайвкрафт связывается с вами для уточнения деталей: тип дома, площадь, материалы, участок строительства.
    back
    Консультация и подбор решения
    Наш специалист помогает выбрать оптимальный тип дома и конструкцию с учётом бюджета, сроков и целей — будь то дом для постоянного проживания или дача.
    back
    Расчёт предварительной стоимости
    Инженер делает первичный расчёт стоимости строительства по вашим параметрам: фундамент, коробка, кровля, отделка. Вы получаете смету с разбивкой по этапам.
    back
    Корректировка и утверждение сметы
    При необходимости вносим изменения — например, замену материалов или сокращение этапов. После согласования формируется окончательная фиксированная смета.
    back
    Заключение договора и старт работ
    После утверждения сметы заключаем официальный договор с гарантией. Вы получаете прозрачный график и точную стоимость — без скрытых расходов.

    Заказать конусльтацию по:Одноэтажный дом «ФСК_92

    Фото 1 Одноэтажный дом «ФСК_92


      Наши
      контакты

      Дмитров
      Опорный проезд 28Б
      (индустриальный парк Ниагара)
      9:00 до 18:00

      Корзина