4.9
Рейтинг на основании 120 отзывов
Дмитров
Опорный проезд 28Б
(индустриальный парк Ниагара)
Бренд "Дмитров-Дело" c 2008 года на рынке строительства в Дмитрове
Звоните 9:00 до 18:00 8 (915) 055-33-61
Бренд "Дмитров-Дело" c 2008 года на рынке строительства в Дмитрове

Одноэтажный дом из клееного бруса с удобной планировкой КБ94

Стоимость проекта от:
56 250 ₽
БЕСПЛАТНО! ПРИ ЗАКАЗЕ СТРОИТЕЛЬСТВА
Стоимость строительства от:
9 390 700 ₽
Артикул ART-13269
Дата 25.12.2025
Архитектурный стиль Европейский
Количество надземных этажей 1
Круглогодичное проживание Да
Площадь дома 125 м2
Санузлы 1
Спальни 3

Описание

Добро пожаловать в уютный уголок, где современное мастерство встречается с традиционной теплотой. Этот одноэтажный дом из клееного бруса излучает чувство спокойствия и гармонии: просторные помещения, изысканная европейская стилистика и обилие естественного света делают его идеальным местом для круглогодичного проживания. Внутреннее пространство продумано до мелочей – открытая планировка КБ94 позволяет легко адаптировать комнату под любые нужды: уютную гостиную, обеденную зону, домашний офис или гостевой домик. Качественная клееная древесина не только обеспечивает прочность и долговечность, но и придаёт дому неповторимый «теплый» вид, словно приглашая уединиться в собственном уголке природы. Современная кровля в комбинированном исполнении защищает от непогоды и одновременно создает приятную акустику внутри, а уютная терраса дополняет интерьер, открывая новые зоны для отдыха на свежем воздухе. Отсутствие балконов и веранд говорит только о том, что здесь каждый уголок тщательно проработан, чтобы в нём никогда не было лишнего шума и ветра. Этот дом объединяет в себе все, что важно для комфортной жизни: изящный дизайн, практичность в быту и высокое качество материалов. Не имея прицепленного гаража, вы свободны использовать открытые зоны для хобби и активного отдыха: пикник у бассейна, игры на площадке для детей или даже небольшой сад. Это место, где каждый день начинается с ощущения благополучия, а вечер завершается теплом, наполняющим ваш дом истинным спокойствием.

Характеристики дома

Архитектурный стиль
Автоматизированное регулирование параметров теплоносителя
Нет
Балконы/лоджии
Отсутствуют
Чердачное помещение
Нет
Датчики протечки воды
Нет
Эксплуатируемая или зеленая кровля
Нет
Электроснабжение
Индивидуальное
Газоснабжение
Не предусмотрено
Изоляция воздушного шума
Нет
Камин
Нет
Класс энергоэффективности
-
Класс энергосбережения
-
Количество надземных этажей
1
Круглогодичное проживание
Да
Материал кровли
Металлочерепица
Материал перекрытий
Деревянные
Материал внешних стен
Материал внутренних перегородок
Гипсокартонные
Модульное строительство с конструкциями заводского изготовления
Нет
Объем надземной части
350 м3
Основной материал фасадов
Дерево
Отопление
Индивидуальное
Площадь дома
125 м2
Площадь застройки
140 м2
Подвальное помещение
Нет
Показатель компактности здания
-
Приборы учета тепловой энергии
Нет
Пристроенный гараж/крытая автостоянка
Нет
Противопожарная система
Нет
Санузлы
1
Совмещенная кухня-гостиная
Да
Спальни
3
Терраса
Да
Тип фундамента
Свайно-ростверковый
Тип кровли
Толщина внешних стен
150 мм
Толщина внутренних перегородок
150 мм
Улучшенные шумовые характеристики
Нет
Вентиляция
Естественная
Веранда
Нет
Водоотведение
Локальные очистные сооружения
Водоснабжение
Индивидуальное
Высота дома
4.6 м
Высота потолков
4 м

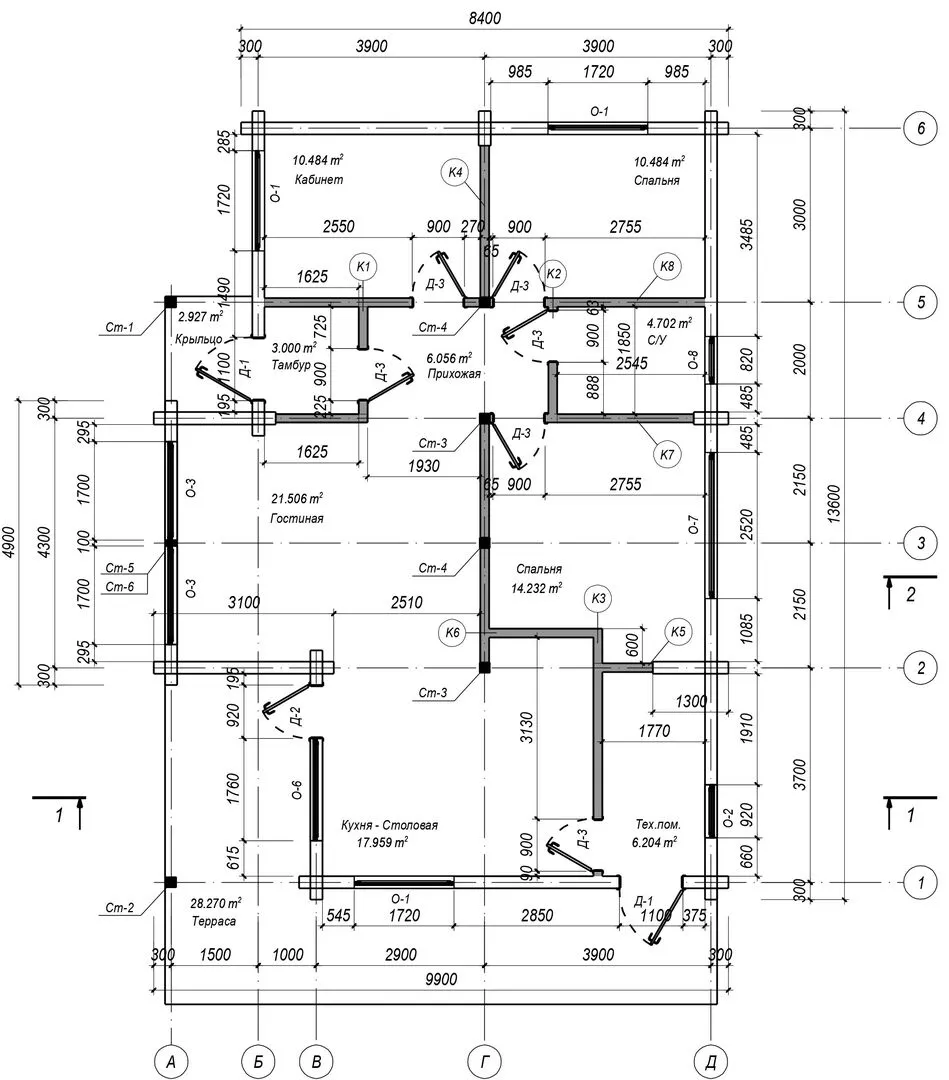
Планировка

Фасад дома

Александр

Закажите выезд инженера

Александр

Выездной инженер
Закажите выезд инженера для точной диагностики и профессиональной консультации по инженерным системам. Специалист приедет в удобное время, проведёт осмотр, рассчитает стоимость работ и подберёт оптимальные решения для вашего дома.


    Похожие проекты

    Ипотека и
    рассрочка
    САНГРИЯ
    Стоимость от:
    7 804 940
    Проект от: 48 150
    Этажей 1
    Санузлы 1
    Спальни 3
    Смотреть
    Ипотека и
    рассрочка
    SVOI-24-1-98 Одноэтажный дом 98 кв.м.
    Стоимость от:
    7 365 160
    Проект от: 44 100
    Этажей 1
    Санузлы 2
    Спальни 3
    Смотреть
    Ипотека и
    рассрочка
    Каркасный дом Кайлас ( стиль А-фрейм)
    Стоимость от:
    3 055 560
    Проект от: 22 950
    Этажей 2
    Санузлы 1
    Спальни 1
    Смотреть
    Ипотека и
    рассрочка
    Загородный дом — 245
    Стоимость от:
    13 120 800
    Проект от: 81 000
    Этажей 1
    Санузлы 2
    Спальни 3
    Смотреть
    Ипотека и
    рассрочка
    Загородный дом Unit-115
    Стоимость от:
    7 526 200
    Проект от: 49 500
    Этажей 1
    Санузлы 2
    Спальни 3
    Смотреть
    Ипотека и
    рассрочка
    Одноэтажный дом «Нарвик»
    Стоимость от:
    7 880 180
    Проект от: 44 550
    Этажей 1
    Санузлы 2
    Спальни 2
    Смотреть

    Как узнать стоимость дома

    back
    Оставляете заявку
    Вы заполняете форму на сайте или звоните нам. Менеджер Лайвкрафт связывается с вами для уточнения деталей: тип дома, площадь, материалы, участок строительства.
    back
    Консультация и подбор решения
    Наш специалист помогает выбрать оптимальный тип дома и конструкцию с учётом бюджета, сроков и целей — будь то дом для постоянного проживания или дача.
    back
    Расчёт предварительной стоимости
    Инженер делает первичный расчёт стоимости строительства по вашим параметрам: фундамент, коробка, кровля, отделка. Вы получаете смету с разбивкой по этапам.
    back
    Корректировка и утверждение сметы
    При необходимости вносим изменения — например, замену материалов или сокращение этапов. После согласования формируется окончательная фиксированная смета.
    back
    Заключение договора и старт работ
    После утверждения сметы заключаем официальный договор с гарантией. Вы получаете прозрачный график и точную стоимость — без скрытых расходов.

    Заказать конусльтацию по:Одноэтажный дом из клееного бруса с удобной планировкой КБ94

    Фото 1 Одноэтажный дом из клееного бруса с удобной планировкой КБ94


      Наши
      контакты

      Дмитров
      Опорный проезд 28Б
      (индустриальный парк Ниагара)
      9:00 до 18:00

      Корзина